Etusivu / Pirkanmaa / Ylöjärvi / Aukustintie 17

Aukustintie 17

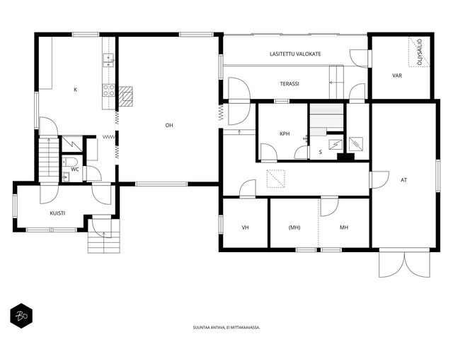
Metsäkylä, Ylöjärvi | Omakotitalo | 2-3h, k, kph, s, wc, vh, 4var, at, ak, kel, kuisti, vintti

Upea mahdollisuus remontoimiseen ja rakentamiseen! Ylöjärven Metsäkylästä vapautumassa kiinteistö isolla omalla 2400 m2 tontilla, jolla rakennusoikeutta on peräti 600 m2!

Tontilla sijaitsee tällä hetkellä vuonna 1963 valmistunut omakotitalo, jota on laajennettu vuonna 1972. Talossa on tilava olohuone, erillinen keittiö, kylpyhuone ja sauna, erillinen wc, kuisti ja lasikatoksellinen terassi. Ison makuuhuoneen saat tarvittaessa jaettua kahdeksi pienemmäksi makuuhuoneeksi. Vieressä on lisäksi makuuhuoneen kokoinen vaatehuone.

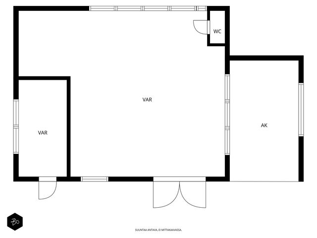
Varasto- ja harrastetilaa on erittäin runsaasti läpitalon sijaitsevan isoilla ikkunoilla olevan lämpimän vintin, lämpimän autotallin, vaatehuoneen, varastotilojen, runsaiden komeroiden sekä kellarin ansiosta. Lisäksi pihapiirissä sijaitsee vuonna 1985 valmistunut 80 m2 talous-/varastorakennus sisältäen nostotaljan ja isot ovet, joka on jokaisen nikkaroijan sekä autoharrastajan unelma.

Suosittu Metsäkylän asuinalue on erityisesti lapsiperheiden suosiossa. Alue tarjoaa lähikaupan, koulun ja päiväkodin, erinomaiset ulkoilumahdollisuudet, monipuoliset palvelut sekä hyvät liikenneyhteydet. Rauhallinen ja yhteisöllinen ilmapiiri houkuttelee asukkaita viihtymään pitkäksi aikaa. Kuntotarkastus on tehty 01/2026. Lisätiedot välittäjältä.

Tule tutustumaan tähän ainutlaatuiseen paikkaan, joita on vain harvoin tarjolla!

Henri Majuri

Kiinteistönvälittäjä LKV, KiAT, partner

040 812 1957

henri@bo.fi

Kotisivut: henrimajuri.fi

Instagram: henrimajuri

Facebook: henrimajuribolkv

#majurimyy

Are you interested in this property?

Contact us or leave a message

Henri Majuri

Henri Majuri

kiinteistönvälittäjä LKV, KiAT, partner

Building

Year of commissioning
1963
Building material
Puu, kivi
Description of building materials
Coloroc-betonitiilijulkisivujärjestelmä alumiiniprofiilijärjestelmin.
Roof type
Harjakatto, pulpettikatto
Roof covering
Peltikate, huopakate
Condition of the roof
Harjakatto v. 1985, pulpettikatto v. 2007
Living area
112,0 m2 (179,0 m2)
Additional information on area
Asuinpinta-alana ilmoitettu asemapiirroksen mukainen huoneistoala n. 112 m2.
Kerrosala n. 179 m2.
Erillisen talous-/varastorakennuksen kerrosala n. 80 m2.

Pinta-alat ovat suuntaa-antavia eikä niitä ole tarkastusmitattu. Kauppahinta ei ole pinta-alaperusteinen.
Floors
2
Additional spaces
67,0 m2
Description of the heating system
öljy
Lämmön jakotapa
Muu
Number of rooms
2-3h, k, kph, s, wc, vh, 4var, at, ak, kel, kuisti, vintti
Other kitchen equipment
Liesituuletin, astianpesukone
Stove
Keraaminen liesi
Kitchen countertop material
Laminaatti
Kitchen floor material
Parketti
Kitchen wall material
Maalattu, puu
Bathroom description, details, and equipment
Ikkuna
Bathroom equipment
Pesukoneliitäntä, suihku
Bathroom floor material
Laatta
Bathroom wall material
Kaakeli
Sauna
Asunnossa on sauna
Sauna floor material
Laatta
Sauna wall material
Puu
Toilet description
Allaskaappi, seinäkaappi
Varustus: peilikaappi, bidee-suihku
Lukumäärä: 1
Lattiamateriaalit: muovi
Seinämateriaalit: muovi
Bedroom description, details, and equipment
Lukumäärä: 4
Lattiamateriaalit: muovi, laminaatti
Seinämateriaalit: maalattu
Living room description, details, and equipment
Lattiamateriaalit: parketti
Seinämateriaalit: tapetti
Wall materials
Maalattu puupaneeli, tapetti
Floor materials
Koivuparketti
Roof materials
Puupaneeli
Tehdyt korjaukset
1972 Laajennusosa,
1985 Peltikatto,
1985 Talous-/varastorakennus,
1985 Ikkunoiden lämpölasit,
1996 Keittiö,
2006 Vesikourut,
2007 Huopakatto,
2011 Kattoikkunan kupu
Other items included in the sale
Varaava takka
Condition
Tyydyttävä
Additional information about the condition
Kuntotarkastus 01/2026, Sustera.
Additional information on the energy certificate
Myyjä teettää energiatodistuksen ennen kauppoja.

Property information

Property identification number
980-414-4-128
Block/Property name
KUMPULA
Type
Tila
Plot type
Tasamaatontti
Lot size
2 400,00 m2
Plot ownership
Oma
Mortgage deeds
0,00 €
Additional information about the plot
Tie perille
Water main
Kunnan
Sewer
Kunnan
Building rights
600,0 m2
Rakennusoikeus, e-luku
0.25
Additional information about building rights
Rakennusoikeutta yhteensä 600 m2.

Additional information

Services
Sale Metsäkylä n. 600 m, Kauppakeskus Elo n. 4,5 km, Prisma Ylöjärvi n. 6,7 km
School
Metsäkylän koulu n. 400 m
Daycare
Metsäkylän päiväkoti n. 650 m
Transportation connections
Bussipysäkki n. 400 m

Housing costs

Property tax
349,32 €
Other payments / additional information on payments
-Öljynkulutus noin 1000 litraa / vuosi.
-Sähkönkulutus noin 3000 kWh / vuosi.

Price

Total purchase price
209 000,00 €
Selling price
209 000,00 €
Available from
Sopimuksen mukaan, noin 2 kk kaupanteosta
Payment terms
Käteinen.
Kartta