Etusivu / Pirkanmaa / Tampere / Käräjätörmä 2

Käräjätörmä 2

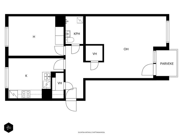
Tohloppi, Tampere | Kerrostalo | 2h, k, kph, 2vh, parv.

Esittelyssä trendikkäästi remontoitu läpitalon kaksio rauhalliselta alueelta Tohlopista!

Tervetuloa tutustumaan tähän tyylikkääseen huoneistoon, jonka pohjaratkaisu on erittäin toimiva. Vuonna 2018 remontoitu keittiö tarjoaa runsaasti lasku- ja säilytystilaa sekä uusitut kodinkoneet. Laatoitetussa kylpyhuoneessa on pesukoneliitäntä ja lattialämmitys, jotka lisäävät asumismukavuutta. Tilavaan makuuhuoneeseen mahtuu parisänky ja kahden vaatehuoneen ansiosta säilytystilaa on runsaasti. Tilavasta olohuoneesta pääset omalle parvekkeelle, josta aukeaa rauhalliset maisemat takapihan puolelle.

As. Oy. Säästötörmä on hyvin hoidettu taloyhtiö, johon kuuluu peräti 109 huoneistoa. Vuonna 1969 valmistunut yhtiö sijaitsee kaupungin vuokratontilla ja on liitetty kaukolämpöverkkoon. Yhtiössä on tehty erittäin kattavasti remontteja vuosien varrella, joista mainittakoon muun muassa vuonna 2022 uusitut käyttövesiputket sekä vuonna 2017 valmistunut julkisivuremontti. Asukkaiden käytössä on hyvät yhteiset tilat, kuten kuntosali, saunatilat sekä viihtyisät piha-alueet. Mahdollisuus vuokrata lämmin autotalli edulliseen kuukausihintaan 28 euroa tarjoaa lisämukavuutta autoilevalle asukkaalle.

Tohloppi on rauhallinen mutta kehittyvä asuinalue Tesoman naapurissa, joka tarjoaa loistavat ulkoilumahdollisuudet ja hyvät liikenneyhteydet. Läheltä löytyvien monipuolisten palveluiden sekä koulun ja päiväkodin ansiosta arki on sujuvampaa.

Tule tutustumaan tähän upeaan kotiin ja sovi oma esittelyaikasi jo tänään!

Henri Majuri

Kiinteistönvälittäjä LKV, KiAT, partner

040 812 1957

henri@bo.fi

Kotisivut: henrimajuri.fi

Instagram: henrimajuri

Facebook: henrimajuribolkv

#majurimyy

Are you interested in this property?

Contact us or leave a message

Henri Majuri

Henri Majuri

kiinteistönvälittäjä LKV, KiAT, partner

Apartment

Shares
112836-114295
Form of ownership
Asunto-osakeyhtiö
Number of rooms
2h, k, kph, 2vh, parv.
Floor/Floors
2/3
Living area
54,5 m2
Additional spaces
0,0 m2
Additional information on area
Huoneiston pinta-alaa ei ole tarkistusmitattu SFS 5139 mukaisesti. Huoneistoselitelmä 2h+k.
Yhtiöjärjestyksen mukainen. Toimeksiantajan ilmoittama. Isännöitsijäntodistuksen mukainen.
Views
Läpitalon huoneisto, josta maisemat taloyhtiön etu- ja takapihalle
Balcony
Ulostyönnetty
Balcony orientation
Itä
Kitchen description and equipment
Keittiö uusittu, myöskin sähköistys
Stove
Induktioliesi, erillisuuni
Kitchen countertop material
Laminaatti
Kitchen floor material
Laminaatti
Kitchen wall material
Maalattu
Bathroom equipment
Suihkuseinä, pesukoneliitäntä, lattialämmitys, wc-istuin, peilikaappi
Bathroom floor material
Laatta
Bathroom wall material
Kaakeli
Bedroom description, details, and equipment
Lukumäärä: 1
Lattiamateriaalit: laminaatti
Seinämateriaalit: maalattu
Living room description, details, and equipment
Lattiamateriaalit: laminaatti
Seinämateriaalit: maalattu
Other storage facilities
Kellarikomero
Apartment renovations
2018 Keittiöremontti,
2018-2023 Pintaremonttia ja keittiökaappien vetimet vaihdettu
Condition
Hyvä

Property and housing company information

Housing company name
As. Oy. Säästötörmä
Plot ownership
Vuokrattu
Lot size
20 858,80 m2
Leaseholder
Tampereen kaupunki
Plot lease expires
30.06.2028
Plot rent
34 411,24 €
Year of commissioning
1969
Building material
Betoni
Roof type
Harjakatto
Roof covering
Huopakate
Heating system
Kauko
Energy performance certificate (EPC)
Kyllä
Additional information on the energy certificate
Rakennuksen laskennallinen energiatehokkuuden vertailuluku eli E-luku 236 kWhE/(m2vuosi);
Energiatodistuksen viimeinen voimassaolopäivä 06.09.2034
Energy class
F2018
Completed renovations and improvements
Kunnossapitotarveselvitys As. Oy. Säästötörmä, Hallitus käsitellyt 30.01.2025, esitetty yhtiökokouksessa 24.04.2025. Yhtiössä suoritetut huomattavat korjaukset tai perusparannukset:

1994 Ikkunoiden ja parvekeovien uusiminen, elementtisaumojen uusiminen, ulkoseinien hiekkapuhallus ja maalaus,
1998 Alustava pt-kuntosuunnitelma,
1999 Pesulan pintakorjaus,
2002 Lämmityslaitteiston ja patterijärjestelmän saneeraus,
2003 Rännien uusiminen,
2004 Aluelämpöputkiston uusinta,
2005 Käyttövesi- ja viemäriputkisto uusittu, kosteiden tilojen vesieristys- ja kunnostus,
2006 Antenniverkosto kunnostettu, sadevesijärjestelmä ja lukitus uusittu,
2007 Syväkeräysastiat hankittu,
2009 Kylmälaitteet uusittu,
2011 Parvekekatosten suunnittelu ja rakentaminen, sadevesiviemäreiden ja kaivojen tarkastus ja kunnostus / uusinta,
2012 Päätyulko-ovien ja kellarikerrosten väliovien uusinta, autotallin ovien huoltomaalaus ja kunnostus,
2013 3. talon katon eristyksen tarkastus ja korjaus, puutarhakalusteiden uusinta, penkkejä 8kpl,
2014 Huolto- ja takuukorjauksia,
2015 Parveke- ja julkisivusaneerauksen hankesuunnittelu,
2016 Parveke- ja julkisivusaneerauksen suunnittelu,
2017 Parveke- ja julkisivusaneerauksen toteutus,
2018 Ulko-ovien maalaus,
2018 Rappuritilöiden uusinta,
2018 Parveke- ja julkisivusaneerauksen toteutuksen jälkityöt,
2018 Ilmanvaihtokanavien nuohous ja ilmamäärien tarpeen mukainen säätö,
2019 Saunanlauteiden uusinta talot 1 ja 3,
2019 Paineenalennusventtiilin ja suodatinyksikön asennus,
2019 Lämmönjaon säätömoottoreiden ja venttiilien uusinta,
2019 Huippuimureiden / yhteiskanavapuhaltimien uusinta, talot 3 ja 4,
2020 Viemäreiden huuhtelu ja kuvaus,
2020 Pihan asvaltoinnin uusinta,
2020 Kurtturuusujen poisto talo 1,
2020 Kartoitus hybridi- ja sähköautojen latauksesta,
2021 Kurtturuusujen poistaminen talo 2,
2021 Huippuimureiden / yhteiskanavapuhaltimien uusinta, 2020-2021, talot 1 ja 2,
2022 Vesikalusteet ja vesikalusteiden kalustesulut,
2022 Vesijohtojen sulku- ja linjasäätöventtiilit,
2022 Talojen 3-4 saunanlaiteiden ja penkkien uusinta,
2022 Sisäpuoliset vesijohdot,
2022 Porraskäytävien seinien maalaus ja niiden kattoihin äänieristelevyt, Työ tehty vuosina
2021-2022,
2022 Lämmönvaihtimen uusinta,
2022 Lasten leikkialueen saneeraus,
2022 Kv putkistosaneeraus, Tehty 2021-2022,
2022 Asennettu asuntokohtaiset kaukoluettavat vesimittarit
Deficiencies, errors, and repair needs
Taloyhtiössä on tapahtunut palovahinko asunnossa F 39. Osa jälleenrakennustöistä asettuu vuodelle 2025.
Known upcoming renovations/repairs
Asunto-osakeyhtiön hallituksen kunnossapitotarveselvitys:

- Palovaroittimien asennus huoneistoihin,
- Sähkönjakelujärjestelmän kuntotutkimus ja suunnitelma uusintatarpeesta,
- Taloyhtiön lukitusten uudistus,
- Vesikattojen kuntotutkimus
Obligations causing future costs
Tontin vuokrasopimus päättyy 2028 josta lähtien vastikkeet alkavat porrastetusti nousemaan (kts. tilinpäätös)
Garages
55
Outdoor parking spaces
109
Loans
1 483 913,27 €
Mortgages
3 357 358,58 €
Property manager
REIM Tampere Oy
Vilonen Lassi
p. 020 7438 600
s-posti: lassi.vilonen@reim.fi
Property maintenance
Huoltoyhtiö
Housing company's premises and facilities
Sauna, talopesula, mankeli, vinttikomero, urheiluvälinevarasto, askarteluhuone, väestönsuoja, kaapeli-tv, huoneistokohtaiset varastot. Osakkaiden käytössä lisäksi kerhohuone. Ilmanvaihtojärjestelmä: koneellinen poisto.
Taloyhtiön kylmäkellarit otettu pois käytöstä vuonna 2022.

Additional information

Services
Tesoman jäähalli n. 500 m, Tesoman palloiluhalli n. 800 m, Kauppakeskus Westeri n. 1,2 km
School
Tesoman koulu n. 1 km
Daycare
Tohlopin päiväkoti n. 700 m
Additional zoning information
Tampereen kaupunki, Frenckellin toimipiste
Available from
Sopimuksen mukaan, noin 1-3 kk kaupanteosta

Housing costs

Maintenance fee
215,35 €/kk (3,95 €/m2)
Financing charge
65,70 €/kk (1,21 €/m2)
Total housing company fee
281,05 €
Water
20,00 €/hlö/kk
Parking space
28,00 €/kk
Sauna
5,00 €
Other payments / additional information on payments
- Vuokra autotalli lämmin: 28,00 euroa / kk.
- Vesimaksuennakko: 20,00 euroa / kk / hlö.

Ostaja maksaa 1,5 % varainsiirtoveroa. Käyttösähkö ja kotivakuutus omien sopimusehtojen mukaan.


Price

Selling price
88 595,39 € (1 625,60 €/m2)
Apartment's share of the company loan
9 404,61 € (172,56 €/m2)
Total purchase price
98 000,00 € (1 798,17 €/m2)
Payment method
Käteinen.
Kartta