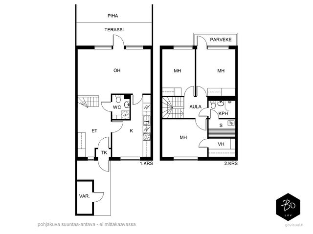
Etusivu / Uusimaa / Helsinki / Kravuntie 3 1 / 1 Kravuntie 3 Suutarila, Helsinki | Rivitalo | 4h, k, kph, s, wc, piha, parveke 249 000 € Velaton hinta 99,5 m2 Asuinpinta-ala 494,52 €/kk Hoitovastike 1980 Rakennusvuosi Ihastuttava, kahden kerroksen perheasunto Suutarilassa etsii uusia asukkaita.Tässä viihtyisässä kodissa on varmasti kaikki, mitä ostaja uudelta kodilta toivoa saattaa.Rauhallinen ja luonnonläheinen alue on erityisesti lapsiperheiden suosiossa. Vuonna 2027 valmistuva uusi koulukeskus rakentuu vain minuuttien kävelymatkan päähän eikä reitillä ole yhtään autotietä ylitettävänä, samaan rakennukseen tulee myös päiväkoti sekä esikoulu.Tilavassa keittiössä on ruhtinaallisesti lasku- sekä säilytystilaa. Avaran olohuoneen ikkunoista avautuu näkymä huoneiston helppohoitoiselle piha-alueelle. Tilava terassi ja suojaisa piha-alue tekevät kesän grillijuhlista varmasti onnistuneita. Huoneistossa on reilusti säilytystilaa kaapistoiden sekä vaatehuoneen ansiosta. Lisäksi huoneistolle kuuluu lämpöeristetty pihavarasto ja autotalli. Yläkerrassa sijaitsevat kolme makuuhuonetta sekä kylpyhuone/sauna.Parveke tarjoaa mukavan vilvoitteluhetken saunan jälkeen. Yläkerrassa on myös ilmalämpöpumppu, jonka ansiosta huoneisto ja etenkin yläkerta pysyy mukavan viileänä kesäisin.Yhtiöstä on pidetty hyvää huolta vuosien saatossa.Isoimmista tehdyistä saneerauksista mainittakoon, että katot on uusittu 2015 sekä tontin kaukolämpö- ja käyttövesiputket on uusittu 2019.Yhtiöllä on väljästi rakennettu lähes 11 000 neliön oma tontti, jossa on lasten turvallista leikkiä. Siltamäen ostoskeskuksen palvelut ja uimahalli sijaitsevat alle kilometrin päässä.Alueelta löydät loistavat urheilu- ja liikuntamahdollisuudet, ison koirapuiston sekä upeat kävelyreitit Keravan- ja Vantaanjoen varrelta.Tammiston ja Jumbon palvelut ovat autolla noin 10 minuutin päässä.Oma tonttiKaukolämpöAutotalli SaunaIlmalämpöpumppuTämä viihtyisä koti vapautuu nopeallakin aikataululla ostajan niin toivoessa.Tähän kauniiseen kotiin kannattaa ehdottomasti tulla tutustumaan paikan päälle, joten varaa oma esittelyaikasi välittäjältä!*Mikäli nykyinen asuntosi on vielä myymättä, voit kutsua minut maksuttomalle arviokäynnille ja saat tarkan myyntisuunnitelman juuri sinun kodillesi. Lisätiedot ja esittelyt:Mira Pohjola ylempi kiinteistönvälittäjä YKV, LKV, KiAT, IK, partner mira.pohjola@bo.fi 044 2426 191 Kiinnostaako tämä kohde?Ota meihin yhteyttä tai jätä viesti Mira Pohjola ylempi kiinteistönvälittäjä YKV, LKV, KiAT, IK, partner 044 242 6191 mira.pohjola@bo.fi Tutustu välittäjään Varaa aika kalenteristani HuoneistoOsakkeet5321-5544HallintamuotoAsunto-osakeyhtiöHuoneluku4h, k, kph, s, wc, piha, parvekeKerros/Kerroksia1/2Asuinpinta-ala99,5 m2Muut tilat0,0 m2Lisätietoja pinta-alasta Yhtiöjärjestyksen mukainen. Isännöitsijäntodistuksen mukainen.NäkymätParvekkeelta näkymät huoneiston piha-alueella sekä Oinaankujalle.ParvekeUlostyönnettyParvekkeen ilmansuuntaLänsiLiesiKeraaminen liesi, integroitu liesi, erillisuuniKeittiön lattiamateriaaliLaattaKeittiön seinien materiaaliMaalattuKylpyhuoneen varustusSuihkuseinä, lattialämmitys, wc-istuin, suihku, peilikaappi, kiinteät valaisimet, kylpyhuonekaapistoKylpyhuoneen lattiamateriaaliLaattaKylpyhuoneen seinämateriaaliKaakeliWC-tilojen kuvausVarustelu: peili, meikkipeili, bidee, lattialämmitys, pesukoneliitäntä.Lattiamateriaalit: laattaSeinämateriaalit: kaakeliSaunan lattiamateriaaliLaattaSaunan seinämateriaaliPuuMakuuhuoneen kuvaus, lisätiedot ja varustusLattia maalattu parketti yläkerrassa, seinät maalattu. Yhdessä makuuhuoneessa tapetti. Lukumäärä: 3Oleskelutilojen kuvaus, lisätiedot ja varustusOlohuoneen lattia laminaatti (alla mosaiikkiparketti). Seinät maalattu.Muut säilytystilatUlkovarastoMuuta kauppaan kuuluvaaEteisen vaatekaapit, naulakko, eteisen matto, yläkerran vaatekaapit, ilmalämpöpumppu (viilentävä), pimennysverhot (2.kpl), sälekaihtimet.Muutostyöt huoneistossaEdellisten osakkaiden toimesta 2008: Keittiö, märkätilat saneerattu. -Viilentävä ilmalämpöpumppu. Asennettu 4/2020 -Kaikissa ikkunoissa ja ovissa (länsipuoli) 3M energiakalvot 3M prestige 70. Asennettu 2018 -Ulkovarasto (eristetty finfoam)KuntoTyydyttävä Kiinteistö- ja yhtiötiedotYhtiön nimiAsunto Oy SiltakehräTontin omistusOmaTontin koko10 748,00 m2Käyttöönottovuosi1980RakennusmateriaaliPuu, betoniKattotyyppiHarjakattoKateAlumiinipeltiLämmitysjärjestelmäKaukoEnergiatodistusKylläLisätietoja energiatodistuksestaVoimassa 31.08.2033.EnergialuokkaD2018Tehdyt korjaukset ja remontit2004 Terassiovien uusinta (Pihla) 2004 Lämmönjakokeskuksen uusiminen 2004-2011 Märkätiloihin tehty nykyaikaiset vedeneristeet: 2, 5, 7, 15, 21, 26, 28, 29, 31, 32 ja 37 2008 Vaihtopuiteikkunat asennus uloimpaan ikkunaan (sisemmät ikkunat ovat alkuperäiset) 2009 Ilmastointikanavien puhdistus ja säätö 2010 Pää- ja parvekkeenovien uusinta (Skaala) 2010 Lukituksien uusiminen 2011-2013 Märkätilaan laitettu uusi muovimatto (taloyhtiö) 1, 3, ja 35 2012 Leikkipaikkojen tarkastus (Leikkiturva) 2012 Parveke ja julkisivujen korjaukset 2015 Kattoremontti (alumiinikatot) 2016 Parvekkeiden korjaukset: metalliosien maalaus ja kaiteiden uusinta 2016 Julkisivuelementti saumauksien uusiminen 2018 Kuntoarvio (Raksystems) 2019 E ja F talon edustan leikkipaikan uusinta 2019 Alue putkistojen uusiminen (käyttö ja kaukolämpö) 2020 Patteriverkoston tasapainotus ja termostaattien vaihto 2021 Velco-venttiilien asennus 2022 Maalämpöselvityksen teettäminen 2022 Vesiputkien silmämääräinen tarkastus (muistio / Granlund Isännöinti Oy.) 2023 Energiatodistuksen 10 v päivitetty (uusittava 31.08.2033) 2023 Latausinfran esiselvitys 2023 Sadevesikaivojen tyhjennys hiekkatieosuuksilta 2023-2024 Ilmanvaihtokanavien nuohous ja säätö 2024 Keittiön liesituulettimien iv-kanavien tarkastus ja ruttuputkien vaihtoTiedossa olevat tulevat korjaukset/remontit2025 Palovaroittimien uusiminen 2025 LVIS-Linjasaneerauksen projektipäällikön palkkaus (tehty) 2025 LVIS-saneerauksen hankesuunnitelman kilpailutus ja käynnistäminen 2026-2028 LVIS - Linjasaneeraus (arvioitu aikataulu) 2028 Autotallien sulamisvesien hallinnan korjaus 2030 Parvekkeiden metalliosien ja puurakenteiden huoltomaalaus (2020) 2030 Julkisivun elementtien saumojen kuntokatselmus ja uusinta saumaus tarpeen mukaan (2016)Autotallit37Lainat121 863,15 €Kiinnitykset695 000,00 €IsännöitsijäKiinteistö-Tahkola Helsinki Oy. Kiinteistö-Tahkola Nurmijärven toimipiste Sauli Illikainen sauli.illikainen@kiinteistotahkola.fi 0207481055KiinteistönhoitoHuoltoyhtiö Muita tietojaLisätietoa kaavoituksestaHelsingin kaupunki asemakaavoitus Kansakoulukatu 3 , 00100 Helsinki p. (09) 310 1691 https://kartta.hel.fi/kaavoitusVapautuuSopimuksen mukaan AsumiskustannuksetHoitovastike494,52 €/kk (4,97 €/m2)Rahoitusvastike69,65 €/kk (0,70 €/m2)Yhtiövastike yhteensä564,17 €Vesi18,00 €/hlö/kkMuut maksut / lisätietoa maksuistaHallituksella valtuutus periä tai jättää perimättä enintään kahden kuukauden ylimääräinen hoito- ja/tai rahoitusvastike. HintaMyyntihinta243 589,60 € (2 448,14 €/m2)Velkaosuus5 410,40 € (54,38 €/m2)Velaton hinta249 000,00 € (2 502,51 €/m2)MaksutapaKäteinen. Sinua voisi kiinnostaa Asunnon hinta-arvio ja arviokäynti Asunnon hinta-arvio ja arviokäynti Mitä hinta-arvio maksaa tai miten arviokäyntiä varten kannattaa valmistautua? Katso vastauksemme usein kysyttyihin ky… Sneak Peek® Sneak Peek® Sneak Peek® -palvelumme on askeleen edellä! Löydä alueesi uusimmat ja upeimmat asunnot jo ennen kuin ne ilmestyvät as… Asuntovahti Asuntovahti Etsimässä uutta asuntoa? Aseta itsellesi Bo-asuntovahti. Saat tiedon heti, kun unelmiesi asunto tulee myyntiin. Bo Match Bo Match Kun asuntounelmat ja unelmien asunnot kohtaavat, syntyy Bo Match. Tutustu uudenlaiseen tapaan käydä asuntokauppaa.
Asunnon hinta-arvio ja arviokäynti Asunnon hinta-arvio ja arviokäynti Mitä hinta-arvio maksaa tai miten arviokäyntiä varten kannattaa valmistautua? Katso vastauksemme usein kysyttyihin ky…
Sneak Peek® Sneak Peek® Sneak Peek® -palvelumme on askeleen edellä! Löydä alueesi uusimmat ja upeimmat asunnot jo ennen kuin ne ilmestyvät as…
Asuntovahti Asuntovahti Etsimässä uutta asuntoa? Aseta itsellesi Bo-asuntovahti. Saat tiedon heti, kun unelmiesi asunto tulee myyntiin.
Bo Match Bo Match Kun asuntounelmat ja unelmien asunnot kohtaavat, syntyy Bo Match. Tutustu uudenlaiseen tapaan käydä asuntokauppaa.