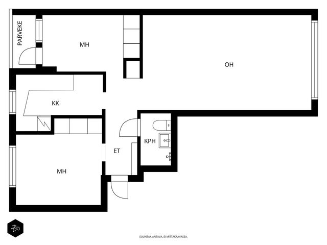
Etusivu / Päijät-Häme / Lahti / Rautatienkatu 10 1 / 1 Rautatienkatu 10 Keskusta, Lahti | Kerrostalo | 3h, k, kph, lasitettu parveke 125 000 € Velaton hinta 62,0 m2 Asuinpinta-ala 248,00 €/kk Hoitovastike 1961 Rakennusvuosi Heti vapaa, pintaremonttia kaipaava pikkukolmio Matkakeskuksen läheisyydessä. Tästä huoneistosta kävelet Lahden rautatieasemalle 5 minuuttia ja lähikauppaan 4 minuuttia (K-market Rautatienkatu).Sokos tavaratalo, Kauppakeskus Trio, keskustan alueen ravintolat, Lahden kauppatori, lukuisat vaateliikkeet, kirjakauppa ja mitä kaupunkikeskustan palveluita tarvitsetkaan ovat saavutettavissasi noin 10 minuutin sisällä.Huoneiston kylpyhuone on remontoitu taloyhtiön LVISA -remontissa 2014 ja se on edelleen hyväkuntoinen, mutta muilta osin huoneisto kaipaa uudistuksen. Taloyhtiössä on tehty LVISA -remontin lisäksi myös mm. ikkunoiden uusinta, katto on remontoitu ja hissi on uusittu. Yhtiöllä on myös oma tontti. Tule tutustumaan tähän huoneistoon ja osta tästä itselle tai remontoi hyvälle sijainnille sijoitusasunto.Tervetuloa tutustumaan kohteeseen! Soita tai laita whatsappia Marjo Hurskainen p. 040-9322892 tai sähköposti marjo@bo.fi Kiinnostaako tämä kohde?Ota meihin yhteyttä tai jätä viesti Marjo Hurskainen kiinteistönvälittäjä LKV 040 932 2892 marjo@bo.fi Tutustu välittäjään Varaa aika kalenteristani HuoneistoOsakkeet707-768HallintamuotoAsunto-osakeyhtiöHuoneluku3h, k, kph, lasitettu parvekeKerros/Kerroksia2/6Asuinpinta-ala62,0 m2Muut tilat0,0 m2Lisätietoja pinta-alasta Isännöitsijäntodistuksen mukainen. Yhtiöjärjestyksen mukainen.NäkymätParveke on taloyhtiön takapihan puolelle. Makuuhuoneiden ikkunat ovat takapihalle päin ja olohuoneen ikkunat Rautatienkadun puolelle.ParvekeLasitettuParvekkeen ilmansuuntaLänsiHissiTaloyhtiössä on hissiKeittiön kuvaus, lisätiedot ja varustusValkoiset, huonokuntoiset keittiökaapistot. Valkoinen muovinen tiskialas, rosterinen hana. Korkea valkoinen Upo jääkaappi-pakastin (uusi, käyttämätön). Keraaminen liesi, Gramin valkoinen 45 cm astianpesukone. Katto maalattu valkoiseksi. Seinissä valkoiseksi maalattu lasikuitutapetti. Lattiassa tammiparketti (osittaista kulumaa parketissa). Pesutilojen kuvaus, lisätiedot ja varustusKylpyhuone on remontoitu 2014 tehdyn LVISA -remontin yhteydessä. Valkoiset korkeakiiltoiset seinälaatat/vaaleanharmaat tehostelaatat päätyseinässä ja seinänvieri wc:n taustalla. Lattiassa vaaleanharmaat 10 x 10 lattialaatat. Valkolakattu mäntypaneelikatto. Valkoinen peilikaappi ja allaskaappi, suihkuseinä, pesukoneliitäntä. Makuuhuoneen kuvaus, lisätiedot ja varustusMH 1. Valkoiseksi maalattu katto. Seinissä on valkoiseksi maalattu lasi-kuitutapetti. Lattiassa siisti tammiparketti. MH 2. Katto maalattu valkoiseksi. Seinissä tapetti. Lattiassa siisti tammi-parketti. Tästä makuuhuoneesta käynti parvekkeelle.Oleskelutilojen kuvaus, lisätiedot ja varustusOlohuoneen katto on maalattu valkoiseksi. Seinät on tapetoitu. Lattiassa on tammiparketti.KuntoTyydyttävä Kiinteistö- ja yhtiötiedotYhtiön nimiAsunto Oy Lahden Rautatienkatu 10Tontin omistusOmaTontin koko1 931,00 m2Käyttöönottovuosi1961RakennusmateriaaliTiili, betoniKattotyyppiHarjakattoKatePeltiLämmitysjärjestelmäKauko, muuEnergiatodistusKylläLisätietoja energiatodistuksestaVoimassa 3.2.2035EnergialuokkaE2018Tehdyt korjaukset ja remontit-ikkunat vaihdettu 1995 -parvekkeet remontoitu 1997 -käyttövesiputket uusittu 1999 -jätekatos rakennettu 2000 -liitetty kaapeli TV:hen 2004 -tuuletusparvekeet korjattu 2006 -hissit uusittu 2007 -konesaumapeltikatto uusittu, sisäpihan julkisivu kalkittu sekä tuuletusparvekkeiden ovet uusittu 2009 -pihakansiremontti 2011 -sisäpihan pohjakerroksen puuovien, liiketilojen ja porrashuoneiden ulko-ovien uusiminen sekä autotallin oven uusiminen/ automatisointi 2012 -LVISA-linjasaneerauksen suunnittelu 2013-2014 -LVISA-linjasaneeraus suoritettu 2014 -vesikatto maalattu, porttikongin portti automatisoitu ja maalattu 2015 -pääsisäänkäyntiulko-ovet 3 kpl automatisoitu 2019 Tiedossa olevat tulevat korjaukset/remontitKunnossapitotarveselvitys 5-vuodelle A-talo lukitusjärjestelmän uusiminen 5 vuoden kuluessa.Kustannuksia myöhemmin aiheuttavat velvoitteetToimintakertomuksessa vuodelta 2024 on mainittu, että seuraavalla tilikaudella asennetaan kaikkiin asuntoihin palovaroittimet ja päivitetään energiatodistukset. Palovaroittimien kunnossapitovastuu siirtyy taloyhtiölle viimeistään 1.1.2026.Lainat190 260,93 €Kiinnitykset2 437 000,00 €IsännöitsijäIsännöitsijätoimsito J.Rautama OY Kari Kuru Puistokatu 11, 15100 Lahti 03-751 6441KiinteistönhoitoHuoltoyhtiöYhtiön tilat ja varusteluSauna, talopesula, mankeli, jäähdytetty kellari, vinttikomero, urheiluvälinevarasto, väestönsuoja, kaapeli-tv. Ilmanvaihto: Koneellinen poisto lämmöntalteenotolla. Yhtiön laajakaista: DNA:n 25 M taloyhtiölaajakaista. Hybridiautopaikat: Autopaikan haltija hoitaa omalla kustannuksellaan sähkön mittauksen. Myymälät yhteensä 12 kpl, joita osakkeina 9 kpl ja yhtiön hallinnassa B-talo 3 kpl. Muita tietojaPalvelutK-market Rautatienkatu n. 200 m., Sokos tavaratalo n. 500 m., Lahden sosiaali- ja terveyskeskus n. 500 m., Pääkirjasto n. 1 km.KouluLotilan koulu (ala-aste) n. 600 m., Caudia (lukio) n. 1,4 km ja Tiirismaan peruskoulu (1-9 lk.) 1,2 kmPäiväkotiVilla Piipari päiväkoti (Onnelantie ) n. 650 m.Lisätietoa kaavoituksestaLahden kaupunki p. 03-8142355VapautuuHeti AsumiskustannuksetHoitovastike248,00 €/kk (4,00 €/m2)Yhtiövastike yhteensä248,00 €Vesimaksun perusteOma mittariAutopaikka17,00 €/kkSauna17,50 €Muut maksut / lisätietoa maksuistaAutosähköpaikka (pistokepaikka) 17,00 €/kk. Autohallipaikka 33 €/kk. Autohallipaikka iso 50 €/kk. Autohallin kaukosäätimen panttimaksu 50 €. Hybridiauton lataussähkö 0,25 €/kWh, kylmäkellari 7 €/kk. Lämmin vesivastike 11,25 €/m3, kylmä vesivastike 4,85 €/m3. A-talon huoneistoissa käytetty vesi laskutetaan 4 kk välein todellisen kulutuksen mukaan osakkailta. HintaMyyntihinta125 000,00 € (2 016,13 €/m2)Velaton hinta125 000,00 € (2 016,13 €/m2)MaksutapaKäteinen. Sinua voisi kiinnostaa Asunnon hinta-arvio ja arviokäynti Asunnon hinta-arvio ja arviokäynti Mitä hinta-arvio maksaa tai miten arviokäyntiä varten kannattaa valmistautua? Katso vastauksemme usein kysyttyihin ky… Sneak Peek® Sneak Peek® Sneak Peek® -palvelumme on askeleen edellä! Löydä alueesi uusimmat ja upeimmat asunnot jo ennen kuin ne ilmestyvät as… Asuntovahti Asuntovahti Etsimässä uutta asuntoa? Aseta itsellesi Bo-asuntovahti. Saat tiedon heti, kun unelmiesi asunto tulee myyntiin. Bo Match Bo Match Kun asuntounelmat ja unelmien asunnot kohtaavat, syntyy Bo Match. Tutustu uudenlaiseen tapaan käydä asuntokauppaa.
Asunnon hinta-arvio ja arviokäynti Asunnon hinta-arvio ja arviokäynti Mitä hinta-arvio maksaa tai miten arviokäyntiä varten kannattaa valmistautua? Katso vastauksemme usein kysyttyihin ky…
Sneak Peek® Sneak Peek® Sneak Peek® -palvelumme on askeleen edellä! Löydä alueesi uusimmat ja upeimmat asunnot jo ennen kuin ne ilmestyvät as…
Asuntovahti Asuntovahti Etsimässä uutta asuntoa? Aseta itsellesi Bo-asuntovahti. Saat tiedon heti, kun unelmiesi asunto tulee myyntiin.
Bo Match Bo Match Kun asuntounelmat ja unelmien asunnot kohtaavat, syntyy Bo Match. Tutustu uudenlaiseen tapaan käydä asuntokauppaa.