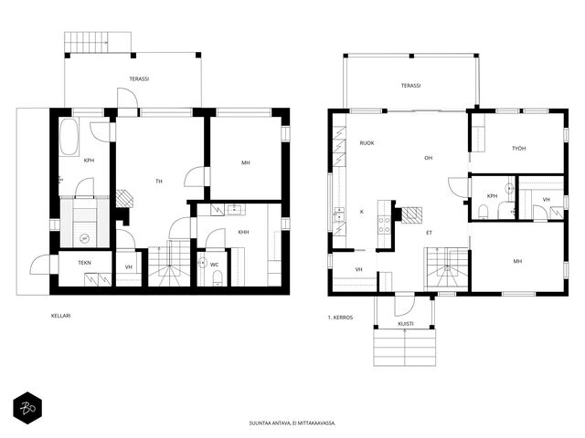
Etusivu / Varsinais-Suomi / Naantali / Kruunutilankatu 2 1 / 1 Kruunutilankatu 2 Tammisto, Naantali | Omakotitalo | 4h+k+tkh+kph+3vh+ph+s+khh+wc+et+terassi 448 000 € Velaton hinta 146,0 m2 Asuinpinta-ala 2021 Rakennusvuosi Modernia hirsitalounelmaa Naantalin Tammistossa!Tässä kodissa yhdistyvät moderni mukavuus, luonnonläheisyys ja hirsitalon lämmin sielu. Kruunutilankatu 2:ssa odottaa vuonna 2021 valmistunut kaksikerroksinen koti, joka seisoo omalla 727 neliön tontilla. Asuintilaa on reilut 146 neliötä, ja kaikki on suunniteltu asumisen helppoutta ja viihtyisyyttä silmällä pitäen.Puustellin keittiö on kodin sydän valoisa ja avara tila, joka kutsuu kokkaamaan ja kokoontumaan. Keittiöstä avautuu sujuvasti ruokailutila ja olohuone, jossa yksi varaavista takoista luo lämpöä ja tunnelmaa. Alakerrasta löytyvät myös iso kylpyhuone ammeella, oma sauna, takkahuone, kodinhoitohuone ja erillinen wc.Yläkerrasta löytyy kaksi makuuhuonetta, oma kylpyhuone, kaksi vaatehuonetta sekä keittiö, jotka tuovat asumiseen joustoa ja monikäyttöisyyttä tila toimii yhtä hyvin perheen arjessa kuin vieraiden majoituksessa tai etätyöpisteenä. Talossa yhdistyvät perinteisen hirsirakentamisen hengittävä rakenne ja modernit energiaratkaisut: katolla aurinkopaneelit, vesikiertoinen lattialämmitys ja ilmalämpöpumppu pitävät asumisen miellyttävänä ja energiankulutuksen kurissa.Pihapiiri on toteutettu ajatuksella ja huolella. Talo on rakennettu kalliolle, ja piha on viimeistelty siistiksi ja toimivaksi kokonaisuudeksi, jossa yhdistyvät luonnonläheisyys ja selkeä linjakkuus. 18 neliön talousrakennus tarjoaa hyvin tilaa säilytykselle tai harrastuksille.Tammisto on yksi Naantalin halutuimmista asuinalueista. Rauhallinen ja luonnonläheinen ympäristö tarjoaa arkeen väljyyttä, ja samalla Naantalin keskusta, satama ja palvelut ovat vain muutaman minuutin päässä.Tämä koti on täydellinen valinta sinulle, joka etsit laadukasta, energiatehokasta ja persoonallista kotia, jossa kaikki on valmiina asumisen nautintoon. Kiinnostaako tämä kohde?Ota meihin yhteyttä tai jätä viesti Minna Stude kiinteistönvälittäjä LKV, partner 045 131 2886 minna@bo.fi Tutustu välittäjään RakennusRakennusvuosi (aloitettu)2020Käyttöönottovuosi2021RakennusmateriaaliMuu, hirsiKattotyyppiHarjakattoKateTiilikateAsuinpinta-ala146,0 m2 (146,0 m2)Lisätietoja pinta-alastaPinta-aloja ei ole tarkistusmitattu. Rakennuspiirustusten ja rakennuslupa-asiakirjojen mukaan asuinrakennuksen kerrosala on 156m2 ja huoneistoala 146m2 (alakerta 78 m², parvi yli 1600mm 68 m²). Huoneiston todellinen pinta-ala voi siis olla esitteessä mainittua pienempi tai suurempi.Kerrokset2Muut tilat0,0 m2Lämmitysjärjestelmän kuvausIlmavesilämpöpumppu, aurinkolämpö, ilmalämpöpumppu, muuLämmön jakotapaVesikiertoinen lattialämmitysHuoneluku4h+k+tkh+kph+3vh+ph+s+khh+wc+et+terassiKeittiön kuvaus, lisätiedot ja varustusPuustellin keittiöKeittiön muut varusteetAstianpesukone, liesituuletin / suodatinLiesiInduktioliesi, erillisuuniKeittiön työtasojen materiaaliKivi, laminaattiKeittiön lattiamateriaaliLaattaKeittiön seinien materiaaliPuuKylpyhuoneen varustusKylpyamme, lattialämmitys, suihku, kiinteät valaisimetKylpyhuoneen lattiamateriaaliLaattaKylpyhuoneen seinämateriaaliKaakeliSaunaAsunnossa on saunaSaunan lattiamateriaaliLaattaSaunan seinämateriaaliPuuWC-tilojen kuvausVarustus: lattialämmitys, lattiakaivo, suihku, suihkuseinä, peilikaappi, bidee-suihkuLukumäärä: 2Lattiamateriaalit: laattaSeinämateriaalit: kaakeliKodinhoitohuoneSeinät harkko, tasoitettu ja maalattu.Varustus: pesukoneliitäntä, pesuallas, lattialämmitys, lattiakaivo, pöytätasoLattiamateriaalit: laattaSeinämateriaalit: kaakeliMakuuhuoneen kuvaus, lisätiedot ja varustusMakuuhuoneiden seinät puuta ja yksi seinä tasoitettu ja maalattu harkko.Lukumäärä: 3Lattiamateriaalit: laattaSeinämateriaalit: puuOleskelutilojen kuvaus, lisätiedot ja varustusLattiamateriaalit: laattaSeinämateriaalit: puuTulisija2 varaavaa takkaaTakkatiedotTakkaMuut säilytystilatUlkovarastoKuntoHyväEnergiatodistusKylläEnergialuokkaA2018Lisätietoja energiatodistuksestaVoimassa 25.02.2035 saakka. KiinteistötiedotKiinteistötunnus529-15-26-1TyyppiTonttiTontin tyyppiRinnetonttiTontin koko727,00 m2Tontin omistusOmaPanttikirjat400 000,00 €Rasitukset ja rasitteetSähköisiä panttikirjoja 1 kappale, yhteensä 400 000,00 euroa, joka luovutetaan ostajalle kauppahintaa vastaan rasituksista vapaana. Panttikirjojen siirtomaksusta vastaa ostaja. Lisätietoja tontistaSitova tonttijakoTie perilleVesijohtoKunnanViemäriKunnanRakennusoikeus300,0 m2Lisätietoja rakennusoikeudestaRakennusoikeus 250m2 + 50m2 (talousrakennus) AsumiskustannuksetKiinteistövero645,60 €Muut maksut / lisätietoa maksuistaJätehuolto noin 190€/vuosi Esitetyt asumiskustannukset perustuvat nykykäyttöön ja voivat siten olla pienempiä tai suurempia riippuen asukasmäärästä, asumistottumuksista sekä palveluntarjoajasta. Sähköisten panttikirjojen siirtomaksu Varainsiirtovero 3 %. Lainhuudatuskustannukset. Kaupanvahvistajan palkkio. Vesi ja jätevesi kulutuksen mukaan Naantalin kaupungin taksan mukaisesti. HintaVelaton hinta448 000,00 €Myyntihinta448 000,00 € VapautuuSopimuksen mukaanMaksuehtoKäteinen. Sinua voisi kiinnostaa Asunnon hinta-arvio ja arviokäynti Asunnon hinta-arvio ja arviokäynti Mitä hinta-arvio maksaa tai miten arviokäyntiä varten kannattaa valmistautua? Katso vastauksemme usein kysyttyihin ky… Sneak Peek® Sneak Peek® Sneak Peek® -palvelumme on askeleen edellä! Löydä alueesi uusimmat ja upeimmat asunnot jo ennen kuin ne ilmestyvät as… Asuntovahti Asuntovahti Etsimässä uutta asuntoa? Aseta itsellesi Bo-asuntovahti. Saat tiedon heti, kun unelmiesi asunto tulee myyntiin. Bo Match Bo Match Kun asuntounelmat ja unelmien asunnot kohtaavat, syntyy Bo Match. Tutustu uudenlaiseen tapaan käydä asuntokauppaa.
Asunnon hinta-arvio ja arviokäynti Asunnon hinta-arvio ja arviokäynti Mitä hinta-arvio maksaa tai miten arviokäyntiä varten kannattaa valmistautua? Katso vastauksemme usein kysyttyihin ky…
Sneak Peek® Sneak Peek® Sneak Peek® -palvelumme on askeleen edellä! Löydä alueesi uusimmat ja upeimmat asunnot jo ennen kuin ne ilmestyvät as…
Asuntovahti Asuntovahti Etsimässä uutta asuntoa? Aseta itsellesi Bo-asuntovahti. Saat tiedon heti, kun unelmiesi asunto tulee myyntiin.
Bo Match Bo Match Kun asuntounelmat ja unelmien asunnot kohtaavat, syntyy Bo Match. Tutustu uudenlaiseen tapaan käydä asuntokauppaa.