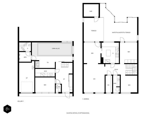
Etusivu / Pirkanmaa / Tampere / Routakatu 18 1 / 1 Routakatu 18 Haihara, Tampere | Rivitalo | 4h,k, 2xwc, khh, askarteluh, s, ph, th, uima-allas, at 485 000 € Velaton hinta 204,5 m2 Asuinpinta-ala 530,00 €/kk Hoitovastike 1978 Rakennusvuosi Tervetuloa täysin remontoituun rivitaloasuntoon, joka odottaa sinua Tampereen Haiharan kaupunginosassa, päättyvän kadun varrella.Asunnon sisätilat toivottavat sinut tervetulleeksi lämpimillä ja vaaleilla sisustussävyillään, jotka luovat avaran ja harmonisen ilmapiirin. Tässä kaksikerroksisessa kodissa on tilavat neljä huonetta sekä moderni keittiö, joka innostaa ruoanlaittoon. Kahden erillisen wc:n ansiosta arki on sujuvaa ja käytännöllistä. Alakerrassa olevat askarteluhuone ja sauna tarjoavat täydelliset puitteet rentoutumiseen ja harrastustoimintaan, ja suoraan saunaosastolta pääset pulahtamaan omaan uima-altaaseesi.Rivitaloyhtiö sijaitsee rauhaisalla ja omalla tontilla, joka on viimeistelty kauniilla ja hyvin hoidetulla puutarhalla. Terassilta aukeaa näkymä suojaiselle, lasitetulle patiolle, joka tarjoaa erinomaiset puitteet niin aamukahveille kuin illanvietoille. Taloyhtiö on tunnettu hyvästä hoidostaan, mikä takaa huoletonta asumista vuosiksi eteenpäin.Tämä huoneisto tarjoaa asukkailleen kaikki modernin asumisen edut läheltä. Kävelymatkan päästä löytyvät kattavat palvelut ja harrastusmahdollisuudet, jotka tekevät perheen arjesta paitsi sujuvaa, myös viihtyisää. Alueen loistavat ulkoilumahdollisuudet kutsuvat viettämään aikaa luonnossa ympäri vuoden.Älä jää paitsi mahdollisuudesta asua tässä unelmien kodissa. Varaa oma esittelyaika ja tule kokemaan itse, mitä tämä ainutlaatuinen asuinpaikka tarjoaa.Lisätiedot ja esittelyt:Ilkka Joensivu | 0500 920 310 | ilkka.joensivu@bo.fitaiTiina Joensivu | 040 581 6660 | tiina.joensivu@bo.fi Kiinnostaako tämä kohde?Ota meihin yhteyttä tai jätä viesti Ilkka Joensivu kiinteistönvälittäjä LKV, kaupanvahvistaja, partner 0500 920 310 ilkka.joensivu@bo.fi Tutustu välittäjään Varaa aika kalenteristani HuoneistoOsakkeet11-15HallintamuotoAsunto-osakeyhtiöHuoneluku4h,k, 2xwc, khh, askarteluh, s, ph, th, uima-allas, at Kerros/Kerroksia2/2Asuinpinta-ala204,5 m2Muut tilat0,0 m2Lisätietoja pinta-alasta4h+k+wc+vh (105m2) sekä ala-aula ja wc (18m2), yhteensä 123m2. Lisäksi kodinhoitohuone, askarteluhuone, sauna ja pesuhuone, takkahuone uima-altaalla sekä autotalli, yhteensä 81.5m2. Kaikki yhteensä 204.5m2. Kuhunkin huoneistoon kuuluu lisäksi 9m2 kylmä ulkovarasto. Yhtiöjärjestyksen mukainen. Isännöitsijäntodistuksen mukainen.Keittiön kuvaus, lisätiedot ja varustusSaareke Kasettikatto Vekkikaihtimet Televisio Kaapistot (Hahle-ovat)LiesiInduktioliesi, erillisuuniKeittiön työtasojen materiaaliKivi, muuKeittiön lattiamateriaaliLaattaKeittiön seinien materiaaliMaalattuKylpyhuoneen varustusLattialämmitys, suihku, kiinteät valaisimetKylpyhuoneen lattiamateriaaliLaattaKylpyhuoneen seinämateriaaliKaakeliWC-tilojen kuvausVarustus: lattialämmitys, peilikaappi, bidee-suihkuLukumäärä: 2Lattiamateriaalit: laattaSeinämateriaalit: kaakeliKodinhoitohuoneVarustus: pesukoneliitäntä, kuivauskaappi, pyykkikaapit, pöytätasoLattiamateriaalit: laattaSeinämateriaalit: kaakeliSaunan kuvaus, lisätiedot ja varustusSaunassa lisäksi infrapunasauna. Saunaosastolla lisäksi uima-allas sekä takka.Saunan lattiamateriaaliLaattaSaunan seinämateriaaliPuuMakuuhuoneen kuvaus, lisätiedot ja varustusLattia: Timberwise parketti Liukuovikaapistot InariaLukumäärä: 2Lattiamateriaalit: parkettiSeinämateriaalit: maalattuOleskelutilojen kuvaus, lisätiedot ja varustusLattia: Timberwise parkettiLattiamateriaalit: parkettiSeinämateriaalit: maalattuMuut säilytystilatUlkovarastoMuutostyöt huoneistossaHuoneisto remontoitu koko-naisuudessaan 9/2018- 3/2019 sekä takkahuone/uima-allas 4/2020. Listauksen tehdyistä remonteista saa välittäjältä.KuntoHyväTakkatiedotTakka Kiinteistö- ja yhtiötiedotYhtiön nimiAsunto Oy RoutarinneTontin omistusOmaTontin koko1 667,00 m2Käyttöönottovuosi1978RakennusmateriaaliTiili, betoniKattotyyppiHarjakattoKateHuopaLämmitysjärjestelmäKaukoTehdyt korjaukset ja remontit2009 Etelänpuolen otsalautojen vaihtaminen ja ulkopuolisten puupintojen maalaaminen. Autotallien ovien muuttaminen ja aukaisu koneistojen asennus. 2010 Yläpohjan lämpöeristyksen lisääminen, huopakatteen uusiminen, piippujen ulkokuoren pellitykset ja hattujen nostaminen juurikartioiden ja alipainetuulettimien asentaminen ja kattoluukkujen suurentaminen ja pellitys sekä kattoikkuna kupujen kehysten korottaminen. 2011 Yläpohjan ilmanvaihdon parantaminen. 2012 Asuntojen välisten seinäkkeiden sadevesipeltien uusiminen. 2013 Lämmönvaihtimen moottoriventtiili sekä koko säätöjärjestelmä (Ouman- säädin ja anturit uusittiin). 2014 Lämmitysjärjestelmän paisuntasäiliö uusittiin. Suoritettiin huoneistojen välinen lämmöntasaus. 2015 Julkisivun puoleiset kulkuväylät uusittiin kivilaatoiksi. Samassa yhteydessä uusittiin pihavalot ja rakennettiin maanalaiset sadevesiviemärit ja sadevesikaivot. 2016 Rakennuksen itäpäädyn rikkoontuneet tiilet vaihdettiin uusiin. 2019 Pääulko-ovet vaihdettiin ja lukoiksi valittiin ns. älylukot. (omakustannus), Etupihan syöksytorvet vaihdettiin metallisiin. (omakustannus), Etupihan lipan valot muutettiin led-valoiksi.(omakustannus), Takapihan makuuhuone ja ruokahuone ovet uusittiin.(omakustannus), Patioiden as 1 ja 3 valokatteet vaihdettiin terassilasi katteiksi. (omakustannus), Asunto 3 teetti laajennetun terassilasituksen johon haettiin kaupungin toimenpidelupa joka koskee koko taloyhtiötä, siis muutkin voi rakennuttaa samanlaisen. Takapihan värilliset lasit (v.2000) poistettu huoneistojen välistä sekä päätyhuoneistojen osalta ja rakennettu tilalle paneeli ja lasitiiliseinät. (omakustannus) 2020 Asunto 2 asennettiin terassilasikatto muovi katteen tilalle samalla vaihdettiin puiset ruoteet osin alumiinisiksi.(omakustannus), Ouman-säädin joka hoitaa taloyhtiön lämmityksen siirrettiin as 1 terassitilasta talon idän puoleiseen päätyyn räystäslinjan alapuolelle. 2021 Bio-jätten keräyksestä tehtiin yhteis-sopimus naapuritaloyhtiön kanssa. Asuntojen 2 ja 3 ikkunat vaihdettiin Skaala ikkunat . (omakustannus) Pihanpuolelle asuntojen väliaidat. 2022 Ouman säätimen ulkoanturiin sadekatos. Yhtiössä suoritettiin Suomen Vesiturva Oy:n toimesta viemärikuvaus. Kuvaus tehtiin asunto 3:n viemäreistä koska ne ovat kauimpana Tampereen Veden pääviemäristä, todettiin, että viemärit muovia ja hyvässä kunnossa eikä mitään taipumia. Sukitus todettiin turhaksi. Automaatio Center tarkisti lämmönjakohuoneen toiminnan ja vaihtoi lämmityksen säätöventtiilin ja käyttöveden kierron takaiskuventtiilin. Samalla tarkastettiin Ouman säätöventtiilin toimivuus. 2023 Katolle tehtiin Kattotutka Oy:n toimesta kattotarkastus jolloin katto todettiin kauttaaltaan hyväksi, seuraava kattokuntotutkimus n. 10 vuoden kuluttua. Yhteisösäännöt/Yhtiöjärjestys muutettiin ja nykyaikaistettiin, hyväksytty 31.07.2023 Asunto Oy Routarinne kirjattiin MML:n Huoneistorekisteriin 2024 Asunto 3 kattoluukun korotus (16.5) 2025Asunot 1 ja 2, kattoluukun korotus Tiedossa olevat tulevat korjaukset/remontitLämmönjakohuoneen porras-syöksyn kunnostaminen ja katoksen uusiminen Lämmönjakohuoneen sisäseinien vesivuotojen korjaus Roskakatoksen suunnittelu ja toteutus Käyttövesiputkien saneeraus (asunnossa A 3 on koko putkiremontti tehty omalla kustannuksellaan), joka kustannetaan yhteisesti siten, että kaikkien asuntojen yhteisistä syöttövesijohdoista haaroitettavien sivulinjojen kustannukset kuuluvat asianomaiselle osakkaalle. Autotallit3IsännöitsijäIsännöinti omatoiminen, josta vastaa hallitusKiinteistönhoitoAsukkaatTaloyhtiössä muutaTaloyhtiön hallinnassa on lämmönjakohuone ja varasto, yhteensä 20m2. Yhtiön rasitteena asunto nro 1 pihan alittava Tampereen kaupungin viemärijohto. Muita tietojaVapautuuSopimuksen mukaan AsumiskustannuksetHoitovastike530,00 €/kk (2,59 €/m2)Yhtiövastike yhteensä530,00 €Vesi35,00 €/hlö/kk HintaMyyntihinta485 000,00 € (2 371,64 €/m2)Velaton hinta485 000,00 € (2 371,64 €/m2)MaksutapaKäteinen. Sinua voisi kiinnostaa Asunnon hinta-arvio ja arviokäynti Asunnon hinta-arvio ja arviokäynti Mitä hinta-arvio maksaa tai miten arviokäyntiä varten kannattaa valmistautua? Katso vastauksemme usein kysyttyihin ky… Sneak Peek® Sneak Peek® Sneak Peek® -palvelumme on askeleen edellä! Löydä alueesi uusimmat ja upeimmat asunnot jo ennen kuin ne ilmestyvät as… Asuntovahti Asuntovahti Etsimässä uutta asuntoa? Aseta itsellesi Bo-asuntovahti. Saat tiedon heti, kun unelmiesi asunto tulee myyntiin. Bo Match Bo Match Kun asuntounelmat ja unelmien asunnot kohtaavat, syntyy Bo Match. Tutustu uudenlaiseen tapaan käydä asuntokauppaa.
Asunnon hinta-arvio ja arviokäynti Asunnon hinta-arvio ja arviokäynti Mitä hinta-arvio maksaa tai miten arviokäyntiä varten kannattaa valmistautua? Katso vastauksemme usein kysyttyihin ky…
Sneak Peek® Sneak Peek® Sneak Peek® -palvelumme on askeleen edellä! Löydä alueesi uusimmat ja upeimmat asunnot jo ennen kuin ne ilmestyvät as…
Asuntovahti Asuntovahti Etsimässä uutta asuntoa? Aseta itsellesi Bo-asuntovahti. Saat tiedon heti, kun unelmiesi asunto tulee myyntiin.
Bo Match Bo Match Kun asuntounelmat ja unelmien asunnot kohtaavat, syntyy Bo Match. Tutustu uudenlaiseen tapaan käydä asuntokauppaa.