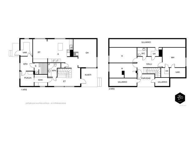
Etusivu / Uusimaa / Vantaa / Isonmännyntie 29 a 1 / 1 Isonmännyntie 29 a Ylästö, Vantaa | Omakotitalo | 4-5h+k+s/psh+wc+khh 349 000 € Velaton hinta 119,0 m2 Asuinpinta-ala Omakotitalo Vantaan YlästössäLämminhenkinen kaksitasoinen omakotitalo rauhallisella Ylästön alueella. Talo kuntotarkastettu toukokuussa 2025.Alunperin talo on rakennettu vuonna 1956 ja sitä on laajennettu ja peruskorjattu vuonna 1997.Keittiö remontoitu ja laajennettu vuonna 2019. Sähköt uusittu keittiössä. Alakerran kylpyhuone remontoitu vuonna 2021.Pohjaratkaisu tarjoaa tilaa suuremmallekin perheelle, sillä huoneisto pitää sisällään 4-5 huonetta. Talon keittiö on täydellinen ympäristö niin arki-illallisille kuin juhlallisemmillekin tilaisuuksille, ja saunassa on mahtavat löylyt puukiukaan ansioista. Kauppaan sisältyy myös palju. Lisäksi erillinen kodinhoitohuone helpottaa arjen hallintaa.Kiinteistöä ympäröi kauniisti hoidettu puutarha, joka kutsuu viettämään aikaa ulkoilmassa. Marjapensaat tuovat lisän pihapiiriin ja voit nauttia sunnuntaiaamujen kahvihetkistä lasitetulla terassilla, säistä riippumatta. Talo seisoo omalla tontillaan, josta avautuvat vihreät ja rauhalliset näkymät.Isonmännyntie sijaitsee erinomaisella paikalla lähellä Vantaan palveluita ja mainioita liikenneyhteyksiä.Alue tunnetaan suosiostaan erityisesti lapsiperheiden keskuudessa, ja lähistöltä löytyy useita päiväkoteja ja kouluja. Alueen tarjoamat puitteet tekevät arjesta sujuvaa, ja turvallinen ilmapiirin.MYYNTI JA ESITTELYT: Soita ja sovi esittely:Jaana Långström 040-616 4155jaana.langstrom@bo.fiinstagram: jaanalangstromlkv Kiinnostaako tämä kohde?Ota meihin yhteyttä tai jätä viesti Jaana Långström kiinteistönvälittäjä LKV, LVV, partner 040 616 4155 jaana.langstrom@bo.fi Tutustu välittäjään Varaa aika kalenteristani RakennusRakennusvuosi (aloitettu)1956RakennusmateriaaliPuuKattotyyppiHarjakattoKatePeltiKaton kuntoPeltikate asennettu v. 1997Asuinpinta-ala119,0 m2 (119,0 m2)Lisätietoja pinta-alastaKerrosala 145m2. Huoneistoala vanha osa 45 m2, laajennusosa 74 m2. Pinta-alat perustuvat rakennuslupapiirustuksiin.Kerrokset2Muut tilat0,0 m2IlmanvaihtojärjestelmäIlmalämpöpumppu lämmitykseen ja viilennykseen. Asennettu vuonna n.2018Lämmitysjärjestelmän kuvausSähkö, ilmalämpöpumppu, muuLämmön jakotapaSähköpatterilämmitys, sähköinen lattialämmitys, uuni/takka, muuHuoneluku4-5h+k+s/psh+wc+khhKeittiön kuvaus, lisätiedot ja varustusTopi-keittiöKeittiön muut varusteetMikroaaltouuni, astianpesukone, liesituuletin / hormiLiesiInduktioliesi, erillisuuniKeittiön työtasojen materiaaliLaminaattiKeittiön lattiamateriaaliLaminaattiKeittiön seinien materiaaliMaalattu, muuPesutilojen kuvaus, lisätiedot ja varustusSaunan pesutila uusittu 1997, suihku vuonna 2021Kylpyhuoneen varustusSuihkuseinä, lattialämmitys, wc-istuin, peili, kiinteät valaisimet, kylpyhuonekaapistoKylpyhuoneen lattiamateriaaliLaattaKylpyhuoneen seinämateriaaliKaakeliSaunaAsunnossa on saunaSaunan kuvaus, lisätiedot ja varustusVaraus sähkökiukaalle. Saunan seinät kelohonkaa.Saunan lattiamateriaaliLaattaSaunan seinämateriaaliPuuWC-tilojen kuvausVarustus: bidee-suihkuLukumäärä: 2Lattiamateriaalit: muoviSeinämateriaalit: lasikuitutapettiKodinhoitohuoneVarustus: pesukoneliitäntä, kuivauskaappi, lattialämmitys, lattiakaivo, pyykkikaapitLattiamateriaalit: laattaSeinämateriaalit: lasikuitutapettiMakuuhuoneen kuvaus, lisätiedot ja varustusLukumäärä: 3Lattiamateriaalit: laminaattiSeinämateriaalit: tapettiOleskelutilojen kuvaus, lisätiedot ja varustusLattiamateriaalit: parkettiSeinämateriaalit: tapettiMuut tilatTakkahuone/ pukuhuone Yläkerrassa on kaksi vaatehuonetta ja yksi lämmin varasto. Alakerrassa varasto.TakkatiedotTakkaMuut säilytystilatVaatehuoneTehdyt korjauksetVuonna 2017 talo pesty ja maalattu kahteen kertaan. Keittiö remontoitu ja laajennettu vuonna 2019. sähköt uusittu keittiössä. Alakerran kylpyhuone remontoitu vuonna 2021. Kattoturvatuotteen asennus vuonna 2024 Muuta kauppaan kuuluvaaPuulämmitteinen palju. Omenapuut; yksi kpl valkeakuulas ja yksi hibernal Marjapensaat: Karviaismarja; vihreä 1 ja punainen 1 Mustaherukka 2 kpl Punaherukka 2 kpl KuntoHyväEnergiatodistusKylläEnergialuokkaD2018Lisätietoja energiatodistuksestaVoimassa 21.5.2035 asti. KiinteistötiedotKiinteistötunnus92-40-211-13Kortteli/Kiinteistön nimiReijolaTyyppiOmakotitaloTontin tyyppiTasamaatonttiTontin koko730,00 m2Tontin omistusOmaPanttikirjat263 812,77 €Rasitukset ja rasitteetPanttikirjat 5 kpl yhteensä 263 812,77€ luovutetaan ostajalle lainoittamattomina kauppahinnan maksua vastaan. Sähköisten panttikirjojen siirtokuluista vastaa ostaja. Lisätietoja tontistaTie perilleVesijohtoKunnanViemäriKunnan AsumiskustannuksetKiinteistövero621,04 €Muut maksut / lisätietoa maksuistaVesi 346.71€ ( 2 hlö) Jäte 568.96€ Sähkö 1623.55 € Maksut ajalta syyskuu 24-elokuu 25 Nuohous tehty 29.12.24 Kominikin toimesta. HintaVelaton hinta349 000,00 €Myyntihinta349 000,00 € VapautuuSopimuksen mukaanMaksuehtoKäteinen. Sinua voisi kiinnostaa Asunnon hinta-arvio ja arviokäynti Asunnon hinta-arvio ja arviokäynti Mitä hinta-arvio maksaa tai miten arviokäyntiä varten kannattaa valmistautua? Katso vastauksemme usein kysyttyihin ky… Sneak Peek® Sneak Peek® Sneak Peek® -palvelumme on askeleen edellä! Löydä alueesi uusimmat ja upeimmat asunnot jo ennen kuin ne ilmestyvät as… Asuntovahti Asuntovahti Etsimässä uutta asuntoa? Aseta itsellesi Bo-asuntovahti. Saat tiedon heti, kun unelmiesi asunto tulee myyntiin. Bo Match Bo Match Kun asuntounelmat ja unelmien asunnot kohtaavat, syntyy Bo Match. Tutustu uudenlaiseen tapaan käydä asuntokauppaa.
Asunnon hinta-arvio ja arviokäynti Asunnon hinta-arvio ja arviokäynti Mitä hinta-arvio maksaa tai miten arviokäyntiä varten kannattaa valmistautua? Katso vastauksemme usein kysyttyihin ky…
Sneak Peek® Sneak Peek® Sneak Peek® -palvelumme on askeleen edellä! Löydä alueesi uusimmat ja upeimmat asunnot jo ennen kuin ne ilmestyvät as…
Asuntovahti Asuntovahti Etsimässä uutta asuntoa? Aseta itsellesi Bo-asuntovahti. Saat tiedon heti, kun unelmiesi asunto tulee myyntiin.
Bo Match Bo Match Kun asuntounelmat ja unelmien asunnot kohtaavat, syntyy Bo Match. Tutustu uudenlaiseen tapaan käydä asuntokauppaa.