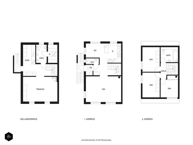
Etusivu / Varsinais-Suomi / Turku / Karjakatu 4 as 1 1 / 1 Karjakatu 4 as 1 Nummi, Turku | Paritalo | 5h, k, wc/kph, wc, wc/kph, s, var 394 000 € Velaton hinta 83,0 m2 Asuinpinta-ala 131,0 m2 Kokonaispinta-ala 2006 Rakennusvuosi Kaunis paritalokoti (rak. 2006) loistavalla sijainnilla Nummessa lähellä TYKSiä, yliopistoja ja Turun keskustaaTervetuloa tutustumaan tähän viihtyisään ja toimivaan paritalokotiin suositulla Nummen alueella! Sijainti on erinomainen: TYKS ja yliopistot sijaitsevat noin kilometrin päässä, ja rautatieasemallekin kävelet vaivattomasti. Turun keskustan monipuoliset palvelut ovat noin 2,5 kilometrin etäisyydellä, ja ympäristö on rauhallista, vehreää pientaloaluetta.Vuonna 2006 rakennettu kodikas paritalon puolikas sijaitsee omalla tontilla, joka on jaettu hallinnanjakosopimuksella. Koti jakautuu kolmeen kerrokseen tarjoten monipuoliset ja joustavat tilaratkaisut. Yläkerrassa on kolme makuuhuonetta, keskikerroksessa tilava olohuone sekä erillinen keittiö ja ruokailutila. Alakerran takkahuone soveltuu erinomaisesti esimerkiksi oleskeluun, harrastetilaksi tai etätyöpisteeksi. Jokaisessa kerroksessa on wc, ja kylpyhuoneet löytyvät sekä ylimmästä että alimmasta kerroksesta. Kodinhoitohuoneesta on suora kulku ulos, mikä tekee arjesta erityisen käytännöllistä.Suojaisa ja vehreä piha sekä terassi tarjoavat viihtyisät puitteet ulkoelämään ja rentoutumiseen.Tämä koti on erinomainen valinta niin lapsiperheelle kuin tilaa arvostavalle etätyöläiselle loistava sijainti, toimivat tilat ja rauhallinen ympäristö tekevät tästä kodista kokonaisuuden, johon on helppo ihastua. Sähköautolatausasemakin löytyy valmiina.Tervetuloa tutustumaan ja ihastumaan paikan päälle!Esittelen tätä kotia Sinulle mielelläni.Sovitaan sinulle sopiva esittelyaika.Anna-Maija Kasvi LKV, KTM0404105244anna-maija.kasvi@bo.fihttps://bo.fi/henkilo/anna-maija-kasvi/Facebook: http://www.facebook.com/annamaijabolkvInstagram: http://www.instagram.com/annamaijabolkv/ Kiinnostaako tämä kohde?Ota meihin yhteyttä tai jätä viesti Anna-Maija Kasvi kiinteistönvälittäjä LKV, KTM, partner 040 410 5244 anna-maija.kasvi@bo.fi Tutustu välittäjään Varaa aika kalenteristani RakennusRakennusvuosi (aloitettu)2005Käyttöönottovuosi2006RakennusmateriaaliPuuKattotyyppiHarjaKateTiiliAsuinpinta-ala83,0 m2 (131,0 m2)Lisätietoja pinta-alastaRakennuslupapiirustusten (2005) mukaan kerrosala on 97m2 (58,5m2+38,5m2 = keskikerros ja yläkerta). Huoneistoala näissä kerroksissa on piirustusten mukaan 83m2. Talossa on myös kellarikerros, joka ei ole mainitussa huoneistoalassa mukana (kokonaisalassa on). Pinta-aloja ei ole tarkistusmitattu. Pinta-alat saattavat nykyisten säännösten mukaan mitattuna poiketa ilmoitetuista. Kauppa ei ole pinta-alaperusteinen. Suosittelemme tarkistusmittausta tarkkojen pinta-alojen selvittämiseksi.Muut tilat48,0 m2Lämmitysjärjestelmän kuvausPuu, sähkö, muuHuoneluku5h, k, wc/kph, wc, wc/kph, s, varKeittiön kuvaus, lisätiedot ja varustusValoisa keittiö, jossa ruokailutila samassa yhteydessä. Varustelu: jääkaappi, pakastin, astianpesukone, induktioliesi, uuni, kaapistot, liesituuletin katolle.Keittiön lattiamateriaaliLaattaPesutilojen kuvaus, lisätiedot ja varustusYläkerrassa: wc-istuin, suihku/amme, allas, allaskaappi, peili. Alakerta: 2 suihkua, allaskaappi, allas, wc-istuin, peili. SaunaAsunnossa on saunaSaunan kuvaus, lisätiedot ja varustus2017 uusittu kiuasWC-tilojen kuvausJokaisessa kerroksessa wc-tila. Keskikerroksessa erillinen wc. Varustelu: wc-istuin, allas, allaskaappi, peilikaappi.KodinhoitohuoneKodinhoitohuone kodin alimmassa kerroksessa. Varustelu: kaapistot, pyykinpesukoneliitäntä, allas.Makuuhuoneen kuvaus, lisätiedot ja varustus3-4 makuuhuonekäyttöön soveltuvaa huonetilaa. Kaapistot kaikissa makuuhuoneissa (3 kpl) yläkerrassa.Lattiamateriaalit: parkettiOleskelutilojen kuvaus, lisätiedot ja varustusLattiamateriaalit: parkettiMuut tilatAlakerran huone: laattalattia, yläkaapit, takka (varaava).TulisijaNuohottu 12/2025TakkatiedotTakkaTehdyt korjaukset5/2013 Sivupihan ja takapihan kivilaatoitukset. 7/2013 Takapihan nurmikon uusinta. 6/2015 Tilanjako liukuovi olohuoneeseen. 12/2017 Saunan kiuas uusittu. 1/2018 Alakerran kylpyhuoneen "kopolaattojen" injektointi. 2/2018 Alakerran kylpyhuoneen ja saunan mikrosementointi. 6/2019 Pihan aitojen uudelleen rakentaminen. 7/2021 Talon pesu ja huoltomaalaus. 7/2024 Defa Power pörssisähköohjattu sähköauton latausasema 11 kW. 8/2024 Viemäriputken liitoksen vuoto keittiön ja rappukäytävän välillä. Putki korjattu ja kannatettu. Kosteusvaurio tutkimukset (ei vaurioita). Rappukäytävän seinän teko uudelleen + koko rappukäytävän seinien maalaus. 4/2025 Alakerran kylpyhuoneen mikrosementoinnin lakkauksen korjaukset. 5/2025 Keskikerroksen WC:n kalusteiden ja oven vaihto. 05/2025 Induktioliesi ja uuni. 12/2025 Kellarin ulko-oven lukkorungon vaihto. 12/2025 Alakerran takka ja hormi nuohottu viimeksi 12/2025. Muuta kauppaan kuuluvaaSälekaihtimet, sähköauton latausasema, komposti, jäteastia.Kauppaan ei kuuluIrtainKuntoHyväLisätietoja energiatodistuksestaMyyjä hankkii kustannuksellaan energiatodistuksen ennen kaupantekoa. KiinteistötiedotKiinteistötunnus853-11-48-10TyyppiMääräosaTontin tyyppiTasamaatonttiTontin koko467,00 m2Tontin omistusOmaPanttikirjat200 000,00 €Lisätietoja tontistaTontilla on kirjattu hallinnanjakosopimus. Myytävän on puoliosuus kiinteistöstä. Alue jaettu hallinnanjakosopimuksen karttaliitteen mukaisesti.Tie perilleVesijohtoKunnanViemäriKunnanLisätietoja rakennusoikeudestaRakennusoikeus käytetty. Muita tietojaPalvelutTYKS n. 0,7 km Yliopistot n. 1km Kupittaan juna-asema n. 1km Turun keskusta n. 2,5 km Päiväkoteja, lähin n. 300m Alakoulu n. 1,2 km AsumiskustannuksetMuut maksut / lisätietoa maksuistaVesi kulutuksen mukaan. Kiinteistövero 406,64€ (2025). Sähkö kulutuksen mukaan. Nykyisten omistajien kulutus ollut n. 17 000 kWh/vuosi. Jätehuolto sopimuksen mukaan. Varainsiirtovero 3% kauppahinnasta. Panttikirjojen siirtokulu. Kaupanvahvistajan palkkio. Lainhuudatuskulut. HintaVelaton hinta394 000,00 € (4 746,99 €/m2)Myyntihinta394 000,00 € (4 746,99 €/m2)Vapautuu1 kk kaupanteostaMaksuehtoKäteinen. Sinua voisi kiinnostaa Asunnon hinta-arvio ja arviokäynti Asunnon hinta-arvio ja arviokäynti Mitä hinta-arvio maksaa tai miten arviokäyntiä varten kannattaa valmistautua? Katso vastauksemme usein kysyttyihin ky… Sneak Peek® Sneak Peek® Sneak Peek® -palvelumme on askeleen edellä! Löydä alueesi uusimmat ja upeimmat asunnot jo ennen kuin ne ilmestyvät as… Asuntovahti Asuntovahti Etsimässä uutta asuntoa? Aseta itsellesi Bo-asuntovahti. Saat tiedon heti, kun unelmiesi asunto tulee myyntiin. Bo Match Bo Match Kun asuntounelmat ja unelmien asunnot kohtaavat, syntyy Bo Match. Tutustu uudenlaiseen tapaan käydä asuntokauppaa.
Asunnon hinta-arvio ja arviokäynti Asunnon hinta-arvio ja arviokäynti Mitä hinta-arvio maksaa tai miten arviokäyntiä varten kannattaa valmistautua? Katso vastauksemme usein kysyttyihin ky…
Sneak Peek® Sneak Peek® Sneak Peek® -palvelumme on askeleen edellä! Löydä alueesi uusimmat ja upeimmat asunnot jo ennen kuin ne ilmestyvät as…
Asuntovahti Asuntovahti Etsimässä uutta asuntoa? Aseta itsellesi Bo-asuntovahti. Saat tiedon heti, kun unelmiesi asunto tulee myyntiin.
Bo Match Bo Match Kun asuntounelmat ja unelmien asunnot kohtaavat, syntyy Bo Match. Tutustu uudenlaiseen tapaan käydä asuntokauppaa.