Vaakatie 3b

Hämevaara, Vantaa | Omakotitalo | 4h,k,s,tkh,kph

  • 479 000 €

    Skuldfritt pris

  • 157,0 m2

    Boarea

  • 181,0 m2

    Total area

  • 1999

    Byggnadsår

Tilaa, rauhaa ja arjen helppoutta Linnaisten ja Vapaalan välissä, Hämevaarassa

Asuntoa esitellään vain yksityisnäytöin, ole siis rohkeasti yhteydessä, koska kävisimme kohteeseen tutustumassa!

Tämä valoisa ja lämminhenkinen koti asettuu suurelle, omalle pihapiirille, joka tarjoaa mahdollisuuksia lähes rajattomasti. Tasainen, vehreä tontti on unelma sinulle, joka haaveilet omasta saunarakennuksesta, pihapaljusta, kasvihuoneesta tai lasten omasta leikkimaailmasta - tila ei lopu kesken. Pihalta avautuu suoraan yhteys metsään ja luontoon, mikä tekee arjesta rauhoittavaa ja kutsuu ulkoilemaan heti kotiovelta.

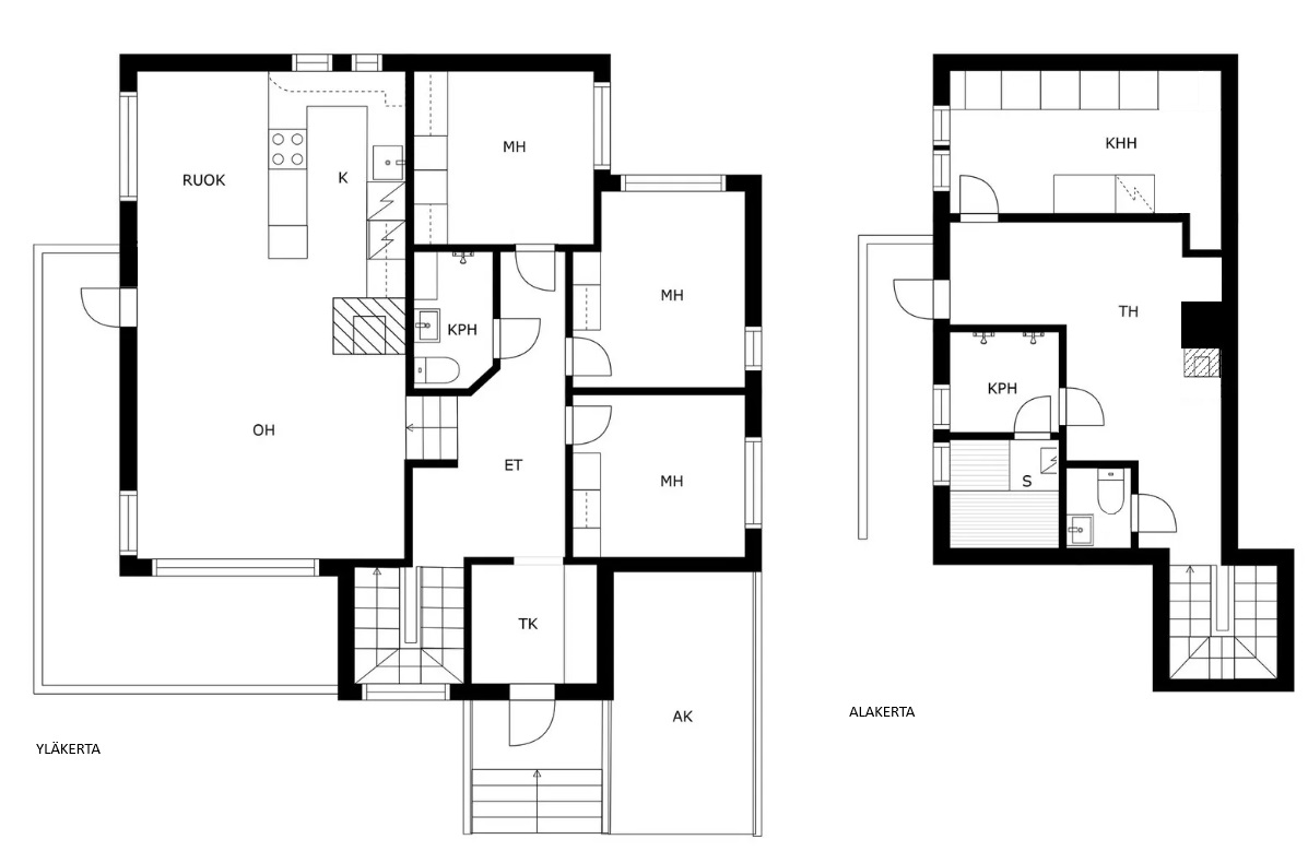
Sisällä koti avautuu käytännölliseksi ja avaraksi kokonaisuudeksi. Olohuone, keittiö ja ruokailutila muodostavat tilan, joka kokoaa perheen yhteen ja toimii arjessa selkeän mutkattomasti. Tilavaan ja avoimeen keittiöön tulvii luonnonvaloa kahdesta suunnasta ja ruuanlaitto on helppoa runsaan pöytätilan ansiosta. Makuuhuoneita on kolme, ja pohjaratkaisu mahdollistaa sujuvan arjen niin pienelle kuin suuremmallekin perheelle. Kodin parvekkeelta avautuu näkymä länteen, ja maisema tuo oman seesteisen lisänsä jokaiseen vuodenaikaan. Asunnossa oleva lattialämmitys tuo mukavuutta arkeen.

Alakerrassa sijaitsevat tilava erillinen kodinhoitohuone, kylpyhuone ja sauna sekä erillinen wc. Takkahuone lisää kodin tunnelmallisuutta ja tarjoaa oman rauhallisen tilansa iltahetkiin.

Sijainti on ehdoton valtti. Hämevaara on alue, jossa viihdytään pitkään. Täällä yhdistyvät luonnonrauha ja kaupungin mukavuudet: koulut ja päiväkodit ovat lähellä, harrastusmahdollisuuksia on runsaasti, ja suurten kauppaketjujen myymälät ja kauppakeskuksen löytyvät kivenheiton päästä mm. Myyrmanni, Kaari ja Sello. Jos halutaan vältellä ruuhkaa, Konalasta löytyy kauppakeskus Ristikko sekä monet kaupat palveluineen Pähkinärinteen kauppoja unohtamatta.

Lapsiperheille alue on poikkeuksellisen hyvä: turvallinen päättyvä tie, lyhyet välimatkat harrastuksiin ja metsä ihan omassa pihapiirissä.

Rauhallinen ympäristö, toimivat yhteydet ja tilava tontti tekevät tästä kohteesta jotakin, mitä on harvoin tarjolla: mutkatonta perhearkea luonnon helmassa.

Tervetuloa tutustumaan tähän viehättävään kotiin, joka on tehty viihtymistä varten!

Esittelyt ja myynti

Antti Myllyniemi / Bo LKV Oy

0400 667 681/ antti.myllyniemi@bo.fi

Mikäli nykyinen kotinne on vielä myymättä, kutsu minut käymään. Annan rehellisen ja realistisen hinta-arvion sekä markkinoiden toimivimman myyntisuunnitelman Bo LKV:n brändin alla.

Intresserad av denna bostad?

Kontakta oss eller lämna ett meddelande

HUONEISTO

Huoneluku
4h,k,s,tkh,kph
Kerros
1-2
Kerroksia
2
Asuinpinta-ala
157,0 m²
Muut tilat
24,0 m²
Lisätietoja pinta-alasta
Pinta-alat rakennuspiirustusten ja omistajan ilmoituksen sekä DVV:n rakennustietojen mukaan kerrosala: 119 m² ja kokonaisala: 181 m².
Pinta-aloja ei ole tarkastusmitattu ja ne saattavat poiketa olennaisestikin nykymääräysten mukaan mitattavista pinta-aloista.
Liesi
Keraaminen, erillisuuni
Keittiön muut varusteet
Astianpesukone
Keittiön työtasojen materiaali
Laminaatti
Keittiön lattiamateriaali
Laatta
Keittiön seinien materiaali
Maalattu, tapetti
Pesutilojen kuvaus, lisätiedot ja varustus
Uusittu 2013. Suihkusekoittajat uusittu 2020.
Kylpyhuoneen varustus
Lattialämmitys, suihku
Kylpyhuoneen lattiamateriaali
Laatta
Kylpyhuoneen seinämateriaali
Kaakeli
WC-tilojen kuvaus
Suihkun hana (sekoittaja) on uusittu 2026, yläkaapistot 2014 alas ja laatikosto 2024 .
Varustus: suihku, peilikaappi
Lukumäärä: 2
Lattiamateriaalit: laatta
Seinämateriaalit: kaakeli
Kodinhoitohuone
Varustus: pesukoneliitäntä
Lattiamateriaalit: betoni
Seinämateriaalit: maalattu
Sauna
Asunnossa on sauna
Saunan kuvaus, lisätiedot ja varustus
Sauna uusittu 2013.
Saunan lattiamateriaali
Laatta
Saunan seinämateriaali
Puu
Makuuhuoneen kuvaus, lisätiedot ja varustus
Lukumäärä: 3
Lattiamateriaalit: laatta
Seinämateriaalit: maalattu, tapetti
Oleskelutilojen kuvaus, lisätiedot ja varustus
Lattiamateriaalit: laatta
Seinämateriaalit: maalattu, tapetti
Muutostyöt huoneistossa
Rännit 2017, IV-kone huollettu 2020, tiilikaton huolto 2020, alakerran suihkuhanat uusittu 2020, sokkelin vierusta sepelit 2025, autokatoksen ja parvekkeen pylväiden uusiminen 2025
Kunto
Hyvä
Takka
Takka-leivinuuni ja porinmatti
Takkatiedot
Muu

KIINTEISTÖ- JA YHTIÖTIEDOT

Asuinpinta-ala
157,0 m² (181,0 m²)
Kiinteistötunnus
92-11-14-32
Tyyppi
Tontti
Tontin omistus
Oma
Tontin koko
1 018,00 m²
Tontin tyyppi
Tasamaatontti
Tontin kuvaus
Tie perille
Panttikirjat
250 730,20 €
Rakennusvuosi (aloitettu)
1998
Rakennusmateriaali
Puu, alakerran ulkoseinät: kevytsoraharkko
Kattotyyppi
Pulpettikatto
Kate
Tiilikate
Lämmön jakotapa
Sähköinen lattialämmitys, muu
Lämmitysjärjestelmän kuvaus
Muu
Ilmanvaihtojärjestelmä
Koneellinen tulo, koneellinen poisto, lämmön talteenotto
Energiatodistus
Kyllä
Lisätietoja energiatodistuksesta
Viimeinen voimassaolopäivä 09.06.2035.
Energialuokka
E2018
Rasitukset
Sähköiset panttikirjat siirretään ostajalle lainoittamattomina kaupantekotilaisuudessa, siirtokustannuksista vastaa ostaja.
Vesijohto
Kunnan
Viemäri
Kunnan
Rakennusoikeus, e-luku
0.2
Lisätietoja rakennusoikeudesta
Vantaa info +358 9 8392 2242

MUITA TIETOJA

Kaavoitus
Asemakaava
Vapautuu
Sopimuksen mukaan

ASUMISKUSTANNUKSET

Muut maksut / lisätietoa maksuista
Sekajäte tyhjennys n.25€/kk.
Sähkön kulutusmäärät/asumiskustannukset perustuvat nykykäyttöön ja voivat siten olla suurempia tai pienempiä riippuen asukasmäärästä, kulutustottumuksista ja palveluntarjoajasta.
Ostaja vastaa varainsiirtoverosta 3% velattomasta kauppahinnasta.
Kiinteistövero
1 025,00 €

HINTA

Myyntihinta
479 000,00 €
Velaton hinta
479 000,00 €
Vaakatie 3b - bild 1 Vaakatie 3b - bild 2 Vaakatie 3b - bild 3 Vaakatie 3b - bild 4 Vaakatie 3b - bild 5 Vaakatie 3b - bild 6 Vaakatie 3b - bild 7 Vaakatie 3b - bild 8 Vaakatie 3b - bild 9 Vaakatie 3b - bild 10 Vaakatie 3b - bild 11 Vaakatie 3b - bild 12 Vaakatie 3b - bild 13 Vaakatie 3b - bild 14 Vaakatie 3b - bild 15 Vaakatie 3b - bild 16 Vaakatie 3b - bild 17 Vaakatie 3b - bild 18 Vaakatie 3b - bild 19 Vaakatie 3b - bild 20 Vaakatie 3b - bild 21 Vaakatie 3b - bild 22 Vaakatie 3b - bild 23 Vaakatie 3b - bild 24 Vaakatie 3b - bild 25 Vaakatie 3b - bild 26 Vaakatie 3b - bild 27 Vaakatie 3b - bild 28 Vaakatie 3b - bild 29 Vaakatie 3b - bild 30 Vaakatie 3b - bild 31 Vaakatie 3b - bild 32 Vaakatie 3b - bild 33 Vaakatie 3b - bild 34 Vaakatie 3b - bild 35 Vaakatie 3b - bild 36 Vaakatie 3b - bild 37