Ullantie 17

Matari, Vantaa | Omakotitalo | 4-5h+k+rt+pkh+kph+s+2xerill.wc+et+aula+vh+ullakko+kellari+3xp, 102 m2, talousrakennus (2h+kph+at) 85,5 m2

  • 399 000 €

    Skuldfritt pris

  • 102,0 m2

    Boarea

  • 1928

    Byggnadsår

Tervetuloa ihastumaan tähän ainutlaatuiseen kokonaisuuteen, joka tarjoaa tilaa useassa kerroksessa!

Tämä kodikas omakotitalo kätkee sisälleen huikean määrän tilaa ja mahdollisuuksia. Talo on alunperin rakennettu vuonna 1928 ja sitä on laajamittaisesti laajennettu ja saneerattu vuosina 1985-1995.

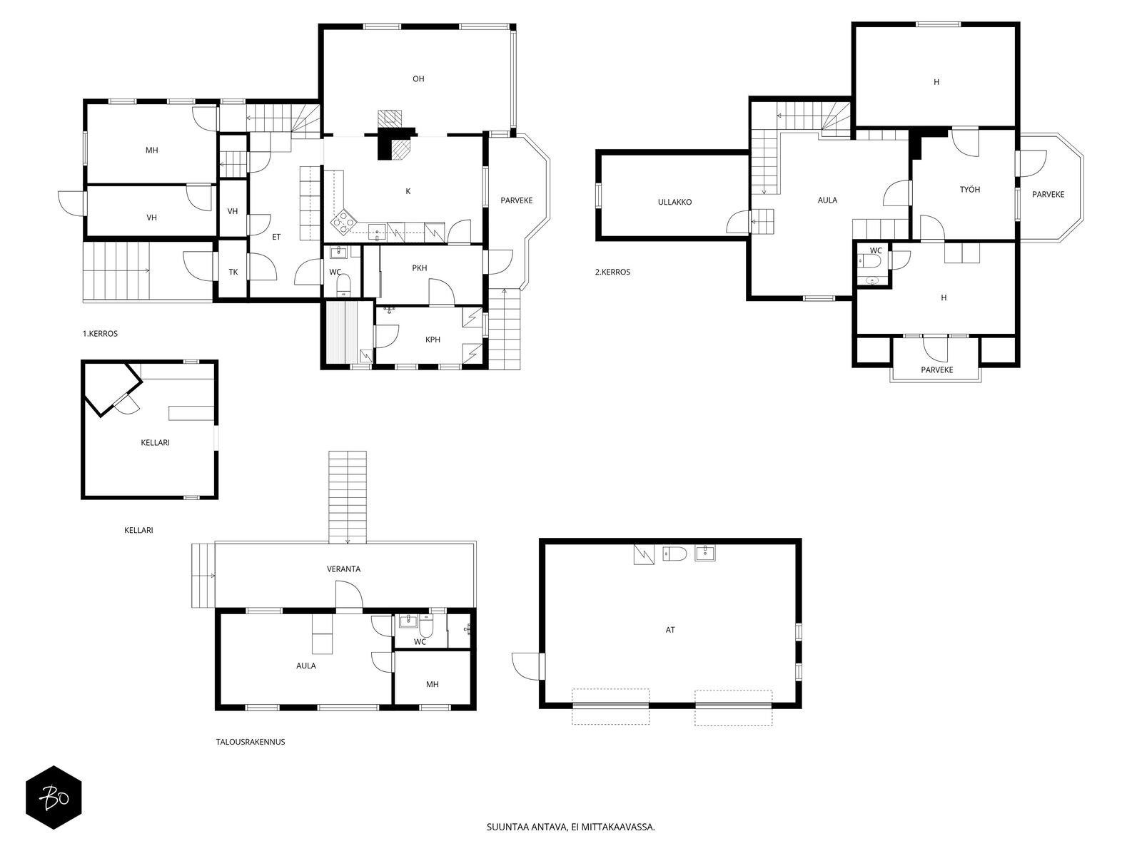
Sisääntulokerroksessa sijaitsevat keittiö, olohuone ja ruokailutila sekä saunaosasto pukuhuoneineen. Eteisen yhteydessä on erillinen wc sekä käynti kellarissa sijaitsevaan oleskelutilaan. Yläkerroksissa sijaitsevat makuuhuoneet, aulatila, työhuone sekä ullakkohuone. Talossa on myös kolme parveketta, joista kaksi on lasitettu. Niissä on mukava viettää aikaa aikaisesta keväästä myöhäiseen syksyyn saakka.

Erillinen talousrakennus soveltuu monenlaiseen käyttöön, kuten työ- tai majoitustilaksi. Talousrakennuksen yläkerrassa on kaksi huonetta sekä kylpyhuone, alakerrassa tilava autotalli. Talon pihalla sijaitsevat grillikota ja kesäkeittiö kutsuvat viettämään kesäiltoja perheen ja ystävien kanssa. Lapsiperheiden iloa lisäävät leikkimökki ja pihasta löytyy myös palju rentoutumiseen. Viherpeukaloille piha tarjoaa rajattomasti mahdollisuuksia.

Kiinteistö sijaitsee vehreällä omakotitaloalueella, joka tarjoaa rauhallista asumista kauniissa ympäristössä. Sijainti on ideaali lapsiperheelle: rauhallinen pientaloalue, jossa on hyvät ulkoilumahdollisuudet ja turvallinen ympäristö lasten leikkeihin. Palvelut, kuten koulut, päiväkodit ja kaupat, ovat lyhyen matkan päästä, mikä tekee arjesta sujuvaa ja vaivatonta. Tämä koti yhdistää ainutlaatuisella tavalla historiansa ja modernit mukavuudet, tarjoten samalla asukkailleen viihtyisän ja aktiivisen elämäntavan.

Tule tutustumaan tähän upeaan kotiin, joka ihastuttaa kokonaisvaltaisesti sekä tilojensa että ympäristönsä puolesta. Tämä voi olla perheesi unelmien koti!

Sini Virta
kiinteistönvälittäjä LKV, LVV, KED, partner
040 568 3482
sini.virta@bo.fi

Intresserad av denna bostad?

Kontakta oss eller lämna ett meddelande

HUONEISTO

Huoneluku
4-5h+k+rt+pkh+kph+s+2xerill.wc+et+aula+vh+ullakko+kellari+3xp, 102 m², talousrakennus (2h+kph+at) 85,5 m²
Kerros
1-5
Kerroksia
5
Asuinpinta-ala
102,0 m²
Lisätietoja pinta-alasta
Rakennus- ja huoneistorekisterin (epävirallinen) mukaan päärakennuksen huoneistoala on 102 m², kerrosala 188 m² ja kokonaisala 212 m².
Kohteen tarkkaa asuinpinta-alaa/kerrosalaa/kokonaisalaa ei ole saatavilla.
Pinta-aloja ei ole tarkastusmitattu.
Liesi
Induktio, erillisuuni
Keittiön muut varusteet
Astianpesukone, kiinteät valaisimet, liesituuletin / suodatin
Keittiön työtasojen materiaali
Kivi
Keittiön lattiamateriaali
Laminaatti
Keittiön seinien materiaali
Maalattu
Kylpyhuoneen varustus
Pesukoneliitäntä, lattialämmitys, suihku
Kylpyhuoneen lattiamateriaali
Laatta
Kylpyhuoneen seinämateriaali
Kaakeli
WC-tilojen kuvaus
Varustus: lattialämmitys, peilikaappi, bidee-suihku
Lukumäärä: 2
Lattiamateriaalit: laatta
Seinämateriaalit: puu
Sauna
Asunnossa on sauna
Saunan lattiamateriaali
Laatta
Saunan seinämateriaali
Puu
Makuuhuoneen kuvaus, lisätiedot ja varustus
Lukumäärä: 3
Lattiamateriaalit: laminaatti
Seinämateriaalit: maalattu
Oleskelutilojen kuvaus, lisätiedot ja varustus
Lattiamateriaalit: laminaatti
Seinämateriaalit: maalattu, tapetti
Muut säilytystilat
Vaatehuone
Muuta kauppaan kuuluvaa
Diesel-kamiinalla varustettu palju (vaihdettavissa puukamiinaan)
Muutostyöt huoneistossa
2020 Pintaremontti, seinien maalaus sekä keittiön tasojen ja ovien uusiminen.
2021 Kylpyhuone ja sauna
2021 Terassi ja kesäkeittiö
2025 Alapohjan kunnostus
Tehdyistä remonteista ei ole saatavilla asiakirjoja.
Kunto
Hyvä
Takka
Talossa on kaksi takkaa. Varaava takka keittiössä, nuohottu 6.10.2025. Olohuoneen takka ei ole käytössä.
Takkatiedot
Takka, hormi olemassa
Kauppaan ei kuulu
Lipputanko

KIINTEISTÖ- JA YHTIÖTIEDOT

Asuinpinta-ala
102,0 m²
Kiinteistötunnus
92-80-106-15
Tyyppi
Tontti
Tontin omistus
Oma
Tontin koko
1 407,00 m²
Tontin tyyppi
Rinnetontti
Tontin kuvaus
Tie perille
Panttikirjat
330 228,19 €
Käyttöönottovuosi
1928
Rakennusmateriaali
Puu
Muut rakennukset
Muita rakennuksia, Leikkimökki, Talousrakennus
Erillinen 2-kerroksinen talousrakennus. Talousrakennuksen yläkerta toimii esim. työ- tai vierastilana.
Talousrakennuksen rakennuslupapäätös 18.12.1998, lupanro 1089/98. Loppukatselmus 25.11.2003.
Talousrakennuksessa 85,5 m² (yläkerta 31,5 m², jossa olohuone, makuuhuone ja kph sekä alakerta, jossa autotalli 54 m²).

Tontilla on myös kesäkeittiö, grillikota ja leikkimökki.
Grillikodan toimenpidelupa 20.10.1999, lupatunnus I-372-99.
Kattotyyppi
Harjakatto
Kate
Pelti
Lämmön jakotapa
Sähköpatterilämmitys, sähköinen lattialämmitys
Lämmitysjärjestelmän kuvaus
Puu, sähkö, ilmalämpöpumppu
Ilmanvaihtojärjestelmä
Painovoimainen
Energiatodistus
Kyllä
Lisätietoja energiatodistuksesta
Voimassa 2.10.2035 asti
Energialuokka
D2018
Vesijohto
Kunnan
Viemäri
Kunnan
Rakennusoikeus, e-luku
0.2
Lisätietoja rakennusoikeudesta
Vantaan kaupunki p. 09-84911

MUITA TIETOJA

Kaavoitus
Asemakaava, Yleiskaava
Vapautuu
Sopimuksen mukaan, viimeistään 2 kk kuluttua kaupan teosta

ASUMISKUSTANNUKSET

Muut maksut / lisätietoa maksuista
Ilmoitetut asumiskustannukset perustuvat nykykäyttöön ja voivat siten olla suurempia tai pienempiä riippuen asukasmäärästä, asumistottumuksista sekä palveluntarjoajasta.

Varainsiirtovero 3 %
Vesi ja jätevesi
57 €
Sähkölämmitys
240,00 €
Kiinteistövero
884,00 €
Puhtaanapito
29 €

HINTA

Myyntihinta
399 000,00 €
Velaton hinta
399 000,00 €
Ullantie 17 - bild 1 Ullantie 17 - bild 2 Ullantie 17 - bild 3 Ullantie 17 - bild 4 Ullantie 17 - bild 5 Ullantie 17 - bild 6 Ullantie 17 - bild 7 Ullantie 17 - bild 8 Ullantie 17 - bild 9 Ullantie 17 - bild 10 Ullantie 17 - bild 11 Ullantie 17 - bild 12 Ullantie 17 - bild 13 Ullantie 17 - bild 14 Ullantie 17 - bild 15 Ullantie 17 - bild 16 Ullantie 17 - bild 17 Ullantie 17 - bild 18 Ullantie 17 - bild 19 Ullantie 17 - bild 20 Ullantie 17 - bild 21 Ullantie 17 - bild 22 Ullantie 17 - bild 23 Ullantie 17 - bild 24 Ullantie 17 - bild 25 Ullantie 17 - bild 26 Ullantie 17 - bild 27 Ullantie 17 - bild 28 Ullantie 17 - bild 29 Ullantie 17 - bild 30 Ullantie 17 - bild 31 Ullantie 17 - bild 32 Ullantie 17 - bild 33 Ullantie 17 - bild 34 Ullantie 17 - bild 35 Ullantie 17 - bild 36 Ullantie 17 - bild 37 Ullantie 17 - bild 38 Ullantie 17 - bild 39 Ullantie 17 - bild 40 Ullantie 17 - bild 41 Ullantie 17 - bild 42 Ullantie 17 - bild 43 Ullantie 17 - bild 44 Ullantie 17 - bild 45 Ullantie 17 - bild 46 Ullantie 17 - bild 47 Ullantie 17 - bild 48 Ullantie 17 - bild 49 Ullantie 17 - bild 50 Ullantie 17 - bild 51 Ullantie 17 - bild 52 Ullantie 17 - bild 53 Ullantie 17 - bild 54 Ullantie 17 - bild 55 Ullantie 17 - bild 56 Ullantie 17 - bild 57 Ullantie 17 - bild 58 Ullantie 17 - bild 59 Ullantie 17 - bild 60 Ullantie 17 - bild 61 Ullantie 17 - bild 62 Ullantie 17 - bild 63