Noidanniementie 286

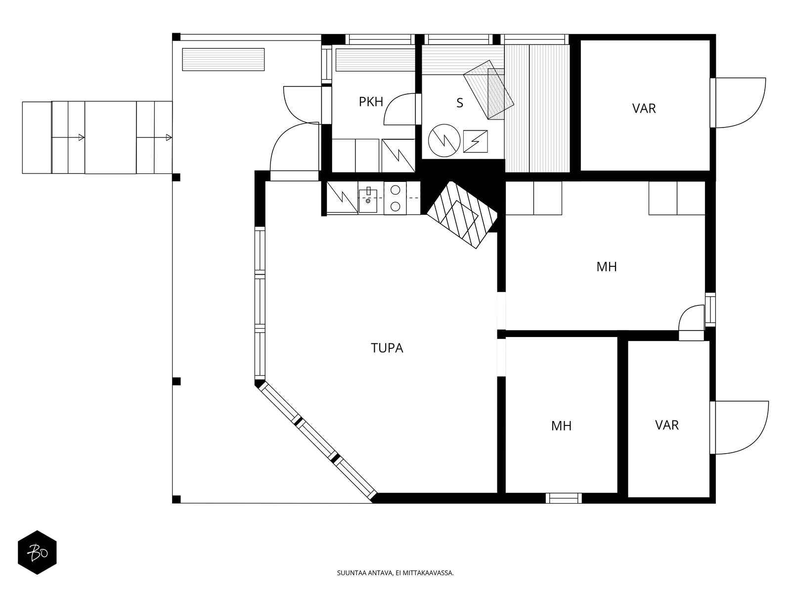
Noidanniemi, Iitti | Mökki Tai Huvila | Saunamökki 1: tupak,2mh,pkh,s,2var,terassi Mökki 2: Tupa,mh,k,veranta.las.ter. Aitta,savusauna,huvimaja,puucee.

  • 270 000 €

    Skuldfritt pris

  • 112,0 m2

    Boarea

  • 136,0 m2

    Total area

Kappale kauneinta Suomea!
Henkeäsalpaavan kauniilla paikalla Iiitissä Urajärven rantamaisemissa!
Tämä 8150 m2 vapaa-ajankohde luonnon hiekkarantoineen hurmaa ensisilmäyksellä. Kohde on ollut saman suvun omistuksessa jo v.1936 lähtien ja ollut rakas kesänviettopaikka kaikille suvun jäsenille. Rakennukset ovat jo iäkkäitä, mutta niistä on pidetty hyvää huolta. Saunamökki v. 1989 on talviasuttava, kesäasumiseen soveltuu mökki 2 rv.1936. Lisäksi on aittarakennus v.1946 jonka alakerta on alunperin toiminut venevajana ja myöhemmin tilana, jossa on pidetty erilaisia juhlia ja illanistujaisia. Aitan on käsin veistänyt paikallinen asukas tontin hirsistä. Pihapiiristä Löytyy myös savusauna v.1988, huvimaja ja puucee sekä ja saunamökin edessä sijaitsevalta aurinkoterassilta saa ihastella kauniita maisemia. Upea, pitkä laituri on kiinnitetty kiveen, joten sitä ei talven jäät häiritse.
Tontin rinteessä on runsaasti puustoa, lähinnä mäntyä, joten polttopuuta on riittämiin. Vesi järvestä on johdettu saunamökiin ja toiseen mökkiin. Juomaveden saa porakaivosta. Saunamökissä ja toisessa mökissä on sähköpatterit. Saunamökissä on myös ilmalämpöpumppu.
Laiturin viereen sopii isompikin vene ja veneellä pääsee pitkälle niin Päijänteelle, Lahteen, Jyväskylään kuin Viitasaarellekin saakka. Pihapiirissä riittää puuhastelua ja lähimaastoissa reippailla, marjastaa, sienestää ja toki metsästystäkin voi harrastaa liittymällä paikalliseen metsästyseuraan. Iitin palvelut käytettävissä ja golfkentällekin voi ajaa vaikka veneellä.
Tämä upea kohde on nähtävä paikan päällä joten varaa oma esittelyaika.
Lisätietoja ja esittelyt:
Hannele Leivo-Savioja| 0400 295 104 | hannele@bo.fi I
Kiinteistönvälittäjä LKV, Kiat, Partner
Bo LKV Lahti

Intresserad av denna bostad?

Kontakta oss eller lämna ett meddelande

HUONEISTO

Huoneluku
Saunamökki 1: tupak,2mh,pkh,s,2var,terassi Mökki 2: Tupa,mh,k,veranta.las.ter. Aitta,savusauna,huvimaja,puucee.
Kerros
1
Kerroksia
1
Asuinpinta-ala
112,0 m²
Muut tilat
24,0 m²
Lisätietoja pinta-alasta
Saunamökki n. 57m², mökki 2 n. 55m² ja aitta 24m²
Keittiön kuvaus, lisätiedot ja varustus
Saunamökki: Tupakeittiö, jossa keittiökalusteet, jääkaappi, hella, uuni, liesituuletin, mikroaaltouuni, leivinuuni, allas, hana johon vesi tulee järvestä. Seinä ja lattia puuta ja isoista ikkunoista näkymät järvelle.
Mökki 2: Pikkukeittiö jossa varustus: keittiökalustus, jääkaappi, pieni astianpesukone, hella, liesi. Allas , hana johon vesi johdettu järvestä. Seinät ja lattia puuta.
Pesutilojen kuvaus, lisätiedot ja varustus
Pesutila saunan yhteydessä.
WC-tilojen kuvaus
Pihalla on puucee.
Sauna
Asunnossa on sauna
Saunan kuvaus, lisätiedot ja varustus
Saunamökin saunaan on vesi johdettu järvestä, vedenlämmityspata ja puulämmitteinen kiuas, jossa pieni vedenlämmityssäiliö. Saunan yhteydessä on pukuhuone, joss on myös pyykinpesukone.
Pihapiirissä on myös pieni savusauna.
Makuuhuoneen kuvaus, lisätiedot ja varustus
Saunamökki: kaksi makuuhuonetta.
Mökki 2: Yksi makuuhuone ja makuutilat myös tuvassa.
Oleskelutilojen kuvaus, lisätiedot ja varustus
Saunamökki: Tupa jonka yhteydessä keittiö ja varaava leivinuuni. Isoista ikkunoista näkymät järvelle. Sähköpatterit ja ilmalämpöpumppu. Lattia ja seinät puuta.
Mökki 2: iso tupa, jossa avotakka ja ikkunat järven suuntaan. Yhdellä seinällä on kiinteät kerrossängyt.
Muut huonetilat
Saunamökki: terassi, kaksi varastoa.
Mökki 2: eteinen, veranta, lasitettu terassi, vh.
Aitta: Alhaalla ollut aikaisemmin venevaja ja nykyisellään oleskelutila jota käytetty mm. erilaisiin illanistujaisiin ja ylhäällä on kaksi "makuutilaa". Nykyisellään lähinnä varastotilana.
Huvimaja, jossa muurattu grilli. Avattavat ikkunat.
Savusauna v. 1988.
Puucee.
Muutostyöt huoneistossa
Mökki 2 avotakka ja hormi rakennettu uudelleen v.1997. Rantaterassi tehty v. 2017.
Savusaunan katto ja portaat uusittu v.2020.
Porakaivovesi on tarkastettu 10.2025,
nuohous tehty 6.10.2025.
Huoltotöitä ja pieniä korjauksia on tehty vuosien varrella tarpeen mukaan.
Kunto
Välttävä
Lisätietoa kunnosta
Rakennukset ovat jo iäkkäita ja myydään siinä kunnossa kuin ne ovat. Saunamökki v. 1989 on ainoastaan talviasuttava.

KIINTEISTÖ- JA YHTIÖTIEDOT

Asuinpinta-ala
112,0 m² (136,0 m²)
Kiinteistötunnus
142-408-2-50
Tyyppi
Vapaa-ajan asunto
Kortteli/Kiinteistön nimi
Suviranta
Tontin omistus
Oma
Tontin koko
8 150,00 m²
Tontin tyyppi
Rantatontti
Tontin kuvaus
Iitin kunta.
Tie perille
Pihan kuvaus
Kaunis rantatontti, jossa upeaa hiekkarantaa n.40m ja rantaviivaa yhteensä n. 80m. Kaikki rakennukset sijaitsevat melko lähellä rantaa. Juomavesi porakaivosta. Saunalle sekä mökkien keittiöihin johdettu vesi järvestä. Pihalla on kolme puutarhaletkuliitäntää (järvivesi, kesällä) Upea 15,4m pituinen laituri joka voi olla paikallaan talvet, järvessä suuri kivi johon laiturin saa kiinnitettyä. Saunamökin edustalla on 11m² rantaterassi ( v.2017) josta saa ihastella upeaa järvimaisemaa ja laituriin pääsee vähän isommallakin veneellä. Veneellä pääsee Päijänteelle, Lahteen, Jyväskyään ja Viitasaarelle asti.
Rakennusvuosi (aloitettu)
1989
Käyttöönottovuosi
1989
Rakennusmateriaali
Puu, hirsi
Rakennusmateriaalin kuvaus
V. 1989 saunamökki: puurakenteinen, villa eristetty, talviasuttava.
v. 1936 mökki 2 : laajennus 1940, puu/hirsirakenteinen, tiilikatto ( ei talviasuttava)
v. 1946 aitta: käsin veistetty hirsi, huopakatto
Muut rakennukset
Pihapiirissä on kahden mökin ja aitan lisäksi: Savusauna, huvimaja ja puucee.
Kattotyyppi
Aumakatto
Kate
Huopakate
Katon kunto
Alkuperäinen, huopakate uusittu tarpeen mukaan
Lämmitysjärjestelmä
Sähköpatterilämmitys, ilmalämpöpumppu, muu. Alkuperäinen
Lämmitysjärjestelmän kuvaus
Puu, sähkö, ilmalämpöpumppu
Ilmanvaihtojärjestelmä
Painovoimainen
Lisätietoja energiatodistuksesta
Kohteelle ei lain mukaan tarvita energiatodistusta.
Vesijohto
Porakaivo, Vesi johdettu järvestä saunaan ja molempien mökkien keittiöihin.
Veden laatu ja riittävyys
Hyvä. Kaivo tehty -80 luvulla., syvyys 108m². Käytetty juomavetenä. Kaivovesinäyte josta raportti 21.10.2025
Viemäri
Saostuskaivo
Rakennusoikeus
200,0 m²
Lisätietoja rakennusoikeudesta
Iitin kunta

MUITA TIETOJA

Kaavoitus
Yleiskaava
Omaa rantaviivaa, metriä
80 m
Rannan kuvaus
N. 40m rantaviivasta hiekkarantaa.
Vesistön nimi
Urajärvi, Iitti
Vapautuu
Sopimuksen mukaan

ASUMISKUSTANNUKSET

Muut maksut / lisätietoa maksuista
Sähkö kulutuksen mukaan.
Tiemaksu 66 euroa vuodessa.
Kiinteistövero
650,00 €
Tiemaksut
66,00 €

HINTA

Myyntihinta
270 000,00 € (2 410,71 €/m²)
Velaton hinta
270 000,00 € (2 410,71 €/m²)
Noidanniementie 286 - bild 1 Noidanniementie 286 - bild 2 Noidanniementie 286 - bild 3 Noidanniementie 286 - bild 4 Noidanniementie 286 - bild 5 Noidanniementie 286 - bild 6 Noidanniementie 286 - bild 7 Noidanniementie 286 - bild 8 Noidanniementie 286 - bild 9 Noidanniementie 286 - bild 10 Noidanniementie 286 - bild 11 Noidanniementie 286 - bild 12 Noidanniementie 286 - bild 13 Noidanniementie 286 - bild 14 Noidanniementie 286 - bild 15 Noidanniementie 286 - bild 16 Noidanniementie 286 - bild 17 Noidanniementie 286 - bild 18 Noidanniementie 286 - bild 19 Noidanniementie 286 - bild 20 Noidanniementie 286 - bild 21 Noidanniementie 286 - bild 22 Noidanniementie 286 - bild 23 Noidanniementie 286 - bild 24 Noidanniementie 286 - bild 25 Noidanniementie 286 - bild 26 Noidanniementie 286 - bild 27 Noidanniementie 286 - bild 28 Noidanniementie 286 - bild 29 Noidanniementie 286 - bild 30 Noidanniementie 286 - bild 31 Noidanniementie 286 - bild 32 Noidanniementie 286 - bild 33 Noidanniementie 286 - bild 34 Noidanniementie 286 - bild 35 Noidanniementie 286 - bild 36 Noidanniementie 286 - bild 37 Noidanniementie 286 - bild 38 Noidanniementie 286 - bild 39 Noidanniementie 286 - bild 40 Noidanniementie 286 - bild 41 Noidanniementie 286 - bild 42 Noidanniementie 286 - bild 43 Noidanniementie 286 - bild 44 Noidanniementie 286 - bild 45 Noidanniementie 286 - bild 46 Noidanniementie 286 - bild 47 Noidanniementie 286 - bild 48 Noidanniementie 286 - bild 49 Noidanniementie 286 - bild 50 Noidanniementie 286 - bild 51 Noidanniementie 286 - bild 52 Noidanniementie 286 - bild 53 Noidanniementie 286 - bild 54 Noidanniementie 286 - bild 55 Noidanniementie 286 - bild 56 Noidanniementie 286 - bild 57 Noidanniementie 286 - bild 58