Omakotitie 6

Asola, Hartola | Omakotitalo | Oh, k, 2-3 mh, s, ph, wc, vh.

  • 78 000 €

    Skuldfritt pris

  • 90,0 m2

    Boarea

  • 92,0 m2

    Total area

  • 1977

    Byggnadsår

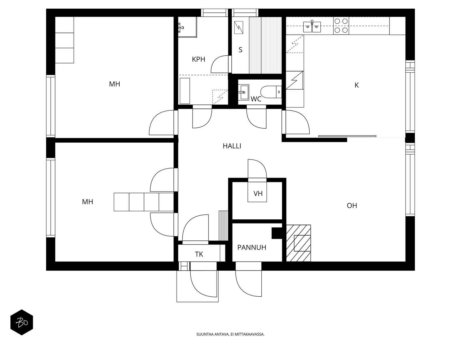
Yksitasoinen ja hyvässä kunnossa pidetty omakotitalo.

Selkeä pohjaratkaisu toimii arjessa. Keittiö on riittävän tilava ruokapöydälle ja viereinen olohuone takkoineen luo omat puitteet rauhoittumiseen tai TV:n katseluun. Tällä hetkellä asunnossa on kaksi makuuhuonetta, toinen makuuhuone antaa mahdollisuuden väliseinän avulla jakaa sen kahdeksi makuuhuoneeksi, jolloin makuuhuoneita on kolme.
Hyvän kokoinen pesuhuone ja sauna muodostavat oman tilansa ja eteisessä on erillinen wc.
Taloa on remontoitu vuosien varrella mm. tasakatto muutettu aumakatoksi 1989, kylpyhuone saneerattu 2015, keittiön kaapistot ja tasot 2019, aurinkopaneelit, akusto ja korvausilmakoneet on rakennettu ja ikkunat on uusittu 2023.

Osta tästä kompakti koti lähellä kaikkea Hartolassa.

Haluatko varata oman esittelyajan:
Markku Heikkilä
0400 285 007

Isabella Sarres
044 200 4827

Intresserad av denna bostad?

Kontakta oss eller lämna ett meddelande

HUONEISTO

Huoneluku
Oh, k, 2-3 mh, s, ph, wc, vh.
Kerros
1
Kerroksia
1
Asuinpinta-ala
90,0 m²
Muut tilat
2,0 m²
Lisätietoja pinta-alasta
Tekninen tila 2 m². Ulkovaja 7,5 m².
Keittiön kuvaus, lisätiedot ja varustus
Keittiön kaapistot uusittu 2019, samalla uusittu myös kv-putket
Liesi
Keraaminen
Keittiön muut varusteet
Astianpesukone, liesituuletin / hormi
Keittiön lattiamateriaali
Vinyyli
Keittiön seinien materiaali
Maalattu
Pesutilojen kuvaus, lisätiedot ja varustus
Kph uusittu 2015, suihku 2025
Wc-istuin, lavuaari ja kv-putket 2019
Kylpyhuoneen varustus
Wc-istuin, peilikaappi
Kylpyhuoneen lattiamateriaali
Laatta
Kylpyhuoneen seinämateriaali
Kaakeli
Sauna
Asunnossa on sauna
Saunan kuvaus, lisätiedot ja varustus
Puukiuas 2020, nuohottu vuosittain.
Saunan lattiamateriaali
Laatta
Saunan seinämateriaali
Puu
Makuuhuoneen kuvaus, lisätiedot ja varustus
Lukumäärä: 2
Lattiamateriaalit: parketti, laminaatti
Seinämateriaalit: tapetti
Oleskelutilojen kuvaus, lisätiedot ja varustus
Olohuoneessa takka
Lattiamateriaalit: vinyyli
Seinämateriaalit: tapetti
Muut huonetilat
Toisessa makuuhuoneessa laminaatta ja toisessa parketti
Muut säilytystilat
Vaatehuone, ulkovarasto
Muutostyöt huoneistossa
Suihku vaihdettu 2025
Ikkunat uusittu 2023
Aurinkopaneelit ja akusto asennettu 2021
Korvausilmakoneet 2021.
Vinyylilattiat 2020 (Oh, k, et)
Saunana puukiuas 2020.
Keittiön kaapistot ja kv-putket 2019.
Wc-istuin, lavuaari ja kv-putket 2019.
KPH uusittu (vedeneristys) 2015
Lämminvesivaraaja 2021.
Kunto
Tyydyttävä
Takka
Tiilitakka, ei varaava, nuohottu vuosittain.
Takkatiedot
Takka

KIINTEISTÖ- JA YHTIÖTIEDOT

Asuinpinta-ala
90,0 m² (92,0 m²)
Kiinteistötunnus
81-401-1-1729
Tyyppi
Tila
Kortteli/Kiinteistön nimi
Pellonreuna
Tontin omistus
Oma
Tontin koko
0,12 ha
Tontin tyyppi
Tasamaatontti
Tontin kuvaus
Tie perille
Panttikirjat
102 568,46 €
Rakennusvuosi (aloitettu)
1975
Käyttöönottovuosi
1977
Rakennusmateriaali
Tiili
Muut rakennukset
Varasto
Ulkovarasto n. 7,5 m² ja katos.
Kattotyyppi
Auma
Kate
Peltikate
Lämmön jakotapa
Vesikiertoinen patterilämmitys
Lämmitysjärjestelmän kuvaus
Öljy, sähkö
Ilmanvaihtojärjestelmä
Painovoimainen
Rajoitukset
Omakotirakennusten ja muiden enintään kahden perheen talojen korttelialue.
Vesijohto
Kunnan
Viemäri
Kunnan

MUITA TIETOJA

Kaavoitus
Asemakaava
Vapautuu
1 kk kaupasta

ASUMISKUSTANNUKSET

Muut maksut / lisätietoa maksuista
Öljyä ei viimeaikoina ole käytetty, lämmitys sähköllä.
Vesi ja jätevesi
30 €
Lämmityskulut
100,00 €
Kiinteistövero
196,76 €

HINTA

Myyntihinta
78 000,00 €
Velaton hinta
78 000,00 €
Omakotitie 6 - bild 1 Omakotitie 6 - bild 2 Omakotitie 6 - bild 3 Omakotitie 6 - bild 4 Omakotitie 6 - bild 5 Omakotitie 6 - bild 6 Omakotitie 6 - bild 7 Omakotitie 6 - bild 8 Omakotitie 6 - bild 9 Omakotitie 6 - bild 10 Omakotitie 6 - bild 11 Omakotitie 6 - bild 12 Omakotitie 6 - bild 13 Omakotitie 6 - bild 14 Omakotitie 6 - bild 15 Omakotitie 6 - bild 16 Omakotitie 6 - bild 17 Omakotitie 6 - bild 18 Omakotitie 6 - bild 19 Omakotitie 6 - bild 20 Omakotitie 6 - bild 21