Parkkisentie 22

Parkkisenkangas, Oulu | Omakotitalo | 5h, k, khh, s

  • 595 000 €

    Skuldfritt pris

  • 213,0 m2

    Boarea

  • 256,0 m2

    Total area

  • 2002

    Byggnadsår

Nästa visning: 19.4.2026 kl. 12:00-12:30

Tervetuloa Parkkisenkankaalle!

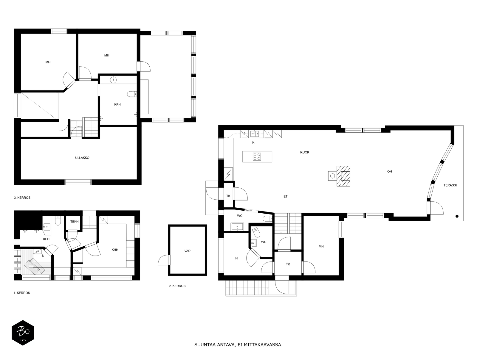
Arkkitehdin suunnittelema hulppea kivitalo suojaisalla omalla pihalla vapautuu piakkoin uusille onnellisille asukkailleen. Kokonaisuus on henkeä salpaava. Olohuoneen, ruokailutilan ja keittiön pinta-ala on yli 70 neliötä ja olohuone on avoinna kahden kerroksen verran. Oleskelutiloissa on isot ikkunat lisäämässä tilojen avaruutta ja valoisuutta. Ruokailutilan ja olohuoneen välissä on upea takka-leivinuuni kokonaisuus. Ruokailutilaan sopii isompikin ruokailuryhmä ja keittiössäkin on tilaa aamupalapöydälle. Keittiössä on kivitasot ja puiset kaapistot sekä saareke ruuanlaittoa varten.

Kodin pohjakerroksessa on yleellinen saunaosasto ja kodinhoitotilat. Kylpyhuoneessa on kahden suihkun lisäksi varaus poreammeelle/kylpyammeelle. Kodinhoitohuoneessa on runsaasti taso-ja säilytystilaa kodin pyykkihuollolle.

Kodin toisessa kerroksessa on tilavat ja avarat makuuhuoneet; päämakuuhuone on noin 40 m2 joka jakautuu kahteen osaan sekä noin 12 m2 kokoinen makuuhuone. Lisäksi toisessa kerroksessa on erillinen työtila omalla kylpyhuoneella ja sisäänkäynnillä. Myös makuuhuoneiden läheisyydessä on kylpyhuone/WC, joka on remontoitu v. 2020. Ullakkovaraustila on otettu käyttöön ja toiminut vuosien saatossa lukutilana, lasten leikkitilana ja vieraiden majoitustilana.

Alunperin talo on suunniteltu siten, että työtilat ovat kodin kanssa samassa yhteydessä mutta asuintiloista erillään. Työtiloihin on kulku sekä kodin sisältä että ulkokautta. Tässä on oiva mahdollisuus mm. yrittäjälle, joka tarvitsee omat toimitilat kodin läheisyydestä. Työtilat on mahdollista ottaa myös asuinkäyttöön. Tämä kokonaisuus on asunto-osakeyhtiömuotoinen, joten varainsiirtovero on vain 1,5% kauppahinnasta. Omistajaa kiinnostaa myös vaihtokauppa osakauppahintana kerrostalohuoneistoon.

Sovi oma esittelyaikasi tähän uniikkiin ja upeaan kotiin!
Eija Tyybäkinoja | 0400 941 615 | eija.tyybakinoja@bo.fi

Intresserad av denna bostad?

Kontakta oss eller lämna ett meddelande

HUONEISTO

Osakkeet
1-250
Hallintamuoto
Asunto-osakeyhtiö
Huoneluku
5h, k, khh, s
Kerros
1-2
Kerroksia
2
Asuinpinta-ala
213,0 m²
Muut tilat
43,0 m²
Lisätietoja pinta-alasta
Rakennusvalvonnan mukaan talon kerrosala on 213m² ja kokonaisala 256m². Lisäksi kellaritiloja 43m².
Kellaritiloissa sijaitsevat kodinhoitohuone ja saunaosasto.
Parveke
Lasitettu
Liesi
Keraaminen, erillisuuni
Keittiön muut varusteet
Liesikupu, astianpesukone, kiinteät valaisimet
Keittiön työtasojen materiaali
Kivi
Keittiön lattiamateriaali
Laatta
Keittiön seinien materiaali
Kaakeli, maalattu
Pesutilojen kuvaus, lisätiedot ja varustus
Kodissa on kolme kylpyhuonetta, kylpyhuoneosasto pohjakerroksessa, työhuoneen yhteydessä yksi ja yläkerrassa yksi. Yläkerran kylpyhuone on remontoitu v.2020.
Kylpyhuoneen varustus
Suihku, kiinteät valaisimet
Kylpyhuoneen lattiamateriaali
Laatta
Kylpyhuoneen seinämateriaali
Kaakeli
WC-tilojen kuvaus
Kodissa on neljä WC:ta. Kolme kylpyhuoneiden yhteydessä ja yksi erillinen WC pääkerroksessa.
Lukumäärä: 4
Lattiamateriaalit: laatta
Seinämateriaalit: kaakeli
Kodinhoitohuone
Kodinhoitohuone sijaitsee pohjakerroksessa saunaosaston läheisyydessä. Kodinhoitohuoneessa on runsaasti säilytys-ja tasotilaa.
Varustus: pesukoneliitäntä, kuivauskaappi, lattialämmitys, pöytätaso
Lattiamateriaalit: laatta
Seinämateriaalit: kaakeli, maalattu
Sauna
Asunnossa on sauna
Saunan lattiamateriaali
Laatta
Saunan seinämateriaali
Puu
Makuuhuoneen kuvaus, lisätiedot ja varustus
Lukumäärä: 4
Lattiamateriaalit: parketti
Seinämateriaalit: maalattu, tapetti
Oleskelutilojen kuvaus, lisätiedot ja varustus
Lattiamateriaalit: parketti
Seinämateriaalit: maalattu
Kunto
Hyvä
Takkatiedot
Takka

KIINTEISTÖ- JA YHTIÖTIEDOT

Asuinpinta-ala
213,0 m² (256,0 m²)
Yhtiön nimi
Asunto Oy Oulun Parkkisentie 22
Tontin omistus
Oma
Tontin koko
862,00 m²
Pihan kuvaus
Takapiha on suojainen ja vehreä.
Rakennusvuosi (aloitettu)
2001
Käyttöönottovuosi
2002
Rakennusmateriaali
Puu, betoni
Kattotyyppi
Harjakatto
Kate
Tiili, huopa
Lämmitysjärjestelmän kuvaus
Muu
Energiatodistus
Kyllä
Lisätietoja energiatodistuksesta
Voimassa 16.8.2032 saakka.
Energialuokka
D2018
Tehdyt korjaukset ja remontit
2021 Talon huopakattojen uusinta, puuosien huoltomaalaus, tiilikatteen pesu ja pinnoitus.
2020 Ilmanvaihtokone uusittu, kaksi kylpyhuonetta remontoitu, työhuoneen yhteydessä olevan kylpyhuoneen kalusteet uusittu, alakerran WC remontoitu.
2019 Jäspi hybridenergiavaraaja asennettu (liitännät lämpöpumpuille, aurinkosähkölle ja sähkölle).
2017 Lämminvesivaraajan uusiminen

MUITA TIETOJA

Kaavoitus
Asemakaava
Lisätietoa kaavoituksesta
Oulun kaupunki, p. 08 558 410, asemakaavoitus@ouka.fi
Vapautuu
Sopimuksen mukaan
Lisätietoja
Samalla kaupalla myydään koko asunto-osakeyhtiön osakekanta.

ASUMISKUSTANNUKSET

Vesimaksu
0,00 €/kk
Muut maksut / lisätietoa maksuista
Kodin kokonaissähkönkulutus on noin 26 000 kWh/vuosi. Vesimaksut kulutuksen mukaisesti, jätehuolto oman sopimuksen mukaan. Kiinteistövero 929,42€/vuosi.

HINTA

Myyntihinta
595 000,00 €
Velaton hinta
595 000,00 €
Parkkisentie 22 - bild 1 Parkkisentie 22 - bild 2 Parkkisentie 22 - bild 3 Parkkisentie 22 - bild 4 Parkkisentie 22 - bild 5 Parkkisentie 22 - bild 6 Parkkisentie 22 - bild 7 Parkkisentie 22 - bild 8 Parkkisentie 22 - bild 9 Parkkisentie 22 - bild 10 Parkkisentie 22 - bild 11 Parkkisentie 22 - bild 12 Parkkisentie 22 - bild 13 Parkkisentie 22 - bild 14 Parkkisentie 22 - bild 15 Parkkisentie 22 - bild 16 Parkkisentie 22 - bild 17 Parkkisentie 22 - bild 18 Parkkisentie 22 - bild 19 Parkkisentie 22 - bild 20 Parkkisentie 22 - bild 21 Parkkisentie 22 - bild 22 Parkkisentie 22 - bild 23 Parkkisentie 22 - bild 24 Parkkisentie 22 - bild 25 Parkkisentie 22 - bild 26 Parkkisentie 22 - bild 27 Parkkisentie 22 - bild 28 Parkkisentie 22 - bild 29 Parkkisentie 22 - bild 30 Parkkisentie 22 - bild 31 Parkkisentie 22 - bild 32 Parkkisentie 22 - bild 33 Parkkisentie 22 - bild 34 Parkkisentie 22 - bild 35 Parkkisentie 22 - bild 36 Parkkisentie 22 - bild 37 Parkkisentie 22 - bild 38 Parkkisentie 22 - bild 39 Parkkisentie 22 - bild 40 Parkkisentie 22 - bild 41 Parkkisentie 22 - bild 42 Parkkisentie 22 - bild 43 Parkkisentie 22 - bild 44 Parkkisentie 22 - bild 45 Parkkisentie 22 - bild 46 Parkkisentie 22 - bild 47 Parkkisentie 22 - bild 48 Parkkisentie 22 - bild 49 Parkkisentie 22 - bild 50 Parkkisentie 22 - bild 51 Parkkisentie 22 - bild 52 Parkkisentie 22 - bild 53