Pellavakaskentie 16b

Veräjämäki, Oulunkylä, Helsinki | Omakotitalo | 6h, avok, rt, s, 2kph, 2wc, aula, parv.

  • 1 290 000 €

    Skuldfritt pris

  • 280,0 m2

    Boarea

  • 1999

    Byggnadsår

Veräjämäki, uniikki omakotitalo 280 m2

Tämä kerrassaan upea ja tilava omakotitalo sijaitsee halutulla Veräjämäen alueella. Omalla n. 1.200 m2 tontilla oleva talo on valmistunut alkujaan 1995, mutta se on kokenut vuonna 2022 kattavan kunnostuksen ja on siksi varsin siistissä ja hyvässä kunnossa. Talon lämmitysjärjestelmä muutettiin samalla kertaa edulliseen ja ekologiseen vesi-ilmalämpöpumppuun. Sen ja tehokkaan aurinkoenergiajärjestelmän avulla talon lämmityskustannukset ovat erittäin edulliset ja talo onkin saanut korjauksen jälkeen erinomaiset A-luokan arvot energiatodistukseen.

Kodin sydän on valoisa olohuone, joka muodostaa yhdessä ruokailutilan ja avokeittiön kanssa yhden avaran kokonaisuuden. Suuret ikkunapinnat ja osittain kahden kerroksen korkuiset tilat tuovat tilaan valoisuutta ja avaruutta. Olohuoneen katseenvangitsija on hieno portaikko, jonka tarkkaan harkitut materiaalit sopivat kokonaisuuteen täydellisesti. Näkymät olohuoneesta avautuvat suurelle omalle piha-alueelle.

Mustat kaapistot ja tammiset työtasot muodostavat keittiöön klassisen väriyhdistelmän, joka kestää hyvin aikaa. Tämä tilava Puustellin avokeittiö on kattavasti koneellistettu ja siellä on suuren saarekkeen ansiosta runsaasti työ- ja laskutilaa. Keittiössä on hyvin tilaa myös ruokapöydälle arkiruokailua varten.

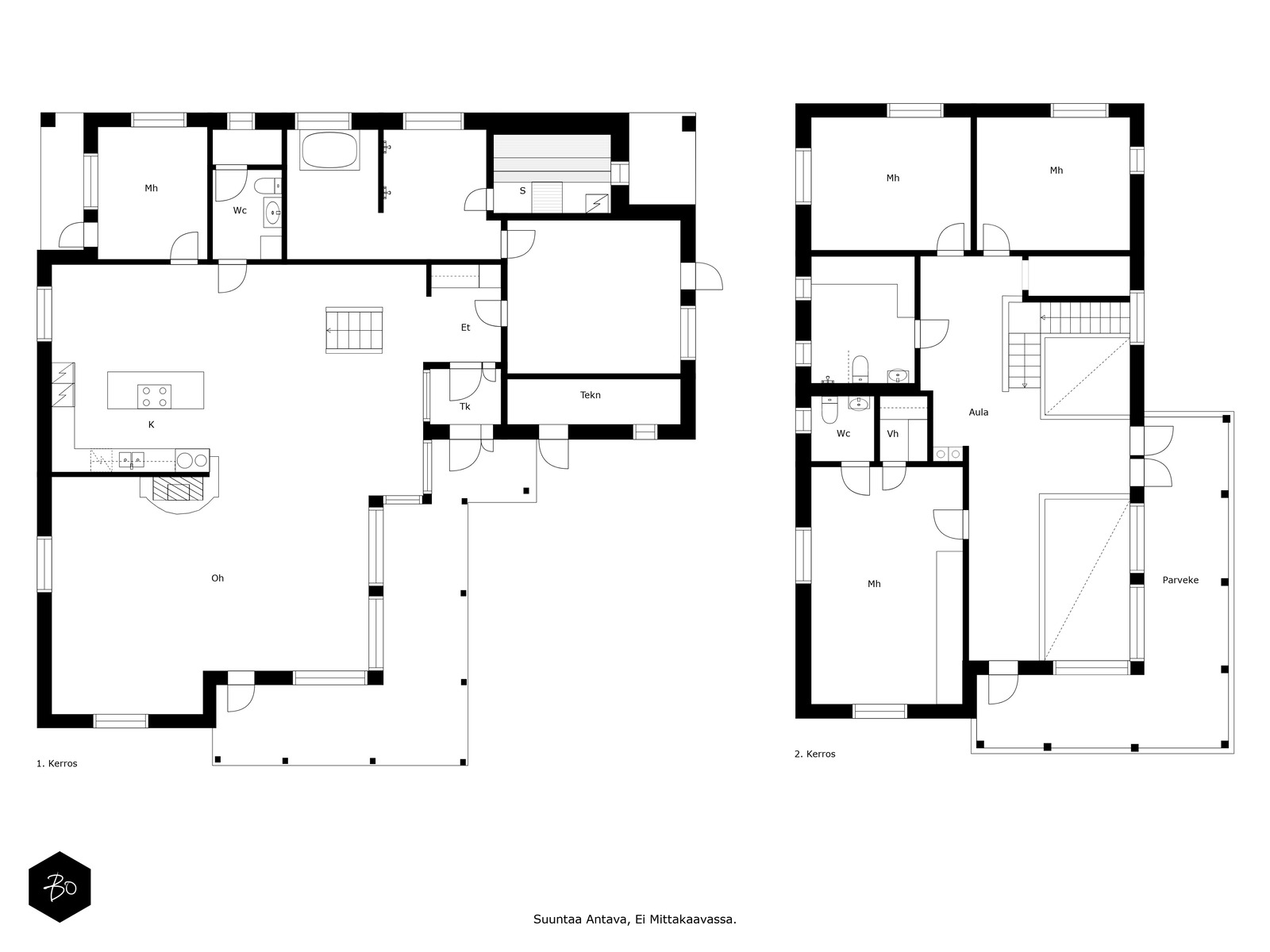
Makuuhuoneita on yläkerrassa kolme ja alakerrassa on yksi. Lisäksi alakerrassa on suuri huone, joka soveltuu hyvin työ-, elokuva- tai harrastehuoneeksi, mikseipä myös viidenneksi makuuhuoneeksi. Myös kaikki tämän asunnon kylpy- ja wc-tilat ovat uusittu v. 2022 korkeatasoisin materiaalein. Alakerrassa sijaitseva tummanpuhuva saunaosasto ja hieno spa-tyyppinen pesuhuone erillisine kylpyammeineen on poikkeuksellisen tyylikäs kokonaisuus.

Laadukkaiden materiaalien ja korkealaatuisen viimeistelyn lisäksi myynnissä oleva talo tarjoaa modernit puitteet asumiselle ja viihtymiselle. Myös autoilijaa hemmotellaan täällä toden teolla. Pihalla oleva talli on rakennettu 4 autolle, mutta nykyinen omistaja on erottanut siitä omien harrastustensa tarpeisiin kolmen autotallin verran tiloja, jotka on kuitenkin helppo palauttaa ennalleen tai muokata omiin tarpeisiin sopiviksi.

Mikäli arvostat asumisessasi tilaa, valoa ja ilmavuutta, sekä laadukkaita materiaaleja ja työn jälkeä, niin tässä sinulle hieno vaihtoehto halutulla Veräjämäen alueella.

Lisätiedot ja esittelypyynnöt:

Pekka Kujala
laillistettu kiinteistönvälittäjä, LKV, partner
040 832 8888
pekka@bo.fi

Intresserad av denna bostad?

Kontakta oss eller lämna ett meddelande

HUONEISTO

Hallintamuoto
Oma
Huoneluku
6h, avok, rt, s, 2kph, 2wc, aula, parv.
Kerros
1-2
Kerroksia
2
Asuinpinta-ala
280,0 m²
Muut tilat
0,0 m²
Lisätietoja pinta-alasta
Ilmoitettu pinta-ala perustuu Asunto Oy Pellavakaskentie 16 yhtiöjärjestyksessä näkyvään pinta-alatietoon ja rakennuslupadokumentteihin. Rakennusoikeuslaskelman (12.3.1998) mukaan asuinrakennuksen kerrosala on yhteensä 346 m². Pinta-aloja ei ole tarkistusmitattu, joten ne saattavat poiketa olennaisestikin nykymääräysten (SFS 5139) mukaan mitattavista pinta-aloista.

Myyntihinta ei ole pinta-alaperusteinen. Ostaja voi halutessaan tilata kustannuksellaan kohteeseen pinta-alamittauksen ennen tarjouksen tekemistä tarkan pinta-alatiedon varmistamiseksi.
Keittiön kuvaus, lisätiedot ja varustus
Puustellin musta keittiö ja siihen täydellisesti sopivat tammiset pöytätasot muodostavat tyylikkään kokonaisuuden. Keittiössä on suuri saareke tuomassa lisää toiminnallisuutta ja laskutilaa. Tilavaan keittiöön mahtuu myös ruokapöytä arkiruokailuun. Kattavasti koneellistetussa keittiössä on erilliset jääkaappi, pakastin, astianpesukone, erillisuuni, induktioliesi, liesituuletin.
Pesutilojen kuvaus, lisätiedot ja varustus
Yläkerrassa on makuuhuoneiden yhteydessä tyylikäs kylpyhuone, jossa on suihkun lisäksi wc-istuin sekä allaskaappi ja peilikaappi.

Saunan yhteydessä olevassa upeassa, kauttaaltaan laatoitetussa kylpyhuoneessa, on kaksi sadesuihkua. Kylpyhuoneessa on myös erillinen tunnelmallinen tila, joka on rauhoitettu kylpyhetkiin.

Kylpyhuoneessa ja saunassa on laadukkaasti toteutettu valaistusjärjestelmä, jonka avulla voit säätää tilaan haluamasi tunnelman.
WC-tilojen kuvaus
Sisääntulokerroksessa on erillinen wc. Yläkerrassa on päämakuuhuoneen yhteydessä erillinen wc ja lisäksi yläkerran kylpyhuoneen yhteydessä on wc-istuin.
Yhteensä 3 wc-istuinta.
Kodinhoitohuone
Yläkerran tilavan kylpyhuoneen yhteydessä on myös kodinhoitotilat, jossa on mukavasti lasku- ja säilytystilaa. Tilassa on myös pesukoneliitäntä ja hyvät tilat pesukoneelle ja kuivausrummulle.
Sauna
Asunnossa on sauna
Saunan kuvaus, lisätiedot ja varustus
Saunan seinät ja katto ovat kauttaaltaan paneloitu ja lattia on keraamista laattaa. Saunan puuosat ovat käsitelty vahalla tummaksi, mikä luo saunaan hienostuneen tunnelman.
Harvian etäohjattava sähkökiuas on kätevä käyttää ja antaa upeat löylyt.
Makuuhuoneen kuvaus, lisätiedot ja varustus
Yläkerrassa on kolme makuuhuonetta, ja alakerrassa on lisäksi yksi. Sisääntulokerroksessa on lisäksi tällä hetkellä työhuonekäytössä oleva huone, joka taipuu uuden omistajan tarpeen mukaan moneen käyttöön.
Lukumäärä: 4
Oleskelutilojen kuvaus, lisätiedot ja varustus
Tämän talon ehdoton valtti on suuri olohuone, jossa on paljon ikkunoita tuomassa valoa. Osa olohuoneesta on kahden kerroksen korkuinen, mikä antaa ruokasalille ja olohuoneelle hienon tunnelman. Olohuoneen katseenvangitsijana toimii poikkeuksellisen tyylikäs portaikko. Lattian tammiparketti, seinien vaaleat pinnat ja tumman keittiön väriyhdistelmät ja kontrastit tekee tilasta ja tunnelmasta todella miellyttävän.
Muut huonetilat
Autotalli n. 80 m². Alkuperäisen piirustuksen mukaan talli on ollut neljälle autolle. Nykyisellään siitä on puolet käytössä viihtyisänä Snooker-salina, yksi osa on työpajana / verstaana ja yksi osa on autotallikäytössä. Tila on helposti muutettavissa uuden omistajan tarpeiden mukaiseksi.
Muuta kauppaan kuuluvaa
Sähköauton latauspiste 22 kWh
Muutostyöt huoneistossa
Vuonna 2022: Salaojien uusiminen. Kulkuväylien kivetykset ja valaistus. Katon pinnoitus, puuosien huoltomaalaus (myös autotallin katosten huoltomaalaus). Aurinkojärjestelmä (päärakennus) 10,125 kWp. Led-valaistukseen uusiminen. Sisäpuolen pinnat uusittu (parketti, katto, seinät, valaistus, portaat, kaiteet), sauna ja kylpyhuoneet. Ilma-vesilämpöpumpun asennus kaukolämmön tilalle, ilmalämpöpumpun ja sen kahden sisäyksikön asennus,
lattialämmityksen ohjausjärjestelmän asennus. Ilmanvaihtokoneiden asennus, nuohous, mittaus ja säätäminen sekä IV-kanavien eristys ja villan lisääminen yläpohjassa. Käyttövesiputkien uusiminen + muut putkityöt. Keskuspölynimurit uusittu.
Vuonna 2021 kuntotarkastuksessa havaitut huomautukset / tarpeet korjattu vuonna 2022. Alakerran khh muutettu työ-/makuuhuoneeksi.

Vuonna 2023: Katoksen ja parvekkeen kaiteiden huoltomaalaus,
parvekkeen huopien ja terassilaudoituksen uusiminen. Kaikkien talon ikkunoiden uusiminen sekä ikkunoiden ja ovien pellitysten uusiminen. Aurinkojärjestelmä (autotalli) 5,74 kWp. Ilmalämpöpumpun asennus autotalliin / Snookersaliin.

Vuonna 2025: Piha-aidan rakentaminen. Pihan istutuksia.
Ilmalämpöpumppujen kotelointi.
Autotallin sisäpintojen maalaus.
Kunto
Hyvä
Takka
Takka ei ole ollut käytössä. Nuohottava ennen käyttöönottoa.
Takkatiedot
Takka

KIINTEISTÖ- JA YHTIÖTIEDOT

Asuinpinta-ala
280,0 m² (280,0 m²)
Kiinteistötunnus
91-28-20-18
Tyyppi
Tontti
Tontin omistus
Oma
Tontin koko
1 200,00 m²
Tontin tyyppi
Tasamaatontti
Rakennusvuosi (aloitettu)
1998
Käyttöönottovuosi
1999
Rakennusmateriaali
Puu, tiili
Rakennusmateriaalin kuvaus
Ulkoseinät ovat puurakenteisia ja lämmöneristeenä on mineraalivilla. Ulkoverhouksena on pääosin tiiliverhous ja osin puuverhous.
Muut rakennukset
Autotalli
N. 80 m² erillisessä autotallirakennuksessa on nykyisellään snooker-sali, verstas ja autotalli yhdelle autolle. Tila on helposti palautettavissa 4 auton talliksi. Tallissa lämmitysmuotona sähköpatterit ja ilmalämpöpumppu, joka toimii myös viilennykseen.
Kattotyyppi
Harjakatto
Kate
Tiilikate
Katon kunto
Pinnoitettu v. 2022
Lämmitysjärjestelmä
Muu. Vesi-ilmalämpöpumppujärjestelmä asennettu 2022
Lämmitysjärjestelmän kuvaus
Muu
Ilmanvaihtojärjestelmä
Koneellinen tulo, koneellinen poisto, lämmön talteenotto
Energiatodistus
Kyllä
Lisätietoja energiatodistuksesta
Rakennuksen laskennallinen energiatehokkuuden vertailuluku, E-luku on 74.
Uuden rakennuksen E-luvun vaatimus pienempi kuin 103. Autotallin e-luokka B2018.
Energiatodistuksien viimeinen voimassaolopäivä on 19.12.2033.
Energialuokka
A2018
Vesijohto
Kunnan
Viemäri
Kunnan
Rakennusoikeus
480,0 m²
Rakennusoikeus, e-luku
0.4
Lisätietoja rakennusoikeudesta
A0 1/400 II, 0,40
Asuinpientalojen korttelialue.
Tontin tehokkuusluku e=0,4, eli tontin rakennusoikeus on 480 k-m².
Rakennusoikeuslaskelman mukaan rakennusoikeutta on käytetty 436,7 k-m² ja jäljellä on 43,3 k-m², mutta tontin peitto-ala on käytetty kokonaisuudessaan, joten lopun rakennusoikeuden käyttäminen vaatii poikkeamispäätöksen.

MUITA TIETOJA

Kaavoitus
Asemakaava
Palvelut
K-supermarket Mustapekka n. 2,3 km, S-Market (Ogelin liikekeskus) 1,2 km, Posti 1,8 km, terveysasema (Ogelin liikekeskus) 1,2 km.
Koulu
Oulunkylän ala-asteen koulu 1km
Liikenneyhteydet
Raidejokerin (linja 15) pysäkki n. 600 m, lähijunat K ja P Oulunkylän asemalta n. 800 m, Tuusulan ja Lahden väylät sekä Kehä I lähellä, keskustaan n. 15-20 min.
Vapautuu
1.5.2026 mennessä / sopimuksen mukaan

ASUMISKUSTANNUKSET

Muut maksut / lisätietoa maksuista
Sähkön kustannus oman kulutuksen ja sähkösopimuksen mukaisesti. Esitetyt asumiskustannukset perustuvat nykykäyttöön ja voivat siten olla suurempia tai pienempiä riippuen asukasmäärästä, asumistottumuksista ja palveluntarjoajasta. Kiinteistövakuutusmaksut omien sopimusehtojen mukaisesti.
Ostaja maksaa varainsiirtoveron 3 % velattomasta kauppahinnasta.

Päärakennukseen on asennettu aurinkosähköjärjestelmä v. 2022 (10 kWp) ja autotalliin v. 2023 (5,74 kWp).

Vuonna 2024 ja 2025 on koko kiinteistön kokonaissähkönkulutus ollut keskimäärin 32.400 kwh vuodessa. Oma aurinkojärjestelmä on tuottanut keskiarvoisesti 7.200 kWh vuodessa, joten omalla sähköntuotannolla korjattu kulutus on ollut noin 25.000 kWh. Sisältää 1 sähköauton latauksen.
Kiinteistövero
3 085,16 €
Puhtaanapito
23 €

HINTA

Myyntihinta
1 290 000,00 €
Velaton hinta
1 290 000,00 €
Pellavakaskentie 16b - bild 1 Pellavakaskentie 16b - bild 2 Pellavakaskentie 16b - bild 3 Pellavakaskentie 16b - bild 4 Pellavakaskentie 16b - bild 5 Pellavakaskentie 16b - bild 6 Pellavakaskentie 16b - bild 7 Pellavakaskentie 16b - bild 8 Pellavakaskentie 16b - bild 9 Pellavakaskentie 16b - bild 10 Pellavakaskentie 16b - bild 11 Pellavakaskentie 16b - bild 12 Pellavakaskentie 16b - bild 13 Pellavakaskentie 16b - bild 14 Pellavakaskentie 16b - bild 15 Pellavakaskentie 16b - bild 16 Pellavakaskentie 16b - bild 17 Pellavakaskentie 16b - bild 18 Pellavakaskentie 16b - bild 19 Pellavakaskentie 16b - bild 20 Pellavakaskentie 16b - bild 21 Pellavakaskentie 16b - bild 22 Pellavakaskentie 16b - bild 23 Pellavakaskentie 16b - bild 24 Pellavakaskentie 16b - bild 25 Pellavakaskentie 16b - bild 26 Pellavakaskentie 16b - bild 27 Pellavakaskentie 16b - bild 28 Pellavakaskentie 16b - bild 29 Pellavakaskentie 16b - bild 30 Pellavakaskentie 16b - bild 31 Pellavakaskentie 16b - bild 32 Pellavakaskentie 16b - bild 33 Pellavakaskentie 16b - bild 34