Ylermintie 7

Päiväkumpu, Vantaa | Omakotitalo | 5h+k+rt+khh+kph+s+wc+kellaritilat+autokatos+ autotalli

  • 475 000 €

    Skuldfritt pris

  • 147,0 m2

    Boarea

  • 254,0 m2

    Total area

  • 2002

    Byggnadsår

Hyvin pidetty, kuntotarkastettu omakotitalo metsään rajoittuvalla tontilla

Tämä neljän tilavan makuuhuoneen koti koostuu kahdesta asuinkerroksesta ja yli sadan neliön pohjakerroksesta, jossa on valtava potentiaali toteuttaa niin työ- varasto-, vierasmajoitus- kuin harrastetilanakin. Valoisan olohuoneen viistokatto kohoaa jopa viiteen metriin ja tuo ilmavuutta ja näyttävyyttä tilaan. Kaunis varaava takka ja keittiön puolelle avautuva leivinuuni tuovat tunnelmaa kotiin sekä ovat oiva lisä lämmitykseen talvikaudella.

Talon huolto ja kunnostustyöt on tehty säännöllisesti ja niistä on pidetty tarkasti kirjaa. Upea, tunnelmallinen sauna, kylpyhuone ja kodinhoitohuone on laadukkaasti saneerattu 2024. Energiatehokkuutta on parannettu 2023 asennetulla aurinkovoimalalla ja poistoilmalämpöpumppu on uusittu 2022. Talo sai kokonaan uuden kauniin vaalean sävyn 2023 maalauksen myötä.
Tontti rajoittuu viheralueeseen ja on mainio paikka temmeltää tai viettää rauhallisia puutarhahetkiä. Huoliteltu piha-alue istutuksineen ja kivipengerryksineen on helppohoitoinen ja tarjoaa halukkaalle mukavasti tilaa hyötykasveille ja puutarhan hoitoon.
Erillisessä talousrakennuksessa sijaitsevat autotalli sekä autokatos latauslaitteineen ja lisäksi pihassa on vielä sähköpistokepaikkakin- mitä muuta voit toivoa.

Tervetuloa esittelyyn!
Susanna Suvanto
kiinteistönvälittäjä, LKV, LVV, partner
040 900 1447
susanna.suvanto@bo.fi

Intresserad av denna bostad?

Kontakta oss eller lämna ett meddelande

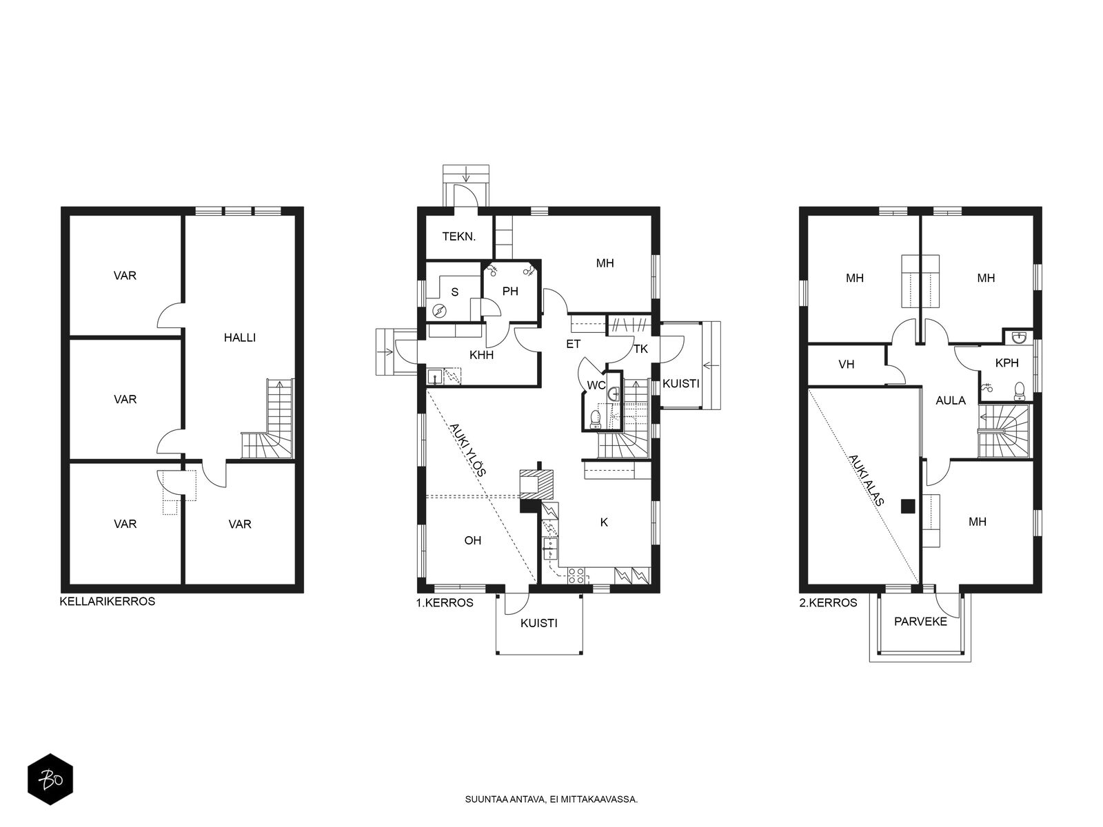
HUONEISTO

Huoneluku
5h+k+rt+khh+kph+s+wc+kellaritilat+autokatos+ autotalli
Kerros
1-3
Kerroksia
3
Asuinpinta-ala
147,0 m²
Muut tilat
107,0 m²
Lisätietoja pinta-alasta
Ilmoitettu asuintilojen pinta-ala on rakennuspiirustusten mukainen
huoneistoala: asuinosa 146,6 m² + 106,6 m² kellarikerros.
Rakennuspiirustusten mukainen kerrosala on 159,3 m² .
Vantaan kaupungilta saadun epävirallisen RAHU- raportin mukaan asuinrakennuksen kerrosala on 165 m².
Talousrakennuksen (autokatos ja autotalli) kerrosala on 20 m².

Pinta-alaa ei ole tarkistusmitattu.
Keittiön kuvaus, lisätiedot ja varustus
Jääkaappi, pakastin, liesituuletin, astianpesukone, induktioliesi ja erillisuuni.
Työtasot laminaattia ja välitila laatoitettu. Seinät maalattu ja lattia laatoitettu.
Pesutilojen kuvaus, lisätiedot ja varustus
Alakerta:
Kylpyhuone on saneerattu 2024.
Kaksi sadesuihkua, kaksi käsisuihkua. Lattia laatoitettu ja seinät kaakeloitu.
Yläkerta: WC-istuin, suihku, liukuvat suihkuovet, peilikaappi, allas, allaskaapit ja pyyhekuivain. Lattialämmitys.
Seinät kaakeloitu ja lattia laatoitettu. Ikkunat 3 kpl.
WC-tilojen kuvaus
Wc-istuin, bidee-suihku, peilikaappi, allas ja allaskaapit.
ja lattiakaivo. Lattialämmitys.
Lukumäärä: 1
Kodinhoitohuone
Kodinhoitohuone saneerattu 2024.
Lattia laatoitettu, seinät maalattu ja yhdellä seinällä panelointi.
Pesukoneliitäntä, lattiakaivo, lattialämmitys, kaapisto, allas ja allaskaapit. Työtaso laminaattia.
Sauna
Asunnossa on sauna
Saunan kuvaus, lisätiedot ja varustus
Sauna saneerattu 2024.
Harvia-pylväskiuas, koristepaneeliseinä. Lauteet
lämpökäsitelty haapa ja koristepaneli (Jukola wood) lämpökäsitelty mänty.
Lattia laatoitettu, seinät puupaneloitu. Lattialämmitys.
Makuuhuoneen kuvaus, lisätiedot ja varustus
Alakerta 1 mh: seinät maalattu, lattia parketti. Vaatekaapit.
Yläkerta kolme makuuhuonetta: parkettilattia ja maalatut seinät. Yhdessä makuuhuoneessa kaapistot, jotka siirrettävissä. Päämakuuhuoneesta käynti parvekkeelle. Viistokatot.
Ilmalämpöpumppu sekä lmmitystä että viilennystä varten vuodelta 2022.
Lukumäärä: 4
Oleskelutilojen kuvaus, lisätiedot ja varustus
Korkeaa tilaa (5,2m), viistokatto. Parkettilattia ja seinät maalattu.
Muut huonetilat
Tekninen tila, eteinen.
Pohjakerroksessa runsaasti varastointi- ja askartelutilaa:
-iso aulatila parkettilattia ja maalatut seinät
-elokuvatila: laattalattia ja maalatut seinät
-kaksi askartelu/varastotilaa: laminaattilattia, maalatut seinät, toisessa peilikaapisto (vesisulku)
-varastotila: laattalattialla ( lattialämmitys)
Muuta kauppaan kuuluvaa
Auton latauslaite.
Keskuspölynimuri.
Halkosuojan jäljellä olevat puut.
Muutostyöt huoneistossa
2025 sähköauton latausaseman asennus
2024 Salaojien kuntotarkastus (Vesivek Oy)
2024 Velco-korvausilmaventtiilien suodattimien vaihto
2024 Sauna, kylpy- ja kodinhoitohuoneen saneeraus (SaunaTohtori Oy), Saunan, kylpy- sekä kodinhoitohuoneen kaikkien puupintojen käsittely 2 krt (lauteet parafiiniöljyllä, muut Supi Saunavahalla
2024 ovijarrun asennus etuoveen
2024 puutarhatyöt: kultapallotuijien istutus luoteisnurkan istutusryhmään,
kirsikkapuun kaato (kannon ylös kaivaminen ja juurien pois repiminen koko nurmialueelta), Kultasade-puun istutus kirsikkapuun tilalle,
Alppiruusujen istutus, liljojen ja pionin istutus talon eteen, mustaherukkapensaan siirto etupihalta takapihalle
2024 huoltomaalausta tarvittavin osin puun elämisen takia (autotalli, auto- ja roskakatos), talon sivukatosten räystäskourujen pesu sisältä ja ulkoa, jätekatoksen lattian ja rampin käsittely Teak-öljyllä
2024 verkkoaidan pystytys takapihalle, valonheittimen asennus autotallin päätyyn, valvontakameran asennus autokatokseen
2023 Velco-korvausilmaventtiilien suodattimien vaihto, suihkutilan lattian (alakerta) silikonitiivisteen uusinta
2023 uusittu keittiön oikean ikkunan sälekaihdin ja asennettu yhden yläkerran makuuhuoneen ikkunoihin sälekaihtimet
2023 talon maalaus (Tikkurila Ultra Classic Q612 / Laatutrio Maalaus Oy), teknisen tilan ja takauloskäynnin kattojen pinnoitus sudilla maalamalla
2023 uusien julkisivuvalojen ja hämäräkytkimien asennus
2023 aurinkosähköjärjestelmän asennus (DualSun / Energio Finland Oy)
2023 puukatoksen parantelu (suojapressun asennus vahviketolppien 3 kpl:tta asennus keskelle runkoa, laatoituksen lisäys), ruusukaaren
pystytys (betonijalkojen valu)
2023 roskakatoksen kunnostus
2023 puukatoksen parantelu, talon etelän/kadun puoleisten räystäskourujen pesu ulkoa
2023 vuorimännyn poisto juurineen talon luoteisnurkan istutusryhmästä
2022 alakerran (kellari) aulan ikkunanurkkauksen maalaus ja ikkunalistojen uusinta (laminaattiverhoilun ja eristyksen purku kuntotarkastuksen suosituksen mukaisesti, "elokuvahuoneen" päätyseinien (länsi & itä) tasoittelu telattavalla tasoitteella
2022 PILP:n uusinta (Nibe 750 / LVI- ja rakennustekniikka Marko Rantanen), jonka yhteydessä IV-kanavat puhdistettu ja ilmanvaihto nuohottu 2022 yläkerran aulan seinien maalaus
2022 Ilmalämpöpumpun asennus (Mitsubishi NL35 / LVI- ja rakennustekniikka Marko Rantanen)
2022 asennettu ovijarru sivuterassin oveen, ovenkiinnitin autotallin ovelle
2022 uusittu keittiön vasemman ikkunan sälekaihdin ja asennettu olohuoneen lännen puoleisiin ikkunoihin sälekaihtimet
2022 kattojen (talo + talli) painepesu, sammaleenestoainekäsittely ja pinnoitus ruiskumaalaamalla (A-clean sammaleenestoaine)

Tarkemman listan saat välittäjältä
Kunto
Hyvä
Takka
Leivinuuni
Takkatiedot
Takka, muu

KIINTEISTÖ- JA YHTIÖTIEDOT

Asuinpinta-ala
147,0 m² (254,0 m²)
Kiinteistötunnus
92-75-39-1
Tyyppi
Tontti
Tontin omistus
Oma
Tontin koko
800,00 m²
Tontin tyyppi
Tasamaatontti
Tontin kuvaus
Rakennuspaikka on tasamaata. Tontti on osittain loiva rinnetontti.
Panttikirjat
580 000,00 €
Käyttöönottovuosi
2002
Rakennusmateriaali
Puu, elementti, muu, kellarikerros harkkorakenteinen
Muut rakennukset
Autotalli, Autokatos
Kevytrakenteinen suoja polttopuille ja jätekatos.
Kattotyyppi
Harjakatto tiilikatteella
Lämmön jakotapa
Sähköpatterilämmitys, vesikiertoinen lattialämmitys, uuni/takka, ilmalämpöpumppu
Lämmitysjärjestelmän kuvaus
Poistoilmalämpöpumppu, muu
Ilmanvaihtojärjestelmä
Koneellinen tulo, koneellinen poisto
Energiatodistus
Kyllä
Lisätietoja energiatodistuksesta
Viimeinen voimassaolopäivä 2.3.2036.
Energialuokka
B2018
Vesijohto
Kunnan
Viemäri
Kunnan
Rakennusoikeus, e-luku
0.2
Lisätietoja rakennusoikeudesta
160 m²

MUITA TIETOJA

Kaavoitus
Asemakaava
Palvelut
Alepa Päiväkumpu 1,45 km
K-Supermarket Honkatori 2,84 km
Muut palvelut
Monipuoliset liikuntapaikat lähidstöllä:
Kuusijärven kuntorata 1,25 km
Kuusijärven koripallokenttä 1,25 m
Kuusijärven uimaranta ja talviuintipaikka saunoineen 1,25 m
Päiväkoti
Päiväkummun päiväkoti
Pilke päiväkoti Oy
Maarukan päiväkoti
Koulu
Päiväkummun Koulu
Havukosken Koulu
Mikkolan Koulu
Hakkilan Koulu
Lukiot: Lumon lukio, Sotungin lukio
Liikenneyhteydet
Bussipysäkki Ylemintie 135 m ja 394 m
Yrjänänkuja 409 m ja 363 m
Vapautuu
Sopimuksen mukaan

ASUMISKUSTANNUKSET

Muut maksut / lisätietoa maksuista
Sähkön vuosikulutus neljän hengen perheellä 17 209 kWh.

Ilmoitetut kustannukset ja kulutusperusteiset maksut perustuvat nykyiseen
kulutukseen ja ne saattavat muuttua ilmoitetuista käytön mukaan ja voivat
siten olla pienempiä tai suurempia riippuen asukasmäärästä,
asumistottumuksista ja palveluntarjoajasta.
Sähkö kulutuksen/oman sähkösopimuksen mukaisesti.
Sähköisten panttikirjojen siirtomaksusta vastaa ostaja.

Varainsiirtovero 3 % kauppahinnasta.
Vesi ja jätevesi
52 €
Kiinteistövero
859,00 €
Puhtaanapito
21 €

HINTA

Myyntihinta
475 000,00 €
Velaton hinta
475 000,00 €
Ylermintie 7 - bild 1 Ylermintie 7 - bild 2 Ylermintie 7 - bild 3 Ylermintie 7 - bild 4 Ylermintie 7 - bild 5 Ylermintie 7 - bild 6 Ylermintie 7 - bild 7 Ylermintie 7 - bild 8 Ylermintie 7 - bild 9 Ylermintie 7 - bild 10 Ylermintie 7 - bild 11 Ylermintie 7 - bild 12 Ylermintie 7 - bild 13 Ylermintie 7 - bild 14 Ylermintie 7 - bild 15 Ylermintie 7 - bild 16 Ylermintie 7 - bild 17 Ylermintie 7 - bild 18 Ylermintie 7 - bild 19 Ylermintie 7 - bild 20 Ylermintie 7 - bild 21 Ylermintie 7 - bild 22 Ylermintie 7 - bild 23 Ylermintie 7 - bild 24 Ylermintie 7 - bild 25 Ylermintie 7 - bild 26 Ylermintie 7 - bild 27 Ylermintie 7 - bild 28 Ylermintie 7 - bild 29 Ylermintie 7 - bild 30 Ylermintie 7 - bild 31 Ylermintie 7 - bild 32