Torpankuja 5 C 13

Kortepohja, Jyväskylä | Rivitalo | 4h + k + s

  • 154 000 €

    Skuldfritt pris

  • 90,5 m2

    Boarea

  • 383,80 €/mån

    Underhållsavgift

  • 1968

    Byggnadsår

Tervetuloa tutustumaan persoonalliseen rivitalokotiin, joka sijaitsee suojellulla ja vehreällä alueella Kortepohjassa.

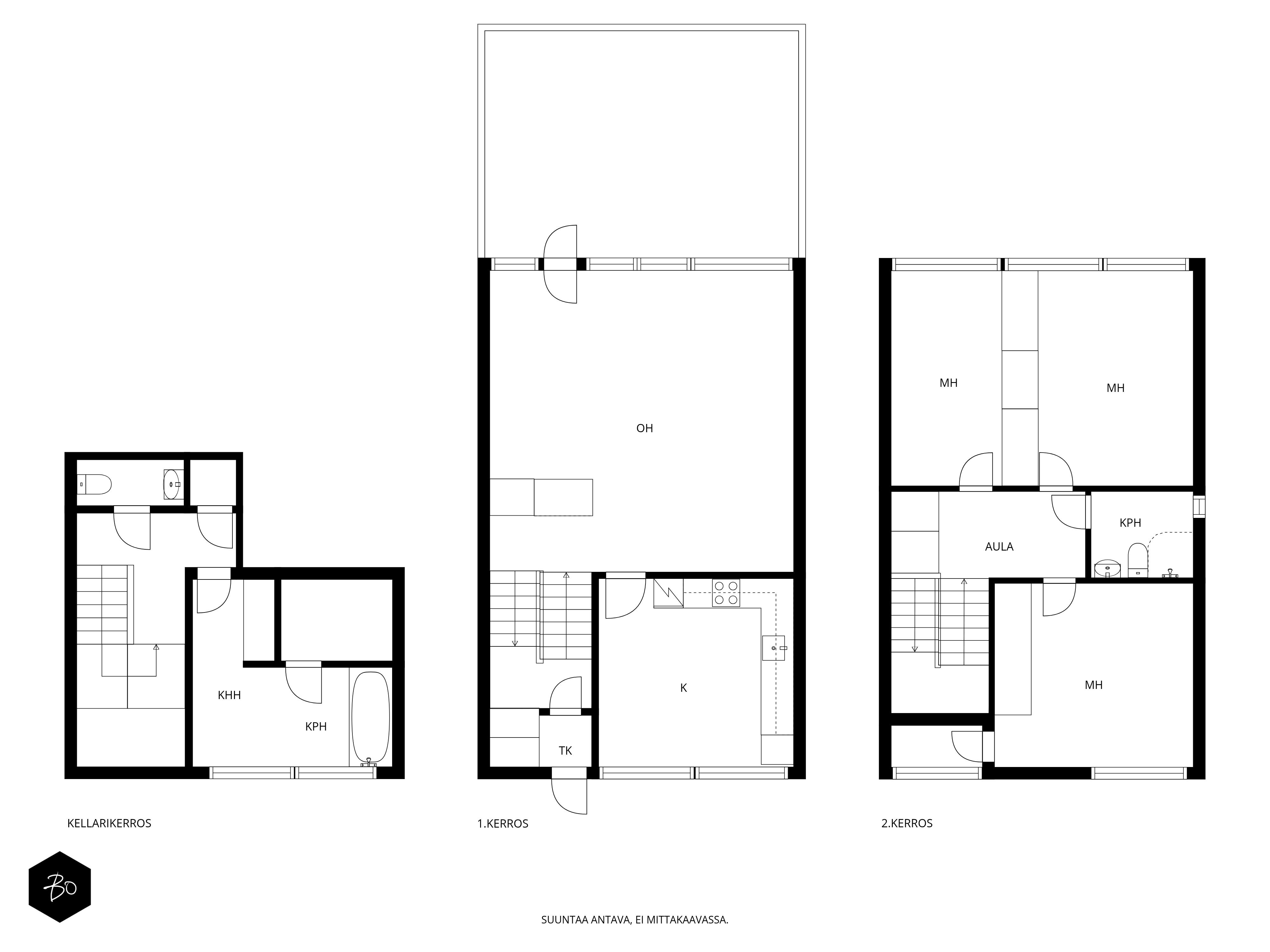
Tässä viehättävässä päätyhuoneistossa on neljä huonetta, keittiö ja oma sauna, jotka tarjoavat erinomaiset puitteet viihtyisälle asumiselle. Asunnon eritasoratkaisu luo mielenkiintoista dynamiikkaa tilojen välille ja avaa mahdollisuuksia erilaisiin sisustuksellisiin ratkaisuihin. Tässä kodissa asut kolmessa kerroksessa ja yläkerta onkin pyhitetty makuuhuoneille. Yläkerrassa on myös pieni parveke vilvoittelulle. Keskikerroksessa on viihtyisä olohuone, josta aukeaa suojaisa takapiha. Takapiha on vehreä ja runsas ja siellä on myös viihtyisä terassialue. Alimmassa kerroksessa on wc, saunaosasto kylpyammeineen sekä kodinhoitotilat. Hyvin suunnitellut sisätilat tarjoavat asumismukavuutta ja toimivuutta arkeen.

Asunto Oy Korte-Ranta muodostuu 6 rakennuksesta ja 32 asuinhuoneistosta. Taloyhtiöllä on oma tontti. Yhtiössä on toteutettu mm. Linjasaneeraus ja vesikaton uusiminen. Myös julkisivujen puuosien-, ikkunoiden- ja ulko-ovien entisöivä kunnostaminen alkaa olla valmiina. Lämmitysmuotona on kaukolämpö.

Kortepohjan asuinalue kuuluu sen aikaisen modernin arkkitehtuurin merkkiteosten joukkoon ja se on arkkitehti Bengt Lundstenin kilpailuvoitto. Näillä pihoilla lapsilla on tilaa virikkeelliseen ja turvalliseen leikkimaailmaan. Kortepohjan päiväkotikoulu sijaitsee asuinalueen keskustassa, kaupan ja kirkon sekä leikkipuiston läheisyydessä. Päiväkotikoulun kanssa samassa rakennuksessa toimii myös Kortepohjan kirjasto. Laajavuoren ulkoilualueet laskettelurinteineen sijaitsevat kävelymatkan päässä.

Älä jätä tätä ainutlaatuista mahdollisuutta välistä, vaan tule kokemaan itse, mitä tämä persoonallinen koti voi tarjota juuri sinulle!

Intresserad av denna bostad?

Kontakta oss eller lämna ett meddelande

Kohteen perustiedot

Kategoria
Myytävä osake
Tuoteryhmä
Asunnot
Tyyppi
Rivitalo
Omistusmuoto
Omistus
Hallintamuoto
Asunto-osakeyhtiö
Huoneistoselitelmä
4h + k + s
Yhtiöjärjestyksen mukainen huoneistoselitelmä
4h + k + s
Huoneita
4h
Sauna
Kyllä
Terassi
Kyllä
Asuintilojen pinta-ala
90,5 m²
Kokonaispinta-ala
90,5 m²
Pinta-alan peruste
Yhtiöjärjestyksen mukainen, isännöitsijäntodistuksen mukainen
Lisätietoa pinta-alasta
Pinta-alan peruste: toimeksiantajan ilmoittama

Mainittu pinta-ala saattaa tämän ikäisessä kohteessa poiketa olennaisesti nykyisten standardien mukaan laskettavasta asuinpinta-alasta. Todellinen asuinpinta-ala voi tarkistusmittauksen jälkeen olla yhtiöjärjestyksessä, isännöitsijäntodistuksessa ja esitteessä mainittua pienempi tai suurempi.
Kerros
1 / 3
Asunnon asuinkerrosten määrä
3 kpl
Vapautuminen
Neuvoteltavissa
Kohde on vuokrattu
Ei

Hinta ja kustannukset

Velaton hinta
154 000,00 € (1 701,66 € / m²)
Velkaosuus
2 378,31 €
Myyntihinta
151 621,69 €
Osakkeeseen kohdistuva velkaosuus voi muuttua, mutta velaton hinta säilyy ennallaan. Velkaosuuden määrä pyritään tarkastamaan isännöitsijäntodistuksesta ja varmistamaan kaupantekopäivän mukaiseksi.
Huoneiston hoitovastike
383,80 € / kk
Rahoitusvastike
80,80 € / kk
Yhtiövastike yhteensä
464,60 € / kk (5,13 € / m²)
Tietoliikenneyhteysmaksu
3,50 € / kk
Vesimaksu
Kulutuksen mukaan
Lisätietoa maksuista
Vesimaksu kulutuksen mukaan, kylmä 6,31€/m3, lämmin 12,32€/m2.
Varainsiirtovero
Ostaja maksaa varainsiirtoveron 1,5 % kaupanteon yhteydessä. Varainsiirtoveron määrä lasketaan velattomasta kauppahinnasta.
Muut kulut
Myyjä ja ostaja vastaavat kumpikin oman pankkinsa mahdollisesti veloittamista kaupantekoon liittyvistä kuluista.

Kohteen kunto ja remontit

Asunnon kunto
Tyydyttävä
Tehdyt ja tulevat korjaukset ja remontit
2015 lattiat, katto ja seinäpinnat, Haltex olohuone ja yksi makuuhuone
2016 markiisi ja terassi

Toimeksiantaja on tehnyt huoneistossa muutostöitä
Muutostöistä on ilmoitettu taloyhtiölle: Kyllä
Korjauksiin haettu / saatu lupa rakennusvalvontaviranomaiselta: Ei tiedossa
Lopputarkastus tehty: Ei tiedossa
Em. Korjauksiin liittyvät suunitelmat ja asiakirjat toimeksiantajalla: Ei tiedossa
Onko asuntoon tehty selvityksiä?
Kyllä
Lisätietoa selvityksistä
Kuntotarkastus tehty: ei
Kosteusmittaus tehty: kyllä

Tilat ja materiaalit

Keittiö
Kuvaus: 2009 uusittu jääkaappipakastin 2012 keittiön alakaapistot
Keittiön lattia uusittu vesivahingon yhteydessä

Varustus: Jääkaappipakastin, pakastin, astianpesukone (uusittu 2018)
Kauppaan kuuluva liesi ja uuni: erillisuuni, liesitaso (keraaminen), hormiin liitetty liesituuletin
Työtaso: Puutaso, kivitaso
Lattia: Parkettilattia
Seinät: Maalattu seinä, tapettiseinä, osalaatoitusseinä
Kylpyhuone
Kuvaus: 2012 remontoitu
Varustus: Suihku, lattialämmitys (sähköinen ), pesukoneliitäntä, kylpyamme
Lattia: Laattalattia
Seinät: Laattaseinä
Sauna
Kuvaus: 2012
Varustus: Sähkökiuas
Lattia: Laattalattia
Seinät: Puuseinä
WC
Lukumäärä: 2
Kuvaus: 2012
Varustus: Lattialämmitys, peilikaappi, bideesuihku
Lattia: Laattalattia
Seinät: Laattaseinä
Kodinhoitohuone
Varustus: Pyykkikaapit, lattialämmitys, pöytätaso
Lattia: Laattalattia
Seinät: Maalattu seinä
Olohuone
Kuvaus: 2015 seinät, lattia ja katto
Lattia: Parkettilattia
Seinät: Tapettiseinä, maalattu seinä, lasikuitutapettiseinä
Makuuhuone
Lukumäärä: 3
Lattia: Parkettilattia
Seinät: Tapettiseinä, maalattu seinä
Asunnon käytössä olevat autopaikat
Ulkoautopaikka
Autopaikan hallintaperuste: Yhtiöltä vuokrattu
Huoneistolla on piha-alue
Asuntoon kuuluu piha: Kyllä
Piha-alueen hallintaperuste: Yhtiöjärjestyksen mukainen
Lisätietoa asunnon tiloista
parveke

Muut tilat: eteinen, tuulikaappi, terassi, patio
Lattialämmitys (missä tiloissa, alkuperäinen vai jälkikäteen asennettu, vesikiertoinen vai sähkötoiminen, mukavuuslämmitys)
sähköinen, kylpyhuone ja khh taloyhtiön sähköissä
Muuta kauppaan kuuluvaa
kaapistot, sälekaihtimet/rullaverhot, naulakko, kiinteät valaisimet, markiisi
Muuta kauppaan kuuluvaa: Yläkaapistot olohuone

Taloyhtiö

Nimi
Asunto Oy Korte-ranta
Y-tunnus
0219558-5
Osoite
Torpankuja 5
Postinumero
40740
Postitoimipaikka
Jyväskylä
Kunta
Jyväskylä
Isännöitsijän nimi ja yhteystiedot
Oiva Isännöinti Noste Oy / Ossi Ojanen, 044 737 2267
Kiinteistönhoidosta vastaa
Huoltoyhtiö
Lisätietoa kiinteistönhoidosta: Jyväskylän Huoltosilta Oy
Tontin pinta-ala
5 495 m²
Tontin omistus
Oma
Kaavoitus
Asemakaava
Lisätietoa kaavoituksesta: Jyväskylän karttapalvelu.
Kortepohjan suojelukaava: Kortepohjan alueella suunnitellaan kaavamuutosta, jonka tavoitteena on turvata valtakunnallisesti merkittävän rakennetun kulttuuriympäristön arvojen säilyminen. Kaavamuutosalue rajautuu Laajavuorentiehen, Emännäntiehen, Auvilankujaan ja Takalankujaan.
Rakennusvuosi
1968
Käyttöönottovuosi
1968
Yhtiön osakeluettelo on huoneistotietojärjestelmässä
Kyllä
Osakeryhmätunnus
OHABTTCDXZKDK815
Kattotyyppi
tasakatto
Katemateriaali
huopa
Energialuokka
D2018
Lämmitysjärjestelmä
Kaukolämpö
Kiinteä laajakaistasaatavuus
Kyllä
Lisätietoa internetyhteyksistä
Elisa Oyj
TV-yhteydet
Kaapeli-TV
Tehdyt korjaukset ja remontit
1994 Yläpohjan lisäeristäminen ja vesikatteen uusiminen
1999 Salaojien kuvaus ja kunnostus
2006 Ilmastointihormien puhdistus
2009 Piha-aitojen kunnostus
2009 - 2010 Linjasaneerauksen/putkiremontin suunnittelu
2011 - 2012 Linjasaneeraus
2013 Lämmityksen tasapainotus
2014 Linjasaneerauksen takuuajantyöt
2015 - 2016 D-talon maaperäisen kosteuden aiheuttamien vahinkojen korjauksia
2017 Kattosaneerauksen suunnittelutyöt
2018 Kattojen saneeraus
2019 D-talon pohjoispäädyn seinärakenteen ja salaojan kunnostus 2019
2020 Leikki- ja piha-alueiden uudistus- ja kunnostustyöt
2021 Kiinteistön kuntoarvio
2022 F29 ja F30 kosteusvauriokorjaukset
2022-2023 Julkisivu- ja salaojasaneerauksen suunnittelu
2023 D18 korvausilmaventtiilien lisäys ja lattian tiivistys
2023 Salaojakorjauksen suunnittelun loppuun vieminen
2023 F-talon edustan kävelytien laatoituksen uudelleenasennus
2023 C-talon eteläseinän panelien kiinnitys ja maalaus
2024 Entisöivän julkisivukorjauksen suunnittelu ja kilpailuttaminen
Tulevat korjaukset ja remontit
Hallituksen selvitys kunnossapitotarpeista vuosille 2025-2029:
2025 Salaojien- ja viemäreiden kuntotutkimus
2025 IV-kanavien puhdistus
2025 Palovaroittimet huoneistoihin
- Siporex-seinien kuntotukimus/korjaus

Yhtiön päättämät korjaukset:
2024-2025 Puujulkisivujen ja ikkunoiden kunnostukset (kustannusarvio hankkeelle 550 000€)
Osakkeiden keskinäiset sopimukset korjausten ja kunnossapidon osalta
Määräyksiä kunnossapitovastuusta yhtiöjärjestys 16§
Tehdyt selvitykset
Kunnossapitotarveselvitys: 2025
Muut tilat
Urheiluvälinevarasto
Lisätietoa tiloista
Ilmanvaihto: painovoimainen.
Huoneistot ja muut tilat
Asuntojen lukumäärä: 32 kpl
Asuntojen kokonaispinta-ala: 3 042 m²
Autopaikat
Lisätietoa autopaikoista: Autopaikkoja hallinnoi Kortepaikoitusyhtymä.
Isännöitsijäntodistuksen päiväys
19.9.2025
Yhtiön ottamat lainat
110 658,79 €
Yhtiön kiinnitykset
2 357 177,00 €

Palvelut ja liikenneyhteydet

Muuta
Sale Kortepohja n. 600m, S-Market Savela n. 1,4km. Kortepohjan kirjasto n. 650m. Kyllön terveysasema n. 2,6km.
Voionmaan koulu n. 2,2km.
Kortepohjan päiväkotikoulu n. 650m. Päiväkoti Norlandia Niittytähti n. 400m.
Liikenneyhteydet
Jyväskylän paikallisliikenne, lähin pysäkki n. 200m.

Kohteen viat, vahingot ja niiden ajankohdat

Onko asunnossa ollut vesivahinko?
Kyllä
Vahingon ajankohta
ei tiedossa
Vahingon syy
2021 Astianpesukoneen liitäntävuoto. Lattia vaihdettu, allaskaappi uusittu
2023 Eteisen patterivuoto. Tuulikaapin lattia avattiin ja kuivatettiin sekä lattia ja seinä vaihdettiin. Molemmat kuivatettu taloyhtiön toimesta.

Asumisviihtyvyyteen vaikuttavat seikat omistajan ilmoituksen mukaan

Melu / haju / tärinä yms.
ei omistajan mukaan
Kuumuus / kylmyys / veto yms.
ei omistajan mukaan
Tuhohyönteiset, jyrsijät, tms.
ei omistajan mukaan
Toiminnalliset ja tekniset viat (esim. vesijohdon huono paine, kännykän kuuluvuus, heikko televisiosignaali)
ei omistajan mukaan
Muuta
ei omistajan mukaan

Osakekirja

Osakkeiden numerot
2561-2762
Osakkeiden lukumäärä
202
Huoneistotietojärjestelmä
Ostajan tulee hakea omistusoikeutensa rekisteröintiä huoneistotietojärjestelmään Maanmittauslaitokselta kahden kuukauden kuluessa kauppakirjan allekirjoituksesta. Samalla ostajan on toimitettava paperinen osakekirja Maanmittauslaitokselle mitätöitäväksi. Ostaja on tietoinen siitä, että mikäli edellä mainittu määräaika laiminlyödään, seuraa tästä hakemusmaksun korotus. Ostaja vastaa omistusoikeuden rekisteröintikustannuksista, osakekirjan mitätöinnistä aiheutuvista mahdollisista kustannuksista sekä mahdollisesta hakemusmaksun korotuksesta.
Torpankuja 5 C 13 - bild 1 Torpankuja 5 C 13 - bild 2 Torpankuja 5 C 13 - bild 3 Torpankuja 5 C 13 - bild 4 Torpankuja 5 C 13 - bild 5 Torpankuja 5 C 13 - bild 6 Torpankuja 5 C 13 - bild 7 Torpankuja 5 C 13 - bild 8 Torpankuja 5 C 13 - bild 9 Torpankuja 5 C 13 - bild 10 Torpankuja 5 C 13 - bild 11 Torpankuja 5 C 13 - bild 12 Torpankuja 5 C 13 - bild 13 Torpankuja 5 C 13 - bild 14 Torpankuja 5 C 13 - bild 15 Torpankuja 5 C 13 - bild 16 Torpankuja 5 C 13 - bild 17 Torpankuja 5 C 13 - bild 18 Torpankuja 5 C 13 - bild 19 Torpankuja 5 C 13 - bild 20 Torpankuja 5 C 13 - bild 21 Torpankuja 5 C 13 - bild 22 Torpankuja 5 C 13 - bild 23 Torpankuja 5 C 13 - bild 24 Torpankuja 5 C 13 - bild 25 Torpankuja 5 C 13 - bild 26 Torpankuja 5 C 13 - bild 27 Torpankuja 5 C 13 - bild 28 Torpankuja 5 C 13 - bild 29 Torpankuja 5 C 13 - bild 30 Torpankuja 5 C 13 - bild 31 Torpankuja 5 C 13 - bild 32 Torpankuja 5 C 13 - bild 33 Torpankuja 5 C 13 - bild 34 Torpankuja 5 C 13 - bild 35