Vanha Lahdentie 12c

Sepänniemi, Heinola | Omakotitalo | oh,4mh,k,et,2vh,pukuh,kph,s,khh,2erill.wc,aula,2parveke,lasitettu terassi + 2 auton katos ja lämmin varasto

  • 399,000 €

    Debt-free price

  • 192.0 m2

    Living area

  • 236.0 m2

    Total area

  • 2012

    Year of construction

Uljas kivitalo Sepänniemessä

Tämä ajattoman tyylikäs koti on kaunis kokonaisuus kahdessa tasossa. Talon pohjaratkaisu on harkittu ja tilat viimeistelty yhtenevin materiaalein. Talossa on yksityiskohtia, jotka tekevät tästä kodista upean yksilön. Ihastuttava korkealle kohoava viistokatto, lattian rajaan ulottuvat korkeat ikkunat ja avoin keittiö yhdessä olohuoneen kanssa luovat elämiseen laadukkaat puitteet.

Talo on valmistunut vuonna 2012 ja siinä on moderni maalämpö, joka tarjoaa edulliset asumiskustannukset. Vesikiertoinen lattialämmitys koko talossa on miellyttävä ja kaunis takka oleskelutilojen keskiössä tuo lämpöä ja tunnelmaa.

Puhdaslinjainen, vaalea keittiö ja kätevä saareke tuovat iloa arkeen ja päivittäinen ruoanlaitto on vaivatonta. Lasku- ja kaappitilaa on runsaasti, ja kaikki kodinkoneet integroitu kalusteisiin. Ruokailutila on keittiön välittömässä läheisyydessä valoisalla paikalla ikkunoiden äärellä.

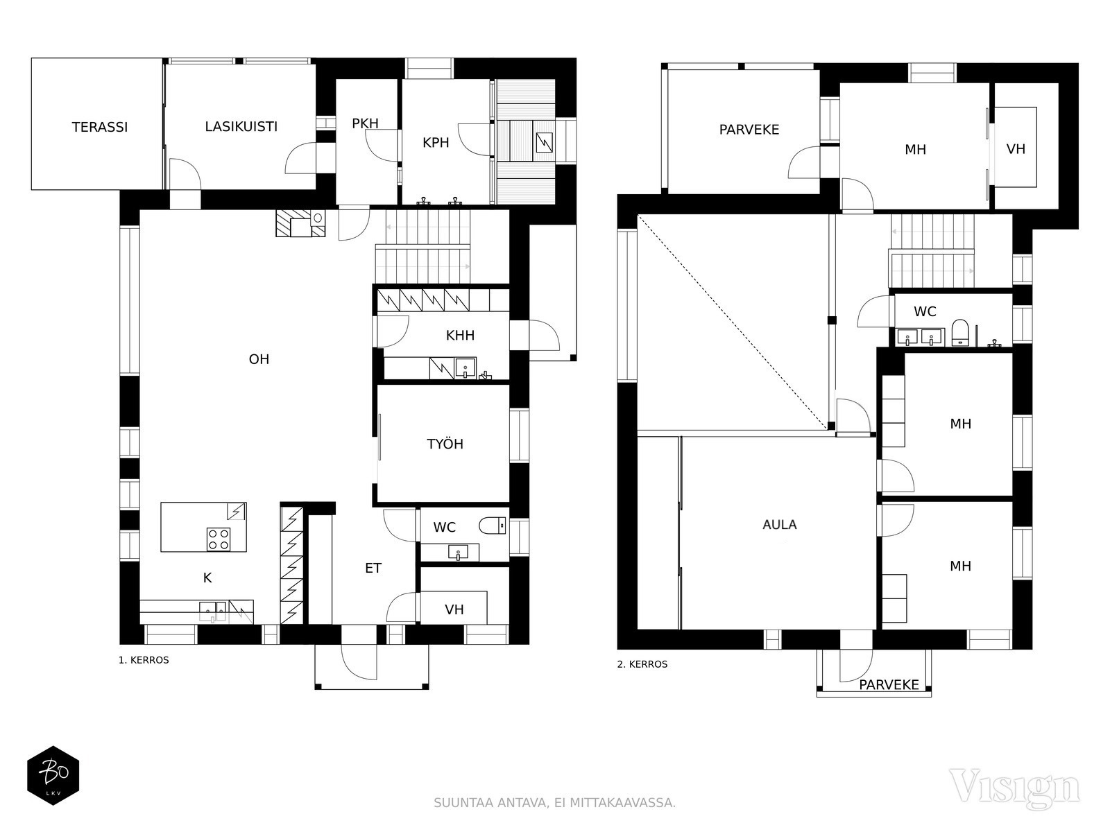
Kodinhoitohuone sijaitsee käytännöllisesti alakerrassa. Kulku ulos ja kurapiste helpottavat arkea kotieläinten ja pienten lasten kanssa, kuten myös kaksi erillistä wc:ta. Upea saunaosasto pukeutumistiloineen ja lasitettu terassi kutsuvat rentoutumaan. Makuuhuoneita talosta löytyy neljä, kaikki mukavan kokoisia. Huoneiden käyttötarkoitusta on helppo muuttaa tarpeen mukaan.

Lasikaiteinen portaikko ja seinään upotetut porrasvalot johdattavat yläkertaan, jossa kolme kodin makuuhuoneista ja monikäyttöinen aula, joka on suljettu omaksi tilaksi. Aula tarjoaa tilaa oleskeluun tai vaikkapa harrastuksiin. Päämakuuhuoneen yhteydessä on tilava vaatehuone sekä kulku katetulle parvekkeelle. Yläkerran wc on varustettu suihkulla ja kahdella lavuaarilla. Siivouspäivien luksusta on erillinen tuuletusparveke.

Pihasta löytyvät myös kahden auton autokatos ja tilava lämmin varasto sekä käytännöllinen katos esimerkiksi polkupyörille. Tasainen, valaistu nurmipiha on viimeistelty istutuksin ja pihakiveyksin. Autokatoksessa sähköautolle lataus.

Rauhallinen asuinalue veden läheisyydessä ja päättyvän pihatien kulmassa takaa yksityisyyden. Kulkuyhteydet alueelta ovat hyvät. Moottoritielle ajat autolla parissa minuutissa, Vierumäelle suora tieyhteys ja 15 minuutin matka. Heinolan torille vain kilometri. Lapsiperheille päiväkoti ja koulu löytyvät turvallisesti lähialueelta, ja veneilijälle laituripaikat. Väylät avautuvat niin Päijänteelle, Konnivedelle, Vesijärvelle kuin Keiteleellekin saakka. Sepänniemen kaunis ranta-alueen kävelyreitti ja uimaranta ovat nekin vieressä.

Tässä on upea kokonaisuus! Talo on pidetty siististi ja tänne pääset muuttamaan ilman suuria remonttihuolia. Tervetuloa tutustumaan tähän hurmaavaan kotiin!

Bo LKV Oy | Leena Talvio, LKV | 040 152 4062 | leena.talvio@bo.fi

THIS IS WHERE THE STORY BEGINS.

Interested in this property?

Contact us or leave a message

HUONEISTO

Hallintamuoto
Oma
Huoneluku
Oh,4mh,k,et,2vh,pukuh,kph,s,khh,2erill.wc,aula,2parveke,lasitettu terassi + 2 auton katos ja lämmin varasto
Kerros
1
Kerroksia
2
Asuinpinta-ala
192,0 m²
Muut tilat
44,0 m²
Lisätietoja pinta-alasta
Rakennuslupa 2010-432 / 01.02.2011 (kokonaisala 236m²).
Lisäksi autokatos-varastorakennus kahdelle autolle, 18 k-m². Autokatoksessa sähköauton latausasema (11 kW)
Keittiön kuvaus, lisätiedot ja varustus
Integroidut 2 x jääkaappi/pakastin, kahvikone.
Liesi
Induktio, erillisuuni
Keittiön muut varusteet
Liesituuletin, mikroaaltouuni, astianpesukone
Keittiön työtasojen materiaali
Laminaatti
Keittiön lattiamateriaali
Laminaatti
Keittiön seinien materiaali
Maalattu, muu
Pesutilojen kuvaus, lisätiedot ja varustus
2 x suihku, kylpy-/poreammevaraus, ikkuna
Kylpyhuoneen varustus
Lattialämmitys, suihku
Kylpyhuoneen lattiamateriaali
Laatta
Kylpyhuoneen seinämateriaali
Kaakeli
WC-tilojen kuvaus
Yläkerran wc: wc-istuin, 2 x pesuallas, allaslaatikosto, peili, suihkuseinä, suihku suihku, lattiakaivo. alakerran wc: wc-istuin, pesuallas, allaslaatikosto, peili.
Varustus: lattialämmitys, bidee-suihku
Lukumäärä: 2
Lattiamateriaalit: laatta
Seinämateriaalit: kaakeli
Kodinhoitohuone
Talotekniikka tässä tilassa; sähkökaappi, ilmanvaihtokone, maalämpöyksikkö, keskuspölynimuri.
Varustus: pesukoneliitäntä, pesuallas, lattialämmitys, kurapiste, pöytätaso, keskuspölynimuri
Lattiamateriaalit: laatta
Seinämateriaalit: maalattu
Sauna
Asunnossa on sauna
Saunan kuvaus, lisätiedot ja varustus
Lauteet vastakkain kiuas keskellä, saunassa ikkuna.
Saunan lattiamateriaali
Laatta
Saunan seinämateriaali
Puu
Makuuhuoneen kuvaus, lisätiedot ja varustus
Alakerran huone soveltuu hyvin myös työhuoneeksi. Yläaula oleskelu-/harrastetilaksi.
Lukumäärä: 4
Lattiamateriaalit: laminaatti
Seinämateriaalit: maalattu, tapetti
Oleskelutilojen kuvaus, lisätiedot ja varustus
Lattiamateriaalit: laminaatti
Seinämateriaalit: maalattu, tapetti
Muut säilytystilat
Vaatehuone, ulkovarasto
Muuta kauppaan kuuluvaa
Sälekaihtimet, roskakatos, pyöräkatos, koripalloteline, keinut, jätesäiliöt.
Muutostyöt huoneistossa
Vuonna 2021 seinäpintojen maalaus ja tapetointi, viinikaappi asennettu saarekkeeseen, maalämpökoneen ohjausyksikkö uusittu, katettu terassi lasitettu, alakerran wc-istuimen säiliömekanismi ja portaikon seinähalkeamat korjattu. 2022 Yläkerran aulan puolikorkea seinä levytetty kattoon asti ja käytävälle lisätty äänieristetty ovi. Seinäpintojen maalausta. Autokatokseen lisätty 11kW sähköauton laturi.
Kunto
Hyvä
Takka
Varaava, paikalle muurattu (2-vaiheinen, suora/varaava)
Takkatiedot
Takka
Kauppaan ei kuulu
Irtaimisto

KIINTEISTÖ- JA YHTIÖTIEDOT

Asuinpinta-ala
192,0 m² (236,0 m²)
Kiinteistötunnus
111-22-3-14
Tyyppi
Tontti
Tontin omistus
Oma
Tontin koko
1 009,00 m²
Tontin tyyppi
Tasamaatontti
Tontin kuvaus
Tie perille
Panttikirjat
470 000,00 €
Rakennusvuosi (aloitettu)
2011
Rakennusmateriaali
Kivi, siporex
Rakennusmateriaalin kuvaus
Siporex massiiviharkko 500
Muut rakennukset
Asuinrakennus, Autokatos, Varasto
Kattotyyppi
Harjakatto
Kate
Peltikate
Lämmitysjärjestelmä
Vesikiertoinen lattialämmitys. Maalämpö vesikiertoisella lattialämmityksellä
Lämmitysjärjestelmän kuvaus
Maalämpö
Ilmanvaihtojärjestelmä
Koneellinen tulo, koneellinen poisto, lämmön talteenotto
Vesijohto
Kunnan
Viemäri
Kunnan
Rakennusoikeus, e-luku
0.42
Lisätietoja rakennusoikeudesta
AKR-5
Omakotitalon ja autokatos/varaston rakentaminen alueelle, joka on kaavan mukaan asuinkerrostalojen ja rivitalojen korttelialuetta (AKR-5). Hankkeelle on Heinolan ympäristö- ja rakennuslautakunnan lainvoimainen poikkeamispäätös (2010-343).

MUITA TIETOJA

Kaavoitus
Asemakaava
Palvelut
Moottoritien liittymään autolla 2:den minuutin matka. Vierumäelle 15 minuuttia, suora tieyhteys. Helsingin keskustaan 135 km, Lahden keskustaan 37 km, moottoritieyhteys.
Muut palvelut
Uimarannat ja venepaikat lähietäisyydellä.
Koulu
Koulut ja päiväkodit alle 1 km.
Vapautuu
Sopimuksen mukaan

ASUMISKUSTANNUKSET

Muut maksut / lisätietoa maksuista
Sähkönkulutus 2024; 13 864 kWh + sähköauton lataus 7 037 kWh, yhteensä 20 901 kWh, vesi- ja jätevesimaksut käytön ja kulutuksen mukaan, jätehuolto sopimuksen mukaan + ekomaksu. Varainsiirtovero 3 %.
Kiinteistövero
1 147,74 €

HINTA

Myyntihinta
399 000,00 €
Velaton hinta
399 000,00 €
Vanha Lahdentie 12c - image 1 Vanha Lahdentie 12c - image 2 Vanha Lahdentie 12c - image 3 Vanha Lahdentie 12c - image 4 Vanha Lahdentie 12c - image 5 Vanha Lahdentie 12c - image 6 Vanha Lahdentie 12c - image 7 Vanha Lahdentie 12c - image 8 Vanha Lahdentie 12c - image 9 Vanha Lahdentie 12c - image 10 Vanha Lahdentie 12c - image 11 Vanha Lahdentie 12c - image 12 Vanha Lahdentie 12c - image 13 Vanha Lahdentie 12c - image 14 Vanha Lahdentie 12c - image 15 Vanha Lahdentie 12c - image 16 Vanha Lahdentie 12c - image 17 Vanha Lahdentie 12c - image 18 Vanha Lahdentie 12c - image 19 Vanha Lahdentie 12c - image 20 Vanha Lahdentie 12c - image 21 Vanha Lahdentie 12c - image 22 Vanha Lahdentie 12c - image 23 Vanha Lahdentie 12c - image 24 Vanha Lahdentie 12c - image 25 Vanha Lahdentie 12c - image 26 Vanha Lahdentie 12c - image 27 Vanha Lahdentie 12c - image 28 Vanha Lahdentie 12c - image 29 Vanha Lahdentie 12c - image 30 Vanha Lahdentie 12c - image 31 Vanha Lahdentie 12c - image 32 Vanha Lahdentie 12c - image 33 Vanha Lahdentie 12c - image 34 Vanha Lahdentie 12c - image 35 Vanha Lahdentie 12c - image 36 Vanha Lahdentie 12c - image 37 Vanha Lahdentie 12c - image 38 Vanha Lahdentie 12c - image 39 Vanha Lahdentie 12c - image 40 Vanha Lahdentie 12c - image 41 Vanha Lahdentie 12c - image 42 Vanha Lahdentie 12c - image 43 Vanha Lahdentie 12c - image 44 Vanha Lahdentie 12c - image 45 Vanha Lahdentie 12c - image 46 Vanha Lahdentie 12c - image 47 Vanha Lahdentie 12c - image 48 Vanha Lahdentie 12c - image 49 Vanha Lahdentie 12c - image 50