Kaivokatu 18

Empire-Porvoo, Porvoo | Puutalo-Osake | 7h, k, 2xkph, s, khh, 3 wc, tekn.tila, kellaritilat

  • 645,000 €

    Debt-free price

  • 239.0 m2

    Living area

  • 296.73 €/mo

    Maintenance fee

  • 1910

    Year of construction

Ylväs ja edustava arvokiinteistön huoneisto isommallekin perheelle Porvoon kulttuurihistoriallisessa empirekaupungin osassa, jossa yksi Porvoon upeimpia sisäpihoja.

Hyvin hoidettu talo on rakennettu vuonna 1910 ja muutettu asunto-osakeyhtiömuotoon 1980-luvulla.

Sijainti on loistava: Porvoon viihtyisä jokiranta, tori ja vanha kaupunki kahviloineen ja ravintoloineen ovat kävelyetäisyydellä ja viereisissä kortteleissa sijaitsevat urheilukentät, uimahalli ja Joonaanmäen ulkoilumetsä tarjoavat mahtavat puitteet lähiliikuntaan.

Taloyhtiön omalla aidatulla rauhallisella sisäpihalla oleskellaan ja nautitaan kesäisin hedelmäpuiden ja vanhojen lehtipuiden vehreydestä.

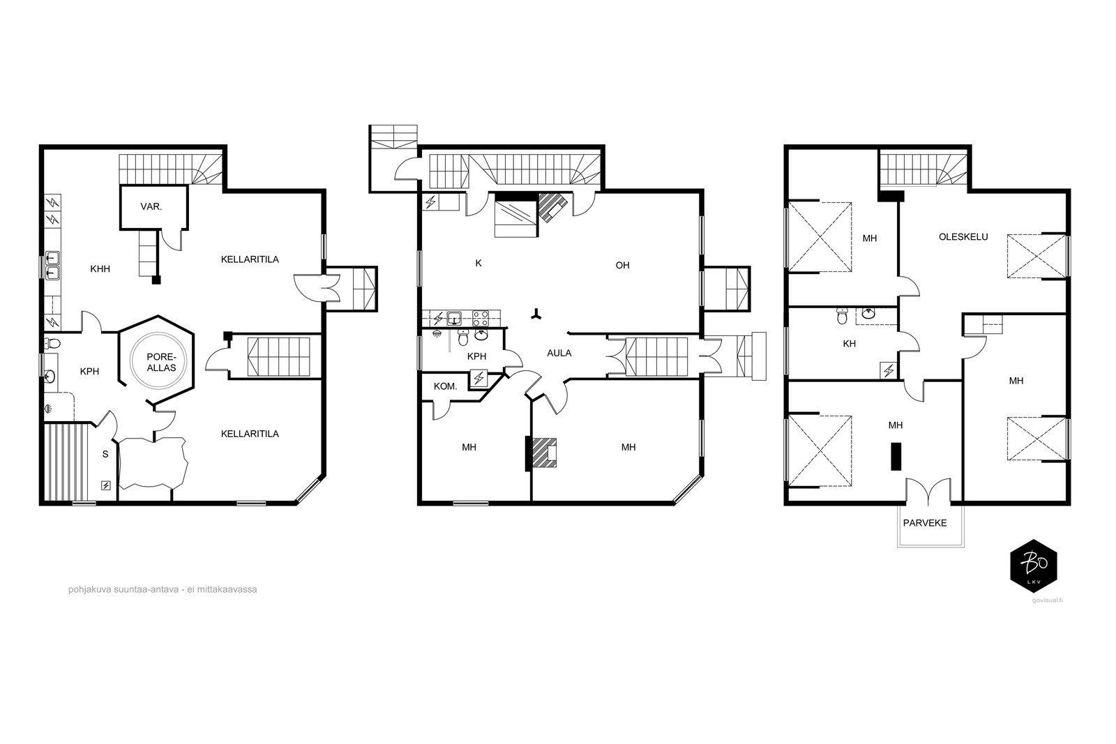
Itse huoneisto on upeasti ja tasokkaasti remontoitu lähivuosina ja se käsittää 1.kerroksessa eteisaulan, keittiön, 2 makuuhuonetta, olohuoneen kakluunilla ja wc:n. Yläkerrasta löytyy 3 makuuhuonetta, iso aula ja kylpyhuone. Lisäksi kellarikerroksessa on hyvät harrastetilat, kodinhoitohuone ja upea saunatila poreameella. Kellaritila on uusittu vuonna 2017.

Korkeat huoneet ja persoonalliset yksityiskohdat luovat asuntoon ainutlaatuisen tunnelman.

Tätä kotia ei voi sanoin kuvailla, vaan tämä on nähtävä, joten varaa oma esittelyaikasi tai kysy lisätietoja: Kristian Lindfors 050 326 9090 / kristian@bo.fi

Interested in this property?

Contact us or leave a message

HUONEISTO

Osakkeet
45405-60000
Hallintamuoto
Asunto-osakeyhtiö
Huoneluku
7h, k, 2xkph, s, khh, 3 wc, tekn.tila, kellaritilat
Kerros
1-3
Kerroksia
3
Asuinpinta-ala
239,0 m²
Muut tilat
0,0 m²
Lisätietoja pinta-alasta
Yhtiöjärjestyksen mukainen. Isännöitsijäntodistuksen mukainen.
Näkymät
Sisäpihalle
Parveke
Ranskalainen
Keittiön kuvaus, lisätiedot ja varustus
Remontoitu 2024, (urban Kitchens)
Liesi
Induktio, erillisuuni
Keittiön muut varusteet
Astianpesukone, kiinteät valaisimet, liesituuletin / hormi
Keittiön työtasojen materiaali
Kivi
Keittiön lattiamateriaali
Lauta
Keittiön seinien materiaali
Maalattu
Pesutilojen kuvaus, lisätiedot ja varustus
2017 Remontoitu
Kylpyhuoneen varustus
Poreamme, lattialämmitys, wc-istuin, suihku, kiinteät valaisimet
Kylpyhuoneen lattiamateriaali
Laatta
Kylpyhuoneen seinämateriaali
Kaakeli
WC-tilojen kuvaus
1 erillinen wc, 2 wc:tä kylpyhuoneiden yhteydessä
Varustus: peilikaappi
Lukumäärä: 3
Kodinhoitohuone
Remontoitu 2017
Varustus: pesukoneliitäntä, pesuallas, pöytätaso
Lattiamateriaalit: laatta
Seinämateriaalit: maalattu
Sauna
Asunnossa on sauna
Saunan kuvaus, lisätiedot ja varustus
Yhtiössä myös erillinen saunaosasto osakkaiden käytössä.
Saunan lattiamateriaali
Laatta
Saunan seinämateriaali
Puu
Makuuhuoneen kuvaus, lisätiedot ja varustus
Lukumäärä: 5
Lattiamateriaalit: lauta
Seinämateriaalit: maalattu
Oleskelutilojen kuvaus, lisätiedot ja varustus
Lattiamateriaalit: lauta
Seinämateriaalit: maalattu
Muutostyöt huoneistossa
Rakennuslupa 2006-277 (laajennus ullakko- ja kellari) loppukatselmus pidetty 17.4.2008.
Rakennuslupa 2010-89 (sisäisiä muutoksia kellari- ja ullakkokerrokselle ja julkisivumuutoksia. Loppukatselmusta ei ole pidetty!
Kunto
Hyvä

KIINTEISTÖ- JA YHTIÖTIEDOT

Yhtiön nimi
Asunto Oy Porvoon Kaivokatu 18
Tontin omistus
Oma
Tontin koko
1 882,90 m²
Käyttöönottovuosi
1910
Rakennusmateriaali
Hirsi
Kattotyyppi
Harjakatto
Kate
Peltikate
Lämmitysjärjestelmän kuvaus
Puu, sähkö
Tehdyt korjaukset ja remontit
Peltikatto, vesi- ja viemäriputket sekä sähköasennukset 1984, sauna 1986, takkahuone (ei takkaa) 1988, lasten leikkitila 1989, ulkomaalaus 1998, peltikaton korjausmaalaus, auto- ja jätekatos, autotallien ja varaston ovet 2003, ulkomaalaus 2010, syöksytorvien kaapelointi 2011, syöksytorvien jatkaminen ja betonivesikourut, vesikatolla kulkusiltojen uusiminen ja turvakiskot 2014, julkisivujen maalaus valkoiset osat 2017, pihakaivokorjaus, uusi kaivo ja peltikaton paikkamaalaus 2018, saunaosaston seinien ja lattian maalaus, julkisivujen maalaus vihreät osat etelä ja länsi, sulanapitokaapeli uusittu 1 kpl ja graniittisokkeleiden puhdistus 2019, metalliporttien hiekkapuhallus ja maalaus 2020, peltikaton maalaus ja sisäjiirien peltisaumojen tiivistäminen 2022, saunaosaston pattereiden uusinta 2022, aurinkovoimala 2023, piippujen iv:kanavat, eristys uudet kannet vesijohdon pääventtiilin uusinta 2024, jalkakätävän asfaltointi 2024, eteläpäädyn ja länsiseinän alimmat valkoiset vaaka ja reunalistat maalattiin 2024, piharakennuksen katon bitumimaalaus 2025, kiinteistöön tuleva sähkökaapeli pääkeskukselle uusittiin 2025.
Tiedossa olevat tulevat korjaukset/remontit
Julkisivu maalaus pohjois ja itäsivu 2025-2029, Raja-aidat 2025-2030. Yhtiöllä on vastuunjakosopimus.
Autotallit
1
Autokatokset
5
Isännöitsijäntodistuksen mukainen päivämäärä
27.10.2025
Lainat
12 159,98 €
Kiinnitykset
100 000,00 €
Isännöitsijä
Toivo Kiviranta 0504533422
Kiinteistönhoito
Asukkaat
Taloyhtiössä muuta
Sauna, kellarikomero, urheiluvälinevarasto. Takkahuone

MUITA TIETOJA

Kaavoitus
Asemakaava
Lisätietoa kaavoituksesta
Porvoon Kaavaosasto
Vapautuu
Sopimuksen mukaan

ASUMISKUSTANNUKSET

Hoitovastike
296,73 €/kk (1,24 €/m²)
Yhtiövastike yhteensä
391,54 €
Rahoitusvastike
94,81 €/kk (0,40 €/m²)
Muut maksut / lisätietoa maksuista
Kokonais energiankulutus ollut n. 32000 Kwh vuodessa. ostaja vastaa omistusoikeuden rekisteröinnistä aiheutuvista kustannuksista, varainsiirtovero 1,5%.
Autopaikka
15,00 €/kk

HINTA

Myyntihinta
639 447,75 € (2 675,51 €/m²)
Velaton hinta
645 000,00 € (2 698,74 €/m²)
Velkaosuus
5 552,25 € (23,23 €/m²)
Kaivokatu 18 - image 1 Kaivokatu 18 - image 2 Kaivokatu 18 - image 3 Kaivokatu 18 - image 4 Kaivokatu 18 - image 5 Kaivokatu 18 - image 6 Kaivokatu 18 - image 7 Kaivokatu 18 - image 8 Kaivokatu 18 - image 9 Kaivokatu 18 - image 10 Kaivokatu 18 - image 11 Kaivokatu 18 - image 12 Kaivokatu 18 - image 13 Kaivokatu 18 - image 14 Kaivokatu 18 - image 15 Kaivokatu 18 - image 16 Kaivokatu 18 - image 17 Kaivokatu 18 - image 18 Kaivokatu 18 - image 19 Kaivokatu 18 - image 20 Kaivokatu 18 - image 21 Kaivokatu 18 - image 22 Kaivokatu 18 - image 23 Kaivokatu 18 - image 24 Kaivokatu 18 - image 25 Kaivokatu 18 - image 26 Kaivokatu 18 - image 27 Kaivokatu 18 - image 28 Kaivokatu 18 - image 29 Kaivokatu 18 - image 30 Kaivokatu 18 - image 31 Kaivokatu 18 - image 32 Kaivokatu 18 - image 33 Kaivokatu 18 - image 34 Kaivokatu 18 - image 35 Kaivokatu 18 - image 36 Kaivokatu 18 - image 37 Kaivokatu 18 - image 38 Kaivokatu 18 - image 39 Kaivokatu 18 - image 40 Kaivokatu 18 - image 41 Kaivokatu 18 - image 42 Kaivokatu 18 - image 43