Heinämiehentie 15A

Länsi-Pakila, Helsinki | Omakotitalo | 4mh+k+oh+rt+2*wc+s+kph+khh

  • 692,000 €

    Debt-free price

  • 104.0 m2

    Living area

Länsi-Pakilan rauhallisella ja arvostetulla pientaloalueella on nyt tarjolla oma tontti, johon on mahdollisuus rakennuttaa talo valmiina olevien suunnitelmien mukaan.

Kotipihasta on vain 15 minuutin ajomatka Helsingin keskustaan ja se tarjoaa silti rauhaa ja yksityisyyttä harvinaislaatuisella tavalla. Läheltä löytyvät mm. arvostetut koulut ja päiväkodit.

Kiinteistöltä on purettu rakennus ja se on valmiiksi lohkottu kolmeksi tontiksi.

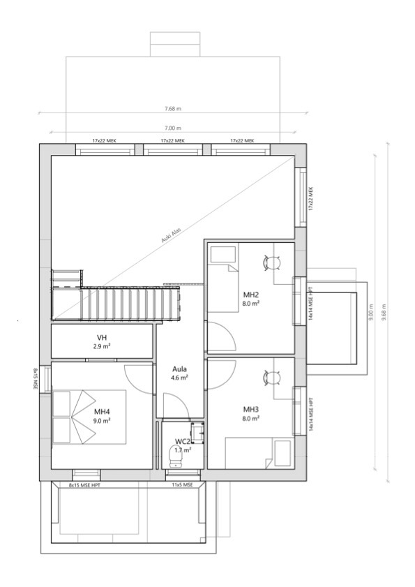
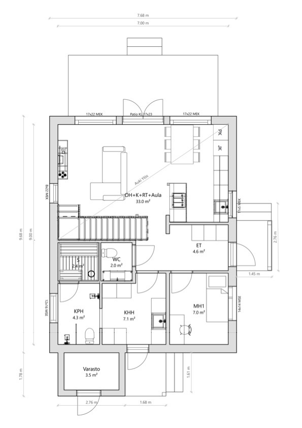
Tontille on myös talon rakentamissuunnitelmat valmiina. Tälle A-tontille suunniteltu omakotitalo on 4mh+k+oh+rt+2*wc+s+kph+khh, jonka asuinpinta-ala 104 m2, kerrosala 139 m2.
Jos haluat käyttää tätä valmista suunnitelmaa, solmit erillisen urakkasopimuksen talon rakentamisesta ja tarkemmat ehdot suoraan rakennuttajan kanssa. Tällöin sinusta tulee rakennushankkeeseen ryhtyvä.

Esimerkkitalossa on kattavat vakiovarustelut ja sisustuksen pääset valitsemaan itse. Myös pohjaratkaisuun voit vielä vaikuttaa, koska rakennuslupa haetaan haluamasi pohjaratkaisun mukaisesti. Talot rakennetaan muuttovalmiiksi.

Talopaketin toimittaja on Suomen suurimpia omakotitalojen rakentajia, Sievi-talot. Taloissa suoritetaan vuoden asumisen jälkeen vuositarkastukset ja normaalit rakentajat takuut ovat voimassa.
Esittelykuvat ovat suuntaa antavia, koska sisustuksen ja pohjan voi ostaja muuttaa haluamallaan tavalla.
Urakkahinta talolle suunnitelluin varustein on 396 000 euroa, joka maksetaan valmiusasteen mukaisesti erissä. Urakkaan sisältyy valmis rakennus liittymineen, nurmikko istutettuna sekä sora-alueet pihamurskeella.

Mikäli valitset tälle tontille suunnitellun talon, on kokonaishinta (tontti+talo) 692 000 eur avaimet käteen, valmiiksi tehtynä.

Kaupat tehdään tontista ja omistusoikeus siihen siirtyy ostajalle heti kaupanteossa. Tontin kaupan hoitaa Bo Lkv ja omakotitalon rakentamisen Sievi talot ja Key Avenue Oy.
Tontti toimii tarvittaessa ostajan lainan vakuutena.

Tontista on myös mahdollisuus tehdä ensin vuokrasopimus ja lunastaa se esim vuoden/kahden päästä.

Tonteille on haettu kaavamuutos, joka muuttaisi rakennusoikeuden 0,4 (nyt 0,25). Esim. autokatoksen /-tallin, saunarakennukse/työtilan rakentaminen kannattaa sen vuoksi siirtää myöhemmäksi. Maatyöt tehdään haluttaessa valmiiksi tulevaa rakennusta varten.

Kysy rohkeasti lisätietoja!

Satu Salonen Bo LKV
satu.salonen@bo.fi
045 1355 135

ONKO OMAN ASUNNON MYYNTI AJANKOHTAINEN?
Kutsu minut käymään! Tehdäänkö sinun kodistasi toisen unelma? Soita tai
laita viestiä ja jutellaan lisää.

Interested in this property?

Contact us or leave a message

HUONEISTO

Huoneluku
4mh+k+oh+rt+2*wc+s+kph+khh
Kerros
1-2
Kerroksia
2
Asuinpinta-ala
104,0 m²
Lisätietoja pinta-alasta
Suunnitellun talon asuinpinta-ala 104 m², kerrosala 139 m².
Muut huonetilat
Tontille suunniteltu omakotitalo:
4mh+k+oh+rt+2*wc+s+kph+khh, jonka asuinpinta-ala 104 m², kerrosala 139 m².
Puurakenteinen talo, jossa harjakatto (konesaumattu peltikate).
Maalämpö, lattialämmitys. Koneellinen ilmanvaihto.
Suunniteltu keittiövarustus:
Omega- keittiöt. Laminaattitasot, komposiittiallas, saareketuuletin, integroitu astianpesukone, induktiotaso, täyskorkeat jääkaappi ja pakastin.
Huonetiloihin suunniteltu lattiaan vinyylilankkulattia, märkätiloihin laatat.
Huonetilojen seiniin suunniteltu maali, märkätilat kaakeli.
Eteiseen kaapisto, kodinhoitohuoneeseen kaappeja sekä erillinen vaatehuone päämakuuhuoneen yhteydessä.

KIINTEISTÖ- JA YHTIÖTIEDOT

Asuinpinta-ala
104,0 m² (104,0 m²)
Kiinteistötunnus
91-34-137-38
Tyyppi
Tontti
Tontin omistus
Oma
Tontin koko
535,00 m²
Tontin tyyppi
Tasamaatontti
Tontin kuvaus
Tasamaatontti, jossa pohjatutkimus tehty. Ei paalutuksen tarvetta.
Panttikirjat
220 000,00 €
Vesijohto
Kunnan
Viemäri
Kunnan
Rakennusoikeus
134,0 m²
Rakennusoikeus, e-luku
0.25
Lisätietoja rakennusoikeudesta
Kaavamuutoshakemus rakennusoikeuden korottamisesta 0,40 (e-luku) on tehty määräaikaan mennessä.

MUITA TIETOJA

Kaavoitus
Asemakaava
Vapautuu
Heti

ASUMISKUSTANNUKSET

Muut maksut / lisätietoa maksuista
Kiinteistövero 3% tontin osalta.

HINTA

Myyntihinta
692 000,00 €
Velaton hinta
692 000,00 €
Heinämiehentie 15A - image 1 Heinämiehentie 15A - image 2 Heinämiehentie 15A - image 3 Heinämiehentie 15A - image 4 Heinämiehentie 15A - image 5 Heinämiehentie 15A - image 6 Heinämiehentie 15A - image 7 Heinämiehentie 15A - image 8 Heinämiehentie 15A - image 9 Heinämiehentie 15A - image 10 Heinämiehentie 15A - image 11 Heinämiehentie 15A - image 12 Heinämiehentie 15A - image 13 Heinämiehentie 15A - image 14 Heinämiehentie 15A - image 15 Heinämiehentie 15A - image 16 Heinämiehentie 15A - image 17 Heinämiehentie 15A - image 18