Kiiskintie 4

Siivikkala/Mettistö, Ylöjärvi | Omakotitalo | 5h, k, kph, s, wc, vh, autotalli

  • 369,000 €

    Debt-free price

  • 108.0 m2

    Living area

  • 148.0 m2

    Total area

  • 2022

    Year of construction

Moderni ja toiminnallinen koti lapsiystävällisellä alueella, kahden auton autotallilla!

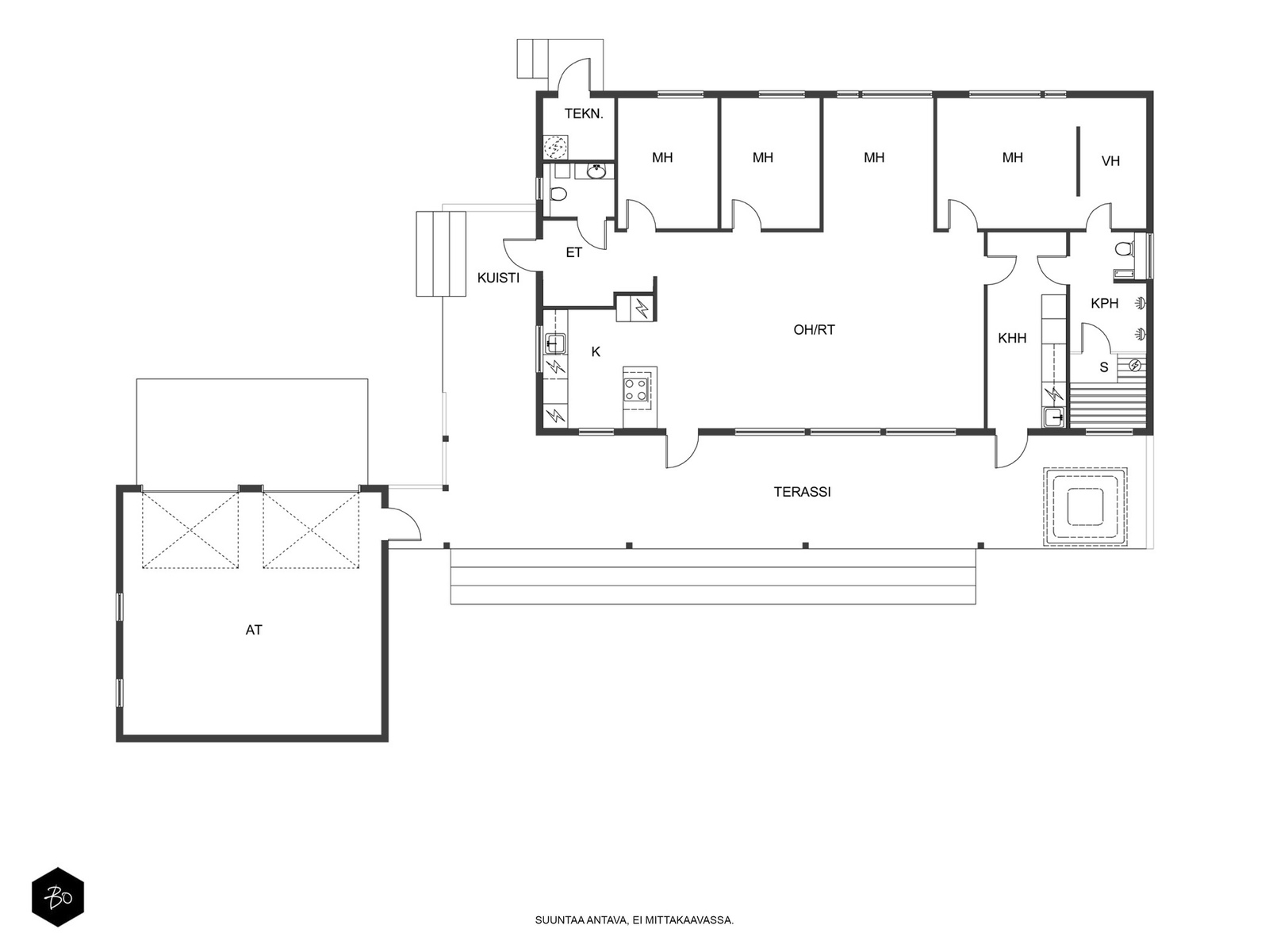
Tervetuloa Mettistön uudelle omakotitalojen asuinalueelle aivan Tampereen rajan tuntumassa. Alue vetää puoleensa erityisesti lapsiperheitä ja talo sijaitseekin todella rauhallisen pihakadun päädyssä. Tämä vuonna 2022 valmistunut omakotitalo yhdistää modernit ratkaisut ja arjen helppouden. Autotallissa on otettu huomioon myös nykyaikaisuus eli sähköautolle löytyy voimavirtavaraus. Lisäksi hyvän kokoinen piha-alue mahdollistaa vaivattoman pysäköinnin useammallekkin ajoneuvolle. Kodissa huomio kiinnittyy sen tyylikkääseen viistokattoon, joka tuo avaruutta ja modernia ilmettä oleskelutiloihin. Talon huonejärjestys on muunneltavissa: nykyiset kolme makuuhuonetta tarjoavat tilaa perheelle, ja neljäs huone palvelee hyvin työhuoneena tai lisämakuuhuoneena liukulasiväliseinän avulla.

Kodinhoitohuoneessa on mukavasti säilytystilaa, ja sen kautta pääset suoraan isolle, noin 75m² katetulle etelän puoleiselle terassille, jossa rentoutumista kruunaa oma Novitekin poreallas. Päämakuuhuoneessa on tyylikäs vaatehuone, josta on suora kulku kylpyhuone- ja saunatiloihin. Tämä käytännöllinen ratkaisu lisää asumismukavuutta ja tekee arjesta sujuvampaa.

Lämmitysjärjestelmänä toimii energiaa säästävä poistoilmalämpöpumppu vesikiertoisella lattialämmityksellä, joka pitää kodin miellyttävän lämpimänä ympäri vuoden. Erillisessä wc:ssä sekä kylpyhuoneessa on puhtaanapitoa helpottavat seinä-wc-istuimet ja kylpyhuoneen kruunaa kaksi suihkua. Jokaisessa makuuhuoneessa on oma tulo- ja poistoilma sekä äänieristetyt ovet. Keittiössä puolestaan liesituuletin on ratkaistu induktiotasossa olevalla integroidulla liesituulettimella. Kodin pihaa ympäröi tuija-aidat, jotka tulevat luomaan pihaan yksityisyyttä.

Mettistön asuinalueella nautit rauhallisuudesta ja erinomaisista puitteista perhe-elämälle. Tällä sijainnilla asuminen on hyvin rauhaisaa. Kulkuyhteydet ovat toimivat ja lähin kauppa sekä bussipysäkki ovat kätevän kävelymatkan päässä. Isommat kaupat monipuolisine palveluineen löytyvät Lielahdesta muutaman minuutin ajomatkan päästä. Lähin koulu sijaitsee myös noin kilometrin säteellä, joten lastenkin on turvallista kulkea tältä etäisyydeltä kouluun.Tampereen keskustaan sekä juna-asemalle pääset täältä autolla näppärästi autolla vain 13 minuutissa.

Tämä koti on valmis toivottamaan sinut tervetulleeksi - tule ihastumaan!

LISÄTIEDOT JA MYYNTI:

Niina Nurminen | 050 917 8787 | niina@bo.fi

Interested in this property?

Contact us or leave a message

HUONEISTO

Huoneluku
5h, k, kph, s, wc, vh, autotalli
Kerros
1
Kerroksia
1
Asuinpinta-ala
108,0 m²
Muut tilat
40,0 m²
Lisätietoja pinta-alasta
Pinta-alat perustuvat myyjältä
saatuihin tietoihin ja
rakennuspiirustuksista laskettuihin
arvioihin. Pinta-aloja ei ole
tarkistusmitattu, mitattaessa
pinta-alat saattavat olla ilmoitettua
suurempia tai pienempiä. Kohteen
kauppahinta ei ole osaksikaan
pinta-alaperusteinen vaan perustuu
kokonaisuuteen.

Rakennuspiirustusten mukainen
asuinrakennuksen kerrosala 125 m²
ja huoneistoala 111 m². Autotallin
kerrosala 41 m². Tekninen
tila/varasto kerrosala 4 m².
Kerrosala yhteensä 170 m².

Asuintilojen pinta-ala on laskettu
rakennuspiirustuksista ja siihen on
huomioitu kaikki asuinkäytössä
olevat tilat, muihin tiloihin on
laskettu tekninen tila ja autotallin
arvioitu huoneistoala.
Keittiön kuvaus, lisätiedot ja varustus
Parma -keittiön kiintokalusteet. Induktiotasossa integroituna liesituuletin.
Liesi
Induktio, erillisuuni
Keittiön muut varusteet
Liesituuletin, astianpesukone
Keittiön lattiamateriaali
Laminaatti
Keittiön seinien materiaali
Maalattu
Pesutilojen kuvaus, lisätiedot ja varustus
Kylpyhuoneessa kaksi sadesuihkua.
Kylpyhuoneen varustus
Wc-istuin
Kylpyhuoneen lattiamateriaali
Laatta
Kylpyhuoneen seinämateriaali
Kaakeli
WC-tilojen kuvaus
Eteisen yhteydessä erillinen wc.
Lukumäärä: 1
Lattiamateriaalit: laatta
Seinämateriaalit: maalattu
Kodinhoitohuone
Kodinhoitohuoneessa reilusti kaappitilaa.
Varustus: pesukoneliitäntä, pesuallas, pöytätaso
Lattiamateriaalit: laatta
Sauna
Asunnossa on sauna
Saunan lattiamateriaali
Laatta
Saunan seinämateriaali
Puu
Makuuhuoneen kuvaus, lisätiedot ja varustus
Lukumäärä: 4
Lattiamateriaalit: laminaatti
Seinämateriaalit: maalattu
Oleskelutilojen kuvaus, lisätiedot ja varustus
Lattiamateriaalit: laminaatti
Seinämateriaalit: maalattu
Muut säilytystilat
Vaatehuone
Kunto
Hyvä

KIINTEISTÖ- JA YHTIÖTIEDOT

Asuinpinta-ala
108,0 m² (148,0 m²)
Kiinteistötunnus
211-462-4-221-L1
Tyyppi
Tontti
Tontin omistus
Vuokrattu
Tontin vuokraaja
Ylöjärven kaupunki
Tontin vuokrasopimus päättyy
18.06.2070
Tontin koko
979,00 m²
Tontin tyyppi
Tasamaatontti
Tontin kuvaus
Myytävä kohde on kaavan mukaan ohjeellisen tonttijaon aluetta. Joissakin tapauksissa tila-muotoinen tontti ei vastaa kaavan mukaisen tontin rajoja ja sen alueita. Kaavatontinpinta-ala ja tontin rajat voivat poiketa nykyisen tilan pinta-alasta ja rajoista. Mahdollisista tontin muodostamiskustannuksista vastaa ostaja.

Tontin lunastushinta vuodelle 2026 on 58 740€. Arvio tonttivuokrasta vuodelle 2026 on tällä hetkellä 3 979€/v.
Tie perille
Panttikirjat
450 000,00 €
Käyttöönottovuosi
2022
Rakennusmateriaali
Puu
Muut rakennukset
Autotalli
Lämmön jakotapa
Vesikiertoinen lattialämmitys
Lämmitysjärjestelmän kuvaus
Poistoilmalämpöpumppu
Ilmanvaihtojärjestelmä
Koneellinen tulo, koneellinen poisto, lämmön talteenotto
Energiatodistus
Kyllä
Lisätietoja energiatodistuksesta
Energiatodistus voimassa
12.07.2032 asti. E-luku 114
Energialuokka
B2018
Vesijohto
Kunnan
Viemäri
Kunnan
Lisätietoja rakennusoikeudesta
Kaavan mukainen
kokonaisrakennusoikeus 240 m²,
rakennuspiirustusten/rakennusluvan
mukainen käytetty rakennusoikeus
170 m².

MUITA TIETOJA

Kaavoitus
Asemakaava, Yleiskaava
Vapautuu
Sopimuksen mukaan

ASUMISKUSTANNUKSET

Muut maksut / lisätietoa maksuista
Sähkönkulutus ollut noin 18 000
kwh/vuosi (sis. kahden auton tallin
lämmityksen). Puhtaanapito
paikallisen jätehuoltoyrityksen
taksoituksen mukaan. Vesi- ja
jätevesi kulutuksen mukaan.
Hulevesimaksu paikallisen
taksoituksen mukaan (tällä hetkellä
50€/vuosi). Arvio tonttivuokrasta vuodelle 2026 on 3 979€/v.
Kiinteistövero 836,34€ (2024).

Esitetyt asumiskustannukset
perustuvat nykykäyttöön ja voivat
siten olla pienempiä tai suurempia,
riippuen asukasmäärästä,
asumistottumuksista sekä
palveluntarjoajasta.

HINTA

Myyntihinta
369 000,00 €
Velaton hinta
369 000,00 €
Kiiskintie 4 - image 1 Kiiskintie 4 - image 2 Kiiskintie 4 - image 3 Kiiskintie 4 - image 4 Kiiskintie 4 - image 5 Kiiskintie 4 - image 6 Kiiskintie 4 - image 7 Kiiskintie 4 - image 8 Kiiskintie 4 - image 9 Kiiskintie 4 - image 10 Kiiskintie 4 - image 11 Kiiskintie 4 - image 12 Kiiskintie 4 - image 13 Kiiskintie 4 - image 14 Kiiskintie 4 - image 15 Kiiskintie 4 - image 16 Kiiskintie 4 - image 17 Kiiskintie 4 - image 18 Kiiskintie 4 - image 19 Kiiskintie 4 - image 20 Kiiskintie 4 - image 21 Kiiskintie 4 - image 22 Kiiskintie 4 - image 23 Kiiskintie 4 - image 24 Kiiskintie 4 - image 25 Kiiskintie 4 - image 26 Kiiskintie 4 - image 27 Kiiskintie 4 - image 28 Kiiskintie 4 - image 29 Kiiskintie 4 - image 30 Kiiskintie 4 - image 31 Kiiskintie 4 - image 32 Kiiskintie 4 - image 33