Pikkunevantie 27 B

Perusmäki, Espoo | Omakotitalo | 4h+k+kph+khh+s+wc+at++ak+erillinen työtila/sivuasunto

  • 569,000 €

    Debt-free price

  • 124.0 m2

    Living area

  • 262.0 m2

    Total area

  • 2020

    Year of construction

Modernia asumista ja monipuolisia mahdollisuuksia tarjoava kokonaisuus rauhallisella sijainnilla.

Vuonna 2021 valmistunut omakotitalo yhdistää selkeän arkkitehtuurin, avarat tilat ja käytännölliset ratkaisut. Kodin sydämen muodostaa suuri ja valoisa olohuoneen ja keittiön kokonaisuus, jossa korkea tila ja suuret ikkunat tuovat runsaasti luonnonvaloa sisään. Keittiö on suunniteltu toimivaksi arkeen ja yhdessäoloon - saareke, reilut työskentelytasot sekä laadukkaat kodinkoneet tekevät tilasta sekä käytännöllisen että tyylikkään. Olohuoneesta avautuu käynti suurelle lasitetulle parvekkeelle, joka toimii viihtyisänä lisätilana pitkälle syksyyn.

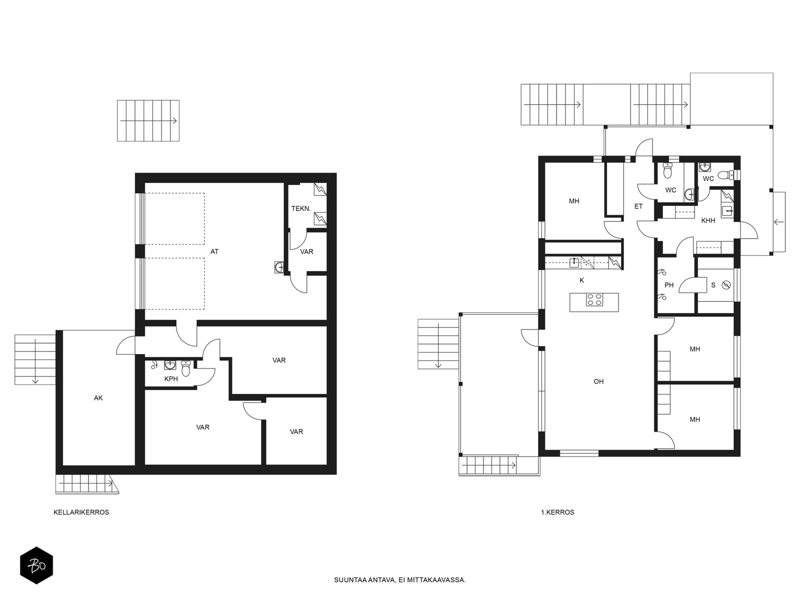
Talossa on kolme makuuhuonetta sekä hyvin suunnitellut arjen tilat. Kodinhoitohuoneessa on runsaasti säilytys- ja työskentelytilaa sekä suora kulku ulos, mikä helpottaa arjen sujuvuutta. Kylpyhuoneessa on kaksi suihkua ja sauna viimeistelee kokonaisuuden lämpimällä tunnelmallaan. Lämmityksestä huolehtii maalämpö vesikiertoisella lattialämmityksellä, joka tuo asumiseen sekä mukavuutta että kustannustehokkuutta. Yläkerrassa asumismukavuutta lisää maaviileään liitetty puhallinkonvektori, joka tuo miellyttävää viilennystä kesähelteillä.

Tämän kodin erityinen vahvuus on alakerran monipuolinen tila, joka toimii erillisenä työtilana tai sivuasuntona. Tilassa on oma keittiö sekä kylpyhuone/wc, joten se soveltuu loistavasti esimerkiksi etätyöhön, yritystoimintaan, vierasmajoitukseen tai vaikka nuoren omaan asumiseen. Tämä tekee kokonaisuudesta poikkeuksellisen joustavan erilaisiin elämäntilanteisiin.

Lisäksi löytyy runsaasti säilytys- ja harrastetilaa, autotalli kahdelle autolle sekä pihavaja. Oma 950 m² tontti tarjoaa rauhallisen ympäristön ja tilaa oleskelulle sekä pihalla puuhailulle.

Kokonaisuus, jossa moderni koti ja monipuoliset tilat kohtaavat - harvinaisen toimiva ratkaisu niin arkeen, työhön kuin vapaa-aikaankin.

Jaakko Haapamäki | LKV, LVV, KiAT, kaupanvahvistaja | 040 9522 162 | jaakko@bo.fi

Service also in English

https://bo.fi/henkilo/jaakko-haapamaki/

IG: @jaakko.haapamaki

Harkitsetko oman asuntosi myyntiä? Pyydä minut maksuttomalle arviokäynnille sitoumuksetta. Kerron samalla lisää tämän hetkisestä asuntomarkkinatilanteesta, palveluistani ja Bo:n loistavasta välityskonseptista. Autan mielelläni!

Interested in this property?

Contact us or leave a message

HUONEISTO

Huoneluku
4h+k+kph+khh+s+wc+at++ak+erillinen työtila/sivuasunto
Kerros
1-2
Kerroksia
2
Asuinpinta-ala
124,0 m²
Muut tilat
138,0 m²
Lisätietoja pinta-alasta
Ilmoitettu asuintilojen pinta-ala on huoneistoala. Muut tilat pitävät sisällään kellarikerroksen pinta-alan: varastotilat ja autotalli
Kerrosala 142 m² ja kerrosaloista laskettu kokonaisala on 280 m².

Ilmoitetut pinta-alat ovat rakennuslupa-asiakirjojen mukaiset.
Keittiön kuvaus, lisätiedot ja varustus
Kvik-keittiö. Siemens-kodinkoneet, liesi Neff, saarekkeeseen integroitu pakastin, täyskorkea jääkaappi, astianpesukone, mikroaaltouuni, erillisuuni. Laminaattitasot, välitila laattaa. Lattia betonia.
Pesutilojen kuvaus, lisätiedot ja varustus
Seinät ja lattia laatoitettu, kaksi suihkua, linjalattiakaivot.
WC-tilojen kuvaus
Kummassakin WC:ssä peili, allaskaapisto, bide-suihku. Lattia ja seinät laatoitettu.
Kodinhoitohuone
Lattia ja seinät laatoitettu. Runsaasti kaappi- ja tasotilaa, pesuallas, kurasyöppö, kuivausrumpu ja pesukone sekä suora käynti ulos.
Varustus: pesukone, pesukoneliitäntä, kuivausrumpu, keskuspölynimuri
Sauna
Asunnossa on sauna
Saunan kuvaus, lisätiedot ja varustus
Haapalauteet, seinät leppäpaneelia, Harvia Cilindro-tornikiuas. Lattia laatoitettu.
Makuuhuoneen kuvaus, lisätiedot ja varustus
Lattia betonia, seinät maalattu.
Oleskelutilojen kuvaus, lisätiedot ja varustus
Lattia betonia, seinät maalattu.
Muut huonetilat
Alakerran "sivuasunnossa" oma keittiö (keittiökaapisto, allas, jääkaappi) sekä oma kylpyhuone/wc. Sivuasunto on rakennuslupapiirustuksissa merkitty varastoksi. Alakerran teknisen tilan yhteydessä on täysikokoinen pakastinkaappi.

Yläkerrassa maaviileään kytketty puhallinkonvektori.

Olohuoneen yhteydessä tilava lasitettu parveke.
Kunto
Hyvä
Takka
Varaus takalle olohuoneessa, lattiarakenne vahvistettu.

KIINTEISTÖ- JA YHTIÖTIEDOT

Asuinpinta-ala
124,0 m² (262,0 m²)
Kiinteistötunnus
49-82-156-2
Tyyppi
Tontti
Tontin omistus
Oma
Tontin koko
950,00 m²
Käyttöönottovuosi
2021
Rakennusmateriaali
Yläkerta puu, alakerta lämpöharkko
Muut rakennukset
Vaja
Kattotyyppi
Pulpettikatto
Kate
Huopakate
Lämmön jakotapa
Vesikiertoinen lattialämmitys
Lämmitysjärjestelmän kuvaus
Maalämpö
Ilmanvaihtojärjestelmä
Koneellinen tulo, koneellinen poisto, lämmön talteenotto
Energiatodistus
Kyllä
Energialuokka
B2018
Vesijohto
Kunnan
Viemäri
Kunnan
Rakennusoikeus, e-luku
0.2

MUITA TIETOJA

Kaavoitus
Asemakaava
Vapautuu
Sopimuksen mukaan

ASUMISKUSTANNUKSET

Muut maksut / lisätietoa maksuista
Vesi ja jätevesi käytön mukaan n. 20€/kk, jätemaksu tyhjennysvälin mukaan n. 30€/kk, 100mbit/s kuituliittymä 40€/kk.

Ilmoitetut kustannukset ja kulutusperusteiset maksut perustuvat nykyiseen kulutukseen ja ne saattavat muuttua ilmoitetuista käytön mukaan ja voivat siten olla pienempiä tai suurempia riippuen asukasmäärästä, asumistottumuksista ja palveluntarjoajasta. Sähkö kulutuksen/oman sähkösopimuksen mukaisesti. Sähköisten panttikirjojen siirtomaksusta vastaa ostaja. Varainsiirtovero 3 % kauppahinnasta.
Kiinteistövero
1 033,42 €

HINTA

Myyntihinta
569 000,00 €
Velaton hinta
569 000,00 €
Pikkunevantie 27 B - image 1 Pikkunevantie 27 B - image 2 Pikkunevantie 27 B - image 3 Pikkunevantie 27 B - image 4 Pikkunevantie 27 B - image 5 Pikkunevantie 27 B - image 6 Pikkunevantie 27 B - image 7 Pikkunevantie 27 B - image 8 Pikkunevantie 27 B - image 9 Pikkunevantie 27 B - image 10 Pikkunevantie 27 B - image 11 Pikkunevantie 27 B - image 12 Pikkunevantie 27 B - image 13 Pikkunevantie 27 B - image 14 Pikkunevantie 27 B - image 15 Pikkunevantie 27 B - image 16 Pikkunevantie 27 B - image 17 Pikkunevantie 27 B - image 18 Pikkunevantie 27 B - image 19 Pikkunevantie 27 B - image 20 Pikkunevantie 27 B - image 21 Pikkunevantie 27 B - image 22 Pikkunevantie 27 B - image 23 Pikkunevantie 27 B - image 24 Pikkunevantie 27 B - image 25 Pikkunevantie 27 B - image 26 Pikkunevantie 27 B - image 27 Pikkunevantie 27 B - image 28 Pikkunevantie 27 B - image 29 Pikkunevantie 27 B - image 30 Pikkunevantie 27 B - image 31 Pikkunevantie 27 B - image 32 Pikkunevantie 27 B - image 33