Rappaanranta 7

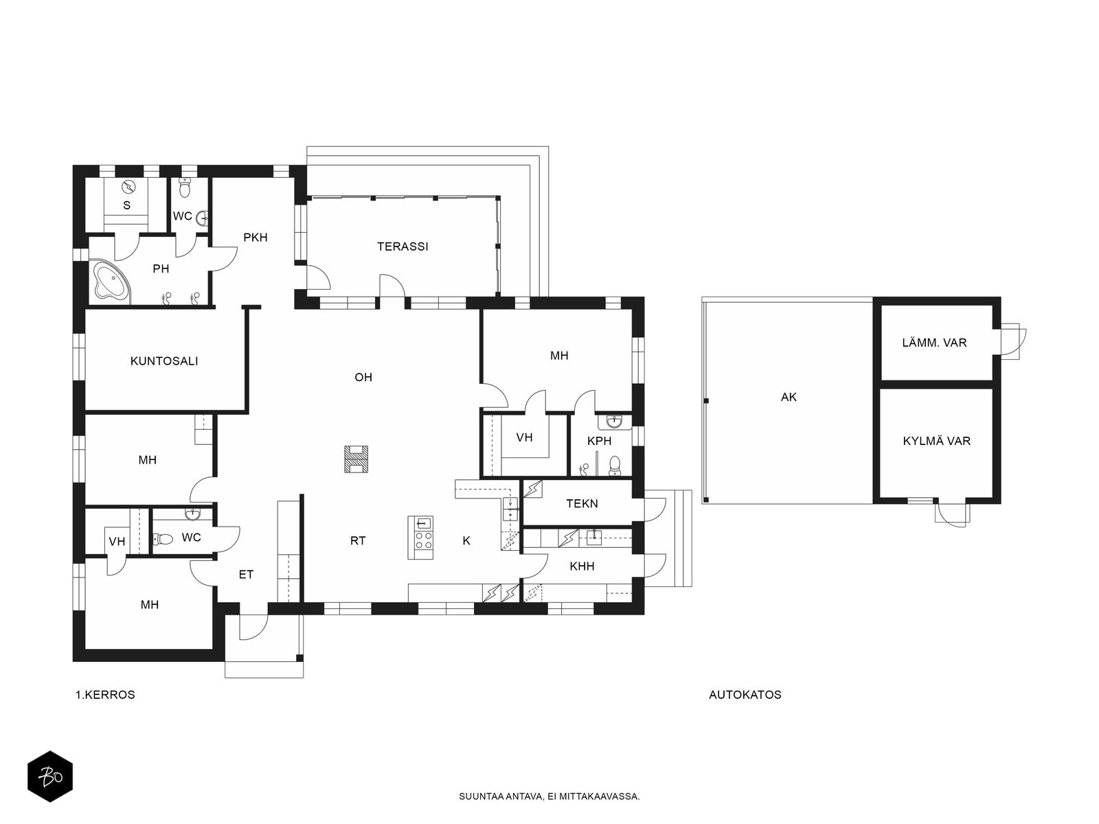
Harhala, Pälkäne | Omakotitalo | 6h, k, s, ph, kph, 3 wc, khh, 2 vh, ak, varasto

  • 418,000 €

    Debt-free price

  • 193.0 m2

    Living area

  • 219.8 m2

    Total area

  • 2011

    Year of construction

Upea omakotitalo Mallasveden rantamaisemassa!

Tilava, avara ja tyylikäs – hyvin suunniteltu ja toimiva koti.
Iso olohuone ja keittiö on yhtenäistä tilaa, jossa läpiluukullinen varaava takka toimii tilanjakajana. Olohuoneen korkealle nouseva viisto sisäkatto antaa lisää väljyyttä ja tilan tuntua. Sisustuksessa on yhdistetty hyvällä maulla tapetti- ja puuseinää. Olohuoneen jatkeena suojaisan takapihan puolella on lasitettu terassi.

Hyvin varusteltu keittiö on saanut uuden ilmeen 2021, jolloin kaapistoja ja koneita on uusittu.
Saareke erottaa ruokailutilan, johon mahtuu isompikin ruokailuryhmä.

Päämakuuhuone on talon päädyssä omassa rauhassaan, ja sen yhteydessä on erillinen kylpyhuone ja tilava vaatehuone.
Talon muut makuu- ja työhuoneet jäävät toiseen päätyyn. Saunaosasto muodostaa oman kokonaisuutensa, jossa on erikoisuutena infrapunasauna.

Talosta on pidetty hyvää huolta. Nykyiset omistajat ovat tehneet laajan sisäpintaremontin sekä nykyaikaistaneet tekniikkaa. Valokuituyhteys mahdollistaa etätyöt omasta kotitoimistosta.
Asumiskustannukset ovat todella edulliset maalämmön ja aurinkoenergian ansiosta!

Autokatoksessa on tilaa kahdelle autolle ja sähköautolle on latausmahdollisuus. Autokatoksen yhteydessä on sekä kylmä että lämmin varasto.

Sijainti rauhallisella alueella omalla isolla tontilla, josta matkaa Mallasveden rantaan on parisataa metriä. Kiinteistöllä on osuus vesialueeseen ja venevalkamaan.
Pälkäneen keskustan palvelut ovat muutaman minuutin ajomatkan päässä ja Tampereelle ajaa 40 minuutissa. Pääkaupunkiseudulle suuntaaville on sujuva yhteys Hämeenlinnan kautta.

Yksityisesittelyt ja lisätiedot:

Jukka Mesiranta
kiinteistönvälittäjä LKV, auktorisoitu pientalomyyjä PTM
045 263 0995
jukka@bo.fi

Interested in this property?

Contact us or leave a message

HUONEISTO

Huoneluku
6h, k, s, ph, kph, 3 wc, khh, 2 vh, ak, varasto
Kerroksia
1
Asuinpinta-ala
193,0 m²
Muut tilat
26,8 m²
Lisätietoja pinta-alasta
Rakennuslupakuvien mukainen huoneistoala 193 m².
Muut tilat: tekninen tila, piharakennuksen varastotilat 21,6 m².
Pinta-aloja ei ole tarkistusmitattu.
Keittiön kuvaus, lisätiedot ja varustus
Vinyylilattia, seinät maalattu, välitila laatoitettu.
Kaapistot, saareke, puiset työtasot, jääkaappi, pakastin, induktioliesi, erillisuuni, liesituuletin, astianpesukone, mikroaaltouuni.
Pesutilojen kuvaus, lisätiedot ja varustus
Pesuhuone: Laattalattia ja seinät, kaksi suihkua, infrapunasauna.
Erillinen kylpyhuone: laattalattia ja seinät, suihku, suihkuseinä.
Wc-istuin, allas, hana, allaskaappi, bidee-suihku, pyyhekuivain.
WC-tilojen kuvaus
Laattalattia ja seinä. Wc-istuin, hana, allas allaskaappi, peili, bidee-suihku.
Lukumäärä: 3
Kodinhoitohuone
Laattalattia, seinät maalattu.
Kaapistot, työtaso, pesuallas, hana, pesukoneliitäntä, kuivauskaappi, kulku suoraan ulos.
Sauna
Asunnossa on sauna
Saunan kuvaus, lisätiedot ja varustus
Sähkökiuas, laattalattia, seinät puuta ja kiveä.
Makuuhuoneen kuvaus, lisätiedot ja varustus
Vinyylilattia, seinät maalattu/tapetoitu.
Lukumäärä: 4
Oleskelutilojen kuvaus, lisätiedot ja varustus
Vinyylilattia, seinät maalattua, tapettia ja puuta, viisto sisäkatto.
Muutostyöt huoneistossa
2020: Saunan uusinta ja infrapunasaunan hankinta
2021: Seinien maalaus tai tapetointi, kaikki kuivien alueiden lattiapintojen uusinta (vinyylilankku), kylpyhuonekalusteiden ja hanojen vaihto, keittiön ovien ja laatikoiden etulevyjen sekä tasojen vaihto, uusi liesi, saareke, allas sekä hana, ison vaatehuoneen maalaus ja uudelleen organisointi.
2022: Aurinkosähköjärjestelmän asennus.
2025: Pergolan rakennus, sähköauton laturin (myös kuorman tasaus) asennus, astianpesukoneen uusinta.
Kunto
Hyvä
Takkatiedot
Takka
Kauppaan ei kuulu
Irtaimisto

KIINTEISTÖ- JA YHTIÖTIEDOT

Asuinpinta-ala
193,0 m² (219,8 m²)
Kiinteistötunnus
635-402-9-205
Tyyppi
Tila
Kortteli/Kiinteistön nimi
RUTA
Tontin omistus
Oma
Tontin koko
2 371,00 m²
Tontin tyyppi
Tasamaatontti
Käyttöönottovuosi
2011
Rakennusmateriaali
Puu
Muut rakennukset
Kahden auton autokatos, sähköauton lataus.
Lämmin ja kylmä varasto.
Kattotyyppi
Harjakatto
Kate
Tiili
Katon kunto
Hyvä
Lämmitysjärjestelmä
Vesikiertoinen lattialämmitys. Hyvä
Lämmitysjärjestelmän kuvaus
Aurinkolämpö, maalämpö, ilmalämpöpumppu
Ilmanvaihtojärjestelmä
Koneellinen tulo, koneellinen poisto, lämmön talteenotto
Energiatodistus
Kyllä
Lisätietoja energiatodistuksesta
Laadittu ennen aurinkosähköjärjestelmän asennusta
Energialuokka
A2018
Vesijohto
Kunnan
Viemäri
Kunnan
Rakennusoikeus, e-luku
0.2
Lisätietoja rakennusoikeudesta
Pälkäneen kunta

MUITA TIETOJA

Kaavoitus
Asemakaava
Vapautuu
Sopimuksen mukaan

ASUMISKUSTANNUKSET

Muut maksut / lisätietoa maksuista
Jätemaksu Pirkanmaan Jätehuolto Oy:n hinnaston mukaan.
Vesi- ja jätevesimaksu Pälkäneen vesihuoltolaitoksen hinnaston mukaan.
Valokuitu 39,90 €/kk.
Ostosähkön kulutus 9254 kWh vuonna 2025
Kiinteistövero
663,00 €

HINTA

Myyntihinta
418 000,00 €
Velaton hinta
418 000,00 €
Rappaanranta 7 - image 1 Rappaanranta 7 - image 2 Rappaanranta 7 - image 3 Rappaanranta 7 - image 4 Rappaanranta 7 - image 5 Rappaanranta 7 - image 6 Rappaanranta 7 - image 7 Rappaanranta 7 - image 8 Rappaanranta 7 - image 9 Rappaanranta 7 - image 10 Rappaanranta 7 - image 11 Rappaanranta 7 - image 12 Rappaanranta 7 - image 13 Rappaanranta 7 - image 14 Rappaanranta 7 - image 15 Rappaanranta 7 - image 16 Rappaanranta 7 - image 17 Rappaanranta 7 - image 18 Rappaanranta 7 - image 19 Rappaanranta 7 - image 20 Rappaanranta 7 - image 21 Rappaanranta 7 - image 22 Rappaanranta 7 - image 23 Rappaanranta 7 - image 24 Rappaanranta 7 - image 25 Rappaanranta 7 - image 26 Rappaanranta 7 - image 27 Rappaanranta 7 - image 28 Rappaanranta 7 - image 29 Rappaanranta 7 - image 30 Rappaanranta 7 - image 31 Rappaanranta 7 - image 32 Rappaanranta 7 - image 33 Rappaanranta 7 - image 34 Rappaanranta 7 - image 35 Rappaanranta 7 - image 36 Rappaanranta 7 - image 37 Rappaanranta 7 - image 38 Rappaanranta 7 - image 39 Rappaanranta 7 - image 40 Rappaanranta 7 - image 41 Rappaanranta 7 - image 42 Rappaanranta 7 - image 43 Rappaanranta 7 - image 44 Rappaanranta 7 - image 45 Rappaanranta 7 - image 46 Rappaanranta 7 - image 47 Rappaanranta 7 - image 48 Rappaanranta 7 - image 49 Rappaanranta 7 - image 50 Rappaanranta 7 - image 51 Rappaanranta 7 - image 52 Rappaanranta 7 - image 53 Rappaanranta 7 - image 54