Etusivu / Keski-Suomi / Jyväskylä / Holkkitie 33A

Holkkitie 33A

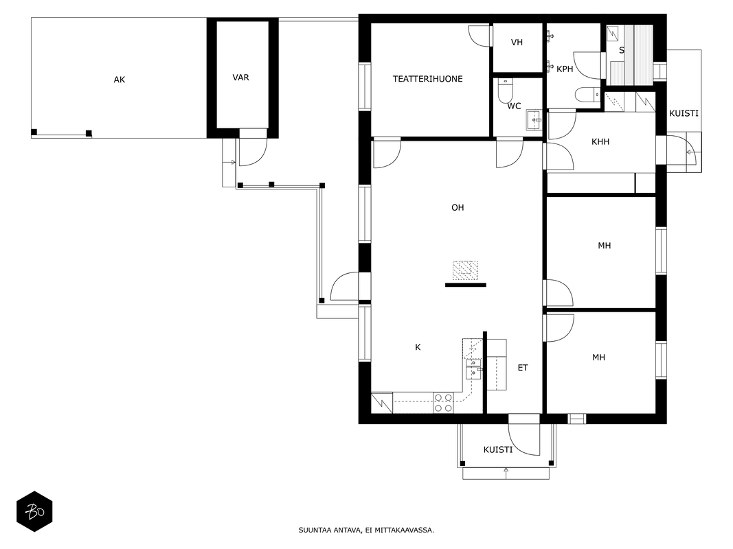
Sääksvuori, Jyväskylä | Paritalo | 4h,k,kph,s,khh

Bo!

Omalla tontilla oleva hyvin pidetty paritaloasunto!

Tässä v. 2012 valmistuneessa kodissa on kolme makuuhuonetta, jossa yhdessä makuuhuoneessa on vaatehuone. Yksi makuuhuone on käytännöllisesti erillään kahdesta muusta makuuhuoneesta. Avara keittiö-olohuonetila, jossa on tunnelmaa luova takka. Olohuoneesta on kulku aurinkoiselle terassille ja piha-alueelle Piha-alueella on tasaista nurmettua aluetta, johon mahtuu näppärästi esimerkiksi trampolini. Valmiita istutuksia löytyy myös pihasta. Kylpyhuone, sauna ja kodinhoitotila ovat kivasti erillään muista tiloista ja kodinhoitohuoneesta on kulku toiselle asunnon terasseista.

Paritalon tontti on jaettu hallinnanjakosopimuksella naapurin kanssa. Autokatos ja varastotila löytyy myös. Lämmitysmuotona on sähkö, joka jakautuu lattialämmityksin. Lisäksi on varaava takka. Ilmanvaihto toimii koneellisesti hyödyntäen lämmön talteenottoa.

Sääksvuori on etenkin lapsiperheiden suosima asuinalue rauhallinen ja luonnon läheinen asuinalue. Lähialueelta löytyy useita päiväkoteja, puistoja sekä upea liikuntapuisto, jossa voi harrastaa mm. skeittailua ja frisbeegolfia. Keljonkankaalla on uusi yhtenäiskoulu, kirjasto sekä lähikauppa. Alue on tunnettu upeista ulkoilumaastoistaan sekä hienosta uimarannasta. Talvella Sääksjärvi tarjoaa talviliikuntamahdollisuuksia järven jäällä sekä avantouintipaikan. Jyväskylän keskustaan hurauttaa nopeasti autolla moottoriteitse, keskustaan matkaa on noin yhdeksän kilometriä.

Lähdetään tutustumaan!

Are you interested in this estate?

Contact us or leave a message

Antti Saleva

Building

Year of construction (started)
2011
Year of construction
2012
Building material
Puu
Roof type
Harjakatto
Roofing
Pelti
Living area
99,5 m2 (104,5 m2)
Additional information on area
Pinta-alatiedot saatu rakennuslupapiirustuksista. Muihin tiloihin laskettu varasto 5m2.

Rakennuslupapiirrustuksissa asunnon kerrosala on 112m2 ja varaston kerrosala on 15m2.
Other spaces
5,0 m2
Description of the heating system
Sähkö
Lämmön jakotapa
Sähköinen lattialämmitys
Number of rooms
4h,k,kph,s,khh
Kitchen description, details, and equipment
Topi-keittiö
Other kitchen equipment
Astianpesukone, liesituuletin / hormi
Stove
Induktioliesi, erillisuuni
Kitchen countertop material
Laminaatti
Kitchen floor material
Laminaatti
Kitchen wall material
Osalaatoitus
Bathroom equipment
Suihku
Bathroom floor material
Laatta
Bathroom wall material
Kaakeli
Sauna
Asunnossa on sauna
Sauna floor material
Laatta
Sauna wall material
Puu
Toilet description
Allaskaappi, seinäkaappi
Varustus: peilikaappi, bidee-suihku
Lukumäärä: 1
Lattiamateriaalit: laatta
Seinämateriaalit: maalattu
Laundry room
Varustus: pesukoneliitäntä, lattiakaivo, pyykkikaapit, pöytätaso
Lattiamateriaalit: laatta
Seinämateriaalit: maalattu
Bedroom description, details, and equipment
Lukumäärä: 3
Lattiamateriaalit: laminaatti
Seinämateriaalit: maalattu, tapetti
Living room description, details, and equipment
Lattiamateriaalit: laminaatti
Seinämateriaalit: maalattu
Fireplace
Varaava takka (keraaminen piippu)
Fireplace details
Takka
Tehdyt korjaukset
Pergolan valokate
Other items included in the sale
Sälekaihtimet, verhokiskot, verhotangot, olohuoneen seinään kiinnitetty ylempi kaapisto, makuuhuoneiden kiinteät kaapistot, kodinhoitohuoneen silitystaso integroituna, jätesäiliöt, istutukset, kylpyhuoneen ja wc:n ruskeat hyllyköt ja penkit, kodinhoitohuoneen peili (ruskea).
Condition
Hyvä
Energy certificate
Kyllä
Energy class
C2018

Property information

Property identification number
179-28-39-9
Type
Määräosa
Type of plot
Tasamaatontti
Lot size
974,00 m2
Lot ownership
Oma
Mortgage deeds
280 000,00 €
Additional information about the plot
Koko tontin pinta-ala on 974m2. Tontti on jaettu hallinnanjakosopimuksella hallinta-alueisiin A ja B.
Tie perille
Water supply
Kunnan
Sewer
Kunnan
Rakennusoikeus, e-luku
0.25

Additional information

Services
K-Market Kotiväylä n. 2km, Keljonkankaan kirjasto n. 2,3km, Keljon kauppakeskukset n. 5,7km, Kyllön terveysasema n. 7,9km.
School
Keljonkankaan yhtenäiskoulu n. 2,5km.
Daycare
Pilke luontopäiväkoti n. 1,7km, Neulaskankaan päiväkoti n. 2,2km.
Transportation connections
Jyväskylän paikallisliikenne, lähin pysäkki n. 450m.

Housing costs

Property tax
406,00 €
Other payments / additional information on payments
Kokonaissähkönkulutus ollut n. 11.859 kwh (2024) neljän henkilön taloudessa (puita ei ole juurikaan käytetty eikä ole säästelty sähköä). Vesimaksut kulutuksen mukaisesti, ollut n. 50-60€/kk. Hulevesimaksu ollut 25€/vuosi. Jätemaksut tyhjennysvälin ja palveluntarjoajan hinnaston mukaisesti. Kiinteistövero 406€ myytävän asunnon osalta.

Price

Total purchase price
249 000,00 € (2 502,51 €/m2)
Selling price
249 000,00 € (2 502,51 €/m2)
Available
Sopimuksen mukaan
Kartta