Etusivu / Uusimaa / Kirkkonummi / Sammalnotko 12

Sammalnotko 12

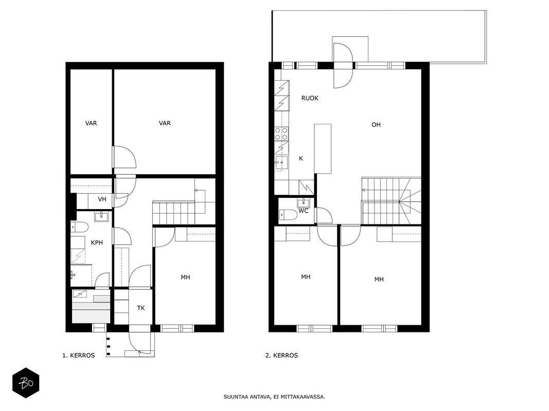
Heikkilä, Kirkkonummi | Paritalo | 4h, k, kph, s, wc, vh, varastohuone

Tervetuloa tutustumaan upeaan paritalokotiin, joka tarjoaa tilavaa ja modernia asumista idyllisten metsänäkymien äärellä Kirkkonummen Heikkilässä.

Asunnossa on kolme makuuhuonetta, keittiö, kylpyhuone, sauna, WC, vaatehuone sekä varastohuone, joka on nykyisillä omistajilla jaettuna makuutilaksi ja varastotilaksi. Vuonna 2021 uudistettu keittiö on varustettu moderneilla kodinkoneilla ja laadukkailla materiaaleilla, jotka tekevät ruoanlaitosta nautinnollista. Myös hiljattain toteutettu putkiremontti tuo mielenrauhaa ja varmuutta tuleville vuosille.

Paritalon pihalta avautuu metsänäkymä, mikä tarjoaa asukkailleen oivan mahdollisuuden nauttia vehreästä ympäristöstä ja rentoutumisesta omalla takapihalla. Piha-alue on erittäin viihtyisä ja pihan perältä löytyy lisäksi kodikas leikkimökki perheen pienemmille asukkaille.

Kirkkonummen kattavat palvelut, kuten koulut, päiväkodit, kaupat sijaitsevat kävelymatkan päässä. Alue on rauhallinen ja soveltuu erinomaisesti lapsiperheille tai luonnonläheisyyttä arvostaville pariskunnille.

Varaa oma esittelyaikasi ja tule kokemaan itse tämän paritalon tarjoamat mahdollisuudet ja mukavuudet.

Eveliina Laine

kiinteistönvälittäjä LKV, KM, partner

040 869 8579

eveliina@bo.fi

Are you interested in this estate?

Contact us or leave a message

Eveliina Laine

Eveliina Laine

kiinteistönvälittäjä LKV, KM, partner

Apartment

Shares
856-1046
Management type
Asunto-osakeyhtiö
Number of rooms
4h, k, kph, s, wc, vh, varastohuone
Floor/Floors
1-2/2
Living area
95,5 m2 (121,5 m2)
Other spaces
26,0 m2
Additional information on area
Muut tilat alakerrassa sijaitseva lämmin varasto.
Yhtiöjärjestyksen mukaan 4h+k+varasto.
Mainittu pinta-ala saattaa tämän ikäisessä kohteessa (rakennettu ennen vuotta 1992) poiketa olennaisesti nykyisten standardien mukaan laskettavasta asuinpinta-alasta. Todellinen asuinpinta-ala voi tarkistusmittauksen jälkeen olla yhtiöjärjestyksessä, isännöitsijäntodistuksessa ja esitteessä mainittua pienempi tai suurempi. Yhtiöjärjestyksen mukainen. Isännöitsijäntodistuksen mukainen.
Kitchen description, details, and equipment
Primo keittiö. Jääkaappi, pakastin, induktioliesi, erillisuuni, liesituuletin, mikroaaltouuni, astianpesukone, aamiaskaappi
Lattia: Vinyylilankku
Seinät: Maalattu
Bathroom equipment
Suihkuseinä, pesukoneliitäntä, lattialämmitys, wc-istuin, suihku, peili
Bathroom floor material
Laatta
Bathroom wall material
Kaakeli
Toilet description
Wc-istuin, peili
Lattiamateriaalit: laatta
Seinämateriaalit: maalattu
Sauna floor material
Laatta
Sauna wall material
Puu
Bedroom description, details, and equipment
Lattia: Parketti
Seinät: Maalattu
Living room description, details, and equipment
Lattia: Vinyylilankku
Seinät: Maalattu
Apartment renovations
2016 Kylpyhuone, sauna ja yläkerran wc
2021 Keittiöremontti, terassi hiottu ja käsitelty
2022 Ilmalämpöpumppu (kunnossapitovastuu osakkeenomistajalla)
2023 Makuuhuoneet maalattu
Condition
Tyydyttävä

Property and company information

Company name
Asunto Oy Heikkilänrinne
Lot ownership
Oma
Lot size
4 161,00 m2
Year of construction
1981
Building material
Puu, betoni
Roof type
Harjakatto
Roofing
Peltikate
Heating system
Maalämpö
Energy certificate
Kyllä
Energy class
D2018
Completed renovations and improvements
2023 Linja saneeraus/ käyttövesiputket ja kosteat tilat
2022 Huoneiston C 9 -kunnostus kapillaarisen vesivahingon johdosta
2021 - 2022 C-Talon, huoneistojen 8/9 alapohjaan tulevien hulevesien hallinnan toimenpiteet
2020 Katolta tulevine hulevesien johtaminen pois talojen perustuksien läheisyydestä (talkoilla)
2019 Putkistojen kuntokartoitus, salaojien tarkastus, lämpimän käyttöveden paluuputki (B ja C talon Välissä)
2018 takapihojen aitojen kunnostus/maalaus
2017 Öljykattilan tarkastus ja havaittujen vikojen korjaus
2016 Vanhan painesäiliön purkaminen pannuhuoneesta
2015 Ilmastointikanavien puhdistus
2013 Kattoremontti
2011 Ilmanvaihtolaitteiston uudistaminen
2010 Räystäiden korjaus, uudet sadevesikourut ja -syöksyt
2007 Lämmitysverkoston perussäätö, uudet linjasäätö- ja patteriventtiilit
2006 Uudet terassinovet
2005 Lukituksen uudistaminen
2004 Uusi lämminvesivaraaja
2000 Ullakon palokatkojen uusiminen
1999 Elementtisaumojen uusiminen
1998 - 1999 Jätekatos
1996 Öljypolttimen uusiminen
Known upcoming renovations/repairs
2025 Pyykinkuivaustelineen asennus
2025 Ilmanvaihtolaitteiden uusiminen tarpeen mukaan
2025 Pattereiden huuhtelu ja tasapainotus
2025 Talojen ulkopaneeleiden kunnostus ja maalaus tarvittaessa
2026 Sähkö/hybridiautojen latauspaikkojen selvitys
2027 Salaoja remontti, kartoitus, suunnittelu/ toteutuksen aikataulu
Outdoor parking spaces
14
Loans
460 567,99 €
Mortgages
1 400 000,00 €
Property manager
Kirkkonummen Huolto
Timo Koskinen
09 221 9090
Property maintenance
Asukkaat
Company's premises and facilities
Urheiluvälinevarasto. Ilmanvaihtojärjestelmä: koneellinen poisto
Sähköauton hidas lataus mahdollista osakasmuutostyönä. Osakkaan on maksettava kaikki kustannukset.

Additional information

Available
2 kk kaupasta

Housing costs

Maintenance charge
575,05 €/kk (6,02 €/m2)
Financing charge
462,54 €/kk (4,84 €/m2)
Total company fee
1 037,59 €
Water
27,00 €/hlö/kk
Other payments / additional information on payments
Taloyhtiön osakeluettelo on siirretty huoneistotietojärjestelmään. Ostajan tulee hakea omistusoikeuden rekisteröintiä Maanmittauslaitokselta. Ostaja vastaa tällöin omistusoikeuden rekisteröintikustannuksista, mahdollisista osakekirjan mitätöinnistä aiheutuvista kustannuksista sekä mahdollisesta hakemusmaksun korotuksesta. Ostajan pankin ostajalta mahdollisesti veloittamista kaupantekoon, omistusoikeuden rekisteröintiin tai panttausmerkinnän hakemiseen liittyvistä kustannuksista ostaja saa tiedon pankiltaan.

Ostaja maksaa varainsiirtoveroa 1,5 % velattomasta kauppahinnasta.

Käyttösähkö kulutuksen ja oman sähkösopimuksen ehtojen mukaan.

Price

Selling price
196 620,56 € (2 058,85 €/m2)
Apartment's share of the company loan
82 379,44 € (862,61 €/m2)
Total purchase price
279 000,00 € (2 921,47 €/m2)
Kartta