Etusivu / Pohjois-Savo / Siilinjärvi / Mehtomäentie 18A

Mehtomäentie 18A

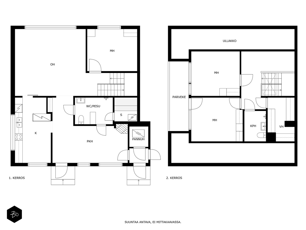
Pöljä, Siilinjärvi | Paritalo | 4h,k,s,takkah.

Kattavasti remontoidun paritalon molemmat puolet myytävänä - tule katsomaan ja tee haluamasi tarjous, hinnasta voidaan neuvotella!

Asuntojen pohjakuvat ovat peilikuvia, joten tilaa riittää. Velaton myyntihintapyyntö per asunto 84 000 euroa; ostaa voi toki vain toisenkin puolen.

Tämä koti on tilava. Kodista löytyy kolme reilun kokoista makuuhuonetta, v. 2004 täysin remontoitu keittiö, tunnelmallinen takkahuone, sekä kylpyhuone ja oma sauna. Tonttia on reilusti (5000 m2), josta kummallekin asunnolle on osoitettu oma puoliskonsa. Pihalla on hyvin tilaa pihapeleille, tai isommankin puutarhan pohjaksi.

Asunto-osakeyhtiö muotoisena paritalona varainsiirtovero on tässä kohteessa vain 1,5 %. Hoitovastiketta on peritty 330 €/kk per asunto. Hoitovastike sisältää lämmityksen, kiinteistöveron, jätehuollon kulut ja öljypolttimen huollot jne. Taloyhtiöllä on yhteinen sähkösopimus ja huoneistoilla omat mittarinsa, sähkön hinta siirtoineen 0,18 €/kWh. Lisäksi on peritty vesimaksua henkilöluvun mukaan, 20 € /kk.

Talossa on tehty kattavasti isompia remontteja; mm. Vesivekin asentama uusi peltikate keväällä 2024. Kattava alapohjaremontti on suoritettu 2015 – 2016, jolloin valesokkelirakenne on poistettu ja alapohja kengitetty. Kuntotarkastus tehty Savon Asuntoexpert toimesta v. 2022, kysy raporttia.

Pöljä on vireä kylä, jonne aktiivinen kyläyhdistys on toteuttanut mm. vanhan rautatieaseman kunnostuksen, kulttuuripolun ja Pikku-Marjan leikkipuiston. Pöljän kyläyhdistyksen nettisivuilta löydät lisätietoa.

Tämä on loistava ratkaisu sinulle, joka haluat asustella maaseudun rauhassa, erinomaisten kulkuyhteyksien äärellä. Pöljän kyläkouluun matkaa n. 2,5 km. Siilinjärven keskustaan 8,3 km ja Kuopioonkin vain 30,0 km / 21 minuuttia moottoritietä pitkin. Viitostietä pitkin kulkee useita linja-autovuoroja niin Kuopion kuin Iisalmen suuntaan. Pikavuoropysäkeille on matkaa vain parisataa metriä.

Soveltuu erinomaisesti isolle perheelle, kahdelle sukupolvelle, monenlaiseen yritystoimintaan jne. Molemmat asunnot on tällä hetkellä vuokrattu, joten myös sijoituskäyttö onnistuu hyvin.

Taloyhtiöllä on pihassa käytöstä poistettu porakaivo, jonka saa otettua esimerkiksi kastelukäyttöön uuden pumpun asentamalla.

THIS IS WHERE THE STORY BEGINS.

Are you interested in this estate?

Contact us or leave a message

Roope Puurunen

Roope Puurunen

kiinteistönvälittäjä LKV, LVV, partner

Apartment

Shares
1-5
Management type
Asunto-osakeyhtiö
Number of rooms
4h,k,s,takkah.
Floor/Floors
1/2
Living area
144,0 m2 (144,0 m2)
Other spaces
0,0 m2
Additional information on area
Tarkistusmitattu.
Balcony
Sisäänvedetty
Balcony direction
Länsi
Stove
Keraaminen liesi, erillisuuni
Kitchen countertop material
Laminaatti
Kitchen floor material
Laminaatti
Kitchen wall material
Tapetti, puolipaneeli
Bathroom equipment
Suihkuseinä, wc-istuin, suihku, peilikaappi, kiinteät valaisimet, kylpyhuonekaapisto
Bathroom floor material
Laatta
Bathroom wall material
Kaakeli
Toilet description
Varustus: lattiakaivo, bidee-suihku
Lukumäärä: 1
Lattiamateriaalit: laatta
Seinämateriaalit: maalattu
Sauna description, details, and equipment
Sauna remontoitu (paneelit, lauteet, kiuas) 2005.
Sauna floor material
Laatta
Sauna wall material
Puu, osalaatoitus
Bedroom description, details, and equipment
Lukumäärä: 3
Lattiamateriaalit: laminaatti, lauta
Seinämateriaalit: maalattu, tapetti
Living room description, details, and equipment
Lattiamateriaalit: laminaatti
Seinämateriaalit: puu
Other storage facilities
Ulkovarasto
Apartment renovations
2004 Keittiö remontoitu kodinkoneineen
2005 Sauna remontoitu
2016 Alakerran laminaattilattiat uusittu alapohjaremontin yhteydessä
2024 kattoikkuna poistettu, jolta kohdalta sisäkaton korjaus- ja muutostyöt tekemättä, aukon alapinnassa Finfoam-levy

Muita A-asunnossa tehtyjä remontteja ja parannuksia:
saunan kiuas uusittu 2017,
yläkerran wc remontoitu (lattialaatoitus ja kalusteet uusittu) 2018,
keittiön kalusteet (astianpesukone, liesi ja jääkaappi) uusittu 2018 ja 2019,
ilmalämpöpummpu asennettu 2019,
kylpyhuoneen ja keittiön hanat uusittu 2020,
makuuhuoneiden seinä maalattu ja tapetoitu 2017-2018.
Condition
Hyvä
Additional information about the condition
Rakennusvalvonta on myöntänyt rakennusluvan nro 2015-0260 23.9.2015 liittyen alapohjan valesokkelirakenteen poistoon ja korvaamiseen uudella rakenteella (ns. termokengät).

Property and company information

Company name
Asunto-osakeyhtiö Siilinjärven Kataja
Lot ownership
Oma
Lot size
5 000,00 m2
Year of construction
1976
Building material
Puu
Roof type
Harja
Roofing
Pelti
Heating system
öljy
Energy certificate
Kyllä
Energy class
E2018
Completed renovations and improvements
2006:
- kattilahuoneeseen uusittu lämmityksen kiertovesipumppu, paisuntasäiliö ja öljypoltin (LVI-asennus
Pekka Blomberg)
- maanalaisen lasikuituöljysäiliön kuntotarkastus (SanMat, Kuopio), kunto hyvä
2008:
- hankittu uudet ulko-ovet 3 kpl (Fenestra)
2009:
- uusittu täysin taloa ympäröivät salaojat kaivoineen sekä sadevesien poisjohdatukset
nurkkakaivoineen, tehty etupihan maan pohjaus tarvittavine rakennekerroksineen, asennettu
lämpöeristykseksi Finfoam-levyt, tehty lisäsalaoja sekä imeytyskaivo etupihalle
- ammuttu kalliota asunnon A nurkalta vinosti muutaman metrin päästä pihatiellä veden paremman
poisjohtamisen saavuttamiseksi
- uusittu talon kaikille seinustoille routaeristykset ja sorat, asennettu juurimatot talon päätyihin
etteivät puiden juuret vahingoita salaojitusta
- urakoitsijana toimi Koneurakointi Matti Miettinen (urakan arvo vajaat 30 000 eur)
- liitytty Pöljän vesiosuuskunnan yhteisviemäröintiin ja samalla vedetty kylmävesiputki
kattilahuoneelle asti (arvo yht. n. 15 000 eur)
- uusittu parvekkeiden ovet 2 kpl (Jeld-Wen)
2010:
- talon edustan kivetykset muureineen uusittu osin omina töinä ja osin ammattikivirakentaja Heimo
Laurénin toimesta
- liitytty Pöljän vesiosuuskunnan kylmävesiverkostoon
2011:
- teetetty savu- ja ilmanvaihtopiippujen pellitykset (Savon Rakennuspelti Ky)
2012:
- uusittu öljykattila Jäspi ECO 30 LUX-SS, jossa lisäksi 2 kpl 6 kW sähkövastuksia (vakiona kattilassa
vain 1 kpl 6 kW vastus, joka riittää käyttöveden lämmitykseen, mutta 12 kW riittää myös talon
lämmitykseen), urakoitsija LVI-Asennus Pekka Blomberg, urakan arvo reilut 6000 eur
2013:
- rakennettu uusi jätekatos
2015:
- Alapohjaremontti, poistettu valesokkelirakenne koko talosta.
2017: Öljypoltinkorjaus ja -termostaatin vaihto tammikuussa, Lämpimän käyttöveden säätöventtiilin huolto ja korjaus joulukuussa. 2019: Sähkötyö Riekkinen asensi helmikuussa sähkömittarin tekniseen tilaan ja yhteissähkön kulutusta alettiin seurata tästä mittarista (kulutus jaetaan asunnoille puoliksi). Lisäksi siirrettiin ulkovaloja ohjaavat valokytkimet molempien asuntojen ulko-oville,
2023: parvekkeiden kaiteet uusittiin, autokatosrakennuksen peltikatto uusittiin
2024: täydellinen kattoremontti, uusi peltikate, aluskate, piiput pellitetty, kattoikkunat poistettu, räystäät ja syöksyt uusittu, kattoturvatuotteet uusittu, Vesivek Oy
Loans
0,00 €
Property manager
Isännöinti omatoiminen.
Property maintenance
Asukkaat
Company's premises and facilities
Huoneistokohtaiset varastot.

Additional information

Available
Sopimuksen mukaan
Rent
890,00 €

Housing costs

Maintenance charge
330,00 €/kk (2,29 €/m2)
Total company fee
330,00 €
Water
20,00 €/hlö/kk

Price

Selling price
84 000,00 € (583,33 €/m2)
Total purchase price
84 000,00 € (583,33 €/m2)
Kartta