Etusivu / Uusimaa / Helsinki / Rantakartanontie 6

Rantakartanontie 6

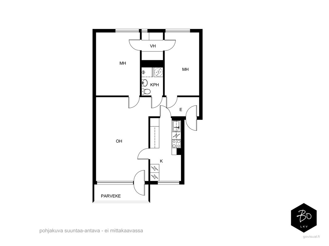
Puotila, Helsinki | Kerrostalo | 3h, k, kh, parveke (yj. 3 h+k)

Ihastuttava, tilava läpitalon kolmio merellisessä Puotilassa.

Tervetuloa tutustumaan tähän käytännölliseen ja valoisaan toisen kerroksen kolmioon halutulla sijainnilla Rantakartanontiellä. Asunto avautuu eteisestä olohuoneeseen, jonka yhteydessä on erillinen, mutta avonainen keittiö. Olohuoneesta on käynti tilavalle lasitetulle parvekkeelle, jolta avautuu rauhallinen näkymä sisäpihalle. Oleskelu- ja ruokailutila muodostavat avaran kokonaisuuden.

Kaksi hyvänkokoista makuuhuonetta sijoittuvat käytännöllisesti vaatehuoneen molemmin puolin, ja säilytystilaa löytyy myös kaapistoista. Siisti kylpyhuone on neliöihin nähden toimiva.

Taloyhtiö on siirtynyt maalämpöön vuonna 2023, ja sähkönousut on uusittu. Putkiremontti on tehty 2009–2010. Nopean 1 Gbps nettiyhteyden käyttö sisältyy vastikkeeseen. Yhtiöllä on 10 omistusasuntoa, joista kertyi vuonna 2024 vuokratuloja yli 157 000 euroa. Kiinteistöä huoltaa oma talonmies.

Rantakartanontie on rauhallinen ja pidetty katu upeine lehmuskujanteineen, joka päättyy Puotilan Kartanolle – alueen kulttuuri- ja tapahtumakeskukseen. Lapsiperheille on tarjolla suuria sisäpihoja, Rusthollarin suosittu ja juuri uusittu leikkipuisto sekä lähistön harrastusmahdollisuudet ja koulut molemmilla kotimaisilla kielillä.

Merenranta ja ulkoilureitit Vartiokylänlahdella alkavat lähes kotiovelta. Puotilan uimaranta ja siirtolapuutarha ovat kävelymatkan päässä. Liikenneyhteydet ovat erinomaiset metron, Raide-Jokerin ja kattavan palvelutarjonnan (Prisma, Easton, Itis) ansiosta.

Katariina Ahlbäck

LKV, KiAT, partner

050 521 2508

kata@bo.fi

Are you interested in this estate?

Contact us or leave a message

Katariina Ahlbäck

Katariina Ahlbäck

kiinteistönvälittäjä LKV, KiAT, partner

Apartment

Shares
94372-95011
Management type
Asunto-osakeyhtiö
Number of rooms
3h, k, kh, parveke (yj. 3 h+k)
Floor/Floors
2/3
Living area
66,0 m2
Other spaces
0,0 m2
Additional information on area
Mainittu pinta-ala saattaa tämän ikäisessä kohteessa (rakennettu ennen vuotta 1992) poiketa olennaisesti nykyisten standardien mukaan laskettavasta asuinpinta-alasta. Todellinen asuinpinta-ala voi tarkistusmittauksen jälkeen olla yhtiöjärjestyksessä, isännöitsijäntodistuksessa ja esitteessä mainittua pienempi tai suurempi. Yhtiöjärjestyksen mukainen. Isännöitsijäntodistuksen mukainen.
Kitchen description, details, and equipment
Varustus: täysikorkeat jääkaapi ja pakastin, induktioliesi, liesituuletin, astianpesukone, välitila laatoitettu.

Electroluxin kodinkoneet ja Savon liesituuletin.
Bathroom description, details, and equipment
Varustus: suihku, suihkuseinä, peilikaappi, allas/allaskaappi, bideesuihku, wc-istuin, patteri, pesukoneliitäntä, pieni kaappi pesukoneliitännän yläpuolella, laatoitettu. Kylpyhuoneen pintoja on päivitetty kaakelimaalilla.
Sauna description, details, and equipment
Yhtiössä on useita saunoja, ja niitä kaikkia voi käyttää. Myös yksittäisiä vuoroja voi varata.
Bedroom description, details, and equipment
Kaksi tilavaa makuuhuonetta, joissa molemmissa kaapistot.
Living room description, details, and equipment
Valoisa iso olohuone josta käynti lasitetulle parvekkeelle.
Wall materials
Maalattu/tapetti
Floor materials
Laminaatti
Other items included in the sale
Frimodigin asentamat taulujen ripustuslistat yhdellä seinällä olohuoneessa sekä yhdellä seinällä makuuhuoneessa.
Not included in the sale
Eteisen, olohuoneen ja vaatehuoneen Elfa-hyllyt sekä keittiön String-hyllyt eivät kuulu kauppaan.
Apartment renovations
Huoneistoremontti 12-2021-1/2022 ja lopputarkastus 2.2.2022
Condition
Tyydyttävä
Additional information about the condition
-kylpyhuoneen suihkuseinä, peilikaappi, allaskaappi ja pesukoneen päällä oleva kaappi sekä kaakelimaalit on päivitetty v. 2021
-lisäksi olohuoneeseen on lisätty toinen lampun paikka, v. 2022
-keittiön kodinkoneet on päivitetty kaikki v. 2022-2025 välillä (jääkaappi, pakastin, astianpesukone, induktioliesi ja liesituuletin).

Property and company information

Company name
Asunto Oy Säästökartano
Lot ownership
Vuokrattu
Lot size
33 469,00 m2
Lot renter
Helsingin kaupunki
Lot lease expires
31.12.2075
Lot rent
284 184,52 €
Year of construction
1961
Roof type
Harjakatto
Roofing
Pelti
Heating system
Maalämpö
Energy certificate
Kyllä
Additional information on the energy certificate
Viimeinen voimassaolopäivä 14.12.2033
Energy class
C2018
Completed renovations and improvements
Peltikattojen maalaus 2008
Putkistosaneeraus 2009-2010
Rakennusten ulkopuolisiin viemäreihin sujutettu uusi putki, viemärikaivoihin
saneerauskaivo. Talojen välisen käyttövesijohdot ja tonttivesijohtoliittymät on uusittu. Kellarin lämpimän kiertovesijohdon ja lämpimän käyttövesijohdon runkolinjat uusittu. Kellareiden viemärit sukitettu. Viemärinousut huoneistoihin pinnoitettu. Käyttövesinousut huoneistoihin pinnoitettu.
IV-kanavien puhdistus 2011
Rakennusten päätyjen rappauksia 2012-2019
Saunojen kunnostuksia 2010-2016
Salaojien kunnostus, parvekkeiden huoltokunnostus 2017-2018
Kattojen ja räystäiden huoltomaalaus, pihojen sadevesiohjauksen kunnostus, parvekelevyjen maalaus (huoltotien puoli), 4 GH parvekkeiden kunnostuskorjaus, 4E ja 6B porraskäytävät
maalattu 2018, päätyrappaukset 4C, 6 D ja 8 E, kattojen maalauskorjauksia 2019
Huoltotien kunnostus 1. osa 2020, 2 IKL- talon parvekkeiden kunnostuskorjaus 2020, 4 DEF- talon väestönsuojan kunnostus 2020
Huoltotien loppuosan kunnostus 2021. 2 DEF talon väestönsuojan kunnostus 2021. Ikkunoiden välilevyjen uusinta ja eristeiden tarkastus 6ABC, 8ABCDE ja 8 IKLM 2021, 2 DEF- talon väestönsuojan kunnostus 2021, Pihakeinujen uusinta 2021, Maalämpöön siirtymisen suunnittelu 2021. Sähkönousujen uusinnan suunnittelu 2021. Talosaunan 2 remontointi 2021.
Lattiapinnoitteiden korjaus alkuperäiskuntoisissa kylpyhuoneissa 2022. Talosaunan 4 remontointi 2022.
Ikkunoiden välilevyjen uusinta ja eristeiden uusiminen 2ABCHG, 4ABCHG,6HG 2023. Maalämpöön siirtyminen 2023.
Sähkönousujen uusinta 2023-24.
Yläpohjan lisäeristäminen, sähköautojen latauspaikkojen rakentaminen (8kpl),
autopaikkojen lämmitystolppien ja sähköjohtojen uusiminen 2024
Known upcoming renovations/repairs
2025-2029
Julkisivut: Julkisivurappausten kuntotutkimus (isännöitsijältä saadun tiedon mukaan julkisivun osalta ei ole tällä hetkellä näköpiirissä toimenpiteitä.)
Ikkunat ja ulko-ovet: Ikkunoiden ja parvekkeiden ovien kuntokartoitus jakson aikana
Katto: Huoltomaalauksia
Lämmityksen perussäätö (=lämmitysverkoston tasapainotus) tarpeen mukaan
Patteriventtiilien tarpeenmukainen uusiminen
Vesi- ja viemärijärjestelmä: Viemärit kuvataan ja huuhdellaan
Ilmanvaihto: Ilmanvaihtokanavien puhdistus ja säätö
Salaojat: Salaojien kuvaus ja painehuuhtelu tarvittaessa
Piha: pihasuunnitelman laadinta

Obligations causing future costs
Varsinainen yhtiökokous 28.4.2025:
Hallitus päätti esittää, että taloyhtiössä teetetään patteriverkoston tasapainottaminen laadittujen
suunnitelmien (SL Valvonta Oy) mukaisesti ja urakoitsijaksi valittiin LVI-Paajala Oy. Urakoitsija on tullut valituksi saatujen tarjousten (5 kpl) ja urakkaneurvottelujen perusteella. Urakkahinta on 350 000 €, joka katetaan taloyhtiön omilla varoilla. Urakka-aika on 19.5. - 30.9.2025.

Taloyhtiölle laaditaan uutta, paikan hengen säilyttävää pihasuunnitelmaa palkitun maisema-arkkitehtitoimisto Nomajin toimesta. Tarkoitus on muun muassa lisätä oleskelupaikkoja, esteetöntä kulkua, varmistetaan puuston säilyminen ja uusiutuminen ja huomioidaan ilmastonmuutokseen sopeutuminen ja luonnon monimuotoisuus.
Company redemption right
Kyllä
Restrictions
Yhtiöllä on oikeus lunastaa osake, kun omistusoikeus osakkeeseen siirtyy muulle kuin luonnolliselle henkilölle tai kuolinpesälle. Koko osakkeen lunastuslauseke, yhtiöjärjestys 8 § - 11 §
Loans
5 231 374,34 €
Mortgages
10 113 447,00 €
Property manager
Isännöitsijätoimisto
Oiva Isännöinti Oy, Puotila
Miikka Rautvuori
Rantakartanontie 5
00910 Helsinki
09 696 2860
Property maintenance
Talonmies
Other in the housing company
Kylmäkomerot (osassa huoneistoja), kellarikomerot, askarteluhuone, ulkoiluvälinevarasto,
pesutupa 2 kpl, mankeli, sauna 5 kpl, väestönsuojat 750 hlölle, autonpesupaikka.

Additional information

Services
Alepa Vartiokylä 900 m, K-Citymarket Helsinki Easton 1,1 km, Kauppakeskus Itis n. 1,3 km
School
Vartiokylän yläasteen koulu 200 m, Puotilan ala-asteen koulu 700 m
Daycare
Päiväkoti Viikinki Ryhmä Keltanot 600 m, Päiväkoti Viikinki 800 m
Ryhmäperhepäiväkoti Mesimarja
Additional zoning information
Tiedustelut: Helsingin kaupunki; kartta.hel.fi -> aineistot -> kaavoitus ja liikennesuunnittelu. Puh. 09 310 1691
Available
Sopimuksen mukaan

Housing costs

Maintenance charge
352,00 €/kk (5,33 €/m2)
Financing charge
89,60 €/kk (1,36 €/m2)
Total company fee
441,60 €
Water
23,00 €/hlö/kk
Other payments / additional information on payments
Autopaikkavuokra Sähkö 18 €/kk, autopaikkavuokra Sähkö + sisälämmitin 20 €/kk, autotallivuokra 80 €/kk,
autopaikkavuokra Sähköauton latauspaikka 50 €/kk.
Moottoripyörän vuokrapaikka 30 €/kk.
Autopesupaikkavuokra 2 €/kerta.
Varastovuokra 4 €/m2/kk (yhtiössä on erikokoisia varastoja),kylmäkellarivuokra 10 €/kk.
Pesutupamaksu 3,25 €/kk.
Saunamaksu 6 €/tunti, koko vuosi 52 viikkoa x 6 € = 312 € / 12 kk = 26 €.

Syysyhtiökokouksessa 26.11.2024 valtuutettiin hallitus perimään/olla perimättä enintään yhden kuukauden
hoitovastiketta vastaavan määrän, jos taloyhtiön tilanne niin vaatii/sallii.
Lisäksi päätettiin valtuuttaa hallitus lunastamaan taloyhtiön osakkeita yj:n 11 §:n mukaan sekä
tarvittaessa ottaa lunastukseen lainaa ja pantata kiinnityksiä lainaa varten.

Taloyhtiön osakeluettelo on siirretty huoneistotietojärjestelmään. Ostajan tulee hakea omistusoikeuden rekisteröintiä Maanmittauslaitokselta kaupan jälkeen. Ostaja vastaa omistusoikeuden rekisteröintikustannuksista, mahdollisista osakekirjan mitätöinnistä aiheutuvista kustannuksista sekä mahdollisesta hakemusmaksun korotuksesta. Ostajan pankin ostajalta mahdollisesti veloittamista kaupantekoon, omistusoikeuden rekisteröintiin tai panttausmerkinnän hakemiseen liittyvistä kustannuksista ostaja saa tiedon pankiltaan.

Price

Selling price
216 430,74 € (3 279,25 €/m2)
Apartment's share of the company loan
11 569,26 € (175,29 €/m2)
Total purchase price
228 000,00 € (3 454,55 €/m2)
Kartta