Etusivu / Uusimaa / Espoo / Laurinlahdentie 27

Laurinlahdentie 27

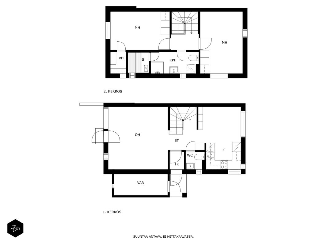
Laurinlahti, Espoo | Paritalo | 3h+k+s+var

Kodikas ja toimiva paritalokoti viihtyisässä Laurinlahdessa

Tervetuloa tutustumaan selkeäpohjaiseen, kaksitasoiseen kotiin Espoon Laurinlahteen. Kodin ensimmäisessä kerroksessa sijaitsee valoisa ja toimivapohjainen keittiö. Olohuoneesta on kulku viihtyisälle patiolle ja hurmaavan vehreään ja suojaisaan puutarhaan, jossa on ihanaa nauttia kesän aurinkoisista päivistä ja elokuun tummuvista illoista.

Yläkerran rauhassa sijaitsevat kodin kaksi makuuhuonetta. Kylpyhuone on vaalea ja tässä kodissa voit myös nauttia oman saunan löylyistä.

Iso plussa on sisäänkäynnin yhteydessä sijaitseva reilun kokoinen ulkovarasto.

Asunto Oy Laurinlahdentie on omalla tontilla sijaitseva vuonna 1988 valmistunut 20 :n paritalohuoneiston asunto-osakeyhtiö.

Suosittu Laurinlahti hurmaa luonnonläheisyydellä ja merellisyydellä, ja tämän kodin sijainti on upea- vehreä luonto ja monipuoliset ulkoilumahdollisuudet kutsuvat liikkumaan ja nauttimaan luonnosta. Runsaat harrastusmahdollisuudet, päiväkodit ja koulut ovat vain lyhyen matkan päässä. Kauppakeskus Lippulaiva ja metron pysäkki sijaitsevat n. 10 minuutin kävelymatkan päässä.

Tervetuloa tutustumaan ja ihastumaan!

Esittelyt ja myynti:

MARJAANA SUOMINEN

asuntomyyjä, KiLAT, partner

040 8416558

marjaana@bo.fi

Are you interested in this estate?

Contact us or leave a message

Marjaana Suominen

Marjaana Suominen

asuntomyyjä, KiLAT, BoAc, partner

Apartment

Shares
2697-2831
Management type
Asunto-osakeyhtiö
Number of rooms
3h+k+s+var
Floor/Floors
1-2/2
Living area
75,0 m2 (80,2 m2)
Other spaces
5,2 m2
Additional information on area
Isännöitsijäntodistuksen mukainen. Yhtiöjärjestyksen mukainen.
Stove
Induktioliesi, erillisuuni
Kitchen countertop material
Laminaatti
Kitchen floor material
Vinyyli
Kitchen wall material
Maalattu
Bathroom equipment
Suihkuseinä, pesukoneliitäntä, lattialämmitys, suihku, peilikaappi, kylpyhuonekaapisto
Bathroom floor material
Laatta
Bathroom wall material
Kaakeli
Toilet description
Varustus: lattiakaivo, bidee-suihku
Lukumäärä: 1
Lattiamateriaalit: laatta
Seinämateriaalit: kaakeli
Sauna floor material
Laatta
Sauna wall material
Puu
Bedroom description, details, and equipment
Lukumäärä: 2
Lattiamateriaalit: laminaatti
Seinämateriaalit: maalattu, tapetti
Living room description, details, and equipment
Lattiamateriaalit: vinyyli
Seinämateriaalit: maalattu
Other spaces
Vaatehuoneessa muovimatto
Other storage facilities
Ulkovarasto
Apartment renovations
2012 Ilmalämpöpumppu
2015 Liesikupu vaihdettu
2019 Yläkerran pesuhuone- ja saunaremontti
2020 pengerryksen rakentaminen
2021 Laminaatti- ja laattalattia vaihdettu vinyylilankkulattiaan.
Condition
Hyvä

Property and company information

Company name
Asunto Oy Laurinlahdentie
Lot ownership
Oma
Lot size
5 864,60 m2
Year of construction
1988
Building material
Puu, betoni
Roof type
Harjakatto
Roofing
Peltikate
Heating system
Kauko
Completed renovations and improvements
2024 Huoneistojen ulko-ovet, J-asunnon kylpyhuone, lämmitysverkoston vuoto ja selvitykset
2023 Kuntoarvion päivitys
2021 Ilmatiivistyskorjauksia alakerran ulkoseinillä, tuloilmaventtiilien lisääminen alakertoihin ja tuloilmaventtiilien uusiminen yläkerroksissa, osakkeiden B ja C sadevesien poisohjauksen parantaminen, osakkeen Q pihan pengerryksen rakentaminen
2020 Kaukolämpökeskuksen uusinta, salaojien kuvaus, painehuuhtelu ja maanpinnalle näkyvien sadekaivojen tyhjennys
2019-2020 Sisäilma- ja kosteustekninen tutkimus- ja korjaussuunnittelu A, B, C, D, I ja 0, huoneiston Q käyttövesiperustaisen lattialämmityksen uusiminen sähköiseksi
2019 DNA Taloyhtiölaajakaista 10M ja kaapeli-tv liittymä, patteriverkoston perussäätö, pihavalaitus
2018 Taloyhtiön keinun uusiminen, Huippuimurin puhaltimen uusinta A, C, E
2017 Putkielementtien(lämpöjohdot,lämminvesijohdot, kylmävesijohto) uusiminen, A-talon vanha tarkastuskaivo/liitos vanhaan muovielementtiin, E-talon edustalle uusi haaroituskaivo, B/C talon väliin uusi haaroituskaivo, huoneiston C käyttövesiperustaisen lattialämmityksen uusiminen sähköiseksi
2016 Huippuimurin puhaltimen uusinta B, I, S, ilmastointikanavien nuohous ilmamäärien mittaus- ja säätö sekä raportointi, huoneistojen P ja D käyttövesiperustaisen lattialämmityksen uusiminen sähköiseksi
2015 Antenniverkoston mittaus, huippuimurit uusittu E ja Q, rakennusten huoltomaalaus, parkkiruutujen maalaus, kunnostettu taloyhtiön antenniverkko ja uusittu antennikeskus, huoneiston S käyttövesiperustaisen lattialämmityksen uusiminen sähköiseksi
2014 Roskakatosta kunnostettu ja asennettu oveen lukko
2013 Autojen lämmityspistorasiat on uusittu, aitojen korjaus ja maalaus, huoneistojen K ja R käyttövesiperustaisen lattialämmityksen uusiminen sähköiseksi
2012 Paisunta-astian uusinta, huoneistokohtaisten ulkovalaisinten vaihto, kattoremontti kaikki rakennukset, Huoneiston G käyttövesiperustaisen lattialämmityksen uusiminen sähköiseksi
kylpyhuoneremonttien yhteydessä
2011 Vesikaton ja räystäskourujen ja syöksyputkien uusinta, huippuimurien uusimisia (P, ja H), leikkikalusteiden uusiminen, huoneistojen H ja M käyttövesiperustaisen lattialämmityksen uusiminen sähköiseksi
kylpyhuoneremonttien yhteydessä
2010 Huoneiston L käyttövesiperustaisen lattialämmityksen uusiminen sähköiseksi
kylpyhuoneremonttien yhteydessä
2009/2010 Pihaovien uusiminen
2008 Lämmönsiirtimen uusiminen
2007 LVI järjestelmän korjauksia, ilmastointiputkien nuohoukset ja säädöt sekä rikkinäisten imurien uusimiset
2006 Huoneistojen ja huoltotilojen lukkojärjestelmän uusiminen
2005 Huoneiston I käyttövesiperustaisen lattialämmityksen uusiminen sähköiseksi
kylpyhuoneremonttien yhteydessä
2004 Yhtiöön tulevan talousvesiputken vuodon korjaus ja viemäreiden puhdistushuuhtelut
2002 Lämpöputkistojen päiden vuotokorjaukset (päät muoviputkitettiin liityntäkaivojen kohdalta)
2000 Ulkomaalaukset. Kohteena seinät, räystäät ja ikkunoiden ulkopuoliset puuosat.
Known upcoming renovations/repairs
Tulevat korjaukset 2025-2029:

Alkuperäisessä kunnossa olevien huoneistojen (F, J 2024) kylpyhuoneiden kunnostus, kosteuseristysten ja käyttövesiperusteisen lattialämmityksen uusiminen sähköiseksi

- Huoneistojen käyttövesiperusteisen lattialämmityksen uusimisen jatkaminen sähköiseksi tulevien kylpyhuoneremonttien yhteydessä
- Huoneistojen ulkoportaiden kunnostus
- Salaojaputkien A-B-C-D purkuputken kunnostus
- Piha-alueiden asfaltointi, kallistukset
- Sähköautojen latauspistokkeet
- Tiiliaidan saneeraus
- Palovaroittimien asennus
- Lämmitysverkoston tutkimus
Loans
149 682,80 €
Mortgages
345 000,00 €
Property manager
Braleva Kiinteistöpalvelut Oy
Heikkiläntie 7, 00210 Helsinki
Isännöitsijä Peter Holmqvist, 010 327 6446, peter.holmqvist@braleva.fi
Property maintenance
Huoltoyhtiö

Additional information

Additional zoning information
Espoon kaupunki, kaavoitus. https://kartat.espoo.fi/
Available
Sopimuksen mukaan

Housing costs

Maintenance charge
390,00 €/kk (5,20 €/m2)
Financing charge
87,75 €/kk (1,17 €/m2)
Total company fee
477,75 €
Water
20,00 €/hlö/kk
Parking space
18,00 €/kk
Other payments / additional information on payments
Päätettiin myöntää hallitukselle valtuudet periä tai jättää perimättä enintään kahden kuukauden hoitovastiketta vastaava määrä yhtiön taloudellisen tilanteen niin vaatiessa tai salliessa ja vastaavasti enintään kaksi ylimääräistä rahoitusvastiketta lainaa kohden korkotason niin vaatiessa. Päätös on voimassa seuraavaan yhtiökokouksen asti. Päätettiin myöntää hallitukselle valtuudet korottaa tai laskea rahoitusvastiketta korkotilanteen niin vaatiessa tai salliessa. Päätös on voimassa seuraavaan yhtiökokouksen asti.

Käyttösähkö kulutuksen/oman sähkösopimuksen mukaisesti. Kotivakuutusmaksut omien sopimusehtojen mukaisesti.

Varainsiirtovero 1,5 % velattomasta kauppahinnasta.

Taloyhtiön osakeluettelo on ennen kaupantekoa siirretty huoneistotietojärjestelmään, ostajan tulee hakea omistusoikeuden rekisteröintiä Maanmittauslaitokselta. Ostaja vastaa omistusoikeuden rekisteröintikustannuksista, mahdollisista osakekirjan mitätöinnistä aiheutuvista kustannuksista sekä mahdollisesta hakemusmaksun korotuksesta. Ostajan pankin ostajalta mahdollisesti veloittamista kaupantekoon, omistusoikeuden rekisteröintiin tai panttausmerkinnän hakemiseen liittyvistä kustannuksista ostaja saa tiedon pankiltaan.

Price

Selling price
286 555,35 € (3 820,74 €/m2)
Apartment's share of the company loan
8 444,65 € (112,60 €/m2)
Total purchase price
295 000,00 € (3 933,33 €/m2)
Kartta