Etusivu / Pohjois-Pohjanmaa / Oulu / Kultasirkuntie 13

Kultasirkuntie 13

Oulunlahti, Oulu | Omakotitalo | 5h, k, khh, s, autotalli

Oma tontti, kivitalo, maalämpö ja autotalli. Tässä 2008 valmistuneessa kodissa yhdistyvät ne kaikki.

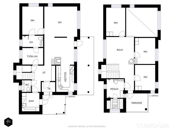
Laadukkaasti toteutetun talon tilat sijoittavat kahteen kerrokseen. Sisäänkäyntejä on kaksi, joista toinen on laatoitettuun eteiseen ja toinen kodinhoitohuoneeseen, joka varsinkin lasten tai lemmikkien kanssa on hyvin käytännöllinen. Keittiö on laadukkaasti varusteltu ja esimerkiksi kivitasot kestävät kovempaakin kulutusta. Keittiön yhteydessä on myös leivinuuni. Ruokailutilaa voi jatkaa kesäaikaan myös terassille, johon on käynti keittiöstä. Olohuoneen hulppea huonekorkeus yhdistettynä ikkunoiden loistaviin ilmansuuntiin tekee olohuoneesta erittäin viihtyisän tilan. Kodin päämakuuhuone on alakerrassa ja sieltä on myös suora kulku kylpyhuoneeseen sekä vaatehuoneeseen.

Loput makuuhuoneet löytyvät toisesta kerroksesta. Yläkerran aula on tilava ja toimiikin hienosti esimerkiksi elokuvan katseluun tai pelailuun perheen kesken. Tästä kerroksessa sijaitsee myös kodin näyttävät saunatilat. Saunan viereen on myös rakennettu lasitettu parveke, jossa on poikkeuksellisena yksityiskohtana myös lattialämmitys.

Hyvin hoidettu aurinkoinen piha on kulkuväyliä ja terassia lukuun ottamatta nurmipinnalla ja pihaa ympäröi korkea pensasaita, joka lisää yksityisyyttä tällä kulmatontilla. Kokonaisuuden kruunaa lämmin autotalli, jonka yhteydessä on myös varastotilaa.

Sijaintina merellinen Oulunlahti on loistava. Kävelymatkan päästä löytyvät päiväkoti, Oulunlahden koulu sekä viime vuosina kunnostettu uimaranta. Kulkuyhteydet ympäri Oulua ovat ensiluokkaiset liikuitpa sitten omalla autolla, julkisilla tai polkupyörällä.

Varaa oma esittelyaikasi:

Toni Haapakoski

Kiinteistönvälittäjä, LKV

040 569 8682

toni@bo.fi

Are you interested in this estate?

Contact us or leave a message

Toni Haapakoski

Toni Haapakoski

kiinteistönvälittäjä LKV, KiLAT, partner

Building

Year of construction
2008
Building material
Kivi
Roof type
Harjakatto
Roofing
Icopal Monopolar- Kumibitumikermi +Icopal Decra-ki
Condition of the roof
Hyvä
Living area
180,0 m2 (220,0 m2)
Floors
2
Other spaces
40,0 m2
Description of the heating system
Maalämpö
Lämmön jakotapa
Vesikiertoinen lattialämmitys
Number of rooms
5h, k, khh, s, autotalli
Stove
Leivinuuni, induktioliesi
Kitchen countertop material
Kivi
Kitchen floor material
Laatta
Kitchen wall material
Maalattu
Bathroom equipment
Wc-istuin, suihku
Bathroom floor material
Laatta
Bathroom wall material
Kaakeli
Sauna
Asunnossa on sauna
Sauna description, details, and equipment
Äänentoistojärjestelmä
Sauna floor material
Laatta
Sauna wall material
Puu
Toilet description
Lattiamateriaalit: laatta
Seinämateriaalit: maalattu
Laundry room
Varustus: pesukone, kuivausrumpu, pesuallas, lattialämmitys, lattiakaivo, pyykkikaapit
Lattiamateriaalit: laatta
Bedroom description, details, and equipment
Mengaris-parketti
Lukumäärä: 4
Lattiamateriaalit: parketti
Seinämateriaalit: maalattu
Living room description, details, and equipment
Mengaris-parketti
Lattiamateriaalit: parketti
Seinämateriaalit: maalattu
Other spaces
Yläkerran patiolla lattialämmitys.
Fireplace
Varaava takka sekä ylä- että alakerrassa
Fireplace details
Takka
Other storage facilities
Vaatehuone, ulkovarasto
Other items included in the sale
Dali-äänentoistojärjestelmä
Condition
Hyvä
Energy certificate
Kyllä
Energy class
B2018
Additional information on the energy certificate
Voimassa 30.09.2034

Property information

Property identification number
564-30-84-2
Type
Omakotitalo
Type of plot
Tasamaatontti
Lot size
1 138,00 m2
Lot ownership
Oma
Mortgage deeds
500 000,00 €
Additional information about the plot
Tie perille
Water supply
Kunnan
Sewer
Kunnan
Building rights
200,0 m2
Additional information about building rights
200+50

Housing costs

Property tax
812,00 €
Other payments / additional information on payments
Sähkön kokonaiskulutus: n. 14 000 kWh/ vuosi.

Price

Total purchase price
459 000,00 €
Selling price
459 000,00 €
Available
Sopimuksen mukaan
Kartta