Etusivu / Uusimaa / Porvoo / Wittenberginkatu 5

Wittenberginkatu 5

Porvoo, Porvoo | Omakotitalo | 7h, k, kph/s, 2 wc, khh, kellaritilat, autotalli

Tilava omakotitalo erinomaisella sijainnilla isommallekin perheelle.

Etsitkö kotia, jossa yhdistyvät tilava pohjaratkaisu, viihtyisä oma tontti ja huippusijainti lähellä keskustaa, kouluja ja palveluita? Tämä koti tarjoaa kaiken sen – ja enemmänkin.

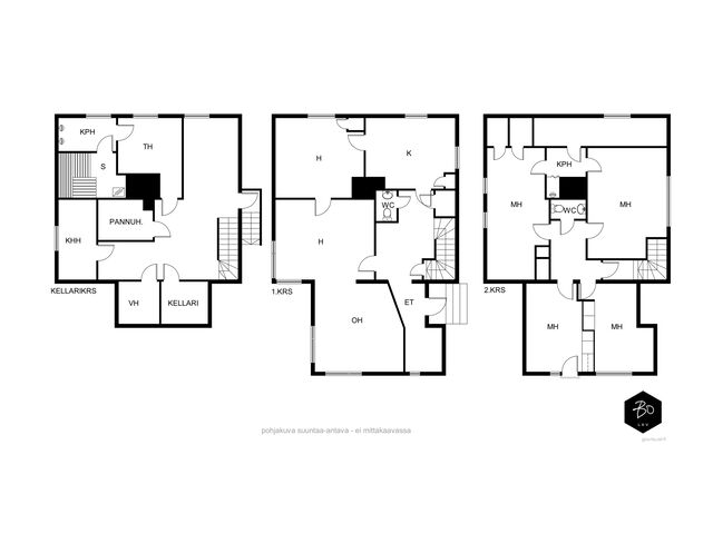
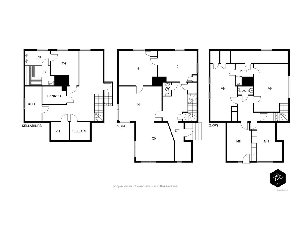
Talon toimivat tilat jakautuvat kolmeen kerrokseen:

Sisääntulokerroksessa sinua toivottaa tervetulleeksi avara eteinen, valoisa keittiö, ruokailutila sekä kahdesta huoneesta yhdistetty suuri olohuone, jossa riittää tilaa yhdessäololle ja juhliin. Lisäksi kerroksessa on erillinen wc.

Yläkerrasta löytyy perheen makuutilat – neljä makuuhuonetta, wc sekä kylpyhuone, jotka palvelevat mainiosti arjen tarpeita.

Kellarikerroksessa on tunnelmallinen takkahuone, saunaosasto pesu- ja pukutiloineen, kodinhoitotila sekä reilusti varastotilaa – arjen toimivuus on taattu.

Pihapiirissä on erillinen autotalli sekä kahden auton katospaikka. Oma vehreä tontti tarjoaa viihtyisän ympäristön niin lasten leikeille kuin aikuisten rentoutumiselle.

Taloa on vuosien varrella pidetty hyvin: sitä on laajennettu, julkisivut on uusittu ja katto vaihdettu. Lämmityksestä huolehtii vaivaton ja energiatehokas kaukolämpö.

Tämä koti kutsuu viihtymään – tule ja ihastu!

Ota yhteyttä ja kysy lisätietoja tai varaa oma esittelyaikasi: Kristian Lindfors 050 326 9090 / kristian@bo.fi

Are you interested in this estate?

Contact us or leave a message

Kristian Lindfors

Kristian Lindfors

kiinteistönvälittäjä LKV, partner

Building

Year of construction
1956
Building material
Puu, betoni
Roof type
Harjakatto
Roofing
Peltikate
Condition of the roof
Hyvä, uusittu 2010 ja maalattu 2012
Living area
226,0 m2 (226,0 m2)
Additional information on area
Tarkistusmittauksen mukaan kokonaisala talolle on 247,5 m2
Floors
3
Other spaces
0,0 m2
Description of the heating system
Kauko, ilmalämpöpumppu
Lämmön jakotapa
Vesikiertoinen patterilämmitys
Number of rooms
7h, k, kph/s, 2 wc, khh, kellaritilat, autotalli
Other kitchen equipment
Astianpesukone, kiinteät valaisimet, liesituuletin / hormi
Stove
Induktioliesi, erillisuuni
Kitchen countertop material
Laminaatti
Kitchen floor material
Parketti
Kitchen wall material
Maalattu
Bathroom equipment
Lattialämmitys, suihku, kiinteät valaisimet
Bathroom floor material
Laatta
Bathroom wall material
Kaakeli
Sauna
Asunnossa on sauna
Sauna floor material
Laatta
Sauna wall material
Puu
Toilet description
Varustus: peilikaappi
Lukumäärä: 2
Lattiamateriaalit: laatta
Seinämateriaalit: kaakeli
Laundry room
Varustus: pesukoneliitäntä, pesuallas
Seinämateriaalit: kaakeli, maalattu
Bedroom description, details, and equipment
Lukumäärä: 4
Lattiamateriaalit: parketti
Seinämateriaalit: tapetti
Living room description, details, and equipment
Lattiamateriaalit: parketti
Seinämateriaalit: tapetti
Other storage facilities
Vaatehuone
Tehdyt korjaukset
1988-1990 uusittu talon käyttövesi ja lämmitysjärjestelmä, kellarikerroksen lattioiden eristys, pinnoitus ja lisätty saunatilojen lattialämmitys, yläpohjan lisäeristys, sähköjä osittain uusittu. 1996 talon laajennus, ikkunat ja ovet uusittu, sisäseinien levytys ja pintoja usittu. 2001 pihan asvaltointi. 2009 julkisivuremontti ja lisäeristys 50mm. 2006 kaukolämpö. 2010 sähköpääkeskus ja alakeskukset uusittu. 2010 vesikaton uusinta (korotusrimat, aluskate, räystäät levennetty). 2012 katon maalaus, autotallin rakentaminen. 2016 eteisen lattia avattu ja korjattu sekä parketit uusittu. 2017 talovesiliittymä ja mittari uusittu, viemäreitä osittain uusittu, vanha öljysäiliö poistettu. 2018 sadevesiviemärit uusittu. 2019 valokuitu LPO. 2020 laajennusosan lattialaatan ja sokkelin tiivistys. 2022 ilmalämpöpumppu.
Condition
Hyvä

Property information

Property identification number
638-5-161-2
Type
Tontti
Type of plot
Tasamaatontti
Lot size
1 130,00 m2
Lot ownership
Oma
Mortgage deeds
297 091,28 €
Additional information about the plot
Tie perille
Water supply
Kunnan
Sewer
Kunnan
Rakennusoikeus, e-luku
0.25
Additional information about building rights
Porvoon Rakennusvalvonta

Housing costs

Heating
225,00 €
Property tax
575,94 €
Other payments / additional information on payments
Varainsiirtovero 3%, käyttösähkö, vesi ja jätemaksut kulutuksen mukaan.

Price

Total purchase price
398 000,00 €
Selling price
398 000,00 €
Available
Sopimuksen mukaan
Payment terms
Käteinen.
Kartta