Etusivu / Uusimaa / Helsinki / Fredrikinkatu 63

Fredrikinkatu 63

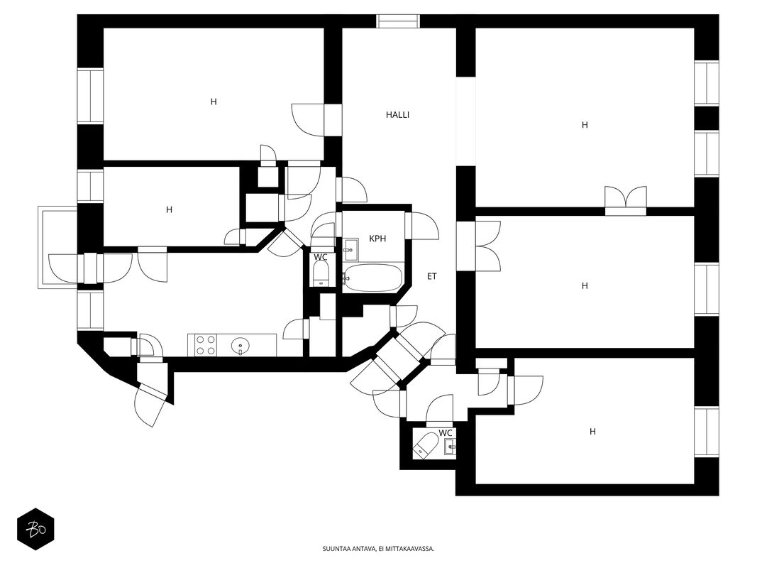
Kamppi, Helsinki | Kerrostalo | 5h+k+halli+2erill.wc+kph (Yj: 6h)

Arvokas huoneisto 1930-luvun talossa - tilaa, valoa ja historiaa Kampin sydämessä

Vuonna 1932 valmistunut talo seisoo jykevänä Kampin ytimessä - osana Helsingin klassista kaupunkikuvaa, jossa kivijalkaliikkeet, raitiovaunut ja arkkitehtoninen arvokkuus kietoutuvat yhteen. Tämän kauniin tiilirakennuksen kolmannesta kerroksesta löytyy tilava huoneisto, joka huokuu historiaa ja tarjoaa harvinaisen mahdollisuuden luoda oma unelmakoti yhteen keskustan ikonisimmista osoitteista.

142 neliötä, korkeat huoneet ja suuret ruutuikkunat tekevät tästä asunnosta poikkeuksellisen. Valo siivilöityy sisään kahdelta ilmansuunnalta, ja näkymät kantautuvat sekä Fredrikinkadun vilinään että rauhallisemmalle sisäpihalle. Vanhan talon sielu on läsnä jokaisessa yksityiskohdassa - massiiviset pariovet, kattolistat, lankkulattiat ja leveät ikkunalaudat kertovat ajasta, jolloin kodit rakennettiin kestämään.

Huoneiden rytmitys on klassinen ja elegantti. Tilava halli yhdistää asunnon huoneet toisiinsa ja antaa mahdollisuuden luoda upean keskipisteen kodin arkeen. Olohuone ja ja yksi makuuhuoneista sijoittuvat kulmaan, jossa valo kulkee huoneesta toiseen, ja korkeat ikkunat kehystävät näkymää kaupungille. Keittiö on säilyttänyt alkuperäistä tunnelmaansa ja tarjoaa tilaa sekä säilytykselle että uudistuksille - remontilla tästä syntyy moderni keittiö, joka säilyttää 1930-luvun arvokkuuden.

Asunnossa on kolme erillistä sisäänkäyntiä. Yksi huone ja wc toimii tällähetkellä itsenäisenä yksiönä.

Makuuhuoneita on useampi, ja niiden avarat mittasuhteet mahdollistavat monenlaiset sisustusratkaisut. Kylpyhuoneessa ja erillisissä wc-tiloissa näkyy ajan kerrostumia, ja niiden uudistaminen tuo tiloihin helposti arjen mukavuutta ja nykyaikaista ilmettä.

Kampin sijainti on vertaansa vailla. Kaikki palvelut, ravintolat, galleriat ja kulttuurin syke ovat kirjaimellisesti korttelin päässä. Täällä asuessa on helppo kulkea kaikkialle jalan, mutta samalla oma koti tarjoaa rauhallisen suojan kaupungin rytmin keskellä.

Tämä koti on kuin tyhjä kangas, jonka puitteet ovat täydelliset - aito, arvokas ja täynnä mahdollisuuksia. Kun vanhan talon henki ja moderni visio kohtaavat, syntyy jotakin todella ainutlaatuista.

Tervetuloa tutustumaan!

MYYNTI JA ESITTELYT:

Soita ja sovi esittely:

Jaana Långström 040-616 4155

jaana.langstrom@bo.fi

instagram: jaanalangstromlkv

Onko sinun asunto vielä myymättä? Soita, niin sovitaan tapaaminen. Saat hinta-arvion, myyntisuunnitelman ja tarjouksen välityssopimuksesta.

Are you interested in this estate?

Contact us or leave a message

Jaana Långström

Jaana Långström

kiinteistönvälittäjä LKV, LVV, partner

Apartment

Shares
21-29
Management type
Kiinteistöosakeyhtiö
Number of rooms
5h+k+halli+2erill.wc+kph (Yj: 6h)
Floor/Floors
3/7
Living area
142,0 m2
Other spaces
0,0 m2
Additional information on area
Yhtiöjärjestyksen mukainen. Isännöitsijäntodistuksen mukainen.
Balcony
Ulostyönnetty
Elevator
Taloyhtiössä on hissi
Kitchen floor material
Muovi
Kitchen wall material
Maalattu
Bathroom equipment
Kylpyamme
Bathroom floor material
Laatta
Bathroom wall material
Osalaatoitus
Toilet description
Lattiamateriaalit: laatta
Seinämateriaalit: maalattu
Bedroom description, details, and equipment
Lukumäärä: 4
Lattiamateriaalit: muu, lauta
Seinämateriaalit: maalattu
Living room description, details, and equipment
Lattiamateriaalit: lauta
Seinämateriaalit: maalattu
Condition
Välttävä

Property and company information

Company name
Kiinteistö Oy Salix
Lot ownership
Oma
Lot size
1 081,00 m2
Year of construction
1932
Building material
Tiili
Roof type
Harjakatto
Roofing
Pelti
Heating system
Kauko
Energy certificate
Kyllä
Additional information on the energy certificate
Viimeinen voimassaolopäivä: 11.7.2035
Energy class
D2018
Completed renovations and improvements
2024 Kiinteistön kuntoarvio
2024 Katon kuntoarvio
2024 Hissin ovivalvonta- ja kattokortti uusittu
2023 Urho Kekkosen katu 8 B ja C, Fredrikinkatu 63 A henkilö- ja piikahissi
2023 Hissien liukuohjaimet vaihdettu
2023 Liikehuoneistoiden ovien ja ikkunoiden puuosien kunnostus
2023 Lämmitysjärjestelmän kuntokartoitus
2023 Hissien hälytyspuhelimien asennus ja liukuohjaimet vaihdettu
2018 Huoneistojen korvausilmaventtiilien asennus, poistohormien nuohous
2017 Peltikaton maalaus, hissikorien kunnostus
2015 Porrashuoneiden kunnostus
2014 Sisäpihan julkisivun paikkarappaus ja maalaus sekä parvekkeet, pinnat ja kaiteet
2011 Pihajulkisivu paikkarappauksia
2010 Tietoliikenne- ja TV-kaapelointi
2009 Kaukolämpölaitteet
2008 Valoramppi
2005 Kadun julkisivurappaukset uusittu, ovipuhelimet
2002 Hissikoneisto A-porras uusittu
1997 Puhelinjohdot, sähkönousut C-porras
1996 Parvekeovet uusittu, Urho Kekkosen kadun ja pihan ikkunat uusittu
1994 Kerrosvesipellit uusittu, parvekkeet peruskorjaus, pihan asfaltti, vesikaton turvalaittee kadunpuoli, autotallin seinät kunnostettu
1993 Autotallin vesikatto uusittu, vesikatto uusittu ja maalattu
1992-1995 Hissikoneisto B-C uusittu
1991 Porrashuoneet maalaus ja valaistus
1986-1987 Vesi- ja viemäriputket
1985 Ikkunat uusittu Fredrikinkadun puoli
Known upcoming renovations/repairs
2024-2025 patteriverkoston säädön suunnittelu ja kilpailutus, patteriverkoston tasapainotus ja säätö, raitisilmasuodattimien vaihto
2025-2029 Kuntoarvion mukaisesti kunnossapito
Outdoor parking spaces
6
Loans
98 933,98 €
Mortgages
403 557,06 €
Property manager
Isännöintitoimisto Oiva Isännöinti Helsinki Oy
Bulevardi 3 B, 6.kerros
00120 Helsinki
Toimitusjohtaja
Juha Juntunen
p.050 468 5589
Property maintenance
Huoltoyhtiö
Other in the housing company
Ilmanvaihto: painovoimainen. Varastot 45, 46, 47, ullakko, kellarin varastotila

Huoneistoja 1-36 voidaan käyttää joko asuntona tai toimistona yhtiön hallituksen päätösten mukaisesti.
Käyttötarkoituksen muuttaminen edellyttää ko. huoneiston hallintaan oikeuttavien osakkeiden omistajan kirjallisen suostumuksen. Osakkeenomistaja myös vastaa kaikista käyttötarkoituksen muutoksen aiheuttamista kustannuksista sekä viranomaisten vaatimista muutostöistä. Huoneistojen 37-44 käyttötarkoitus on liikehuoneisto.

Yhtiökokous 15.1.2025: hallitus valtuutettiin nostamaan lainaa kuntotutkimuksien ja muiden selvitysten tekoa varten enintään 60 000,00 €. Hallitus sai valtuudet ottaa lainan ensin limiittilainana, joka myöhemmin konvertoidaan varsinaiseksi lainaksi. Hallitus sai valtuudet kilpailuttaa lainan ja harkintansa mukaan valita luoton myöntäjän sekä päättää harkintansa mukaan laina-ajaksi viidestä kymmeneen (5–10) vuotta. Hallitus sai valtuudet sitoa lainan 6 kk tai 12 kk euriboriin ja valtuudet käyttää taloyhtiön vapaita pantteja lainan vakuutena tai hankkia uusia pantteja lainan vakuudeksi enintään 100 000,00 €:n edestä. Hallitus sai valtuudet päättää lainan konvertoinnin yhteydessä pääomavastikkeen aloituskuukaudesta ja pääomavastikkeen suuruudesta, kun lainalla katettavien kulujen suuruus on tiedossa. Hallitus sai valtuudet käyttää tutkimuksia ja selvityksiä varten otettavaa lainaa myös mahdollisiin akuutteihin korjauksiin, jotka todetaan tutkimuksissa tai tehdyissä selvityksissä.


15§ Osakas korjaa kustannuksellaan kaikki huoneiston sisäpuoliset sähkö- ja tiedonsiirtojohdot

Additional information

Additional zoning information
Tiedustelut: Helsingin kaupunki, https://kartta.hel.fi/

Vireillä oleva asemakaava: Kampin alueita ja Leppäsuon kortteli 411. Kantakaupungin vanhoja asemakaavoja ajantasaistetaan vastaamaan todellista rakennettua tilannetta sekä yleiskaavan tavoitteita.
Available
Heti

Housing costs

Maintenance charge
781,00 €/kk (5,50 €/m2)
Total company fee
781,00 €
Water charge basis
€/kk
Parking space
217,70 €/kk
Other payments / additional information on payments
Yhtiöllä ei ole erillistä vesimaksua.

Hallituksella on valtuutus periä tai olla perimättä 1kk suuruinen hoitovastike talouden niin vaatiessa tai salliessa.

Ylimääräinen yhtiökokous 15.9.2025 päätti julkisivu- ja parvekesaneerauksista ja sen rahoituksesta. Yhtiökokous päätti, että toteutussuunnittelua, kilpailutusta ja muihin hankkeeseen liittyviä kustannuksia varten hallitus saa valtuudet nostaa lainaa enintään 100 000 €. Päätettiin, että lainaa voi käyttää myös kuntotutkimuksissa todettujen vikojen korjauksiin, joita on suositeltu LVIS-raportissa tehtäväksi. Päätettiin, että hallitus saa valtuudet käyttää Kiinteistö Oy Salixin vanhoja vapaita pantteja lainan vakuutena sekä hallitus saa valtuudet tarvittaessa hankkia uusia pantteja enintään 200 000 € edestä. Laina nostetaan ensin limiittilainana, joka konvertoidaan lopullisten kulujen selvittyä varsinaiseksi lainaksi.

Kokouksessa päätettiin tehdä suunnitelmat ja kilpailutukset hankesuunnitelman kohtien 5.2 ja 5.3 mukaisesti.
Kohta 5.2: Julkisivujen vähimmäiskorjaus niin Fredrikinkadun kuin Urho Kekkosen kadun puolelta.
Kustannusarvio: 510 000 € - 530 000 €
Kohta 5.3: Julkisivujen korjauksien lisäksi parvekkeiden raskaat korjaukset.
Kustannusarvio: 910 000 € - 930 000 €

Käyttösähkö kulutuksen/oman sähkösopimuksen mukaisesti. Kotivakuutusmaksut omien sopimusehtojen mukaisesti.

Varainsiirtovero 1,5 % velattomasta kauppahinnasta.

Ylimääräisessä yhtiökokouksessa 15.9.2025 päätettiin julkisivu- ja parvekeremontista.

Price

Selling price
820 000,00 € (5 774,65 €/m2)
Total purchase price
820 000,00 € (5 774,65 €/m2)
Payment method
Käteinen.
Kartta