Etusivu / Uusimaa / Helsinki / Laurinmäenkuja 3

Laurinmäenkuja 3

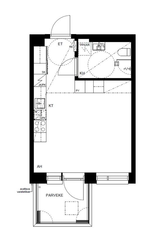
Lassila, Helsinki | Kerrostalo | 1h+kt+alkovi+lasit.parv (yj:1h+kt)

Muuttovalmiit kodit, omalla tontilla – tervetuloa tutustumaan!

Vuonna 2025 Lassilaan valmistunut Asunto Oy Helsingin Jupiter sijaitsee omalla tontilla ja tarjoaa asukkailleen erinomaiset puitteet laadukkaaseen asumiseen. Yhtiöön kuuluu kaksi taloa, yhteensä 69 hyvin varusteltua huoneistoa. Huoneistokokoja on tarjolla monenlaisiin elämäntilanteisiin, yksiöistä neljän huoneen perheasuntoihin. Asuntojen materiaalit sekä värimaailma ovat modernit, ja vaihtoehtoina on arkkitehdin suunnittelemat kolme upeaa teemaa, josta voit valita itsellesi parhaan. Huoneistojen varusteisiin kuuluvat parkettilattiat, sälekaihtimet kaikissa ikkunoissa, astianpesukone sekä induktioliesi. Lähes jokaisella huoneistolla on lasitettu parveke tai terassi.

Yhteiset tilat ovat monipuoliset ja asukkaiden käytössä on sauna- ja kerhotilat, ulkoväline-, lastenvaunu- ja irtaimistovarastot sekä pesulat ja kuivaushuoneet. Piha-alueella on lapsille turvallinen leikkipaikka, sekä kaikenikäisille soveltuva kuntoilualue. Pihakannen alla on autohalli, josta on suorat kulkuyhteydet rakennuksiin. Autohallipaikat myydään omilla osakkeillaan, ja osa paikoista on varustettu sähköauton latausvalmiudella.

Lassila alueena tarjoaa mainiot puitteet laadukkaaseen asumiseen. Liikenneyhteydet ovat erinomaiset, ja kauppakeskus Kaaren kattavat ja monipuoliset palvelut ovat vain lyhyen kävelymatkan päässä. Lähialueella on erinomaiset mahdollisuudet ulkoiluun ja harrastamiseen, mikä tekee paikasta ihanteellisen valinnan aktiiviselle asujalle.

Tartu tilaisuuteen ja tule tutustumaan näihin tyylikkäisiin ja toimiviin asuntoihin paikan päälle – esittelemme asuntoja myös yksityisesti sinun aikataulusi mukaan!

Are you interested in this estate?

Contact us or leave a message

Ville Kova

Apartment

Shares
7486-7623
Management type
Asunto-osakeyhtiö
Number of rooms
1h+kt+alkovi+lasit.parv (yj:1h+kt)
Floor/Floors
3/5
Living area
30,0 m2
Other spaces
0,0 m2
Additional information on area
Pinta-alaa ei ole tarkistusmitattu Isännöitsijäntodistuksen mukainen. Yhtiöjärjestyksen mukainen.
Balcony
Lasitettu
Balcony direction
Pohjoinen, länsi
Elevator
Taloyhtiössä on hissi
Stove
Integroitu liesi, induktioliesi, erillisuuni
Kitchen countertop material
Laminaatti
Kitchen floor material
Parketti
Kitchen wall material
Maalattu
Bathroom equipment
Suihkuseinä, pesukoneliitäntä, lattialämmitys, wc-istuin, suihku, peilikaappi
Bathroom floor material
Laatta
Sauna floor material
Laatta
Sauna wall material
Kaakeli
Bedroom description, details, and equipment
Lukumäärä: 1
Lattiamateriaalit: parketti
Seinämateriaalit: maalattu
Living room description, details, and equipment
Lattiamateriaalit: parketti
Seinämateriaalit: maalattu
Condition
Uusi

Property and company information

Company name
Asunto Oy Helsingin Jupiter
Lot ownership
Oma
Lot size
3 605,00 m2
Year of construction
2025
Building material
Betoni
Roof type
Tasakatto
Roofing
Huopa/ Bitumikate
Heating system
Kauko
Energy certificate
Kyllä
Additional information on the energy certificate
Voimassa 05.03.2025
Energy class
A2018
Outdoor parking spaces
4
Loans
12 536 000,00 €
Mortgages
16 650 000,00 €
Property manager
Kiinteistö-Tahkola Helsinki Oy
Turvalaaksonkaari 2, 3. krs, 01740 Vantaa
Isännöitsijä Jussi Uusiniemi
jussi.uusiniemi@kiinteistotahkola.fi
+358207488352
Property maintenance
Huoltoyhtiö
Company's premises and facilities
Sauna, talopesula, kuivaushuone, kellarikomero, huoneistokohtaiset varastot, lastenvaunuvarasto.

Additional information

Available
Heti
Other important information
Koko yhtiötä koskeva lisätieto:
Yhtiötä sitoo kiinteistön 91-29-186-6 muiden omistajien kanssa allekirjoitettu hallinnanjakosopimus ja siinä sovitut oikeudet ja velvollisuudet. Yhtiön hallinnassa on yksin tai yhdessä kiinteistön 91-29-186-6 muiden omistajien kanssa hallinnanjakosopimuksessa ilmenevät yhteiskäyttötilat.
Taloyhtiö on allekirjoittanut hallinnanjakosopimuksen Asunto Oy Helsingin Saturnuksen ja Koy Planeetan Pysäköinnin välillä.
Yhtiötä sitoo 24.11.2023 päivätty rasitesopimus.
Tupakointi ja sähkötupakointi on kielletty kaikissa osakashallinnassa olevissa tiloissa sekä yhtiön yhteistiloissa, rakennuksen sisäänkäyntien ja ilmanottoaukkojen läheisyydessä.

Housing costs

Maintenance charge
148,50 €/kk (4,95 €/m2)
Financing charge
404,32 €/kk (13,48 €/m2)
Other charge
6,00 €
Total company fee
558,82 €
Water
27,00 €/hlö/kk
Sauna
25,00 €
Other payments / additional information on payments
Kulutetusta vedestä suoritetaan korvaus huoneistokohtaisen mittauksen perusteella, vedenkulutuksesta peritään kuitenkin ennakkomaksua, jonka perusteena on huoneistoissa asuvien henkilöiden lukumäärä Käyttösähkö kulutuksen mukaan.

Kotivakuutus omien sopimusehtojen mukaisesti.

Varainsiirtovero 1,5 % velattomasta myyntihinnasta.

Myyjällä on kaupan kohteeseen kohdistuva sähköinen omistajamerkintä huoneistotietojärjestelmässä. Ostajan tulee hakea omistusoikeuden rekisteröintiä Maanmittauslaitokselta. Ostaja vastaa tällöin omistusoikeuden rekisteröintikustannuksista. Ostajan pankin ostajalta mahdollisesti veloittamista kaupantekoon, omistusoikeuden rekisteröintiin tai panttausmerkinnän hakemiseen liittyvistä kustannuksista ostaja saa tiedon pankiltaan.

Price

Selling price
89 500,00 € (2 983,33 €/m2)
Apartment's share of the company loan
133 000,00 € (4 433,33 €/m2)
Total purchase price
222 500,00 € (7 416,67 €/m2)
Kartta