Etusivu / Uusimaa / Helsinki / Töölönkatu 14

Töölönkatu 14

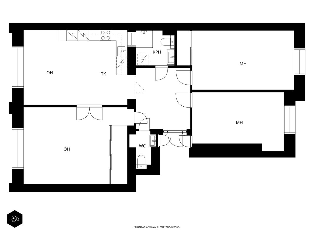
Etu-Töölö, Töölö, Helsinki | Kerrostalo | 4h+avok.+kph+wc+eteinen (yj. 3h+k)

Ylimmän kerroksen koti kaunis kuin koru.

Tässä huoneistossa on tilaa ja ilmavuutta. Isot huoneet avaran eteisaulan ympärillä kutsuvat perheesi viihtymään ja nauttimaan arjesta. Kahdesta makuuhuoneesta näkymät korkealta, kohti isoa korttelipihaa ja toiselta puolen kohti Töölönkatua antavat valtavasti valoisuutta asuntoon, kun taivasta näkyy paljon.

Tämä tunnelmaltaan seesteinen koti on isosti, hyvällä maulla remontoitu vuonna 2021 linjasaneerauksen yhteydessä.

Upea, erinomaisen kattavasti varusteltu HTH:n vaalea avokeittiö kvartsitasoineen on kerrassaan ihana ja siinä tilaa riittää isolle ruokapöydälle, sohvalle ja oleskelulle. Kiinteää säilytyskaapistoa on runsaasti, ja tärkeä lisä upean, tilavan kylpyhuone/wc:n lisäksi on toinen erillinen wc.

Taloyhtiö seisoo omalla tontillaan. Remontteja on yhtiössä tehty runsaasti, mm. iso linjasaneeraus (putkiremontti) on tehty vuonna 2021ja vesikaton pinnoitus 2023.

Siisti irtaimistovarasto kuuluu huoneistolle ja erinomaisen kätevää on helposti katutasossa sijaitseva lastenvaunu- ja pyörävarasto.

Loistava mikrosijainti suositussa Etu-Töölössä, Töölönlahden ja Hesperianpuiston liepeillä. Kävelymatkan päässä ovat mm. Finlandia-talo, Eduskuntatalo, ihanat kivijalkaliikkeet ja ravintolat. Ydinkeskustaan kävelee hetkessä, kuten myös merenrantaan ja Töölönlahdelle tuossa tuokiossa. Manskun liikenne on sopivan lähellä, muttei häiritse.

Tässä kodissa on perheellesi todellakin speksit kohdillaan, joten varaa oma esittelyaikasi

- lämpimästi tervetuloa!

Myynti

Tiina Virjonen

myyntipäällikkö, kiinteistönvälittäjä LKV, Töölö

tiina@bo.fi

044 011 1066

Are you interested in this estate?

Contact us or leave a message

Tiina Virjonen

Tiina Virjonen

myyntipäällikkö Töölö, kiinteistönvälittäjä LKV, partner

Apartment

Shares
80-83
Management type
Asunto-osakeyhtiö
Number of rooms
4h+avok.+kph+wc+eteinen (yj. 3h+k)
Floor/Floors
6/6
Living area
95,0 m2
Other spaces
0,0 m2
Additional information on area
Pinta-ala ei ole tarkistusmitattu.
Mainittu pinta-ala saattaa tämän ikäisessä kohteessa (rakennettu ennen vuotta 1992) poiketa olennaisesti nykyisten standardien mukaan laskettavasta asuinpinta-alasta. Todellinen asuinpinta-ala voi tarkistusmittauksen jälkeen olla yhtiöjärjestyksessä, isännöitsijäntodistuksessa ja esitteessä mainittua pienempi tai suurempi. Isännöitsijäntodistuksen mukainen. Yhtiöjärjestyksen mukainen.
Views
Vehreät ja korkeat näkymät isolle korttelipihalle kahdesta makuuhuoneesta kohti länttä, olohuone/avokeittiöstä ja kolmannesta makuuhuoneesta kohti Töölönkatua, itään.
Elevator
Taloyhtiössä on hissi
Kitchen description, details, and equipment
Kaunis HTH:n keittiö Tulikivi-kvartsitasoineen ja integroituine kodinkoneineen. Kodinkoneet Siemens: täyskorkeat jääkaappi ja pakastin, astianpesukone, mikro, induktioliesi, erillisuuni, allas Tapwell, hana Lapetek. Työtasossa pistorasioita.
Bathroom description, details, and equipment
Tyylikäs, tilava kylpyhuone, jossa seinät päällystetty marmorikuvioidulla, isolla seinälaatalla, lattia kalanruotokuvioisella kaakelilla.
Seinä-WC, kaapistot (INR), Oras-hana, sadesuihku, bidee, pyyhekuivain sekä tilaa pesutornille.
Toilet description
Seinä-WC, Swedberg-allaskaapisto
Lattiamateriaalit: laatta
Seinämateriaalit: kaakeli
Wall materials
Maalattu
Floor materials
Tammi kalanruotoparketti (liimattu alustaansa, eikä kynnyksiä)
Other items included in the sale
Kiinteät, himmennettävät (Siemens renova-kytkimet) valaisimet keittiön välitilassa, kylpyhuoneeessa ja wc:ssä.
Eteisen HTH-kaapistot, kahden makuuhuoneen kiinteät A.S. Helsingön kaapistot.
Apartment renovations
Vuonna 2021 linjasaneerauksen yhteydessä iso huoneistoremontti, jossa mm.:
- keittiön siirto ja vanhan keittiön purku. Uuteen keittiöön vesijohto- ja viemärityöt sekä vanhan keittiön veden ja viemärin poisto suunnitelman mukaisesti.
- sähkötyöt
- parketin vaihto,
- yhden oviaukon siirto ja toisen oviaukon paikan muokkaus.
Condition
Hyvä

Property and company information

Company name
Asunto OY Töölönkatu 14
Lot ownership
Oma
Lot size
1 302,00 m2
Year of construction
1924
Building material
Tiili
Roof type
Harjakatto
Roofing
Pelti
Heating system
Kauko
Energy certificate
Kyllä
Additional information on the energy certificate
Viimeinen voimassaolopäivä 19.11.2026
Energy class
F2013
Completed renovations and improvements
1975 Putkiremontti
1976 Sähkönousut
1985 Julkisivujen rappaus
1987 Ikkunoiden korjaus
1991 4 putkinousun linjasaneeraus (pienet wc:t)
1996 Lämmönvaihdin uusittu
1997 Sähköpääkeskus uusittu. Porrashuoneiden saneeraus
2001 Pihan puoleisten ikkunoiden maalaus
2002 Piha-asfaltointi
2008 Vesikaton tervaus. Pihan tukimuuri ja aita uusittu.
2012 Hukkalämmön tuuletuksen asentaminen vintille
2014 Kadunpuolen ulko-ovien kunnostus. Vesikaton pinnoitus. Talonmiehen asunnon pintakunnostus.
2015 Saattolämmityskaapeli. Kellarin putkien uusiminen.
2016 Ikkunoiden ja parvekeovien huoltomaalaus- ja kunnostus. Hissin taittopyörän laakereiden kunnostus.
2017 Lämmönvaihdin uusittu. Korvausilmaventtiilien asennukset.
2019 Katon piippujen nuohoustasojen asennus.
2020 Sisäpihan parvekkeiden uusinta. Lukituksen uusinta.
2021 Linjasaneeraus, patteritermostaattien uusiminen.
2023 Vesikaton pinnoitus kadun puolelta. Hormikartoitus. Ikkunoiden kuntotutkimus. Vesikaton pinnoitus pihan puolelta.
Known upcoming renovations/repairs
2025 Ilmanvaihto-ongelmien jatkoselvittäminen ja tarvittavat korjaukset
2026-2028 Jätesuojien hankkiminen
2026-2027 Julkisivujen ja vesikaton kuntotutkimus
2028-2032 Julkisivujen, ikkunoiden ja vesikaton uusiminen
Näiden lisäksi tehdään kiinteistön kunnossapidon vaatimia korjaustoimia.
Obligations causing future costs
Käyttötilin limiitti 16 818,79 € 31.7.2023.
Loans
861 139,27 €
Mortgages
3 701 637,58 €
Property manager
Isännöinti Euramaa Oy
Ville Järvinen
Iso Roobertinkatu 4 A 4. krs,
00120 Helsinki
Property maintenance
Talonmies
Other in the housing company
Tilava ja kätevä lastenvaunu- ja pyörävarasto katutasossa, huoneistokohtaiset varastot.

Additional information

Services
Alepa Hesperiankatu 130 m, K‑Market Töölöntori 350 m, K-Supermarket Kasarmi 750 m
School
Minervakoulu (alakoulu) 290 m, Taivallahden peruskoulu 750 m
Daycare
Pilke Playschool Töölö 260 m, Päiväkoti Onnimanni R.Y. 350 m, Töölön Ankkalampi-Duckies 450 m
Additional zoning information
Tiedustelut Helsingin kaupunki, www.hel.fi/kaavoitus, 09 310 1691
Available
4 kk kaupanteosta/sopimuksen mukaan

Housing costs

Maintenance charge
503,50 €/kk (5,30 €/m2)
Financing charge
80,75 €/kk (0,85 €/m2)
Total company fee
584,25 €
Water
15,00 €/hlö/kk
Other payments / additional information on payments
Vesimaksu on ennakko, tasataan kerran vuodessa.
Käyttösähkö kulutuksen mukaan.
Kotivakuutusmaksut omien sopimusehtojen mukaisesti.
Varainsiirtovero 1,5 % velattomasta hinnasta.

Hallituksella valtuudet periä tai jättää perimättä ennen seuraavaa varsinaista yhtiökokousta, enintään kaksi ylimääräistä hoitovastiketta yhtiön taloudellisen tilanteen niin vaatiessa.

Taloyhtiön osakeluettelo on siirretty huoneistotietojärjestelmään. Ostajan tulee hakea omistusoikeuden rekisteröintiä Maanmittauslaitokselta kaupan jälkeen. Ostaja vastaa omistusoikeuden rekisteröintikustannuksista, mahdollisista osakekirjan mitätöinnistä aiheutuvista kustannuksista sekä mahdollisesta hakemusmaksun korotuksesta. Ostajan pankin ostajalta mahdollisesti veloittamista kaupantekoon, omistusoikeuden rekisteröintiin tai panttausmerkinnän hakemiseen liittyvistä kustannuksista ostaja saa tiedon pankiltaan.

Price

Selling price
840 790,38 € (8 850,43 €/m2)
Apartment's share of the company loan
4 209,62 € (44,31 €/m2)
Total purchase price
845 000,00 € (8 894,74 €/m2)
Payment method
Käteinen.
Kartta