Etusivu / Keski-Suomi / Jyväskylä / Tiilitehtaantie 2

Tiilitehtaantie 2

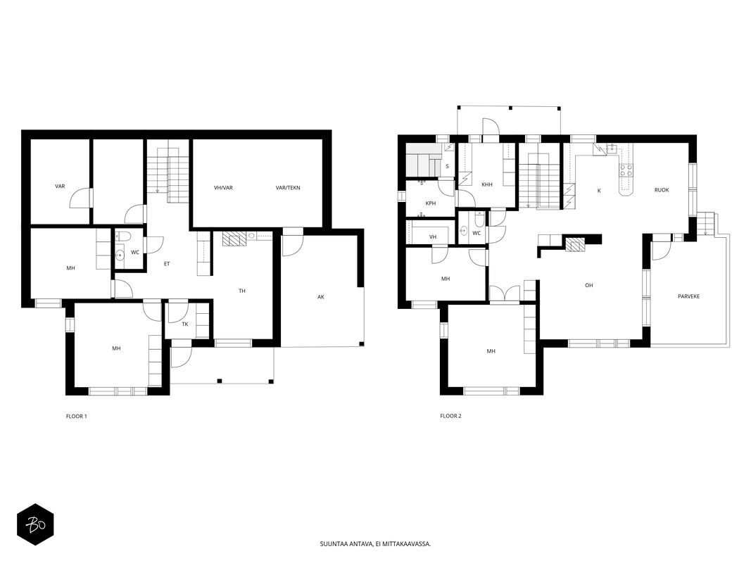
Mannila, Jyväskylä | Omakotitalo | 4mh,oh,k,takkah,2xwc,khh,kph,s,teras

Tämä kaunis kivitalo Tiilitehtaantie 2:ssa hurmaa jo ensisilmäyksellä vaaleilla sävyillään ja kodikkaalla tunnelmallaan. Koti on suunniteltu perhe-elämän ehdoilla, täällä arki on sujuvaa, tilat toimivat ja jokainen yksityiskohta on mietitty viihtyisyyden näkökulmasta.

Neljän makuuhuoneen kokonaisuus tarjoaa tilaa isommallekin perheelle. Keittiö ja ruokailutila muodostavat kodin sydämen, jossa on helppo kokoontua yhteen. Olohuoneen suuret ikkunat kehystävät upean järvimaiseman ja tuovat luonnon osaksi sisustusta.

Molemmissa kerroksissa on tunnelmaa ja lämpöä tuovat takat - yläkerrassa takka-leivinuuni, joka yhdistää kodikkuuden ja käytännöllisyyden, sekä alakerrassa varaava takka, joka levittää pehmeää lämpöä ja kutsuu viihtymään.

Tilava kodinhoitohuone helpottaa arjen pyörittämistä, ja sen yhteydestä löytyvät pesuhuone ja sauna muodostavat tyylikkään ja viihtyisän kokonaisuuden. Kaksi erillistä wc:tä lisäävät arjen sujuvuutta.

Tässä kodissa on runsaasti säilytystilaa, mikä tekee asumisesta vaivatonta ja järjestyksestä helppoa ylläpitää. Autokatos tarjoaa suojaa sääsuojan autolle, ja sen takaa löytyy kätevästi myös lämmin varastotila - juuri se lisätila, jota aina kaivataan.

Kiinteistö sijaitsee omalla tontillaan ja on rakennettu vankasti kestävän kivitalon muodossa. Piha on helppohoitoinen ja suurelta osin asfaltoitu, mikä tekee siitä siistin ja huolettoman hoitaa ympäri vuoden.

Mannilan suosittu asuinalue tarjoaa erinomaiset puitteet lapsiperheelle. Kävelymatkan päässä ovat niin koulut, päiväkodit kuin kattavat päivittäispalvelutkin, minkä ansiosta arjen logistiikka hoituu vaivatta. Alue tunnetaan rauhallisuudestaan ja yhteisöllisyydestään, tehden siitä yhden Jyväskylän toivotuimmista asuinpaikoista. Täällä voit nauttia mainiosta ympäristöstä ja palveluiden läheisyydestä, elämästä, joka on sujuvaa ja viihtyisää.

Varaa oma esittelyaikasi tähän unelmien kotiin.

Ismo Nieminen

asuntomyyjä, KiLAT, partner

040 962 2473

ismo.nieminen@bo.fi

@bolkvismo

Are you interested in this estate?

Contact us or leave a message

Ismo Nieminen

Ismo Nieminen

asuntomyyjä, KiLAT, partner

Building

Year of construction (started)
2008
Year of construction
2009
Building material
Kivi
Description of building materials
Talon runkomateriaalina on HB-Betonin lämpöharkko.
Roof type
Harjakatto
Roofing
Tiili
Living area
165,0 m2 (204,0 m2)
Additional information on area
Pinta-alatiedot on saatu rakennuslupapiirustuksista. Asuintilojen pinta-alaksi on ilmoitettu piirustuksien mukainen huoneistoala. Muissa tiloissa kellarikerroksen varastotilat.
Floors
2
Other spaces
39,0 m2
Heating
Vesikiertoinen lattialämmitys, uuni/takka, ilmalämpöpumppu. Hyvä
Description of the heating system
Ilmavesilämpöpumppu, puu, ilmalämpöpumppu
Number of rooms
4mh,oh,k,takkah,2xwc,khh,kph,s,teras
Kitchen description, details, and equipment
Keittiön ja olohuoneen välissä varaava takka/leivinuuni (Kerman Saven mallistoa.)
Other kitchen equipment
Mikroaaltouuni, astianpesukone, kiinteät valaisimet, liesituuletin / hormi
Stove
Leivinuuni, induktioliesi, erillisuuni
Kitchen countertop material
Laminaatti
Kitchen floor material
Laatta
Kitchen wall material
Maalattu
Bathroom description, details, and equipment
Kylpyhuoneessa kaksi suihkua.
Bathroom equipment
Lattialämmitys, suihku, kiinteät valaisimet
Bathroom floor material
Laatta
Bathroom wall material
Kaakeli
Sauna
Asunnossa on sauna
Sauna floor material
Laatta
Sauna wall material
Puu
Toilet description
Wc-kaapisto
Varustus: lattialämmitys, lattiakaivo
Lukumäärä: 2
Lattiamateriaalit: laatta
Seinämateriaalit: kaakeli
Laundry room
Varustus: pesukoneliitäntä, pesuallas, lattialämmitys, lattiakaivo, silityspöytä/taso, pyykkikaapit, pöytätaso, keskuspölynimuri
Lattiamateriaalit: laatta
Seinämateriaalit: kivi, maalattu
Bedroom description, details, and equipment
Lukumäärä: 4
Lattiamateriaalit: parketti
Seinämateriaalit: kivi, maalattu
Living room description, details, and equipment
Lattiamateriaalit: parketti
Seinämateriaalit: kivi, maalattu
Fireplace details
Takka
Other storage facilities
Ulkovarasto
Tehdyt korjaukset
Takaterassi 2018.
Other items included in the sale
Kasvihuone,
Condition
Hyvä

Property information

Property identification number
179-29-42-9
Type
Tontti
Type of plot
Rinnetontti
Lot size
845,00 m2
Lot ownership
Oma
Mortgage deeds
450 000,00 €
Rasitukset ja rasitteet
Rasitteita: kulkuyhteys asemakaava-alueella, vesijohto, viemärijohto, sadevesiviemäri ja sähköjohto.
Additional information about the plot
Länteen päin avautuva porrastettu rinnetontti.
Tie perille
Water supply
Kunnan
Sewer
Kunnan
Rakennusoikeus, e-luku
0.25
Additional information about building rights
Rakennusoikeus on kokonaisuudessaan käytetty.

Additional information

Services
Palokan marketit n. 2km. Novan terveysasema n. 10km.
School
Mankolan yhtenäiskoulu n. 950m.
Daycare
Mannilan päiväkoti n. 1km.
Transportation connections
Jyväskylän paikallisliikenne, lähin pysäkki n. 800m.

Housing costs

Waste management
28,25 €
Property tax
1 007,36 €
TV fees
8,90 €
Other payments / additional information on payments
Vesimaksu voimassa olevan Alvan hinnaston mukaan. Sähkön kulutus vuonna 2024 19158,9 kWh, sisältäen lämmityksen sekä kotitaloussähkön.

Price

Total purchase price
448 000,00 €
Selling price
448 000,00 €
Available
Sopimuksen mukaan
Payment terms
Käteinen.
Kartta