Etusivu / Varsinais-Suomi / Turku / Martinkatu 3

Martinkatu 3

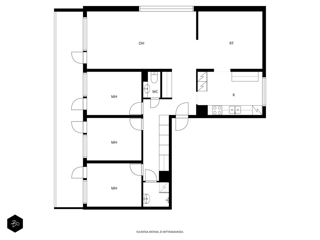
Martti, Turku | Kerrostalo | 5h+k+wc+kph+las.parv.

YLIMMÄN KERROKSEN KULMAHUONEISTO KOLMELLA MAKUUHUONEELLA

Tervetuloa tutustumaan tähän valoisaan ja hyvin pidettyyn kotiin halutussa Martin kaupunginosassa.

Asunto sijaitsee taloyhtiön ylimmässä kerroksessa ja tarjoaa upeat, esteettömät näkymät Aurajoelle ja ympäröivään kaupunkimaisemaan.

Tämä 91 m² kulmahuoneisto yhdistää tehokkaan tilankäytön, käytännöllisyyden ja tyylin. Asunnossa on kolme makuuhuonetta, joista kahdessa on liukuovikaapistot. Säilytystilaa asunnossa riittää isommallekin perheelle.

Keittiöremontista on jo aikaa, mutta se hurmaa edelleen modernilla ilmeellään sekä toimivilla ratkaisuillaan. Lattioita peittää osittain lämminsävyinen parketti ja osittain kaunis vaalea laatta.

Kylpyhuone on raikkaan moderni ja varustettu pesukoneliitännällä sekä suihkulla, ja wc on sijoitettu omaan erilliseen tilaansa. Molemmat tilat on uusittu linjasaneerauksessa.

Valoisa olohuone kutsuu rentoutumaan, ja sen jatkeena avautuu koko asunnon mittainen lasitettu parveke, josta voit nauttia auringosta ja jokimaisemista ympäri vuoden.

Vuonna 1966 rakennetusta kiinteistöstä on pidetty poikkeuksellisen hyvää huolta vuosien varrella. Linjasaneeraus on tehty, hissit uusittu ja julkisivut ovat erinomaisessa kunnossa. Keväällä 2022 valmistunut perustusten vahvistus teräspaaluilla sekä kellaritilojen ja saunan täydellinen uudistus tuovat taloon huoletonta asumista pitkälle tulevaisuuteen.

Taloyhtiössä on autokatospaikkoja, ja tällä hetkellä paikan saisi heti. Tulevan lisärakentamisen myötä asukkailla on myös mahdollisuus hankkia autohallipaikka sähköauton latausmahdollisuudella. Uuden rakennuksen valmistuessa taloyhtiö saa käyttöönsä viihtyisän sisäpihan ja modernin, sisätiloihin sijoittuvan jätepisteen.

Hoitovastike on maltillinen 342 €/kk, ja ylimmässä kerroksessa sijaitseva asunto tarjoaa rauhallisen asumisympäristön ilman liikenteen hälyä. Maisemat Turun jokirantaan ovat huikeat.

Sijainti Martinkadulla on vailla vertaa – Turun keskustan palvelut, torialue, jokiranta sekä suosituimmat kahvilat ja ravintolat ovat kaikki vain kävelymatkan päässä. Tämä koti on täydellinen valinta sinulle, joka arvostat sekä hyvin hoidettua taloyhtiötä että keskeistä mutta rauhallista sijaintia.

Lämpimästi tervetuloa ihastumaan tähän valoisaan ja viihtyisään kotiin – täällä on helppo viihtyä pitkään.

TAINA VUORI | 050 527 4106 | taina.vuori@bo.fi

facebook: BO LKV Taina Vuori

instagram: tainavuoribolkv

_____________________________________

Harkitsetko oman asuntosi myyntiä? Pyydä minut sitoumuksetta maksuttomalle arviokäynnille. Kerron samalla lisää tämänhetkisestä asuntomarkkinatilanteesta, palveluistani ja Bo:n loistavasta välityskonseptista sekä miten asunnonvaihdon suhteen kannattaa edetä. Autan mielelläni!

Are you interested in this estate?

Contact us or leave a message

Taina Vuori

Taina Vuori

kiinteistönvälittäjä LKV, eMBA, partner

Apartment

Shares
746-835
Management type
Asunto-osakeyhtiö
Number of rooms
5h+k+wc+kph+las.parv.
Floor/Floors
7/7
Living area
91,0 m2
Other spaces
0,0 m2
Additional information on area
Pinta-ala ei ole tarkistusmitattu. Mainittu pinta-ala saattaa tämän ikäisessä kohteessa (rakennettu ennen vuotta 1992) poiketa olennaisesti nykyisten standardien mukaan laskettavasta asuinpinta-alasta. Todellinen asuinpinta-ala voi tarkistusmittauksen jälkeen olla yhtiöjärjestyksessä, isännöitsijäntodistuksessa ja esitteessä mainittua pienempi tai suurempi. Isännöitsijäntodistuksen mukainen. Yhtiöjärjestyksen mukainen.
Balcony
Lasitettu
Elevator
Taloyhtiössä on hissi
Kitchen description, details, and equipment
Keittiökaapistot (Isku, lämpökäsitelty koivu), työtaso mustaa graniittia, astianpesukone (Siemens, integroitu), mikroaaltouuni (integroitu, Siemens), uuni (Siemens), jääkaappi/pakastin (LG), liesituuletin (Siemens).

Lattia laattaa, seinät maalattu.
Bathroom description, details, and equipment
Lattia ja seinät laattaa, lattialämmitys, pesukoneliitäntä, Charmia allaskaappi (vetolaatikot), peili, suihku, suihkuseinä, valaistut (led upotettu), allas, hana.
Toilet description
Lattia ja seinät laattaa, wc-istuin, bidesuihku, allas, allaskaappi (laatikostot), hana, peili.
Bedroom description, details, and equipment
Kolme makuuhuonetta. Lattia laattaa, seinät lasikuitutapettia. Käytävällä koko seinän mittaiset maitolasiliukuovet, joissa paljon säilytystilaa.
Kahdessa makuuhuoneessa omat kaapistot.
Living room description, details, and equipment
Lattia tammiparkettia, seinät lasikuitutapettia. Käynti parvekkeelle (koko asunnon mittainen, 12 m ja 20 m2).
Apartment renovations
Huoneistoon on linjasaneerauksen yhteydessä tehty yhtiön toimesta kylpyhuoneremontti, jonka lisäksi hiottu parkettilattia asukkaan toimesta.

Muita muutostöitä:
Eteisen ja käytävän katto laskettu ja valaistus uusittu.

Edellinen asukas on remontoinut keittiön v. 2005.
Condition
Hyvä

Property and company information

Company name
Asunto Oy Matinkatu 1
Lot ownership
Oma
Lot size
2 865,00 m2
Year of construction
1966
Building material
Elementti, betoni
Roof type
Pulpettikatto
Roofing
Pelti
Heating system
Kauko
Energy certificate
Kyllä
Energy class
D2018
Completed renovations and improvements
2024: Väestönsuojan huolto
2023-24: Kellarikerroksen ennallistaminen/ uudelleen rakennus (sauna ja pesutupa)
2023: Salaojien uusiminen
2022: Perustusten vahvistaminen teräspaaluilla
2022: Vesikaton korjaus ja maalaus
2017: Patteriverkoston säätö
2017: Jäteaitaus
2016: Ulkovalaisimet
2016: Laajakaista
2016: Lukitusjärjestelmän uusiminen (Abloy Sento)
2016: Pyykkituvan koneiden uusinta
2016: Porraskäytävien maalaus
2016: Hissien uusinta
2016: Poistoilman lämmön talteenotto
2016: Linjasaneeraus (käyttövesijärjestelmä, viemärit, kylpyhuoneet, sähkönousut ja antenni- ja televerkko)
2014: Kadun puoleisten ulkoportaiden uusinta
2012: Kellarin käyttöveden runkovesijohtojen uusinta
2011: Kadun puoleisten aitojen uusinta
2010: Tiilijulkisivujen uusinta
2005: Parvekejulkisivun korjaus ja puutuneiden parvekelasien asennus
2005: Ikkunat ja parvekeovet (1998-2005)
2001: Pihan kunnostaminen
2000: Pohjaviemäri ja tuuletusparvekkeet
Known upcoming renovations/repairs
2025: Pelastuslain edellyttämien lisäpalovaroittimien asentaminen
Carports
42
Loans
2 261 627,33 €
Mortgages
4 469 950,34 €
Property manager
Isännöitsijä: Lasse Johansson
Puhelinnumero: +358449811168
Sähköposti: lasse.johansson@isannointijohansson.fi
Property maintenance
Huoltoyhtiö
Other in the housing company
Yhtiössä sauna, pesutupa ja mankeli, väestönsuoja, ullakkovarasto, kellarivarasto
Ilmanvaihtojärjestelmä: koneellinen poisto

Saunamaksu: 3,00 €/h
Varastovuokra: 102,00 €/kk

Perustusten vahvistaminen teräspaaluilla valmistui 5/2022.

Yhtiöjärjestyksen 7§ mukaan osakkeenomistaja on velvollinen omalla kustannuksellaan pitämään huoneistonsa hyvässä kunnossa ja huolehtimaan sen sisäkorjauksista. Yhtiön tulee kuitenkin korjauttaa kaikki rakenteesta johtuvat sisäpuoliset viat sekä ne lämpö-, tiedonsiirto-, vesi- ja viemärijohdot, jotka olivat huoneistossa sitä osakkeenomistajalla ensimmäistä kertaa luovutettaessa tai jotka yhtiön on myöhemmin asennuttanut huoneistoon tai muutoin päättänyt ottaa vastattavakseen.

Additional information

Additional zoning information
Turun kaupunki, puh 02 330 000
Lisätietoa kaavoituksesta ja mahdollisista kaavoitushankkeista on saatavilla Turun kaupungilta.

Tontin osan mahdollinen myyminen uudisrakentamista varten:
10.6.2020 pidetyssä varsinaisessa yhtiökokouksessa päätettiin vahvistaa Turun kaupungille kaavahakemus sekä hyväksyä Aura Rakennus Oy:n antama tarjous uudisrakennusoikeuden ostosta, vahvistaa tehty sopimus kaavoitusyhteistyöstä, valtuuttaa hallitus sopimaan maankäyttösopimuksesta Turun kaupungin kanssa, sekä allekirjoittamaan kiinteistökaupan esisopimus ja lykkääväehtoinen kiinteistönkauppa.

Toteutuessaan kiinteistönkaupasta saatavaa kauppahintaa on tarkoitus käyttää hoitolainan lyhentämiseen.

Ks. myös vireillä oleva kaavamuutos ''Herkules''.
Available
Sopimuksen mukaan

Housing costs

Maintenance charge
342,00 €/kk (3,76 €/m2)
Financing charge
268,20 €/kk (2,95 €/m2)
Special charge
2,90 €
Other charge
297,90 €
Total company fee
911,00 €
Water charge basis
Oma mittari
Other payments / additional information on payments
Käyttösähkö kulutuksen mukaan.
Huoneistokohtainen kylmän ja lämpimän käyttöveden mittaus. (Yhtiössä ei peritä vesiennakkoa).
Laajakaistamaksu 2,90 euroa/huoneisto/kk

Varainsiirtovero 1,5 %, maksetaan kaupanteon yhteydessä.

Taloyhtiön osakeluettelo on siirretty huoneistotietojärjestelmään ja ostajan tulee hakea omistusoikeuden rekisteröintiä Maanmittauslaitokselta. Ostaja vastaa tällöin omistusoikeuden rekisteröintikustannuksista, mahdollisista osakekirjan mitätöinnistä aiheutuvista kustannuksista sekä mahdollisesta hakemusmaksun korotuksesta. Ostajan pankin ostajalta mahdollisesti veloittamista kaupantekoon, omistusoikeuden rekisteröintiin tai panttausmerkinnän hakemiseen liittyvistä kustannuksista ostaja saa tiedon pankiltaan.

Price

Selling price
317 842,02 € (3 492,77 €/m2)
Apartment's share of the company loan
30 157,98 € (331,41 €/m2)
Total purchase price
348 000,00 € (3 824,18 €/m2)
Kartta