Etusivu / Satakunta / Pori / Virnatie 8

Virnatie 8

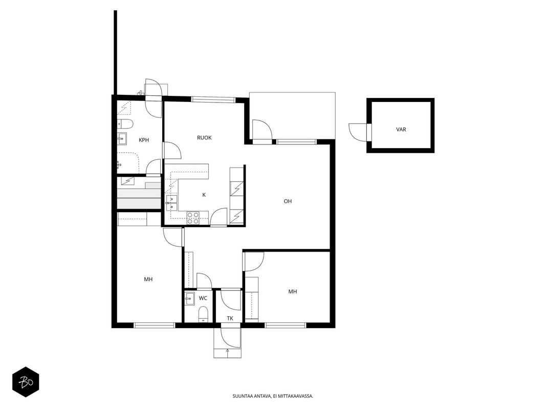
Leppäkorpi, Pori | Rivitalo | 3h+k+s

Unelmoitko kodista, jossa ympäristöystävällisyys kohtaa nykyaikaiset mukavuudet? Tämä upea rivitaloasunto, joka sijaitsee osoitteessa Virnatie 8 Pori, tarjoaa juuri tätä – ja paljon enemmän. Täysin uudistettu katto sekä uudet aurinkokennot takaavat, että koti on energiatehokas ja valmis tulevaisuuden haasteisiin. Oma autotalli tekee tästä kokonaisuuden, josta et halua jäädä paitsi!

Asunto tarjoaa käytännöllisen 3h+k+s -pohjaratkaisun, joka on suunniteltu vastaamaan erilaisten perheiden tarpeisiin. Yhdessä tasossa oleva koti on rakennettu vuonna 1984 ja sitä on huolella ylläpidetty vuosien varrella. Keittiö on tilava ja sen yhteydessä oleva olohuone luo yhtenäisen ja avaran tilan, jossa on helppo viettää aikaa yhdessä perheen ja ystävien kanssa. Saunassa voit rentoutua pitkän päivän päätteeksi, ja oma piha kutsuu nauttimaan ulkoilmasta vaikka aamukahvin merkeissä.

Taloyhtiö on hyvin hoidettu ja alueella asuu viihtyisä yhteisö, joka tekee arjesta miellyttävää. Asunnon oma terassi ja piha tarjoavat ihanteellisen paikan kesäilloista nauttimiseen. Ympäristö on rauhallinen ja luonnonläheinen, mikä takaa rentouttavan asumiskokemuksen. Autotalli on helposti saavutettavissa ja tarjoaa lisätilaa esimerkiksi säilytykseen – jokaisen autoilijan unelma.

Virnatie sijaitsee sujuvien kulkuyhteyksien ja kattavien palveluiden äärellä. Lähikaupat, koulut ja päiväkodit ovat kaikki lyhyen matkan päässä, joten arjen pyörittäminen on mutkatonta ja vaivatonta. Alueella on myös vehreitä ulkoilumaastoja, jotka ovat ihanteellisia niin liikunnan kuin vapaa-ajan viettoon. Tämä koti on todellinen löytö Porissa! Tule tutustumaan ja ihastu tähän ainutlaatuiseen asuntoon – se voi olla juuri se koti, jota olet etsinyt.

Mikko Helminen

kiinteistönvälittäjä LKV, LVV, KiAT, MBA, partner

0500 538 602

mikko.helminen@bo.fi

Are you interested in this estate?

Contact us or leave a message

Mikko Helminen

Mikko Helminen

kiinteistönvälittäjä LKV, LVV, KiAT, MBA, partner

Apartment

Shares
5001-6666
Management type
Asunto-osakeyhtiö
Number of rooms
3h+k+s
Floor/Floors
1/1
Living area
79,0 m2
Other spaces
0,0 m2
Additional information on area
Yhtiöjärjestyksen mukainen. Isännöitsijäntodistuksen mukainen.
Views
Piha ja katunäkymät
Stove
Sähköliesi
Kitchen countertop material
Laminaatti
Kitchen floor material
Laatta
Kitchen wall material
Kaakeli, maalattu
Bathroom description, details, and equipment
Kylpyhuoneessa varaus wc pytylle
Bathroom equipment
Pesukoneliitäntä, lattialämmitys, suihku, kiinteät valaisimet, kylpyhuonekaapisto
Bathroom floor material
Laatta
Bathroom wall material
Kaakeli
Toilet description
Varustus: lattialämmitys, lattiakaivo, peilikaappi
Lukumäärä: 1
Lattiamateriaalit: laatta
Seinämateriaalit: maalattu
Sauna floor material
Laatta
Sauna wall material
Puu
Bedroom description, details, and equipment
Lukumäärä: 2
Lattiamateriaalit: parketti
Seinämateriaalit: tapetti
Living room description, details, and equipment
Lattiamateriaalit: parketti
Seinämateriaalit: tapetti
Other storage facilities
Ulkovarasto
Condition
Ei luokiteltu

Property and company information

Company name
As. Oy Virnatie
Lot ownership
Oma
Lot size
2 632,00 m2
Year of construction
1984
Building material
Puu
Roof type
Harjakatto
Roofing
Tiili
Heating system
Sähkö
Energy certificate
Kyllä
Additional information on the energy certificate
Voimassa 30.06.2035 asti
Energy class
D2018
Completed renovations and improvements
2001 Osakas tehnyt as 2 ja as 3 uudet IV koneet LTO:lla, asunnoissa tulo ja poistoilmanvaihto
2002 Käynti ulko-ovien uusinta as 1-6 jas as 6 päädyn panelointi
2005 ikkunoiden ja takaovien uusinta as 2-6
2015 Osakas tehnyt as 1 ja as 5 uudet IV-koneet LTO:lla , asunnoissa tulo- ja poistoilmanvaihto
2016 Sadevesi-ja salojajärjestelmän uusinta sekä salaojavesipumppaamot asennettu as 2 as 5 pihanpuolelle
2020 Varttikatteen uusinta tiilikatteeksi, kattotuolien vahvistus, ulko-ovien päälle lipat, sadevesikourut sekä kattoturvatuotteet, tikkaat, kulkusillat ja kattoluukut
2025 Aurinkopaneelien 96 kpl lisäys etelänpuoleisille lappeille , perustettu energiayhteisö; tuotto jakaantuu asuntojen kesken ja ylimäärä sähköntuotosta kiinteistölle
Known upcoming renovations/repairs
Huoneistojen vesimittarien uusinnat osakas tekee omien remonttien yhteydessä, ulko-ovien puhdituskäsittely hoitaa jokainen osakas itse, asuntokohtaiset pihatyöt jokainen osakas hoitaa itse piha-alueensa
Garages
6
Loans
44 250,00 €
Mortgages
100 000,00 €
Property manager
Reijo Hernesniemi (puh 045-6333388)
Property maintenance
Asukkaat
Company's premises and facilities
Urheiluvälinevarasto, kaapeli-tv, huoneistokohtaiset varastot.

Additional information

Additional zoning information
Porin kaupunki, Porina
Available
Sopimuksen mukaan
Rent
690,00 €

Housing costs

Maintenance charge
189,60 €/kk (2,40 €/m2)
Financing charge
160,00 €/kk (2,03 €/m2)
Total company fee
349,60 €
Water
17,00 €/hlö/kk
Other payments / additional information on payments
Sähkön kokonaiskulutus noin 10.000 kwh / vuosi
Vesimaksuennakko 17 euroa / kk / hlö
Taloyhtiön osakeluettelo on siirretty maanmisttauslaitoksen huoneistotietojärjestelmään. Ostaja vastaa omistusoikeuden rekisteröinnistä ja osakekirjan mitätöinnistä aiheutuvista kustannuksista.

Price

Selling price
121 625,00 € (1 539,56 €/m2)
Apartment's share of the company loan
7 375,00 € (93,35 €/m2)
Total purchase price
129 000,00 € (1 632,91 €/m2)
Payment method
Käteinen.
Kartta