Etusivu / Päijät-Häme / Hartola / Omakotitie 6

Omakotitie 6

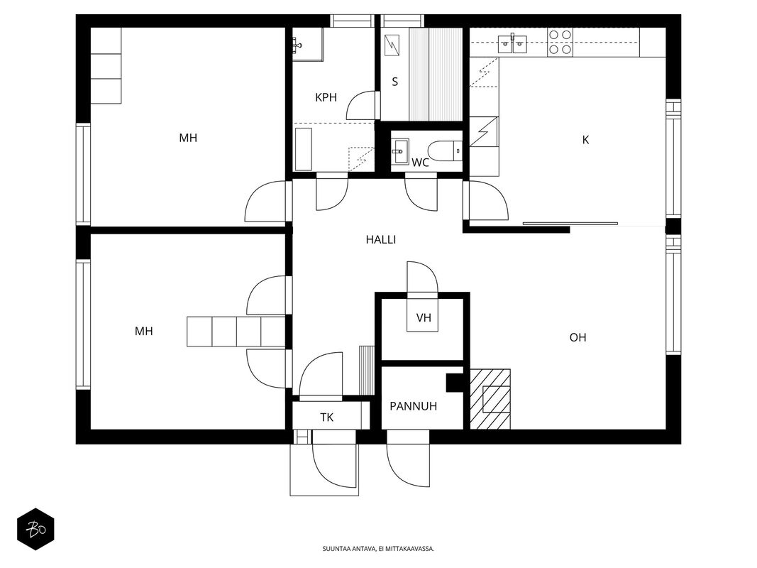
Asola, Hartola | Omakotitalo | Oh, k, 2-3 mh, s, ph, wc, vh.

Yksitasoinen ja hyvässä kunnossa pidetty omakotitalo.

Selkeä pohjaratkaisu toimii arjessa. Keittiö on riittävän tilava ruokapöydälle ja viereinen olohuone takkoineen luo omat puitteet rauhoittumiseen tai TV:n katseluun. Tällä hetkellä asunnossa on kaksi makuuhuonetta, toinen makuuhuone antaa mahdollisuuden väliseinän avulla jakaa sen kahdeksi makuuhuoneeksi, jolloin makuuhuoneita on kolme.

Hyvän kokoinen pesuhuone ja sauna muodostavat oman tilansa ja eteisessä on erillinen wc.

Taloa on remontoitu vuosien varrella mm. tasakatto muutettu aumakatoksi 1989, kylpyhuone saneerattu 2015, keittiön kaapistot ja tasot 2019, aurinkopaneelit, akusto ja korvausilmakoneet on rakennettu ja ikkunat on uusittu 2023.

Osta tästä kompakti koti lähellä kaikkea Hartolassa.

Haluatko varata oman esittelyajan:

Markku Heikkilä

0400 285 007

Isabella Sarres

044 200 4827

Are you interested in this estate?

Contact us or leave a message

Markku Heikkilä

Markku Heikkilä

kiinteistönvälittäjä LKV, partner

Building

Year of construction (started)
1975
Year of construction
1977
Building material
Tiili
Roof type
Auma
Roofing
Peltikate
Living area
90,0 m2 (92,0 m2)
Additional information on area
Tekninen tila 2 m2. Ulkovaja 7,5 m2.
Floors
1
Other spaces
2,0 m2
Description of the heating system
öljy, sähkö
Lämmön jakotapa
Vesikiertoinen patterilämmitys
Number of rooms
Oh, k, 2-3 mh, s, ph, wc, vh.
Kitchen description, details, and equipment
Keittiön kaapistot uusittu 2019, samalla uusittu myös kv-putket
Other kitchen equipment
Astianpesukone, liesituuletin / hormi
Stove
Keraaminen liesi
Kitchen floor material
Vinyyli
Kitchen wall material
Maalattu
Bathroom description, details, and equipment
Kph uusittu 2015, suihku 2025
Wc-istuin, lavuaari ja kv-putket 2019
Bathroom equipment
Wc-istuin, peilikaappi
Bathroom floor material
Laatta
Bathroom wall material
Kaakeli
Sauna
Asunnossa on sauna
Sauna description, details, and equipment
Puukiuas 2020, nuohottu vuosittain.
Sauna floor material
Laatta
Sauna wall material
Puu
Bedroom description, details, and equipment
Lukumäärä: 2
Lattiamateriaalit: parketti, laminaatti
Seinämateriaalit: tapetti
Living room description, details, and equipment
Olohuoneessa takka
Lattiamateriaalit: vinyyli
Seinämateriaalit: tapetti
Other spaces
Toisessa makuuhuoneessa laminaatta ja toisessa parketti
Fireplace
Tiilitakka, ei varaava, nuohottu vuosittain.
Fireplace details
Takka
Other storage facilities
Vaatehuone, ulkovarasto
Tehdyt korjaukset
Suihku vaihdettu 2025
Ikkunat uusittu 2023
Aurinkopaneelit ja akusto asennettu 2021
Korvausilmakoneet 2021.
Vinyylilattiat 2020 (Oh, k, et)
Saunana puukiuas 2020.
Keittiön kaapistot ja kv-putket 2019.
Wc-istuin, lavuaari ja kv-putket 2019.
KPH uusittu (vedeneristys) 2015
Lämminvesivaraaja 2021.
Condition
Tyydyttävä

Property information

Property identification number
81-401-1-1729
Block/Property name
Pellonreuna
Type
Tila
Type of plot
Tasamaatontti
Lot size
0,12 ha
Lot ownership
Oma
Mortgage deeds
102 568,46 €
Additional information about the plot
Tie perille
Water supply
Kunnan
Sewer
Kunnan
Käyttö- ja luovutusrajoitukset
Omakotirakennusten ja muiden enintään kahden perheen talojen korttelialue.

Housing costs

Heating
100,00 €
Water and wastewater
30,00 €
Property tax
196,76 €
Other payments / additional information on payments
Öljyä ei viimeaikoina ole käytetty, lämmitys sähköllä.

Price

Total purchase price
78 000,00 €
Selling price
78 000,00 €
Available
1 kk kaupasta
Payment terms
Käteinen.
Kartta