Etusivu / Satakunta / Pori / Pörstiläntie 6

Pörstiläntie 6

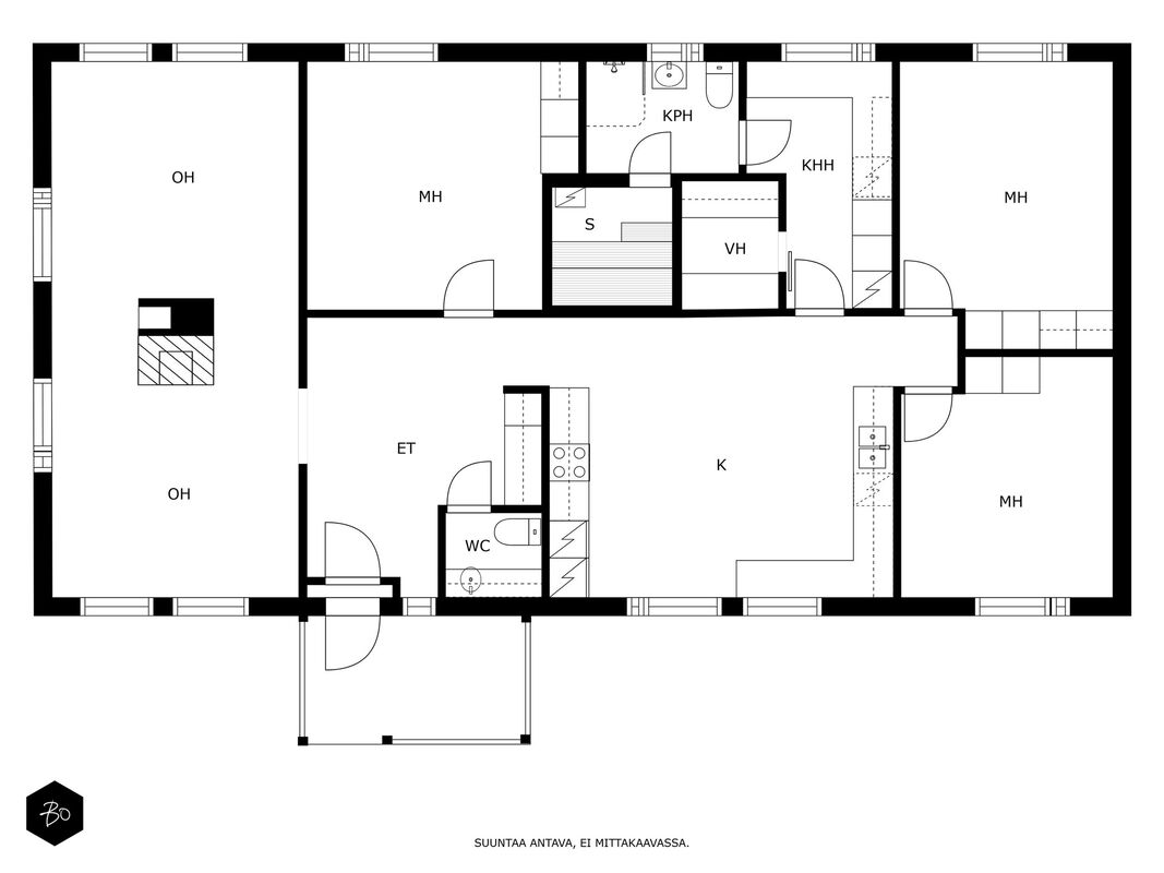
Uusiniitty, Pori | Omakotitalo | 3mh+oh+rt+k+khh+kph+s+2xwc+Autotalli 200m2

Tervetuloa Pörstiläntielle, missä odottaa kodikas ja huolellisesti remontoitu omakotitalo, joka tarjoaa vaivattoman asumisen ja käytännölliset puitteet elämiseen. Tämä yksitasoinen koti sädehtii tyylikkyyttä ja toimivuutta, ja se on täydellinen vaihtoehto perheelle, joka etsii viihtyisää ja käytännöllistä asumista.

Asunnon avarat ja valoisat sisätilat koostuvat kolmesta makuuhuoneesta, viihtyisästä olohuoneesta, ruokailutilasta, keittiöstä, kodinhoitohuoneesta, kylpyhuoneesta, saunasta sekä kahdesta erillisestä WC:stä. Remontti on suoritettu huolellisesti, mikä tekee kodista modernin ja käytännöllisen. Keittiössä on runsaasti työskentely- ja säilytystilaa, mikä tekee arjen ruoanlaitosta helppoa ja miellyttävää. Kodinhoitohuone tarjoaa erinomaiset puitteet arjen askareisiin, ja sauna tarjoaa ylellisen rentoutumishetken kiireisen päivän jälkeen.

Kiinteistö on hyvin hoidettu ja ympäröivä pihapiiri on viihtyisä sekä helppohoitoinen. Pihan kruunaa erinomaisesti uudistettu autotalli, joka sopii suuremmallekin kalustolle tai harrastetilaksi mitä parhaiten. Autotalli on remontoitu erityisellä huolella, ja se tarjoaa monipuoliset tilat säilytykseen tai harrastuksiin. Kiinteistössä on tehty useita kunnostuksia, jotka takaavat pienen asumisen sekä ylläpidon kustannukset – näin säästät käyttökustannuksissa.

Pörstiläntien varrella elät rauhallisessa ympäristössä, jossa arjen palvelut ovat käden ulottuvilla. Kulkuyhteydet ovat erinomaiset, sillä läheltä löytyy nopeat yhteydet Porin keskustaan sekä muihin lähialueisiin. Alueella on useita kouluja, päiväkoteja ja kauppoja, joten kaikki tarpeellinen on helposti saavutettavissa. Tämä sijainti tarjoaa loistavat mahdollisuudet nauttia niin kaupungin vilinästä kuin rauhallisesta omasta pihapiiristä.

Älä missaa tätä tilaisuutta – tule ja tutustu tähän upeaan kotiin, joka yhdistää tyylikkään asumisen ja erinomaiset tilat vaativiinkin tarpeisiin!

Mikko Helminen

kiinteistönvälittäjä LKV, LVV, KiAT, MBA, partner

0500 538 602

mikko.helminen@bo.fi

Are you interested in this estate?

Contact us or leave a message

Mikko Helminen

Mikko Helminen

kiinteistönvälittäjä LKV, LVV, KiAT, MBA, partner

Building

Year of construction (started)
1985
Year of construction
1985
Building material
Puu
Roof type
Harjakatto
Roofing
Pelti
Condition of the roof
Hyvä
Living area
141,0 m2 (141,0 m2)
Additional information on area
Ilmoitettu asuintilojen pinta-ala on rakennuspiirustusten mukainen huoneistoala 141m2. Rakennuspiirustusten mukainenkerrosala on 155m2. Pinta-aloja ei ole tarkistusmitattu.
Floors
1
Other spaces
0,0 m2
Description of the heating system
Puu, sähkö
Lämmön jakotapa
Sähköpatterilämmitys, uuni/takka
Number of rooms
3mh+oh+rt+k+khh+kph+s+2xwc+Autotalli 200m2
Other kitchen equipment
Astianpesukone, kiinteät valaisimet, liesituuletin / hormi
Stove
Erillisuuni, liesitaso
Kitchen countertop material
Puu
Kitchen floor material
Parketti
Kitchen wall material
Kaakeli, tapetti
Bathroom equipment
Suihkuseinä, lattialämmitys, wc-istuin, suihku, peili, kiinteät valaisimet
Bathroom floor material
Laatta
Bathroom wall material
Kaakeli
Sauna
Asunnossa on sauna
Sauna floor material
Laatta
Sauna wall material
Puu
Toilet description
Erillisiä wc tiloja 1 kpl,toinen kph:n yhteydessä
Varustus: lattialämmitys, lattiakaivo, bidee-suihku
Lukumäärä: 2
Lattiamateriaalit: laatta
Seinämateriaalit: kaakeli
Laundry room
Varustus: pesukoneliitäntä, lattialämmitys, lattiakaivo, lastenhoitopöytä/taso, silityspöytä/taso, pyykkikaapit, pöytätaso
Lattiamateriaalit: laatta
Seinämateriaalit: maalattu
Bedroom description, details, and equipment
Lukumäärä: 3
Lattiamateriaalit: korkki
Seinämateriaalit: tapetti
Living room description, details, and equipment
Lattiamateriaalit: parketti
Seinämateriaalit: tapetti
Fireplace
Varaava takka olohuoneessa
Fireplace details
Takka
Other storage facilities
Vaatehuone, muu erillinen varasto
Tehdyt korjaukset
2024 käyttövesiputkisto uusittu
2021 sauna, kylpyhuone, kodinhoitohuone ja erillinen wc täydellinen saneeraus. Talo ulkomaalaus.
2009 katon uusiminen
Kodinkoneita uusittu ja pintoja päivitetty
Description
Erinomainen autotalli rakennus, omakotitalossa tehdyt remontit, pienet asumiskustannukset, hyvät liikenneyhteydet
Condition
Hyvä
Additional information on the energy certificate
Myyjä vastaa energiatodistuksen hankkimisesta lain velvoittamana.

Property information

Property identification number
609-35-35-6-L1
Type
Omakotitalo
Type of plot
Tasamaatontti
Lot size
2 576,00 m2
Lot ownership
Vuokrattu
Lot lease expires
31.12.2034
Lot rent
447,55 €
Lot renter
Porin kaupunki
Additional information about the plot
Porina, Porin kaupunki
Tie perille
Water supply
Kunnan
Sewer
Kunnan

Housing costs

Property tax
396,16 €
Other payments / additional information on payments
Jäte, vesi yms kulutuksen mukaan. Esitetyt asumiskustannukset perustuvat nykykäyttöön ja voivat siten olla suurempia tai pienempiä riippuen asukasmäärästä, asumistottumuksista ja palveluntarjoajasta.

Price

Total purchase price
245 000,00 €
Selling price
245 000,00 €
Available
Sopimuksen mukaan
Payment terms
Käteinen.
Kartta