Etusivu / Keski-Suomi / Jyväskylä / Metsämiehentie 18

Metsämiehentie 18

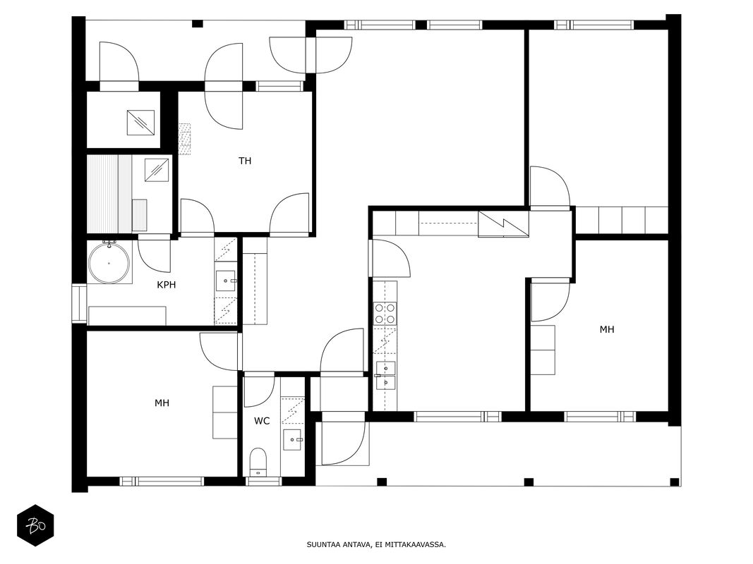
Palokka, Jyväskylä | Omakotitalo | 5h,k,s,kph,erillinen wc

Bo!

Remontoitava talo Palokasta uusille omistajilleen.

Taloon on tehty kattavia kuntoon liittyviä tutkimuksia 12/2024-01/2025 välisenä aikana. Rakenteiden korjauksista on tehty valmiiksi kustannuslaskelmat.

Oma yhteensä 960m2 tontti, joka rajautuu upeaan metsään. Tontti muodostuu kahdesta erillisestä tilasta, jonka pinta-alat ovat 720m2 ja 240m2. Tilat ovat yhdistettävissä yhdeksi tontiksi.

Sijainti on ihanteellinen rauhaa, luontoa ja etenkin lapsiperheiden palveluita arvostavalle. Päiväkoti ja koulu ovat lyhyen kävelymatkan päässä. Touruvuoren upeat ulkoilumaastot lähtevät vierestä. Touruvuoresta löytyy niin luontopolut kuin hiihtoladutkin.

Otathan yhteyttä, niin jutellaan tarkemmin kohteen lisätiedoista!

Are you interested in this estate?

Contact us or leave a message

Antti Saleva

Building

Year of construction (started)
1979
Year of construction
1979
Building material
Tiili
Roof type
Harjakatto
Roofing
Huopakate
Living area
104,3 m2 (104,3 m2)
Additional information on area
Asuintilojen pinta-alana ilmoitettu rakennuspiirustuksen huoneistoala.
Floors
1
Other spaces
0,0 m2
Description of the heating system
öljy
Lämmön jakotapa
Vesikiertoinen patterilämmitys, vesikiertoinen lattialämmitys, sähköinen lattialämmitys
Number of rooms
5h,k,s,kph,erillinen wc
Kitchen description, details, and equipment
Keittiö remontoitu v. 2017.
Other kitchen equipment
Astianpesukone, liesituuletin / hormi
Stove
Keraaminen liesi
Kitchen countertop material
Laminaatti
Kitchen floor material
Vinyyli
Kitchen wall material
Maalattu
Bathroom description, details, and equipment
Kylpyhuoneen yhteydessä kodinhoitotilaa.
Bathroom equipment
Lattialämmitys, suihku, kiinteät valaisimet
Bathroom floor material
Laatta
Bathroom wall material
Kaakeli, puolipaneeli
Sauna
Asunnossa on sauna
Sauna floor material
Laatta
Sauna wall material
Puu
Toilet description
Seinä-wc
Varustus: lattialämmitys, lattiakaivo, bidee-suihku
Lukumäärä: 1
Lattiamateriaalit: laatta
Seinämateriaalit: maalattu
Bedroom description, details, and equipment
Lukumäärä: 3
Lattiamateriaalit: vinyyli
Seinämateriaalit: maalattu
Living room description, details, and equipment
Lattiamateriaalit: vinyyli
Seinämateriaalit: puu
Other spaces
Lisäksi takkahuone, josta kulku takapihalle.
Fireplace
Varaava takka
Other storage facilities
Vaatehuone, ulkovarasto
Tehdyt korjaukset
Nykyisen omistajan tekemät remontit:
Vuonna 2017 uusittu kylpyhuone, sauna, erillinen wc sekä keittiö. Käyttövesiputket uusittu, patteriventtiilit ja termostaatit, olohuoneen ja tuulikaapin patterit uusittu. Remontin yhteydessä vaihdettu painovoimainen ilmanvaihto koneelliseksi poistoilmanvaihdoksi. Lisätty termostaatilla toimivat korvausilmaventtiilit. Sisäkatot maalattu. Takapihan terassi tehty 2018. Julkisivun puuosat huoltomaalattu 2020. Jätekatos tehty ja maalattu 2020. Autotallin saneeraus autokatos/varastotilaksi 2020. Seinäpintoja maalattu 2017-2024 välisenä aikana. Ulko-ovi vaihdettu 2024 ja suihkun hana vaihdettu. 03/2024 takka nuohottu ja iv-kanavat puhdistettu.

Edellisen omistajan tekemät remontit:
-Vinyylilankkulattia asennettu 2016 (alla lautalattia)
-Öljykattila uusittu 2012-2013
-Uusittu takka, parvekeovi ja asennettu ilmalämpöpumppu 2012
-Ikkunoiden vesipellit ja räystään aluslaudoitus uusittu 2009
-Uusittu kattohuopa 1996
Other items included in the sale
Sälekaihtimet, olemassa olevat verhotangot/verhokiskot, ilmalämpöpumppu, matonpuisteluteline, pyykinkuivausteline
Condition
Välttävä
Additional information about the condition
Tarkemmat lisätiedot nähtävillä erillisistä kuntoon liittyvistä tutkimuksista. Tarkastuksessa tullut esille mm. seuraavat remontti/uusimistarpeet: alapohjarakenne, ulkoseinärakenteet vähintään niiltä osin miltä korotusta ei ole tehty, ulkopuolisen kosteudenhallinnan parantaminen.
Energy certificate
Kyllä
Energy class
E2018

Property information

Property identification number
179-401-31-179 ja 179-401-31-252
Block/Property name
Kuukkala ja Lisä-Kuukkala
Type
Tila
Type of plot
Tasamaatontti
Lot size
960,00 m2
Lot ownership
Oma
Mortgage deeds
242 778,66 €
Additional information about the plot
Kaksi erillistä tonttia 720m2 + 240m2.
Tie perille
Water supply
Kunnan
Sewer
Kunnan
Rakennusoikeus, e-luku
0.30

Additional information

Services
S-Market Palokka n. 950m, Palokan kirjasto n. 1,2km, Palokan terveysasema n. 1,2km, Palokan kauppakeskukset n. 2,5km.
School
Palokan yhtenäiskoulu n. 1,3km, Jokelan koulu n. 1,7km.
Daycare
Pappilanvuoren päiväkoti n. 600m, Luhtisen päiväkoti n. 1,2km.
Transportation connections
Jyväskylän paikallisliikenne, lähin pysäkki n. 1km.

Housing costs

Other payments / additional information on payments
Öljynkulutus n. 2000l / vuosi. Öljyn hinta ollut n. 1,30€/l. Vesimaksut ollut n. 110€/kk 5 hlö:n taloudessa. Kiinteistövero v. 2024 345,84€. Jätemaksut palveluntarjoajan hinnaston mukaisesti.

Price

Total purchase price
117 000,00 €
Selling price
117 000,00 €
Available
Sopimuksen mukaan
Kartta