Etusivu / Pohjois-Pohjanmaa / Oulu / Meritullinraitti 1

Meritullinraitti 1

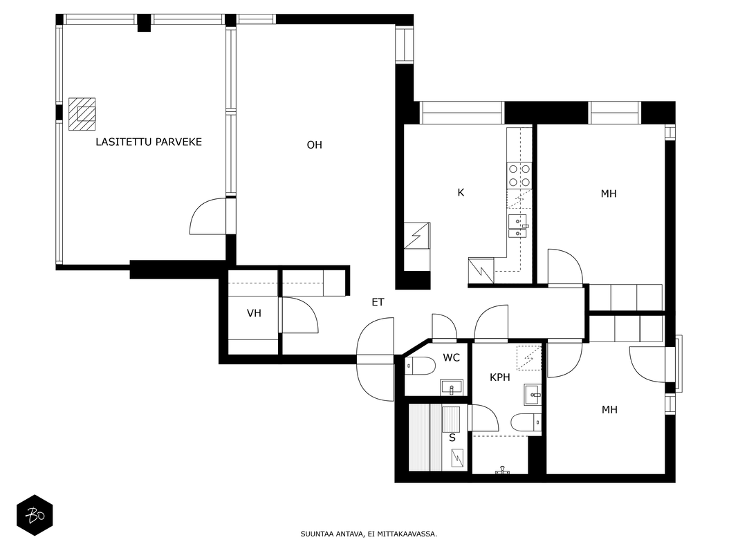
Keskusta, Oulu | Kerrostalo | 3h, k, vh, wc, kph, s, las. parv

Kotoisa ja tilava läpitalon asunto Oulun ydinkeskustassa – avaimet käteen kaupanteossa!

Tervetuloa Meritulliin, aivan Oulun keskustan sykkeeseen! Hissitalon 4. kerroksessa sijaitsee heti vapaa, hyvin suunniteltu ja valoisa koti, joka tarjoaa toimivat puitteet sujuvaan arkeen ja rentouttavaan vapaa-aikaan. Olohuoneesta on kulku isolle lasitetulle eteläparvekkeelle, jossa tunnelmaa ja lämpöä tuo oma parveketakka – täydellinen lisä syysiltojen viihtyisyyteen. Molemmissa makuuhuoneissa on säilytystilaa kaapistojen muodossa, ja toista makuuhuonetta koristaa ranskalainen parveke kauppahallin suuntaan. Eteisestä löytyy lisäksi erillinen vaatehuone, joka tuo kaivattua lisäsäilytystilaa. Kylpyhuone on uusittu vuonna 2022, ja asumismukavuutta lisää asunnon viilentävä ilmalämpöpumppu.

Taloyhtiö on valmistunut vuonna 1999 ja sijaitsee vuokratontilla, jonka vuokra on maksettu etukäteen vuoteen 2058 asti. Esteetön kulku taloon on huomioitu; A-rappuun johtavat myös rollaattoriportaat ja sisäänkäyntialueella on turvakameravalvonta. Autopaikat on järjestetty viereiseen parkkihalliin, jossa yhtiölle on varattuna 30 paikkaa – useita vapaana (tilanne 14.4.2025).

Viihtyisä, valaistu sisäpiha tarjoaa rauhallisen keitaan puineen ja pensaineen keskellä kaupunkia. Alueella on kaikki keskustan palvelut aivan käden ulottuvilla, ja kauppatori sijaitsee kirjaimellisesti tien toisella puolella. Täällä voit todella nauttia kaupunkiasumisesta, kattavista palveluista ja kauniista ulkoilureiteistä – suoraan kotioveltasi.

Esittelyt ja lisätiedot:

Nelli Hänninen

kiinteistönvälittäjä LKV, partner

050 323 2300

nelli.hanninen@bo.fi

Are you interested in this estate?

Contact us or leave a message

Nelli Hänninen

Nelli Hänninen

kiinteistönvälittäjä LKV, partner

Apartment

Shares
2979-3304
Management type
Asunto-osakeyhtiö
Number of rooms
3h, k, vh, wc, kph, s, las. parv
Floor/Floors
4/5
Living area
78,5 m2
Other spaces
0,0 m2
Additional information on area
Yhtiöjärjestyksen mukainen. Isännöitsijäntodistuksen mukainen.
Views
Tilava lasitettu parveke, jossa takka.
Balcony
Lasitettu
Balcony direction
Etelä
Elevator
Taloyhtiössä on hissi
Stove
Sähköliesi
Kitchen floor material
Parketti
Kitchen wall material
Maalattu, osalaatoitus
Bathroom description, details, and equipment
Kylpyhuone remontoitu 2022, samalla uusittu myös saniteettikalusteet.
Pyykinpesukone ja kuivausrumpu sisältyvät kauppaan.
Bathroom equipment
Suihkuseinä, pesukoneliitäntä, lattialämmitys, wc-istuin, suihku, peilikaappi, kiinteät valaisimet
Bathroom floor material
Laatta
Toilet description
Varustus: bidee-suihku
Lukumäärä: 2
Lattiamateriaalit: laatta
Seinämateriaalit: kaakeli
Sauna description, details, and equipment
Kiuas uusittu 2022
Sauna floor material
Laatta
Sauna wall material
Puu
Bedroom description, details, and equipment
Toisen makuuhuoneen yhteydessä ranskalainen parveke kauppahallin suuntaan.
Lukumäärä: 2
Lattiamateriaalit: parketti
Seinämateriaalit: tapetti
Living room description, details, and equipment
Lattiamateriaalit: parketti
Seinämateriaalit: tapetti
Other storage facilities
Muu erillinen varasto
Other items included in the sale
Viilentävä ilmalämpöpumppu, jonka viimeisin huolto tehty 6/2023.
Condition
Hyvä

Property and company information

Company name
Asunto Oy Oulun Hallinranta
Lot ownership
Vuokrattu
Lot size
2 149,00 m2
Lot renter
Oulun kaupunki
Lot lease expires
31.12.2058
Lot rent
0,00 €
Year of construction
1999
Building material
Betoni
Roof type
Pulpettikatto
Roofing
Huopakate
Heating system
Kauko
Completed renovations and improvements
2016 Ilmanvaihtokanavien nuohous
2018 B21, B22 ja liiketilan viemärikorjaus
2018 Märkätilojen (B21 ja B22) saneeraus viemärikorjausten yhteydessä
2022 Märkätilojen (pois lukien A2, A14, B23, B26, B39, B46, B47) saneeraukset
2022 Parvekekaidelevyjen uusiminen ja parvekekattojen sekä niiden sadevesiohjauksien parantaminen
2022 Hissin taajuusmuuntajan uusiminen
2024 Nurmialueiden kunnostus ja pihapuiden kaato
Known upcoming renovations/repairs
2025 Valokatteiden ja parvekkeiden kunnostukset (käynnissä)
2025-2026 Viemärien puhdistukset
2026-2027 Parvekkeiden puuosien, ulko- ja sisäseinien maalaus
2027Lämmönvaihtimen uusiminen
2030 Huopakatteen uusiminen
Loans
513 284,24 €
Property manager
Kiinteistö-Tahkola Oulu Oy
Ilkka Moilanen
p. 0207 480 258
ilkka.moilanen@kiinteistotahkola.fi
Property maintenance
Huoltoyhtiö
Company's premises and facilities
Urheiluvälinevarasto, väestönsuoja, kaapeli-tv, huoneistokohtaiset varastot. Koneellinen poistoilmanvaihto, huippuimuri

Additional information

Additional zoning information
Oulun kaupunki
asemakaavoitus@ouka.fi
p. Kaupungin vaihde 08 558 410
Available
Heti
Other important information
Tontin vuokra on maksettu kertakaikkisena vuokrasopimuksen allekirjoituksen yhteydessä koko vuokrakaudelta 31.12.2058 saakka.

Housing costs

Maintenance charge
368,95 €/kk (4,70 €/m2)
Financing charge
140,18 €/kk (1,79 €/m2)
Total company fee
509,13 €
Water charge basis
Oma mittari
Other payments / additional information on payments
Vesimaksuennakko 16€/ kk/ hlö
Autohallipaikka 29€/kk

Hallituksella on valtuudet periä tai jättää perimättä kahden (2) kuukauden ylimääräinen hoitovastike sekä valtuudet tarkistaa rahoitusvastiketta korkotilanteen mukaan.

Ostaja vastaa omistusoikeuden rekisteröintikustannuksista, mahdollisista osakekirjan mitätöinnistä aiheutuvista kustannuksista sekä mahdollisesta hakemusmaksun korotuksesta. Ostajan pankin ostajalta mahdollisesti veloittamista kaupantekoon, omistusoikeuden rekisteröintiin tai panttausmerkinnän hakemiseen liittyvistä kustannuksista ostaja saa tiedon pankiltaan.

Sähköisen DIAS-kaupan kulusta (96€) vastaa ostaja.

Price

Selling price
258 406,54 € (3 291,80 €/m2)
Apartment's share of the company loan
19 593,46 € (249,60 €/m2)
Total purchase price
278 000,00 € (3 541,40 €/m2)
Payment method
Käteinen.
Kartta