Etusivu / Uusimaa / Helsinki / Puolaharju 11a

Puolaharju 11a

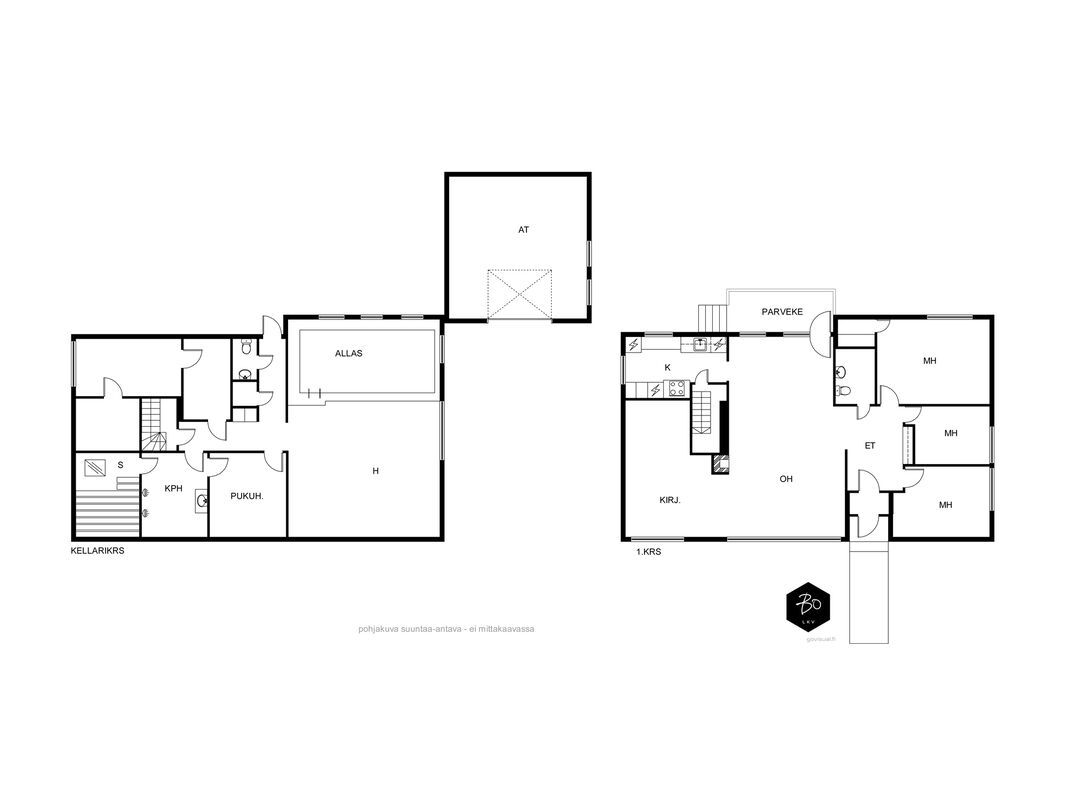
Marjaniemi, Helsinki | Omakotitalo | Oh, k, 3 x mh, 1 mh/kirjasto, uima-allashuone, pk, ps, sauna, khh, v, 2xwc, erillinen autotalli, v.

Ajaton kokonaisuus Puolaharjussa – tilava ja tunnelmallinen koti rauhallisella sijainnilla

Tämä 50–60-luvun arkkitehtuuriin nojaava, kahteen kerrokseen rakentuva omakotitalo tarjoaa harvinaisen yhdistelmän väljyyttä ja toimivuutta. Kokonaisuus on säilyttänyt aikakautensa parhaat piirteet, mutta muokattu ja modernisoitu erinomaisesti nykyajan tarpeisiin.

Kaksikerroksinen koti hurmaa valoisilla ja väljillä tiloillaan: olohuone, ruokailutila ja persoonallinen keittiö muodostavat yhtenäisen, viihtyisän kokonaisuuden, joka on luotu niin arkeen kuin edustukseen. Kolme makuuhuonetta sekä erillinen, muuntuva huone vastaavat monenlaisiin elämäntilanteisiin.

Erityistä tässä kodissa on sen arjen luksus: oma uima-allasosasto, tilavat sauna- ja pesutilat, kodinhoitohuone ja kaksi erillistä WC:tä tuovat sujuvuutta ja viihtyisyyttä elämään. Poreallas suojaisella terasilla on kuin piste i:n päälle.

Kaikki on käytännöllisesti sijoiteltu, ja tilaratkaisuissa on ajateltu niin arkea kuin tilantarvetta elämän eri vaiheissa.

Talo on kuntotarkastettu 05/2025.

Suojaisa, vehreä piha-alue ympäröi taloa ja tarjoaa sekä yksityisyyttä että mahdollisuuksia yhdessäoloon. Piha on selkeälinjainen ja helppohoitoinen, ja kahden auton autotalli viimeistelee toimivan kokonaisuuden – harvinaisuus Helsingissä.

Marjaniemi on rauhallinen ja arvostettu alue, jossa yhdistyvät luonnonläheisyys ja hyvät yhteydet. Läheltä löytyvät koulut, päiväkodit, ulkoilumaastot ja palvelut. Keskustaan pääsee sujuvasti niin julkisilla kuin omalla autolla.

Tämä koti tarjoaa enemmän kuin hyvät puitteet – se tarjoaa tilaa elämälle.

Virpi Romu

Myyntijohtaja, Ullanlinna | Kiinteistönvälittäjä LKV, partner

040 061 0018 | virpi@bo.fi

Are you interested in this estate?

Contact us or leave a message

Virpi Romu

Virpi Romu

myyntijohtaja Ullanlinna, kiinteistönvälittäjä LKV, partner

Building

Year of construction (started)
1958
Building material
Puu, kivi, muu, betoni
Description of building materials
Maanvaraiset betonianturat ja betoniperusmuurit. Kellarikerroksessa maanvarainen betonilaatta. Ulkoseinärakenteet Siporex-runko.
Julkisivupinnoite rappaus. Väliseinät kiviainesrunkoisia. Välipohjat 1 kerroksen ja kellarikerroksen välipohja betonirakenteinen. Yläpohja puurunkoinen.
Roof type
Pulpetti
Roofing
Bitumihuopakate
Living area
199,0 m2 (229,0 m2)
Additional information on area
Tarkistusmittausrap. Sustera Group 22.5.2025.
Yläkerta huoneistoala 102,14 m2
Alakerta (kaikki tilat yht.) 97,18 m2
Autotalli 30,08 m2

Helsingin epävirallisen rakennus- ja huoneistorekisteriotteen muk. huoneistoala 112 m2 ja kerrosala 110 m2.
Floors
2
Other spaces
30,0 m2
Ventilation system
Painovoimainen, alakerrassa koneellinen poistoilma. Korvausilma venttiilit. Ilmavaihtokartoitus/uusiminen (2023). Tarkemmat tiedot välittäjältä.
Heating
V. 2001
Description of the heating system
Kauko
Number of rooms
Oh, k, 3 x mh, 1 mh/kirjasto, uima-allashuone, pk, ps, sauna, khh, v, 2xwc, erillinen autotalli, v.
Kitchen description, details, and equipment
Keittiö uusittu kokonaan 2010. Kvänum keittiö: jalavakaapistot. Taso Bianco Carrara marmori 20 mm. Laitteet: lnduktiokeittotaso
(Siemens 2024) ja astianpesukone Husqvarna (2021). Höyryuuni (Siemens), mikro-yhdistelmäuuni (Siemens), Jääkaappi-pakastin (Samsung 2021). Korkea kaappi hyllymekanismilla. Liesituuletin. Lattiamateriaali linoleumlaatta (Marmoleum Qlick).
Kitchen wall material
Maalattu, puu
Bathroom description, details, and equipment
Pesuhuone remontoitu kokonaan 2018: 2 suihkua, Durat lavuaari,
vesikiertoinen rättipatteri. Seinät ja lattia laatoitettu. Lattiassa
sähköinen lattialämmitys. Vesiputket, lattiakaivo. Asbestitarkastuksessa
seinissä asbestia, joka poistettu.
Pukuhuone: Laattalattia 1991, maanvastainen seinä laatoitettu (2014),
katto ja seinät paneloitu. Sähkökäyttöinen rättipatteri. Ei lattialämmitystä.
Bathroom floor material
Laatta
Bathroom wall material
Kivi
Sauna
Asunnossa on sauna
Sauna description, details, and equipment
Seinät paneloitu ja lauteet uusittu (2001), Lattia vesieristetty
ja laatoitettu ja lattialämmitys (2017).
Sauna floor material
Laatta
Sauna wall material
Puu
Toilet description
Kaksi erillistä wc:tä.

YK wc: Seinät kivi-laatoitettu, Lattia vesieristetty ja laatoitettu
(2017). Vesikiertoinen lattialämmitys. Svedberg peili ja allas, Ikea
laatikostot ja korkea kaappi (2017). Vesiputket, kraana ja bidee-suihku
(2017)
AK wc: uusittu kokonaan 2017: Laatta lattia, maalattu/kaakeloitu seinät,
pesuallas/-kaappi ja peili, wc-istuin, putket ja lattiakaivo, patteri
(2017). Viemäri (2019).

Lattiamateriaalit: laatta
Seinämateriaalit: kivi, kaakeli, maalattu
Laundry room
Kodinhoitohuone uusittu kauttaaltaan 2018. Lattiat, seinät, katot, kaapit, valaistus, ilmastointi, allas, sähköt.
Vesikiertoinen lattialämmitys.
Varustus: pesukoneliitäntä, pesuallas, lattialämmitys, lattiakaivo, pyykkikaapit
Lattiamateriaalit: laatta
Seinämateriaalit: kaakeli, maalattu
Bedroom description, details, and equipment
3-4 makuuhuonetta. V. 2010 maalattu seinät, katot ja uusittu parketit.
Lattiamateriaalit: parketti
Seinämateriaalit: maalattu
Living room description, details, and equipment
Olohuoneen pinnat uusittu 2010. Seinät maalattu, Katto levytetty, tammiparketti. Sähköt ja tietoliikenneyhteydet uusittu (2010). Antenni TV, Elisan ADSL, Talon sisällä cat6-kaapeli kaikkiin asuinhuoneisiin.
Olohuoneen yksi seinä tiiltä, maalattu.

Lattiamateriaalit: parketti
Seinämateriaalit: maalattu
Other spaces
Uima-allas kellarikerroksessa (vastavirtalaite ei toimi). Koneisto uusittu 2010. Drop palju/poreallas terassilla.
Tuulikaappi, jossa sähköinen lattialämmitys.
Kellarikerroksessa pannuhuone, jossa mm. kaukolämpölaitteet. Autotalli. Roskakatos-varasto.
Fireplace
Avotakka. Nuohous vuosittain
Tehdyt korjaukset
1972 Kellarikerros: mm. viemäröinti, vesijohdot ja sähköt. Uima-allasosasto ja sauna, pesuhuone ja pukuhuone. Lisäksi rakennettiin wc ja "konehuone".
1991 Uima-allas ja koko alakerta laatoitettiin uudestaan.
2001 Sauna uusittiin ja rakennettiin kodinhoitohuone.
2000 Ikkunat. 2001 Kaukolämpö.
2010 Salaojitus ja vedeneritys uusittu, keittiö uusittu, lattiat uusittu ja pintaremontti
2013 Autotalli ja pihan muurin purku, sähköt ja tietoliikenne uusittu
2014 Terassit, Drop palju/poreallas, julkisivumaalaus, roskakatos, autotallin katon maalaus
2015 Alakerran pukuhuoneen seinän laatoitus
2017 Uusittu käyttövesiputket, lämpöpatterit ja -putket, alakerran pesutilat, asbestin poisto, alakerran pintaremonttia, kodinhoitohuoneen remonttia, alakerran sähkötöitä, kaukolämmön osakorjaus, yläkerran wc:n remontointi, alakerran väliovet
2018 Alakerran oven eletroninen lukko ja autotallin nosto-ovi, sivuovi ja pihaovet
2019 Viemäreiden sukitus, uima-altaan huolto, sivupihan muokkaus, Verisure hälytysjärjestelmä
2020 Terassin aidoitus etupiha, katon pesu ja tervaus
2022 Khh vesivahinkokorjaus ja ovi ent. öljyhuoneeseen
2023 Ilmanvaihtoremontti ylä- ja alakerta, ilmalämpöpumppu ja rappusten kunnostus
2024 Aurinkopaneelit
2025 AK maalausta
Yksityiskohtainen liite saatavissa välittäjältä.
Other items included in the sale
Baaritiski ja jakkarat. Pukuhuoneen pöytä ja pukuhuoneen jakkarat. Yläkerran sälekaihtimet.
Uima-allaspeite. llmalämpöpumppu.
Not included in the sale
Pesukone, kuivausrumpu.
Condition
Tyydyttävä
Energy certificate
Kyllä
Energy class
D2018
Additional information on the energy certificate
Voimassa 19.5.2035 asti.

Property information

Property identification number
91-45-31-47
Type
Tontti
Type of plot
Rinnetontti
Lot size
844,00 m2
Lot ownership
Oma
Mortgage deeds
600 000,00 €
Rasitukset ja rasitteet
5 kpl sähköisiä panttikirjoja siirretään lainoittamattomina ostajalle kaupanteossa. Siirtokustannuksista vastaa ostaja.

Rasitteet:
Kulkuyhteyttä varten tarvittava alue.
Jätteiden kokoamispaikan sijoittaminen ja käyttäminen.
Vesijohdon sijoittaminen ja käyttäminen.
Puhelinjohdon sijoittaminen ja käyttäminen.
Sähköjohdon sijoittaminen ja käyttäminen.

Käyttöoikeudet:
Viemärijohdon sijoittaminen ja käyttäminen.
Additional information about the plot
Entinen kiinteistötunnus: 91-45-31-43
Water supply
Kunnan
Sewer
Kunnan
Building rights
211,0 m2
Rakennusoikeus, e-luku
0.25

Additional information

Services
Easton-kauppakeskus, Itäkeskus ja Herttoniemi
School
Sivukoulu (alimmat luokat) alueella
Daycare
Alueella
Transportation connections
Bussi, metro

Housing costs

Property tax
1,00 €
Other payments / additional information on payments
Lämmitys + sähkö n. 650 €/kk (sis. mm. lähes päivittäisen saunomisen, kaikkien pesutilojen, wc-tilojen, tuulikaapin ja kodinhoitohuoneen lattiamärkätilojen lattialämmityksen, uima-altaan lämmityksen ja puhdistuksen).

Vesimaksu n. 20 €/hlö/kk.
Puhtaanapito 450 €/v (jätemaksu 300 €/v, kadut 80 €/v ja nuohous 65 €/v).

Esitetyt sähkön kulutusmäärät/asumiskustannukset perustuvat nykykäyttöön ja voivat siten olla
suurempia tai pienempiä riippuen asukasmäärästä, asumistottumuksista
sekä palveluntarjoajasta.

Varainsiirtovero 3 %.

Price

Total purchase price
690 000,00 €
Selling price
690 000,00 €
Available
Sopimuksen mukaan
Payment terms
Käteinen.
Kartta