Etusivu / Pohjois-Pohjanmaa / Oulu / Tolpparinne 11

Tolpparinne 11

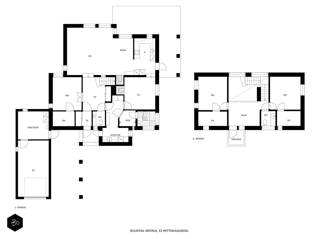
Haukipudas, Oulu | Omakotitalo | 5h, k, kph, 2eril. wc, khh, ph, s, 3vh, aula, at

Valoisa ja toimiva kivitalo rauhallisella ja puistomaisella omalla yli 1500m2 tontilla!

Tämä näyttävä ja huolella pidetty Lammi kivitalo yhdistää arjen toimivuuden ja ylellisen rauhan upealla tavalla. Kodin sydän on avara ja korkeaan tilaan kohoava olohuone, jossa luonnonvalo tulvii sisään suurista ikkunoista. Avokeittiö massiivitammi tasoineen, erillinen takkahuone sekä leivinuuni tuovat arkeen lämpöä ja viihtyisyyttä.

Alakerrasta löytyvät päämakuuhuone, takkahuone jonka voi tarvittaessa muuttaa myös makuuhuoneeksi, kodinhoitohuone, saunaosasto ja käytännölliset säilytystilat - yläkerrassa taas kaksi lisämakuuhuonetta, kylpyhuone, vaatehuoneet ja valoisa aula. Takapihan terassialue avautuu suoraan metsän reunaan, tarjoten täydellisen paikan rentoutumiseen ja ilta-auringosta nauttimiseen.

Talo sijaitsee siis omalla yli 1500 neliön tontilla rauhallisella alueella ja on ollut vain yhden perheen käytössä valmistumisestaan asti. Asuinrakennusta on päivitetty ja huollettu huolellisesti vuosien varrella - muun muassa keittiön kodinkoneet, ilmalämpöpumppu, saunaa ja terassia myöten. Pihapiirissä on myös tilava varasto ja sähköauton latausvalmius. Täällä yhdistyvät estetiikka, toimivuus ja energiatehokkuus sekä automaattinen pörssisähkönoptimointi ohjaa kulutuksen vuorokauden edullisimmalle ajanjaksolle, joten mm. lämmitys kustannukset ovat maltilliset.

Tolppatörmä on viihtyisä ja luonnonläheinen asuinalue Haukiputaalla, jossa metsät, lenkkipolut ja rauhalliset tiet kutsuvat ulkoilemaan. Alue tarjoaa rauhaa ja väljyyttä, mutta palvelut, koulut ja liikenneyhteydet ovat silti kohtuullisen matkan päässä ja täältä ajaa Oulun keskustaan noin 15 minuutissa.

Tämä koti sopii perheelle, joka arvostaa laatua, väljyyttä ja luontoa - sekä sitä tunnetta, kun jokainen neliö on tehty asumista varten.

Tämä koti vapautuu uusille omistajille Joukuussa 2025, joten täällä pääsee uusi omistaja nauttimaan joulusta. Järjestämme tänne vain esittelyjä pyynnöstä, joten ole nopea ja varaa esittelyaikasi jo tänään!

Lisätiedot ja esittely varaukset:

Jussi Suopanki | 040 019 5529 | jussi@bo.fi | Instagram @jussisuopanki

* * * * * * * * * *

Harkitsetko oman asuntosi myyntiä? Pyydä minut arviokäynnille niin kerron samalla lisää tämänhetkisestä asuntomarkkinatilanteesta, palveluistani ja Bo:n loistavasta välityskonseptista sekä miten asunnonvaihdon suhteen kannattaa edetä. Olen saanut Bo Best -tunnustuksen vuonna 2023. Tunnustus myönnetään vuosittain poikkeuksellisen upeaa myynnillistä työtä tehneille Bo:n huippuvälittäjille. Ota siis yhteyttä minuun, autan mielelläni!

Are you interested in this estate?

Contact us or leave a message

Jussi Suopanki

Building

Year of construction (started)
2006
Year of construction
2007
Building material
Puu, betoni
Roof type
Harjakatto
Roofing
Pelti
Living area
169,5 m2
Additional information on area
Asuinpinta-alana rakennuspiirustusten mukainen huoneistoala. Asuintilat yläkerta 56m2, alakerta 113,5 m2. Rakennuspiirustusten mukaan AT + tekninen tila 33,5 m2
Floors
2
Other spaces
0,0 m2
Description of the heating system
Sähkö, ilmalämpöpumppu
Lämmön jakotapa
Sähköinen lattialämmitys, uuni/takka, ilmalämpöpumppu
Number of rooms
5h, k, kph, 2eril. wc, khh, ph, s, 3vh, aula, at
Other kitchen equipment
Mikroaaltouuni, astianpesukone, kiinteät valaisimet, liesituuletin / hormi
Stove
Leivinuuni, induktioliesi, erillisuuni
Kitchen floor material
Laatta
Kitchen wall material
Kaakeli, maalattu
Bathroom equipment
Lattialämmitys, suihku, kiinteät valaisimet
Bathroom floor material
Laatta
Bathroom wall material
Kaakeli
Sauna
Asunnossa on sauna
Sauna floor material
Laatta
Sauna wall material
Puu
Toilet description
Varustus: lattialämmitys, bidee-suihku
Lukumäärä: 2
Lattiamateriaalit: laatta
Seinämateriaalit: kaakeli
Laundry room
Varustus: pesukoneliitäntä, lattialämmitys
Lattiamateriaalit: laatta
Seinämateriaalit: kaakeli
Bedroom description, details, and equipment
Lukumäärä: 3
Lattiamateriaalit: parketti
Seinämateriaalit: maalattu, tapetti
Living room description, details, and equipment
Lattiamateriaalit: parketti
Seinämateriaalit: maalattu, muu
Fireplace
Leivinuuni
Fireplace details
Takka, muu
Other storage facilities
Vaatehuone, ulkovarasto
Tehdyt korjaukset
Tulisijojen hormien nuohous vuosittain, IV suodattimien vaihto vuosittain ja imurointi 2-3 kertaa vuodessa. Sadevesirännien puhdistus 2 kertaa vuodessa, viimeisin 7/2025.

2025 Jalkalistojen uusinta, sisäseinien huolto/korjausmaalauksia tarpeen mukaan, katon huoltopesu/sammalten poisto

2024 Ilmalämpöpumpun uusinta tammikuu, induktio liesi ja erillisuuni uusittu, pörssisähköoptimoinnin lisäys ohjaamaan lattialämmityksen, käyttöveden ja latauksen ajoitusta vuorokauden edullisimmille tunneille, kodinhoitohuoneen ja molempien WC: en ovien uusinta

2023 Valokuituyhteys asennettu, kiuaskivet uusittu

2022-2023 Astianpesukone uusittu
2022 Sähköliittymä päivitetty 3x35A pääsulakkeelle sähköauton hankinnan yhteydessä. Samalla lisätty latausliityntä sähköautolle.

2020 palju/poreamme, terassin ulkovalaistuksen lisäykset ja osittain uusimiset

2019 Terassin laajennus
2018-2019 Kiuas uusittu
2017-2018 Ilmanvaihtokanavien nuohous
2015-2016 Pihavarasto rakennettu, ulkomaalaus (kolmas kerta rakentamisen jälkeen)

2015 Takkahuoneen takkaseinän rouhepinnoitus ja muiden seinien uudelleen maalaus, makuuhuoneen tehosteseinän pinnoitus, takapihan terassikiveys 2015
Condition
Hyvä
Energy certificate
Kyllä
Energy class
C2018
Additional information on the energy certificate
Voimassa 21.08.2035

Property information

Property identification number
564-410-2-264
Type
Tontti
Type of plot
Rinnetontti
Lot size
0,15 ha
Lot ownership
Oma
Mortgage deeds
300 000,00 €
Additional information about the plot
Tie perille
Water supply
Kunnan
Sewer
Kunnan
Building rights
300,0 m2
Additional information about building rights
Rakennuspaikalle rakennettavien rakennusten yhteenlaskettu kerrosala saa olla enintään 10 prosenttia rakennuspaikan pinta-alasta, kuitenkin enintään 1000 kem2. Asuntokäyttöön haetulle rakennuspaikalle saa rakentaa yhden enintään kaksikerroksisen
asuinrakennuksen, johon saa sijoittaa enintään kaksi asuntoa tai samaan pihapiiriin kaksi erillistä
enintään kaksikerroksista asuinrakennusta, joihin kumpaankin saa sijoittaa enintään yhden
asunnon. Rakennuspaikalle rakennettavien asuntojen kerrosala saa olla enintään 300 kem2. Asuinrakennusten lisäksi rakennuspaikalle saa rakentaa asumiseen liittyviä talousrakennuksia.

Rakennuslupa kiinteistölle on myönnetty 2006, jolloin on noudatettu eri rakennusjärjestystä ja siinä olevaa rakennusoikeutta. Tällä hetkellä noudatetaan vuoden 2017 rakennusjärjestystä, josta ylläoleva teksti on otettu.

Housing costs

Property tax
661,19 €
Other payments / additional information on payments
Käyttö- ja lämmityssähkön vuosikulutus n. 20 000 kWh / vuosi. (2024).

Automaattinen pörssisähkönoptimointi ohjaa kulutuksen vuorokauden edullisimmalle ajanjaksolle. Myyjän ilmoituksen mukaan toteutunut ostosähkön hinta (2025) 4,4c/kWh + siirto.

Tiemaksu, joka toinen vuosi 350 €. (Yksityinen tie)

Price

Total purchase price
359 000,00 €
Selling price
359 000,00 €
Available
Sopimuksen mukaan
Payment terms
Käteinen.
Kartta