Etusivu / Pohjois-Savo / Kuopio / Tapionkatu 5-9

Tapionkatu 5-9

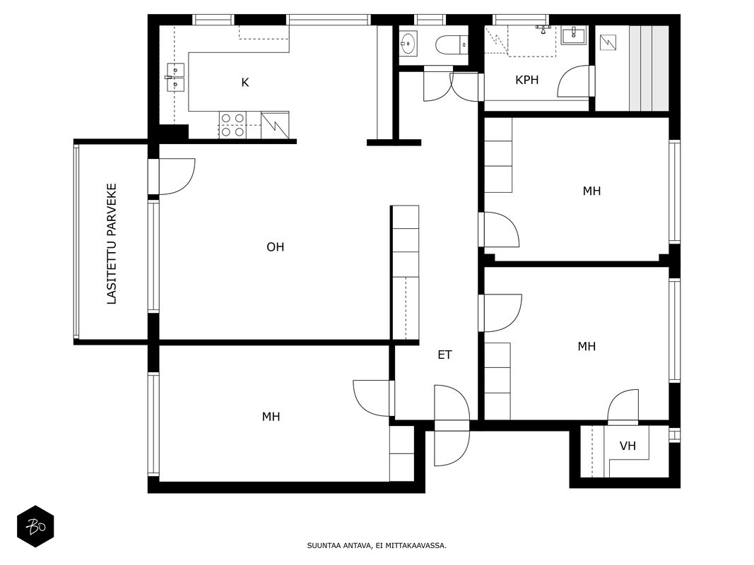
Männistö, Kuopio | Kerrostalo | 4h,k,s

Perheasunto hyvällä sijainnilla

Tähän 3. kerroksen kotiin ajelet mukavasti hissillä.

Tässä kodissa on kaikkea mitä voit kerrostaloasunnolta toivoa, riittävästi tilaa, lasitettu parveke ja oma sauna. Kodin kolme makuuhuonetta on sijoiteltu mukavasti niin, että jokaisella perheenjäsenellä on oma rauhansa. Lisähinnasta myydään myös lämmin autotalli.

Kodin olohuone ja keittiö muodostavat toimivan kokonaisuuden, jonka yhdistää ruokailutila. Tässä sopii koko perhe syömään ja seurustelemaan samaan aikaan. Olohuoneesta on kulku kodin lasitetulle parvekkeelle, josta on vehreät ja mukavat maisemat. Kotia on remontoitu laajemmin v. 2011, jolloin kaikki laminaattilattiat on uusittu ja keittiö remontoitu.

Kylpyhuone ja saunaosasto ovat siistissä kunnossa ja ne on tänä vuonna syväpuhdistettu ja silikonisaumat uusittu. Kylpyhuoneessa on paikka pesukoneelle tai vaikkapa pesutornille. Oma sauna on mukavan kokoinen, ja kiuas on uusittu v. 2011. Kodissa on yksi erillinen WC. Säilytystilaa on erinomaisen paljon niin kaapistojen kuin vaatehuoneen ansiosta.

Taloyhtiössä on suoritettu isoja remontteja lähivuosina, kuten v. 2024 vesikattoremontti, sekä v. 2020 LVI -saneeraus. Käyttövesiputket on uusittu. Lähivuosina ei ole suunnitteilla merkittäviä korjaustarpeita.

Autotalli omalla osakekirjallaan myydään lisähinnasta 20 000 euroa. Autotalli on 19,5 m2 kokoinen, lämmin talli ja siinä on sähköinen nosto-ovi kaukosäätimellä.

Sijaintina Tapionkatu on mukava, rauhallisessa Männistön alkupäässä asustelet keskustan liepeillä edullisesti, mutta palvelujen äärellä. Myös kuopiolaisille rakas Kallavesi on aivan nurkan takana.

Onko tässä teidän uusi koti? Soita niin sovitaan teille sopiva yksityisesittelyaika.

Roope Puurunen

roope@bo.fi

050 554 4542

Kiinteistönvälittäjä, LKV, LVV, partner

Are you interested in this estate?

Contact us or leave a message

Roope Puurunen

Roope Puurunen

kiinteistönvälittäjä LKV, LVV, partner

Apartment

Shares
25027-25978
Management type
Asunto-osakeyhtiö
Number of rooms
4h,k,s
Floor/Floors
3/5
Living area
96,5 m2
Other spaces
0,0 m2
Additional information on area
Yhtiöjärjestyksen mukainen.
Balcony
Lasitettu
Balcony direction
Etelä
Elevator
Taloyhtiössä on hissi
Stove
Keraaminen liesi, sähköliesi
Kitchen countertop material
Laminaatti
Kitchen floor material
Laminaatti
Kitchen wall material
Maalattu, osalaatoitus
Bathroom equipment
Suihku
Bathroom floor material
Laatta
Bathroom wall material
Kaakeli
Toilet description
Lukumäärä: 1
Lattiamateriaalit: laatta
Sauna description, details, and equipment
Kiukaassa etäohjaus, käynnistys pesuhuoneen ulkopuolelta.
Sauna floor material
Laatta
Sauna wall material
Puu
Bedroom description, details, and equipment
Lukumäärä: 3
Lattiamateriaalit: laminaatti
Seinämateriaalit: maalattu
Living room description, details, and equipment
Lattiamateriaalit: laminaatti
Seinämateriaalit: maalattu
Apartment renovations
2025 Kylpyhuone syväpuhdistettu, kaikki silikonisaumat uusittu
2019 Lattialistat kaikki uusittu
2011 Laminaattilattiat uusittu, seiniä maalattu, keittiö remontoitu, kodinkoneet uusittu. (Liesi, liesituuletin, astianpesukone, kylmäkoneet), saunan kiuas uusittu
Condition
Ei luokiteltu

Property and company information

Company name
Asunto Oy Kuopion Tapionkatu 5-9
Lot ownership
Vuokrattu
Lot size
4 280,70 m2
Lot renter
Kuopion kaupunki
Lot lease expires
01.01.2032
Lot rent
9 800,00 €
Year of construction
1975
Building material
Tiili, betoni
Roof type
Tasakatto
Roofing
Bitumikermi
Heating system
Kauko
Energy certificate
Kyllä
Energy class
E2018
Completed renovations and improvements
2024 Vesikaton bitumihuovan vaihto, pohjan oikaisu, kattoturvavarusteet
2024 Lämpimien autotallien ovet nosto-oviksi
2022 Lämmönsäätö
2021 Poistoilmakoneiden uusiminen ja korvausilmaventtiilien lisääminen huoneistoihin sekä ilmakanavien puhdistus ja
ilmamääriensäätö
2020 LVI korjaus
2020 Lämmönsiirrin uusittu, sähköpääkeskukset, valaistus
2020 Tonttiliittymät, viemäri-, tulovesi- ja hulevesiliittymät sekä sadevesiviemäröinti uusittu
2020 Porraskäytävien maalaus
2020 Saunojen saneeraus
2020 Pesutuvan saneeraus
2014 Yhtiön rakennuksen julkisivujen ja parvekkeiden kunnostus ja maalaus / pinnoitus
2014 Rakennuksen julkisivun puoleisten metallisten ulko-ovien uusiminen
2012 Hissien saneeraukset kokonaisuudessaan
2008 Uusittu yhtiön rakennukset ikkunat, parvekeovet
2008 Puupintaiset ovet uusittu
2004 Rakennettu kevytrakenteiset autotallit
2003 Sisäänkäyntien päälle rakennettu lipat
2002 Autolämmityspisteet uusittu
1999 Rakennettu toinen kylmäkellari kokonaan
1991 Rakennuksen katto pinnoitettu
Known upcoming renovations/repairs
Ei merkittäviä korjaustarpeita
Garages
8
Loans
442 365,85 €
Mortgages
1 620 000,00 €
Property manager
Oiva Isännöinti Kuopio Oy, Antti Korhonen, puh. 050 449 3194, antti.korhonen@oi.fi
Property maintenance
Huoltoyhtiö
Company's premises and facilities
Sauna, talopesula, kuivaushuone, urheiluvälinevarasto, väestönsuoja, kaapeli-tv, huoneistokohtaiset varastot.

Additional information

Available
Heti

Housing costs

Maintenance charge
386,00 €/kk (4,00 €/m2)
Financing charge
279,85 €/kk (2,90 €/m2)
Total company fee
665,85 €
Water charge basis
Oma mittari
Parking space
13,00 €/kk
Sauna
10,00 €
Other payments / additional information on payments
Autopaikkavuokra 13,00 €/kk, autotallivuokra 15 €/kk. Autotallin hoitovastike 1,33 €/m2.

Taloyhtiön osakeluettelo on siirretty huoneistotietojärjestelmään. Ostajan tulee hakea omistusoikeuden rekisteröintiä Maanmittauslaitokselta. Ostaja vastaa tällöin omistusoikeuden rekisteröintikustannuksista, mahdollisista osakekirjan mitätöinnistä aiheutuvista kustannuksista sekä mahdollisesta hakemusmaksun korotuksesta. Ostajan pankin ostajalta mahdollisesti veloittamista kaupantekoon, omistusoikeuden rekisteröintiin tai panttausmerkinnän hakemiseen liittyvistä kustannuksista ostaja saa tiedon pankiltaan.

Price

Selling price
119 345,12 € (1 236,74 €/m2)
Apartment's share of the company loan
29 654,88 € (307,30 €/m2)
Total purchase price
149 000,00 € (1 544,04 €/m2)
Payment method
Käteinen.
Kartta