Etusivu / Uusimaa / Espoo / Mirjankuja 2

Mirjankuja 2

Matinkylä, Espoo | Kerrostalo | 2h+k/rt+kph+wc+vh+p (yj 4 h+k)

Avaruus on arjen luksusta, jota moni toivoo kotiinsa.

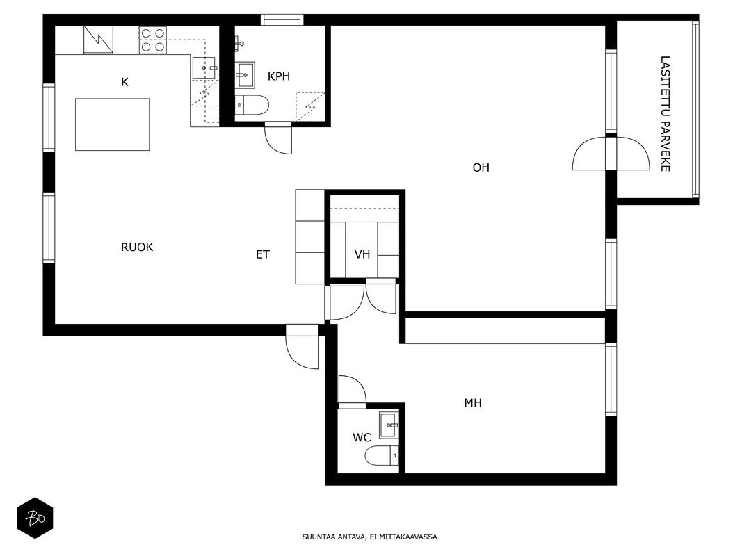
Ylimmän kerroksen 95,5 m2 huoneisto on todella mielenkiintoinen mahdollisuus monelle!

Tämä koti avautuu heti vaikutuksen tekemällä, kun näkee ison, kiiltävän keittiön, ison saarekkeen ja tilavan ruokailutilan, jonka lattia on shakkiruutuinen. Tilaan mahtuu suurempikin ruokailupöytä nautinnollisiin hetkiin. Suuren olohuoneen seinällä on vaikuttava sisustuskivi ja valaistus lisää viihtyvyyttä! Olohuoneen jatkeena on lasitettu eteläparveke.

Makuuhuoneen vieressä vaatehuone ja lisäksi säilytystilat makuuhuoneessa ovat todella hyvät: koko seinän levyinen kaapisto. Erillinen WC löytyy makuuhuoneen yhteydestä. Ikkunallisessa kylpyhuoneessa on toinen wc, suihku ja hyvin tilaa pyykkihuollolle.

Sijainti on loistava, sillä kaikki Matinkylän monipuoliset palvelut ovat lähellä. Metro, kauppakeskus ja upea merenranta ovat lyhyen kävelymatkan päässä.

Hyvän välitystavan mukaisesti, toimitan yhtiön asiakirjat vasta esittelyn jälkeen tarjousta harkitseville.

Jari Kettinen

Kiinteistönvälittäjä, LKV, LVV, KiLAT, YEAT, Partner

jari@bo.fi

0400411559

Harkitsetko sinäkin oman asuntosi myyntiä?

Kutsu minut maksuttomalle arviokäynnille. Saat minulta perustellun hinta-arvion asunnostasi sekä tietoa tämänhetkisestä asuntomarkkinatilanteesta.

Kerron sinulle myös Bo:n menestyksekkäästä konseptista tehdä asuntokauppaa.

Soita tai lähetä viesti, niin kerron lisää!

Are you interested in this estate?

Contact us or leave a message

Jari Kettinen

Jari Kettinen

kiinteistönvälittäjä LKV, LVV, KiLAT, YEAT, partner

Apartment

Shares
1070-1371
Management type
Asunto-osakeyhtiö
Number of rooms
2h+k/rt+kph+wc+vh+p (yj 4 h+k)
Floor/Floors
3/3
Living area
95,5 m2
Other spaces
0,0 m2
Additional information on area
Toimeksiantajan ilmoittama. Isännöitsijäntodistuksen mukainen. Yhtiöjärjestyksen mukainen.
Balcony
Lasitettu
Stove
Keraaminen liesi
Kitchen countertop material
Laminaatti
Kitchen floor material
Laminaatti
Kitchen wall material
Kaakeli, maalattu
Bathroom equipment
Pesukoneliitäntä, wc-istuin, suihku, peili, kylpyhuonekaapisto
Bathroom floor material
Laatta
Bathroom wall material
Kaakeli
Toilet description
Lukumäärä: 1
Lattiamateriaalit: muovi
Seinämateriaalit: maalattu
Bedroom description, details, and equipment
Lukumäärä: 1
Lattiamateriaalit: laminaatti
Seinämateriaalit: maalattu
Living room description, details, and equipment
Osassa seiniä sisustuskivilevy
Lattiamateriaalit: laminaatti
Seinämateriaalit: maalattu, muu
Other items included in the sale
Sälekaihtimet keittiössä, pimennysverhot makuuhuoneessa
ja olohuoneessa, valkokangas ja videotykki. Kylpyhuoneen
kaapisto.
Apartment renovations
2012 Keittiöremontti Vähäisiä muutoksia: pyykkikoneen paikalle uusi
tavallinen keittiön kaappi. Pyykkikone sijoitetaan
kylppäriin. Ei muutoksia putkiin yms.
vesieristyksiin. Suorittaja: Rakennus KAR-Oy
2012 Kylpyhuoneremontti Vain vähäisiä muutoksia. Ei märkätilamuutoksia.
Vaihdetaan kylpyhuoneen peili ja peilivalaisimet.
Suorittaja: Rakennus KAR
2012 Lattioiden kunnostus Puretaan vanha lattia uuden makuuhuoneen
kohdalta. Asennetaan uusi laminaatti
makuuhuoneeseen. Listoja. Suorittaja: Rakennus
KAR Oy
2012 Seinien muutos Erotetaan aiemmasta yksiöpohjasta makuuhuone.
Tätä varten rakennetaan uuttaa seinää n. 5m.
Makuuhuonetta varten uusi ovi. Makuuhuoneen
seinälle asennetaan vaatekaapisto. Maalipintojen
uusimista. Vaatehuoneen oven paikkaa siirretään.
Eteiseen tehdään vaatekaappi, jonka
kummallekin puolelle myös uutta seinää.
Suorittaja: Rakennus KAR Oy
2012 Sähkötyö Uusia valaisimia ja niiden johdatuksia ja
katkaisimia. Muutama uusi sähköpistoke. Osa
vanhoista puretaan. Suorittaja: Rakennus-KAR
Oy
Condition
Tyydyttävä

Property and company information

Company name
As. Oy Mirjankuja 2
Lot ownership
Oma
Lot size
4 938,00 m2
Year of construction
1976
Building material
Betoni
Roof type
Tasakatto
Roofing
Kumibitumikate
Heating system
Kauko, muu
Energy certificate
Kyllä
Additional information on the energy certificate
Viimeinen voimassaolopäivä 12.01.2033
Energy class
F2018
Completed renovations and improvements
Saattolämmitys Valmis/2024
Kaikkien parvekkeiden uusiminen ja parvekelasitukset Valmis/2024
Vesi-, viemäri- ja lämmitysjärjestelmien kuntotutkimus Valmis/2023
Tiilijulkisivujen puhdistus ja paikallisten halkeamien paikkakorjaus Valmis/2022
Julkisivujen elementtisaumojen uusiminen Valmis/2022
CD- ja EF-talojen kuivaushuoneiden puhaltimien uusiminen Valmis/2022
Kylmäkellareiden kuntotarkastus Valmis/2021
Kylpyhuoneiden ja vesikalusteiden kuntotarkastus Valmis/2021
Taloyhtiön autopaikkojen latausselvitys Valmis/2021
Ilmanvaihtojärjestelmien puhdistus ja säätö Valmis/2021
Vesikatteiden uusiminen Valmis/2020
Pihakeinujen uusiminen, 2 kpl Valmis/2019
Jäte- ja sadeveden piha- ja pohjaviemäreiden puhdistus Valmis/2019
Vesi-, viemäri- ja lämmitysjärjestelmien kuntotutkimus Valmis/2018
Koodilukkojen asennus porrashuoneiden ulko-oviin Valmis/2017
Tonttivesijohdon uusiminen Valmis/2016
Lämmönvaihtimen uusiminen ja siirto taloyhtiöön Valmis/2014
Lämmitysjärjestelmän perussäätö Valmis/2014
Kaukolämmön mittauskeskuksen siirto taloyhtiöön Valmis/2014
Kaukovalvonnan uusiminen (Ouman) Valmis/2014
Liittyminen kaapelitelevisioverkkoon (DNA) Valmis/2014
Saunaosastojen kiukaiden uusiminen Valmis/2013
C-, E- ja F-portaiden IV-kojeiden uusiminen Valmis/2012
Tiilipäätyjen peittävä korjaus (Stonel) Valmis/2010
Ikkunoiden ja parvekeovien uusiminen (puu-alumiini, ei porrash Valmis/2010
D-portaan IV-kojeen uusiminen Valmis/2010
A- ja B-portaiden IV-kojeiden uusiminen Valmis/2009
Huoneistojen ulko–ovien hionta ja lakkaus (36 kpl) Valmis/2006
Patteriventtiilien uusiminen ja lämmitysverkoston tasapainotus Valmis/2005
Porrashuoneiden maalaus ja lattioiden uusinta (6 kpl) Valmis/2005
Jätekatoksen rakentaminen Valmis/2003
Parvekkeiden, maalattujen julkisivujen ja sokkeleiden peruskorjaus Valmis/2000
AB-, CD- ja EF-talojen saunojen löylyhuoneiden lattioiden sekä pesuhuoneiden peruskunnostus Valmis/1998
Autopaikoitusalueen sähköistyksen uusiminen Valmis/1997
Antenniverkoston kunnostus Valmis/1997
Lukituksen uusiminen (Abloy Exec) Valmis/1996
Kaikkien talojen alapohjien peruskunnostus Valmis/1988
Known upcoming renovations/repairs
Kunnossapidon periaateohjelma vuodelle 2025
- Jäte- ja sadeveden piha- ja pohjaviemäreiden puhdistus
- Lukituksen uusiminen
- Leikkipaikan turvatarkastus
Kunnossapidon periaateohjelma vuosille 2026 – 2029
-Vesijohtojen uusimisen ja viemäreiden kunnostuksen/uusimisen hankesuunnittelu
- Ilmanvaihtojärjestelmien puhdistus ja säätö
- Poistoilmaventtiilien uusiminen, noin 111 kpl
- Ikkunoiden korvausilmaventtiilien suodattimien vaihto, noin 135 kpl
- Vesijohtojen uusimisen ja viemäreiden kunnostuksen/uusimisen toteutussuunnittelu
- Patteriventtiilien uusiminen ja lämmitysverkoston säätö
- Sähköpääkeskusten peruskunnostus 3 kpl
- Löylyhuoneiden peruskunnostus 3 kpl
- Lisäksi yhteishankkeena Mirjankujan paikoitusalueen peruskorjaaminen, 29 ap
Kunnossapidon periaateohjelma vuosille 2030 – 2034
- Vesijohtojen uusiminen ja viemäreiden kunnostus tai uusiminen sekä muut mahdolliset kunnostustyöt
- Lämmönvaihtimen uusiminen
- Kylpyhuoneiden peruskorjaus, 11 kpl
- Kylpyhuoneiden peruskorjaus, 10 kpl
- Ilmanvaihtojärjestelmien puhdistus ja säätö
- Ikkunoiden korvausilmaventtiilien suodattimien vaihto, noin 135 kpl
- Pitkien tiilijulkisivujen uusiminen
- Jäte- ja sadeveden piha- ja pohjaviemäreiden puhdistus
Electric charging spots
20
Outdoor parking spaces
9
Loans
843 348,25 €
Mortgages
1 992 800,00 €
Property manager
Matinkylän Huolto Oy
Gräsantörmä 2
02200 Espoo
+3589804631
Isännöitsijä Lasse Erjamo lasse.erjamo@matinkylanhuolto.fi
Property maintenance
Huoltoyhtiö
Company's premises and facilities
Sauna, jäähdytetty kellari, urheiluvälinevarasto, väestönsuoja. yhteiset tilat: huoneistokohtaiset irtaimistovarastot, saunaosasto 3 kpl, wc-tilat 3 kpl,
kylmäkellarit 3 kpl, väestönsuoja, pyöräkellarit 3 kpl, leikkipiha, jätehuone

Additional information

Additional zoning information
Espoon kaupunki www.kartat.espoo-->kaavoitus
Available
Sopimuksen mukaan

Housing costs

Maintenance charge
582,55 €/kk (6,10 €/m2)
Financing charge
283,88 €/kk (2,97 €/m2)
Total company fee
866,43 €
Water
23,00 €/hlö/kk
Parking space
8,00 €/kk
Other payments / additional information on payments
-Yhtiökokous 27.5.2025:
Päätettiin antaa hallitukselle valtuudet enintään kahden kuukauden ylimääräisen hoito- ja/tai rahoitusvastikkeen perimiselle tai perimättä jättämiselle sekä määrittämään rahoitusvastikkeiden taso korkokannan muuttuessa oleellisesti.
Päätettiin, että lainanlyhennysrahastoa kartutetaan enintään tilikauden aikana suoritettujen kertasuoritusten, lainanlyhennysten ja osakassuoritusten määrällä.
Päätettiin antaa hallitukselle valtuudet allekirjoittaa uusi lainasopimus parhaaksi katsomansa pankin kanssa taloyhtiöllä olevan Handelsbankenin lainan jäljellä olevasta lainasummasta alkuperäisen maksuohjelman mukaisesti.
Päätettiin antaa hallitukselle valtuudet pantata yhtiön nykyiset panttikirjat tai tarvittaessa hankkia tarvittavat lisäpanttikirjat lainan vakuudeksi.

Ostaja maksaa varainsiirtoveron 1,5 % velattomasta kauppahinnasta.
Kotivakuutus omien sopimusehtojen mukaisesti.
Taloyhtiön osakeluettelo on siirretty huoneistotietojärjestelmään. Ostajan
tulee hakea omistusoikeuden rekisteröintiä Maanmittauslaitokselta kaupan
jälkeen. Ostaja vastaa omistusoikeuden rekisteröintikustannuksista, mahdollisista osakekirjan mitätöinnistä aiheutuvista kustannuksista, sekä mahdollisesta hakemusmaksun korotuksesta. Ostajan pankin ostajalta mahdollisesti veloittamista kaupantekoon, omistusoikeuden rekisteröintiin tai panttausmerkinnän hakemiseen liittyvistä kustannuksista ostaja saa tiedon pankiltaan.

Price

Selling price
195 055,81 € (2 042,47 €/m2)
Apartment's share of the company loan
31 944,19 € (334,49 €/m2)
Total purchase price
227 000,00 € (2 376,96 €/m2)
Payment method
Käteinen.
Kartta