Ullantie 17
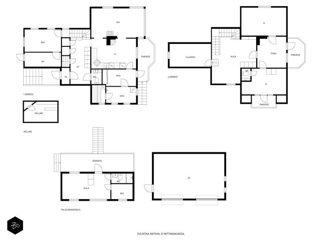
Matari, Vantaa | Omakotitalo | 4-5h+k+rt+pkh+kph+s+2xerill.wc+et+aula+vh+ullakko+kellari+3xp, 102 m2, talousrakennus (2h+kph+at) 85,5 m2
Velaton hinta
Asuinpinta-ala
Kokonaispinta-ala
Rakennusvuosi
Tervetuloa ihastumaan tähän ainutlaatuiseen kokonaisuuteen, joka tarjoaa tilaa useassa kerroksessa!
Tämä kodikas omakotitalo kätkee sisälleen huikean määrän tilaa ja mahdollisuuksia. Talo on alunperin rakennettu vuonna 1928 ja sitä on laajamittaisesti laajennettu ja saneerattu vuosina 1985-1995.
Sisääntulokerroksessa sijaitsevat keittiö, olohuone ja ruokailutila sekä saunaosasto pukuhuoneineen. Eteisen yhteydessä on erillinen wc sekä käynti kellarissa sijaitsevaan oleskelutilaan. Yläkerroksissa sijaitsevat makuuhuoneet, aulatila, työhuone sekä ullakkohuone. Talossa on myös kolme parveketta, joista kaksi on lasitettu. Niissä on mukava viettää aikaa aikaisesta keväästä myöhäiseen syksyyn saakka.
Erillinen talousrakennus soveltuu monenlaiseen käyttöön, kuten työ- tai majoitustilaksi. Talousrakennuksen yläkerrassa on kaksi huonetta sekä kylpyhuone, alakerrassa tilava autotalli. Talon pihalla sijaitsevat grillikota ja kesäkeittiö kutsuvat viettämään kesäiltoja perheen ja ystävien kanssa. Lapsiperheiden iloa lisäävät leikkimökki ja pihasta löytyy myös palju rentoutumiseen. Viherpeukaloille piha tarjoaa rajattomasti mahdollisuuksia.
Kiinteistö sijaitsee vehreällä omakotitaloalueella, joka tarjoaa rauhallista asumista kauniissa ympäristössä. Sijainti on ideaali lapsiperheelle: rauhallinen pientaloalue, jossa on hyvät ulkoilumahdollisuudet ja turvallinen ympäristö lasten leikkeihin. Palvelut, kuten koulut, päiväkodit ja kaupat, ovat lyhyen matkan päästä, mikä tekee arjesta sujuvaa ja vaivatonta. Tämä koti yhdistää ainutlaatuisella tavalla historiansa ja modernit mukavuudet, tarjoten samalla asukkailleen viihtyisän ja aktiivisen elämäntavan.
Tule tutustumaan tähän upeaan kotiin, joka ihastuttaa kokonaisvaltaisesti sekä tilojensa että ympäristönsä puolesta. Tämä voi olla perheesi unelmien koti!
Sini Virta
kiinteistönvälittäjä LKV, LVV, KED, partner
040 568 3482
sini.virta@bo.fi
Are you interested in this estate?
Contact us or leave a message
Building
Kohteen tarkkaa asuinpinta-alaa/kerrosalaa/kokonaisalaa ei ole saatavilla.
Pinta-aloja ei ole tarkastusmitattu.
Lukumäärä: 2
Lattiamateriaalit: laatta
Seinämateriaalit: puu
Lattiamateriaalit: laminaatti
Seinämateriaalit: maalattu
Seinämateriaalit: maalattu, tapetti
2021 Kylpyhuone ja sauna
2021 Terassi ja kesäkeittiö
2025 Alapohjan kunnostus
Tehdyistä remonteista ei ole saatavilla asiakirjoja.
Property information
Vesijohto ja viemärijohto (kiinteistö rasitettu).
Housing costs
Varainsiirtovero 3 %
Price





























































