Etusivu / Uusimaa / Helsinki / Arcturuksenkatu 33

Arcturuksenkatu 33

Kalasatama, Helsinki | Omakotitalo | Oh, k, 2-3 mh, s, 2 kph, 2 wc, khh, vh, 2 terassia, parveke, at, 2 varasto

Tämä kerrassaan upea townhouse sijaitsee aivan Kalasataman sydämessä. Vuonna 2016 valmistunut Loft-henkinen asunto hurmaa ainutlaatuisilla materiaaleillaan ja sisutuksen yksityiskohdilla. Tämä koti sijaitsee halutulla alueella, jossa koulut ja päiväkodit ovat lähellä ja hyvät liikenneyhteydet takaavat sujuvan arjen. Tämä on kohde, joka täytyy nähdä ja kokea omin silmin paikan päällä, sillä tilojen avaruutta ja arkkitehtonista kokonaisuutta ei millään saa vangittua valokuviin.

Kodin sydän on avara olohuone, joka yhdessä tyylikkään avokeittiön ja ruokailutilan kanssa muodostaa upean kokonaisuuden. Suuret ikkunat tuovat tilaan runsaasti luonnonvaloa. Näkymät olohuoneesta avautuvat omalle aidatulle sisäpihalle, joka kesäisin toimii kuin toisena olohuoneena. Kirsi Valantin suunnittelema avokeittiö, jossa tummanharmaat kaapistot ja musta graniittitaso yhdistyvät kauniisti rouheisiin betoniseiniin, on täydellinen paikka yhteisille ruokahetkille ja seurusteluun. Laadukkaat kodinkoneet ja runsaat laskutilat takaavat, että ruoanlaitto on nautinnollista ja tässä keittiössä viihdytään.

Makuuhuoneet sijaitsevat seuraavassa kerroksessa, tarjoten asukkailleen rauhaa ja yksityisyyttä. Päämakuuhuoneen yhteydessä on vaatehuone, joka lisää asumismukavuutta. Päämakuuhuoneesta on käynti parvekkeelle, josta avautuvat maisemat suojaiselle sisäpihalle. Toisessa makuuhuoneessa on ranskalainen parveke. Mikäli uusi omistaja tarvitsee enemmän makuuhuoneita käyttöönsä, tai vaikkapa rauhallisen työhuoneen lisää, on päämakuuhuone helposti jaettavissa kahdeksi huoneeksi alkuperäisen suunnitelman mukaisesti. Arkielämä on sujuvaa kahdessa asuinkerroksessa.

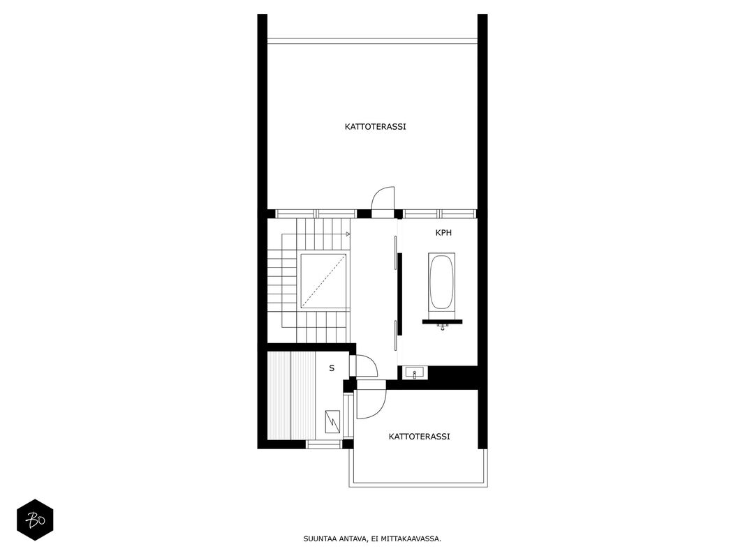
Talon yläkerrassa sijaitseva sauna- ja spa-osasto tarjoaa todellista luksusta arkeen. Täällä voit rentoutua porealtaassa, rentoutua sähkö- tai puukiukaan löylyissä ja sen jälkeen vilvoitella ja viettää vapaahetkiä kattoterassilla. Nämä yläkerran tilat ovat kuin pieni pala kesämökkiä keskellä Helsinkiä. Kattoterassi ja parvekkeet tarjoavat erinomaiset puitteet ulkoilmaelämään ja sosiaalisiin hetkiin perheen ja ystävien kesken.

Upean ja uniikin arkkitehtuurin lisäksi myynnissä oleva talo tarjoaa modernit mukavuudet, kuten vesikiertoisen lattialämmityksen, koneellisen ilmanvaihdon lämmön talteenotolla ja valokuituyhteydet. Myös autoilijaa hemmotellaan täällä toden teolla. Autot saa kätevästi parkkiin oman asunnon alla olevaan kahden auton talliin, josta on suora yhteys taloon sisälle.

Merellinen sijainti, palvelut ja mm. Mustikkamaan läheisyys tekee alueesta erityisen houkuttelevan perheelle tai pariskunnalle, jotka arvostavat kaupunkielämän mukavuuksia, mutta haluavat nopean pääsyn luontoon ja merellisille ulkoilureiteille.

Tervetuloa tutustumaan tähän uniikkiin ja kauniiseen kotiin!

Kysy lisätietoja ja varaa oma esittelyaikasi:

Pekka Kujala, 040 832 8888, pekka@bo.fi

tai

Raya Virtanen, 040 820 7717, raya@bo.fi

ONKO ASUNNON MYYNTI AJANKOHTAISTA?

Varaa minut alla olevan linkin kautta maksuttomalle arviokäynnille:

https://bo.fi/henkilo/pekka-kujala/#kalenteri

https://bo.fi/henkilo/raya-virtanen/#kalenteri

Are you interested in this estate?

Contact us or leave a message

Pekka Kujala

Pekka Kujala

kiinteistönvälittäjä LKV, partner

Building

Year of construction (started)
2015
Year of construction
2016
Building material
Puu, betoni
Description of building materials
Betonirakenteinen talo, ylimmän kerroksen kaksi ulkoseinää sekä katto puurakenteiset.
Rakennus perustettu paalujen varaan.
Roof type
Tasakatto
Roofing
Huopa
Living area
183,0 m2 (227,5 m2)
Additional information on area
Tarkemittauksen (Talokatsastus 11.9.2024) mukaan on asuinpinta-ala yhteensä 183 m2. (1. krs 24 m2, 2.krs 61 m2, 3.krs 68m2, 4. krs 29,5m2) Muut tilat 44,5 m2 (varasto ja autotalli).
Floors
4
Other spaces
44,5 m2
Description of the heating system
Kauko
Lämmön jakotapa
Vesikiertoinen lattialämmitys
Number of rooms
Oh, k, 2-3 mh, s, 2 kph, 2 wc, khh, vh, 2 terassia, parveke, at, 2 varasto
Kitchen description, details, and equipment
Tyylikäs tummanharmaa Kirsi Valantin suunnittelema avokeittiö mustine graniittitasoineen toimii täydellisesti betonipintaisten seinien ja lattioiden kanssa. Suuri saareke on keittiön katseenvangitsija, sen ympärille on mukava kokoontua seurustelemaan ruuanlaiton yhteydessä. Tasokkaiden ja monipuolisten kodinkoneiden ja runsaiden laskupintojen ansiosta työskentely keittiössä on sujuvaa. Keittiön yhteydessä on tilaa reilunkokoiselle ruokapöydälle.
Other kitchen equipment
Mikroaaltouuni, astianpesukone
Stove
Induktioliesi, erillisuuni
Kitchen floor material
Betoni
Bathroom description, details, and equipment
Toinen kylpyhuoneista sijaitsee makuuhuoneiden yhteydessä ja toinen yläkerrassa olevan saunan yhteydessä.

Makuuhuoneiden yhteydessä oleva kylpyhuone on tilava, sen yhteydessä on liukuovella erotettuna iso erillinen wc-tila. Kylpyhuoneen seinät on päällystetty pehmeän sävyisellä mikrobetonilla ja lattia on sävyyn sopivaa keraamista laattaa.

Yläkerrassa saunan yhteydessä on tyylikäs spa-osasto, jossa on suihkun lisäksi myös poreallas.

Spa-osastolta on käynti isolle kattoterassille vilvoittelemaan ja nauttimaan maisemista. Myös täällä seinät on pinnoitettu mikrobetonilla ja lattiassa on väriin sointuvat keraamiset laatat.
Bathroom floor material
Laatta
Sauna
Asunnossa on sauna
Sauna description, details, and equipment
Yläkerran sauna, kylpyhuone laudoitettuine kulkureitteineen ja suurine terasseineen antaa vaikutelman kuin pieni pala kesämökkiä olisi tuotu keskelle Helsinkiä. Tummaksi petsattu sauna on tilava ja se lämpiää hybridikiukaan avulla, eli voit lämmittää saunan joko sähköllä tai puuklapeilla.
Toilet description
Huoneistossa on kaksi erillistä wc:tä. Toinen sijaitsee sisääntulokerroksessa, eteisen yhteydessä ja toinen kolmannessa kerroksessa pääkylpyhuoneen vieressä.
Lukumäärä: 2
Lattiamateriaalit: laatta
Seinämateriaalit: muu
Laundry room
Kodinhoitohuone sijaitsee makuuhuonekerroksessa. Siellä on runsaasti kaappi- ja laskutilaa. Pöytätason alla on tila sekä pesukoneelle että kuivausrummulle.
Varustus: pesukoneliitäntä, lattiakaivo
Lattiamateriaalit: laatta
Seinämateriaalit: kaakeli
Bedroom description, details, and equipment
Makuuhuoneet sijaitsevat oleskelutilojen yläpuolella kolmannessa
kerroksessa. Nykyinen omistaja on käyttänyt makuuhuonetiloja siten, että toisessa makuuhuoneessa on todella suuri päämakuuhuone ja toinen huone toimii tällä hetkellä tilavana työhuoneena. Jos uudella omistajalla on tarvetta kolmelle makuu- tai työhuoneelle, niin suuren päämakuuhuoneen voi helposti jakaa kahdeksi huoneeksi.

Päämakuuhuoneen yhteydessä on vaatehuone sekä parveke ja aivan vieressä kylpyhuone. Toisessa makuuhuoneessa on kaunis ranskalainen parveke.
Lukumäärä: 2
Lattiamateriaalit: betoni
Living room description, details, and equipment
Tilava ja ilmava olohuone sijaitsee samassa kerroksessa keittiön ja ruokailutilan kanssa. Nämä kolme tilaa muodostavat upean ja avaran yhtenäisen tilan. Kokonaisuuden kruunaa isot ikkunat sisäpihalle, jonne käynti tapahtuu suoraan olohuoneesta. Piha-alue muodostaa kesällä jatkeen olohuoneelle, jossa on kiva oleskella ja viettää unohtumattomia ruokailuhetkiä kauniissa kesäilloissa.
Lattiamateriaalit: betoni
Other spaces
Talon ylimmässä kerroksessa on sauna- ja spa-osasto. Saunaosaston eteläisellä puolella on suuri kattoterassi, jossa on hienot ulkotilat. Pohjoisen puolella on lisäksi toinen parveke, jossa on sivuttaisnäkymät merenlahden yli Mustikkamaalle.
Tehdyt korjaukset
Normaaleja kiinteistön ylläpitoon liittyviä korjaus- ja huoltotoimenpiteitä.
Other items included in the sale
Tuloaulan kattovalaisin.
Screen-kaihtimet .
kiinteästi asennetut valaisimet.
Condition
Hyvä
Energy certificate
Kyllä
Energy class
B2018
Additional information on the energy certificate
Rakennuksen laskennallinen energiatehokkuuden vertailuluku (E-luku) 92.

Property information

Property identification number
91-10-590-6-L1
Type
Omakotitalo
Type of plot
Tasamaatontti
Lot size
117,00 m2
Lot ownership
Vuokrattu
Lot lease expires
31.12.2042
Lot rent
7 071,68 €
Lot renter
Helsingin kaupunki
Mortgage deeds
1 116 000,00 €
Rasitukset ja rasitteet
Sähköinen vuokravakuus
Helsingin kaupunki, 16.200€
MML/262191/73/2013
Additional information about the plot
Vuokran tarkastusperuste: elinkustannusindeksi.

Water supply
Kunnan
Sewer
Kunnan
Building rights
175,0 m2
Additional information about building rights
Koko rakennusoikeus on käytetty.

Housing costs

Heating
281,00 €
Waste management
40,47 €
Property tax
663,24 €
Other payments / additional information on payments
Yhteisten alueiden pihanhoitomaksu 49€/kk.
Asumiskulut kuukaudessa 2 hengen taloudella ollut n. 426€/kk, lisäksi vesimaksu ja käyttösähkö kulutuksen mukaan sekä kiinteistövakuutus.
Ostaja maksaa varainsiirtoveron 3% kauppahinnasta.

11 kpl sähköisiä panttikirjoja siirretään ostajalle lainoittamattomina, sähköisten panttikirjojen siirtokustannukset maksaa ostaja.

1 sähköinen panttikirja 16 200 € siirretään ostajan nimiin, mutta jää Helsingin kaupungin haltuun vuokravakuutena.

Price

Total purchase price
1 849 000,00 €
Selling price
1 849 000,00 €
Available
Sopimuksen mukaan
Payment terms
Sopimuksen mukaan
Muu maksuehto
Sopimuksen mukaan
Kartta