Mäntyrinne 29

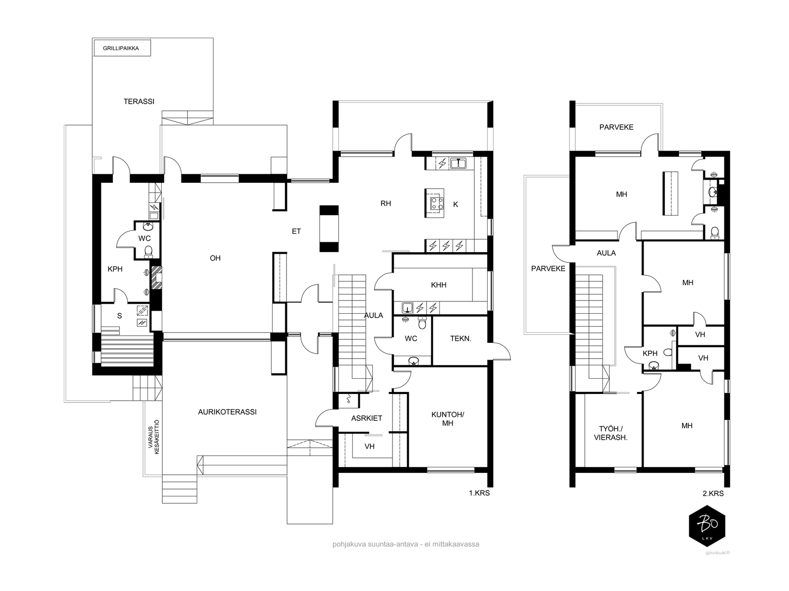
Mäntyrinne, Oulu | Omakotitalo | Alakerta: k/rt, oh,mh,vh,khh,2 wc, kph/s,pukuh. yläkerta:3mh,työh.,aula,wc/kph,2vhyläkerta: 3mh,työh.,aula,wc/kph, 2vh

  • 1 190 000 €

    Velaton hinta

  • 268,0 m2

    Asuinpinta-ala

  • 273,5 m2

    Kokonaispinta-ala

  • 2010

    Rakennusvuosi

Ainutlaatuinen koti Oulujoen varrelta – ajaton mestariteos luonnon sylissä.

Oulujoen rauhallisella ja arvostetulla paikalla sijaitseva, arkkitehti Pave Mikkosen suunnittelema moderni koti edustaa suomalaista huippuarkkitehtuuria parhaimmillaan. Tämä koti on suunniteltu vaativaan makuun – yhdistellen ajattoman estetiikan, laadukkaat materiaalit ja poikkeuksellisen asumismukavuuden.

Kodin suurista ikkunoista avautuu näkymä ympäröivään vanhaan puustoon - vihreys tulee sisälle asti ja yläkerran makuuhuoneessa voi tuntea olonsa kuin puumajassa nukkuisi. Vehreä puistomaisema, tuo luonnon osaksi sisätiloja ympäri vuoden. Valo, tila ja harmonia hallitsevat kokonaisuutta.
Kodissa on runsaasti tilaa isommallekin perheelle, ja huolella suunniteltu pohjaratkaisu tukee sekä edustavaa asumista, että sujuvaa arkea. Terassit talon molemmin puolin tarjoavat mahdollisuuden nauttia auringosta aamusta iltaan täysin omassa rauhassa.

Rakennus henkii suomalaista puutaloperinnettä modernilla, arvokkaalla otteella. Jokainen yksityiskohta on harkittu – tämä koti on rakennettu kestämään aikaa niin teknisesti kuin visuaalisestikin.

Sijainti on rauhallinen ja luonnonläheinen, mutta silti päiväkodit, koulut ja harrastusmahdollisuudet ovat vaivattoman lähellä. Kokonaisuuden kruunaavat kaksi autotallia, jotka vastaavat modernin perheen tarpeisiin.

Keskeiset edut:
•Moderni ja persoonallinen puutalo, arkkitehti Pave Mikkosen suunnittelema
•Suuret ikkunat, upeat näkymät vanhaan puustoon ja Oulujoen maisemiin
•Rauhallinen sijainti, mutta silti lähellä kaupunkia
•Monipuoliset urheilu- ja ulkoilumahdollisuudet aivan vieressä
•Mäntyrinteen päiväkoti sekä koulu- ja harrastusmahdollisuudet lähellä
•Arvostettu, monipuolinen ja tunnelmallinen asuinalue
Tämä koti on todellinen salainen paratiisi mäntyjen keskellä - helmi Oulujoen varrella.
Sovi esittely ja ihastu!

Kiinnostaako tämä kohde?

Ota meihin yhteyttä tai jätä viesti

HUONEISTO

Huoneluku
Alakerta: k/rt, oh,mh,vh,khh,2 wc, kph/s,pukuh. yläkerta:3mh,työh.,aula,wc/kph,2vhyläkerta: 3mh,työh.,aula,wc/kph, 2vh
Kerros
1-2
Kerroksia
2
Asuinpinta-ala
268,0 m²
Muut tilat
5,5 m²
Lisätietoja pinta-alasta
Pinta-alatiedot saatu rak.piirustuksista sekä myyjältä, eikä niitä ole tarkistusmitattu.
Asuinrakennus: ka 305,5 m²(rak.oikeus ka 286 m²
Autotalli: ka 33,5 m²(rak.oikeus 33,5 m²)
Yhteensä 339 m² ja rak.oikeus 319,5 m². Huoneistoala yht. 296 m².
Muut tilat 5,5 m² on tekninen tila.
Keittiön kuvaus, lisätiedot ja varustus
Keittiössä saareke ja aamiaiskaappi. Koneet integroidut. Ruokailutilan yhteydessä myös takka. Kaapistot Puustellin.
Keittiön tasot on kvartsia.
Liesi
Induktio
Keittiön muut varusteet
Liesituuletin, astianpesukone, irralliset saarekkeet, kiinteät valaisimet
Keittiön työtasojen materiaali
Kivi
Keittiön lattiamateriaali
Parketti
Keittiön seinien materiaali
Puu
Pesutilojen kuvaus, lisätiedot ja varustus
Alakerrassa pukuhuoneen yhteydessä myös vesipiste ja jääkaappi. Pukuhuoneesta käynti terassille.
Kylpyhuoneen varustus
Lattialämmitys, wc-istuin, suihku, peilikaappi, kiinteät valaisimet
Kylpyhuoneen lattiamateriaali
Laatta
Kylpyhuoneen seinämateriaali
Kaakeli, puu
WC-tilojen kuvaus
Alakerran wc:ssä laatta/kaakeli/puu
yläkerran wc:ssä suihku, lattiat laattaa, yläkerran wc:n puuosat korvattu kvartsilla. Päämakuuhuoneen yhteydessä oma suihku ja erillinen wc.
Lukumäärä: 4
Lattiamateriaalit: laatta
Kodinhoitohuone
Tilava khh jossa paljon säilytystilaa
Varustus: pesukoneliitäntä, lattialämmitys
Lattiamateriaalit: laatta
Seinämateriaalit: maalattu
Sauna
Asunnossa on sauna
Saunan kuvaus, lisätiedot ja varustus
Varaus puukiukaalle
Saunan lattiamateriaali
Laatta
Saunan seinämateriaali
Puu
Makuuhuoneen kuvaus, lisätiedot ja varustus
Yläkerran ison makuuhuoneen yhteydessä pukeutumistila.
Seinämateriaalit: puuta ja lattiat tammiparkettia.
Lukumäärä: 4
Lattiamateriaalit: parketti
Seinämateriaalit: kivi, puu
Oleskelutilojen kuvaus, lisätiedot ja varustus
Olohuoneessa takka. Lattiat tammiparkettia, seinät tiiltä ja osin puuta. Katot puuta. Olohuoneessa ilmalämpöpumppu.
Lattiamateriaalit: parketti
Seinämateriaalit: kivi, puu
Muut säilytystilat
Vaatehuone, ulkovarasto
Muutostyöt huoneistossa
2021 Yläkerran kph amme pois ja lautaosat poistettu, kalusteet/valaistus uusittu. Silikonisaumat vaihdettu.
Alakerran wc:n kalusteet uusittu. 2021 keittiö uusittu kokonaisuudessaan, kalusteet, koneet. Kaikki puupinnat maalattu, valaistukset ja väliovet uusittu.
Terassilaudat uusittu 2021 ja öljytty 2025.
2022 talon ulko-osat huoltomaalattu, IV-kanavat nuohottu ja huollettu 9/2025.
Ilmalämpöpumput asennettu 11/2021 (2 kpl) ja huollettu Kylmäcenterin toimesta 8/2025. Ilmanvaihtokoneita on kaksi, yksi isompi, joka on teknisessä tilassa ja toinen pienempi on saunalla. Isompi uusittu 7/2021. Ilmanvaihtokanavat nuohottu ja koneet huollettu 2025/9 (Lvi-Pitkälä).

Erikoisuutena talossa on LVI-pitkälän rakennusvaiheessa asentama sprinkler- sammutusjärjestelmä.
Kunto
Hyvä
Takkatiedot
Takka

KIINTEISTÖ- JA YHTIÖTIEDOT

Asuinpinta-ala
268,0 m² (273,5 m²)
Kiinteistötunnus
564-24-78-4
Tyyppi
Tontti
Kortteli/Kiinteistön nimi
78
Tontin omistus
Oma
Tontin koko
1 307,00 m²
Tontin tyyppi
Rinnetontti
Tontin kuvaus
Kaunios rinnetontti Oulujoen läheisyydestä.
Tie perille
Panttikirjat
337 895,33 €
Rakennusvuosi (aloitettu)
2009
Käyttöönottovuosi
2010
Rakennusmateriaali
Puu, tiili
Rakennusmateriaalin kuvaus
Puu/tiiloiverhous
Muut rakennukset
Autotalli, Varasto
Autotallissa kaksi puolta, toinen kylmä ja toinen lämmin.
Kattotyyppi
Harjakatto
Kate
Pelti/tiili/huopa
Lämmön jakotapa
Vesikiertoinen lattialämmitys, uuni/takka, ilmalämpöpumppu
Lämmitysjärjestelmän kuvaus
Maalämpö, ilmalämpöpumppu, muu
Ilmanvaihtojärjestelmä
Koneellinen tulo, koneellinen poisto, lämmön talteenotto
Energiatodistus
Kyllä
Lisätietoja energiatodistuksesta
Et-luku 97
voimassaolo 25.8.2035
Energialuokka
B2018
Rajoitukset
Asuin
Vesijohto
Kunnan
Viemäri
Kunnan
Rakennusoikeus
300,0 m²
Lisätietoja rakennusoikeudesta
Asemakaava
Kaavoitus 050 3166 850

MUITA TIETOJA

Kaavoitus
Asemakaava, Yleiskaava
Palvelut
Knuutilankankaan K-Supermarket, Sale.
Koulu
Knuutilankankaan ala-aste, Maikkulan ala-aste ja yläaste, Kastellin lukio.
Liikenneyhteydet
Bussit Kajaanintieltä
Vapautuu
Sopimuksen mukaan

ASUMISKUSTANNUKSET

Muut maksut / lisätietoa maksuista
Sähkönkulutus sis. lämmityksen n. 29.221 kWh/v.
Vesimaksut n. 143 m³/v.
Varainsiirtovero 3% kauppahinnasta.
Kiinteistövero
786,30 €

HINTA

Myyntihinta
1 190 000,00 €
Velaton hinta
1 190 000,00 €
Mäntyrinne 29 - kuva 1 Mäntyrinne 29 - kuva 2 Mäntyrinne 29 - kuva 3 Mäntyrinne 29 - kuva 4 Mäntyrinne 29 - kuva 5 Mäntyrinne 29 - kuva 6 Mäntyrinne 29 - kuva 7 Mäntyrinne 29 - kuva 8 Mäntyrinne 29 - kuva 9 Mäntyrinne 29 - kuva 10 Mäntyrinne 29 - kuva 11 Mäntyrinne 29 - kuva 12 Mäntyrinne 29 - kuva 13 Mäntyrinne 29 - kuva 14 Mäntyrinne 29 - kuva 15 Mäntyrinne 29 - kuva 16 Mäntyrinne 29 - kuva 17 Mäntyrinne 29 - kuva 18 Mäntyrinne 29 - kuva 19 Mäntyrinne 29 - kuva 20 Mäntyrinne 29 - kuva 21 Mäntyrinne 29 - kuva 22 Mäntyrinne 29 - kuva 23 Mäntyrinne 29 - kuva 24 Mäntyrinne 29 - kuva 25 Mäntyrinne 29 - kuva 26 Mäntyrinne 29 - kuva 27 Mäntyrinne 29 - kuva 28 Mäntyrinne 29 - kuva 29 Mäntyrinne 29 - kuva 30 Mäntyrinne 29 - kuva 31 Mäntyrinne 29 - kuva 32 Mäntyrinne 29 - kuva 33 Mäntyrinne 29 - kuva 34 Mäntyrinne 29 - kuva 35 Mäntyrinne 29 - kuva 36 Mäntyrinne 29 - kuva 37 Mäntyrinne 29 - kuva 38 Mäntyrinne 29 - kuva 39 Mäntyrinne 29 - kuva 40 Mäntyrinne 29 - kuva 41 Mäntyrinne 29 - kuva 42 Mäntyrinne 29 - kuva 43 Mäntyrinne 29 - kuva 44 Mäntyrinne 29 - kuva 45 Mäntyrinne 29 - kuva 46 Mäntyrinne 29 - kuva 47 Mäntyrinne 29 - kuva 48 Mäntyrinne 29 - kuva 49 Mäntyrinne 29 - kuva 50 Mäntyrinne 29 - kuva 51 Mäntyrinne 29 - kuva 52 Mäntyrinne 29 - kuva 53 Mäntyrinne 29 - kuva 54 Mäntyrinne 29 - kuva 55 Mäntyrinne 29 - kuva 56 Mäntyrinne 29 - kuva 57 Mäntyrinne 29 - kuva 58 Mäntyrinne 29 - kuva 59 Mäntyrinne 29 - kuva 60 Mäntyrinne 29 - kuva 61 Mäntyrinne 29 - kuva 62