Kantolantie 189

Pohjois-Ii, Ii | Omakotitalo | 8h, k, s, pihasauna, autotalli

  • 90 000 €

    Velaton hinta

  • 316,0 m2

    Asuinpinta-ala

  • 376,0 m2

    Kokonaispinta-ala

  • 1950

    Rakennusvuosi

Myydään upea monien mahdollisuuksien kiinteistö kunnostettavaksi Pohjois-Iissä. Tämä rauhallisella sijainnilla, mutta palveluiden läheisyydessä sijaitseva talo on valmistunut alun perin 50-luvulla ja sitä on myöhemmin laajennettu eri vuosikymmenillä. 2826 neliön tontilla on päärakennuksen lisäksi muun muassa pihasauna, kesäkeittiö ja tilava autotallirakennus. Päärakennukseen on tehty vuonna 2023 kuntotarkastus sekä rakenneavauksia, joiden perusteella koti vaatii alapohjaremontin.

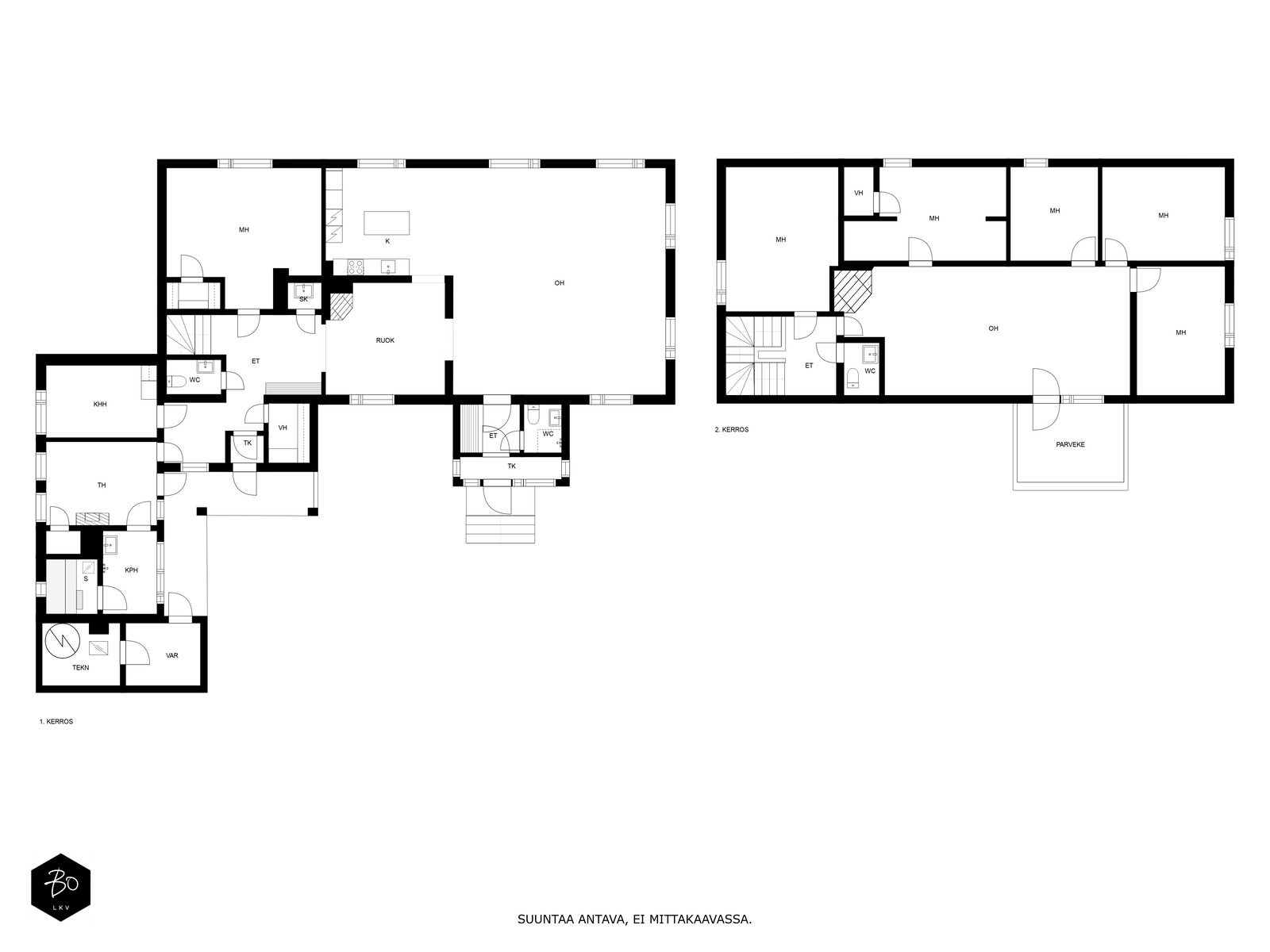
Lämminhenkisen kodin alakerrasta löytyy 2020 remontoitu keittiö ja olohuone, jotka muodostavat ihastuttavan tilan kotona viihtymiseen. Keittiön vierestä löytyy erillinen ruokailutila, jonka käyttötarkoituksen voi jokainen päättää itselleen sopivaksi. Lisäksi alakerrassa on tilava makuuhuone, takkahuone, kodinhoitohuone ja sauna puulämmitteisellä kiukaalla sekä kaksi erillistä wc:tä. Talon loput viisi makuuhuonetta ovat kodin yläkerrassa, jossa on myös isompi oleskelutila.

Talo lämpenee energiatehokkaalla maalämmöllä. Tämän lisäksi talosta löytyy takkaa ja leivinuunia. Talossa on myös uusittu katto vuonna 2022 ja käyttövesi- sekä lämmitysputket vuonna 2018.

Sijainti Pohjois-Iissä Kantolantiellä on todella mainio. Kulkuyhteydet ovat erinomaiset ja kaikki tärkeimmät päivittäiset palvelut löytyvät järkevän matkan päästä. Alueella on myös upeita ulkoilumahdollisuuksia kuten Hiastinhaaran luontopolku ja lintutorni.

Lisätiedot ja esittelyt:

Toni Haapakoski | 040 569 8682 | toni@bo.fi

Kiinnostaako tämä kohde?

Ota meihin yhteyttä tai jätä viesti

HUONEISTO

Hallintamuoto
Oma
Huoneluku
8h, k, s, pihasauna, autotalli
Kerros
1
Kerroksia
2
Asuinpinta-ala
316,0 m²
Muut tilat
60,0 m²
Lisätietoja pinta-alasta
Asuinrakennuksen pinta-ala perustuu 19.4.1989 päivättyihin rakennuslupapiirustuksiin. Pinta-alaa ei ole tarkistusmitattu.
Keittiön kuvaus, lisätiedot ja varustus
Keittiö remontoitu 2020
Liesi
Induktio, puuliesi, erillisuuni
Keittiön muut varusteet
Mikroaaltouuni, astianpesukone, liesituuletin / hormi
Keittiön työtasojen materiaali
Laminaatti
Keittiön lattiamateriaali
Lauta
Keittiön seinien materiaali
Puu, muu, osalaatoitus
Kylpyhuoneen varustus
Suihku
Kylpyhuoneen lattiamateriaali
Laatta
Kylpyhuoneen seinämateriaali
Kaakeli, puu
WC-tilojen kuvaus
Lukumäärä: 3
Lattiamateriaalit: muovi
Seinämateriaalit: puu, muu, puolipaneeli
Kodinhoitohuone
Varustus: pesukoneliitäntä, pesuallas, pyykkikaapit
Lattiamateriaalit: lauta
Seinämateriaalit: maalattu
Sauna
Asunnossa on sauna
Saunan lattiamateriaali
Laatta
Saunan seinämateriaali
Puu
Makuuhuoneen kuvaus, lisätiedot ja varustus
Lukumäärä: 6
Lattiamateriaalit: muovi, lauta
Seinämateriaalit: maalattu, tapetti, puolipaneeli
Oleskelutilojen kuvaus, lisätiedot ja varustus
Lattiamateriaalit: lauta
Seinämateriaalit: tapetti, muu
Muut säilytystilat
Ulkovarasto
Muutostyöt huoneistossa
2022 Katto, 2018 käyttövesi- ja lämmitysputket, 2010 kunnallinen viemäri, 2010 asennettu maalämpö
Kunto
Ei luokiteltu
Lisätietoa kunnosta
Kuntotarkastusraportti/ Talotuki Oy
Takkatiedot
Takka

KIINTEISTÖ- JA YHTIÖTIEDOT

Asuinpinta-ala
316,0 m² (376,0 m²)
Kiinteistötunnus
139-403-24-44
Tyyppi
Tila
Tontin omistus
Oma
Tontin koko
0,28 ha
Tontin tyyppi
Tasamaatontti
Tontin kuvaus
Tie perille
Panttikirjat
200 846,98 €
Rakennusvuosi (aloitettu)
1950
Käyttöönottovuosi
1950
Rakennusmateriaali
Puu, tiili, hirsi
Muut rakennukset
Saunarakennus, Autotalli, Leikkimökki, Puuliiteri, Varasto
kesäkeittiö.

Piharakennukselle ei ole rakennuslupaa.
Kattotyyppi
Harjakatto
Kate
Peltikate
Katon kunto
Hyvä
Lämmön jakotapa
Vesikiertoinen patterilämmitys
Lämmitysjärjestelmän kuvaus
Maalämpö
Ilmanvaihtojärjestelmä
Painovoimainen
Energiatodistus
Kyllä
Energialuokka
B2018
Vesijohto
Kunnan
Viemäri
Kunnan, umpisäiliö

MUITA TIETOJA

Kaavoitus
Yleiskaava
Vapautuu
Sopimuksen mukaan
Lisätietoja
Piharakennuksien pinta-alatietoja ja loppukatselmuspöytäkirjoja ei ole saatavilla. Asuinrakennuksen loppukatselmuspöytäkirjoja ei ole saatavilla.

ASUMISKUSTANNUKSET

Muut maksut / lisätietoa maksuista
Sähkön kokonaiskulutusarvio 21 000 kWh/ vuosi.
Kiinteistövero
454,00 €

HINTA

Myyntihinta
90 000,00 €
Velaton hinta
90 000,00 €
Kantolantie 189 - kuva 1 Kantolantie 189 - kuva 2 Kantolantie 189 - kuva 3 Kantolantie 189 - kuva 4 Kantolantie 189 - kuva 5 Kantolantie 189 - kuva 6 Kantolantie 189 - kuva 7 Kantolantie 189 - kuva 8 Kantolantie 189 - kuva 9 Kantolantie 189 - kuva 10 Kantolantie 189 - kuva 11 Kantolantie 189 - kuva 12 Kantolantie 189 - kuva 13 Kantolantie 189 - kuva 14 Kantolantie 189 - kuva 15 Kantolantie 189 - kuva 16 Kantolantie 189 - kuva 17 Kantolantie 189 - kuva 18 Kantolantie 189 - kuva 19 Kantolantie 189 - kuva 20 Kantolantie 189 - kuva 21 Kantolantie 189 - kuva 22 Kantolantie 189 - kuva 23 Kantolantie 189 - kuva 24 Kantolantie 189 - kuva 25 Kantolantie 189 - kuva 26 Kantolantie 189 - kuva 27 Kantolantie 189 - kuva 28 Kantolantie 189 - kuva 29 Kantolantie 189 - kuva 30 Kantolantie 189 - kuva 31 Kantolantie 189 - kuva 32 Kantolantie 189 - kuva 33 Kantolantie 189 - kuva 34 Kantolantie 189 - kuva 35 Kantolantie 189 - kuva 36 Kantolantie 189 - kuva 37 Kantolantie 189 - kuva 38 Kantolantie 189 - kuva 39 Kantolantie 189 - kuva 40 Kantolantie 189 - kuva 41 Kantolantie 189 - kuva 42 Kantolantie 189 - kuva 43 Kantolantie 189 - kuva 44 Kantolantie 189 - kuva 45 Kantolantie 189 - kuva 46 Kantolantie 189 - kuva 47 Kantolantie 189 - kuva 48 Kantolantie 189 - kuva 49 Kantolantie 189 - kuva 50 Kantolantie 189 - kuva 51 Kantolantie 189 - kuva 52 Kantolantie 189 - kuva 53 Kantolantie 189 - kuva 54 Kantolantie 189 - kuva 55 Kantolantie 189 - kuva 56 Kantolantie 189 - kuva 57 Kantolantie 189 - kuva 58 Kantolantie 189 - kuva 59 Kantolantie 189 - kuva 60 Kantolantie 189 - kuva 61 Kantolantie 189 - kuva 62 Kantolantie 189 - kuva 63 Kantolantie 189 - kuva 64 Kantolantie 189 - kuva 65 Kantolantie 189 - kuva 66 Kantolantie 189 - kuva 67 Kantolantie 189 - kuva 68 Kantolantie 189 - kuva 69 Kantolantie 189 - kuva 70 Kantolantie 189 - kuva 71 Kantolantie 189 - kuva 72 Kantolantie 189 - kuva 73 Kantolantie 189 - kuva 74 Kantolantie 189 - kuva 75 Kantolantie 189 - kuva 76