Puustellinraitti 14

Puustellinmetsä, Tuusula | Omakotitalo | 5h, avokeittiö, 2x kph, s, 2x erill. wc, khh, vh, arkieteinen, ruokakomero, autotalli, lämmin varasto

  • 719 000 €

    Velaton hinta

  • 175,0 m2

    Asuinpinta-ala

  • 198,0 m2

    Kokonaispinta-ala

  • 2022

    Rakennusvuosi

Seuraava esittely: 3.5.2026 klo 13:00-13:40

Nyt myynnissä moderni, korkeatasoinen omakotitalo Tuusulan Puustellinmetsässä – koti, jossa yhdistyvät avarat, valoa tulvivat tilat sekä modernin asumisen mukavuudet.

Katsothan ensiesittelyn ilmoittautumisohjeet esittelyn lisätiedoista, kiitos.

Asunnon sisätilat on suunniteltu huolella yhdistämään käytännöllisyys ja esteettisyys. Korkea, avara olohuone kylpee luonnonvalossa ja sen lämpimät sisustussävyt luovat rauhallisen ja kodikkaan ilmapiirin. Skandinaavinen tyyli korostuu talon materiaalivalinnoissa, jotka heijastelevat pohjoismaista eleganssia ja harmoniaa – puupinnat tuovat tilaan juuri sen lämmön, joka tekee kodista kodin.

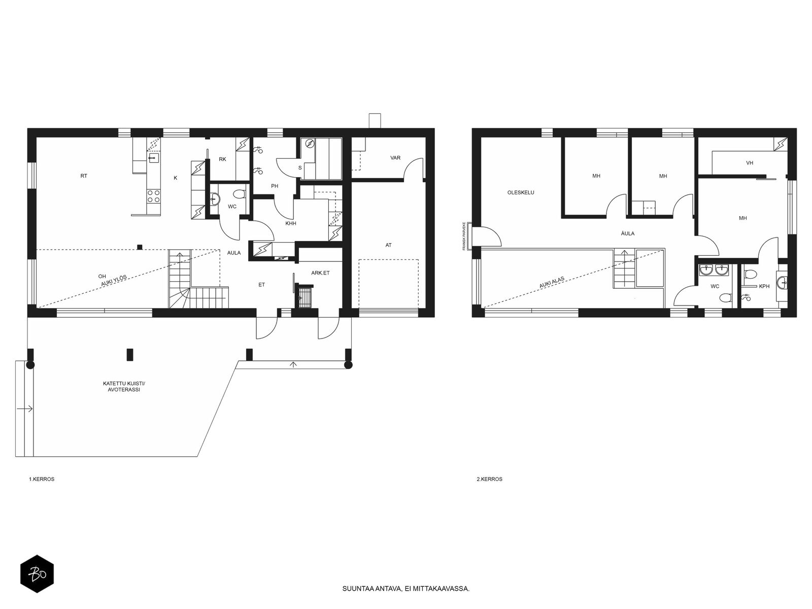
Avoin keittiö, massiivinen saareke sekä keittiön jatkeena sijaitseva ruokakomero tekevät ruoanlaitosta ja tarjoilusta sujuvaa ja mielekästä. Keittiö yhdistyy saumattomasti ruokailutilaan, johon mahtuu suurempikin ruokailuryhmä. Kodissa on mahdollisuus nauttia arjen luksuksesta, kuten päämakuuhuoneen kokolattiamatosta, tilavasta walk-in closetista ja omasta kylpyhuoneesta. Asunnossa on kolme tilavaa makuuhuonetta sekä yläkerran oleskelutila, johon voit luoda tv-tilan tai muuntaa sen helposti makuuhuoneeksi tai työtilaksi. Kolme wc:tä ja kaksi kylpyhuonetta tekevät kodista täydellisen valinnan suuremmallekin perheelle. Aputilat, kuten ruokakomero, kodinhoitohuone ja arkieteinen, tekevät arjesta sujuvaa ja vaivatonta.
Kiinteistön piha-alue tarjoaa upeita puitteita vapaa-ajan viettoon. Suuri terassi kutsuu viettämään aikaa ulkoilmassa ja moderni, viihtyisä oleskelualue on ihanteellinen niin rentoutumiseen kuin juhliin. Tontti on oma. Maalämpö pitää asumiskustannukset alhaisina vesikiertoisen lattialämmityksen tarjotessa miellyttävän lämpötilan ja askeltuntuman kaikkina vuodenaikoina. Kokonaisuuden viimeistelee lämmin autotalli ja varasto, jotka tarjoavat lisää säilytystilaa ja käytännöllisyyttä.

Tuusulan alue on täydellinen valinta lapsiperheelle: turvalliset ja laadukkaat leikkipaikat, päiväkodit ja koulut ovat vain kivenheiton päässä, ja lähialueen monipuoliset ulkoilumahdollisuudet tarjoavat ihanteelliset puitteet aktiiviselle arjelle. Alue tarjoaa myös hyvät palvelut ja erinomaiset liikenneyhteydet, joten kaikki arjen tarpeet ovat helposti saavutettavissa. Tämä kokonaisuus on suunniteltu vaativammankin perheen toiveisiin ja tarpeisiin.

Tule ihastumaan – tämä kohde on nähtävä paikan päällä!

Myynti ja esittelyt:
Niko Karhu | kiinteistönvälittäjä LKV, partner | 040 500 2789 | niko.karhu@bo.fi

Kiinnostaako tämä kohde?

Ota meihin yhteyttä tai jätä viesti

HUONEISTO

Huoneluku
5h, avokeittiö, 2x kph, s, 2x erill. wc, khh, vh, arkieteinen, ruokakomero, autotalli, lämmin varasto
Kerros
1-2
Kerroksia
2
Asuinpinta-ala
175,0 m²
Muut tilat
23,0 m²
Lisätietoja pinta-alasta
N. 25 m² katettu terassi ja n. 29 m² avoterassi, autotalli ja lämmin varasto n. 23 m². Ilmoitetut muut tilat: (at 17,1 m² ja varasto 5,7 m²).
Ilmoitetut neliöt perustuvat rakennuslupapiirustuksiin. Huoneistoala 175 m² jakautuu seuraavasti: 1.krs. 93,5 m² ja 2.krs 81,5 m². Rakennuslupapiirustusten mukaan kerrosala asuinrakennus yht. 193 m², kerrosala sis. at ja varasto 222 m². Tuusulan kunnan rakennus- ja huoneistorekisteriotteen (epävirallinen) mukaan huoneistoala 175 m² ja kerrosala 222 m².
Keittiön kuvaus, lisätiedot ja varustus
Noblessa keittiöt.
Hana: Oras Optima.
Liesi
Induktio, erillisuuni
Keittiön muut varusteet
Mikroaaltouuni, astianpesukone, liesituuletin / suodatin
Keittiön työtasojen materiaali
Laminaatti
Keittiön lattiamateriaali
Vinyyli
Keittiön seinien materiaali
Maalattu
Pesutilojen kuvaus, lisätiedot ja varustus
Omakotitalossa 2x kph, yksi alakerrassa ja yksi yläkerrassa.
Kylpyhuoneissa Unidrain lattiakaivo.
Kylpyhuoneen varustus
Suihkuseinä, lattialämmitys, wc-istuin, suihku, peili, kiinteät valaisimet, kylpyhuonekaapisto
Kylpyhuoneen lattiamateriaali
Laatta
Kylpyhuoneen seinämateriaali
Kaakeli
WC-tilojen kuvaus
Molempien wc katot maalattu.
Molemmissa wc tiloissa peili ja allaskaappi.
Yläkerran wc:ssä 2 allasta ja 2 hanaa.
WC:iden hanat ovat Gustavsberg Atlantic.
Varustus: bidee-suihku
Lukumäärä: 2
Lattiamateriaalit: laatta
Seinämateriaalit: maalattu
Kodinhoitohuone
Katto maalattu, khh kalusteet noblessa.
Varustus: pesukoneliitäntä, lattialämmitys, lattiakaivo, pyykkikaapit, pöytätaso
Lattiamateriaalit: laatta
Seinämateriaalit: maalattu
Sauna
Asunnossa on sauna
Saunan lattiamateriaali
Laatta
Saunan seinämateriaali
Puu
Makuuhuoneen kuvaus, lisätiedot ja varustus
Päämakuuhuoneessa lattia: kokolattiamatto, kahdessa muussa makuuhuoneessa lattiat vinyyli.
Päämakuuhuoneen yhteydessä vaatehuone / walk in -closet ja kylpyhuone / en-suite bathroom. En-suite hana ja bidee ovat Gustavsberg Epic.
Lukumäärä: 3
Lattiamateriaalit: muu, vinyyli
Seinämateriaalit: maalattu
Oleskelutilojen kuvaus, lisätiedot ja varustus
Lattiamateriaalit: vinyyli
Seinämateriaalit: maalattu
Muut huonetilat
Arkieteinen: lattiat laatta, seinät maalattu. arkieteisessä lattiakaivo / kurasyöppö ja suihku. Arkieteinen kaapisto: MirrorLine.

Yläkerran käytävän jatkeena oleskelutila, joka on mahdollista muuntaa lisähuoneeksi. Oleskelutilan lattiat vinyyliä, seinät maalattu ja katot maalattu. Oleskelutilassa ranskalainen parveke.

Keittiön jatkeena ruokakomero, jossa kalusteet Noblessa kalusteet (avohyllyt, kaapistot, laatikostit), lattiat vinyyli, seinät maalattu, katto maalattu.

Vaatehuone päämakuuhuoneen yhteydessä, jossa lattiat kokolattiamatto, seinät maalattu, katto maalattu. Vaatehuoneessa höyrykaappi (LG Styler) ja Ikean vaatesäilytysratkaisut.

Kodinhoitohuone, jossa lattiat laatta, seinät maalattu ja katto maalattu. Kodinhoitohuoneessa Noblessan kalusteet, sekä MirrorLine peililiukuovella, jonka takana Ikean säilytysratkaisu.
Muut säilytystilat
Ulkovarasto
Muuta kauppaan kuuluvaa
Portaat Grado Kide.

Pihalla löytyy marjapensaita 4kpl ja kirsikkapuita 3kpl.

Zaptec sähköauton etäohjattava latauslaite 11kW. 

Jätepiste ja jäteastiat sekajae ja biojäte.
Kunto
Hyvä

KIINTEISTÖ- JA YHTIÖTIEDOT

Asuinpinta-ala
175,0 m² (198,0 m²)
Kiinteistötunnus
858-15-5703-2
Tyyppi
Omakotitalo
Tontin omistus
Oma
Tontin koko
575,00 m²
Tontin tyyppi
Tasamaatontti
Tontin kuvaus
Pihalla on tilaa kolmelle autolle. Pihakivi: Rudus Luotokivi
Tie perille
Panttikirjat
700 000,00 €
Rakennusvuosi (aloitettu)
2021
Käyttöönottovuosi
2022
Rakennusmateriaali
Puu
Muut rakennukset
Autotalli, Varasto
Autotalli/varasto on kytkettynä rakennukseen (kerrosala 29 m²). Autotallin lämmitysmuoto: maalämpö.
Kattotyyppi
Pulpetti
Kate
Pelti
Lämmön jakotapa
Vesikiertoinen lattialämmitys
Lämmitysjärjestelmän kuvaus
Maalämpö, ilmalämpöpumppu
Ilmanvaihtojärjestelmä
Ilmalämpöpumppu
Energiatodistus
Kyllä
Lisätietoja energiatodistuksesta
Voimassa 12.8.2032 asti.
Energialuokka
A2018
Vesijohto
Kunnan
Viemäri
Kunnan
Rakennusoikeus
240,0 m²
Lisätietoja rakennusoikeudesta
N. 222 kem² käytetty
175m² huoneistoala.

MUITA TIETOJA

Kaavoitus
Asemakaava
Vapautuu
3 kk kaupanteosta

ASUMISKUSTANNUKSET

Muut maksut / lisätietoa maksuista
Käyttösähkö sisältää sekä kulutuksen että lämmityksen
12 700 kwh / v. 2025.

Jätemaksut ja tyhjennysväli omien sopimusten mukaan, pl. biojäte joka tyhjennetään joka toinen viikko.

Esitetyt asumiskustannukset perustuvat nykykäyttöön ja voivat siten olla suurempia tai pienempiä riippuen asukasmäärästä, asumistottumuksista sekä palveluntarjoajasta.

Yksi sähköinen panttikirja, siirretään ostajalle lainoittamattomana, sähköisen panttikirjan siirtokuluista vastaa ostaja.
Vesi ja jätevesi
75 €
Kiinteistövero
986,00 €
Puhtaanapito
25 €

HINTA

Myyntihinta
719 000,00 €
Velaton hinta
719 000,00 €
Puustellinraitti 14 - kuva 1 Puustellinraitti 14 - kuva 2 Puustellinraitti 14 - kuva 3 Puustellinraitti 14 - kuva 4 Puustellinraitti 14 - kuva 5 Puustellinraitti 14 - kuva 6 Puustellinraitti 14 - kuva 7 Puustellinraitti 14 - kuva 8 Puustellinraitti 14 - kuva 9 Puustellinraitti 14 - kuva 10 Puustellinraitti 14 - kuva 11 Puustellinraitti 14 - kuva 12 Puustellinraitti 14 - kuva 13 Puustellinraitti 14 - kuva 14 Puustellinraitti 14 - kuva 15 Puustellinraitti 14 - kuva 16 Puustellinraitti 14 - kuva 17 Puustellinraitti 14 - kuva 18 Puustellinraitti 14 - kuva 19 Puustellinraitti 14 - kuva 20 Puustellinraitti 14 - kuva 21 Puustellinraitti 14 - kuva 22 Puustellinraitti 14 - kuva 23 Puustellinraitti 14 - kuva 24 Puustellinraitti 14 - kuva 25 Puustellinraitti 14 - kuva 26 Puustellinraitti 14 - kuva 27 Puustellinraitti 14 - kuva 28 Puustellinraitti 14 - kuva 29 Puustellinraitti 14 - kuva 30 Puustellinraitti 14 - kuva 31 Puustellinraitti 14 - kuva 32 Puustellinraitti 14 - kuva 33 Puustellinraitti 14 - kuva 34 Puustellinraitti 14 - kuva 35 Puustellinraitti 14 - kuva 36 Puustellinraitti 14 - kuva 37 Puustellinraitti 14 - kuva 38 Puustellinraitti 14 - kuva 39 Puustellinraitti 14 - kuva 40 Puustellinraitti 14 - kuva 41 Puustellinraitti 14 - kuva 42