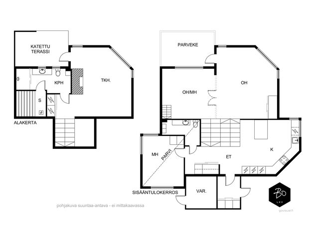
Etusivu / Uusimaa / Kauniainen / Yhtiöntie 21 1 / 1 Yhtiöntie 21 2.kaupunginosa, Kauniainen | Erillistalo | 2-3h+k+th+kph+s+wc+parvi+piha (yj. 3h+k+vh+wc) 498 000 € Velaton hinta 100,0 m2 Asuinpinta-ala 114,3 m2 Kokonaispinta-ala 1988 Rakennusvuosi Hurmaavan persoonallinen koti Kauniaisista.Kodikas, mielenkiintoinen ja muunneltavissa oleva pohja on tämän kodin sielu. Mielenkiintoisen pohjasta tekee sen monitasoisuus sekä yksityiskohdat; olohuoneen korkea tila, vino katto, tilojen muokattavuus eri kerroksissa ja tätä myöden käytännöllisyys erilaisiin tarpeisiin. Kaiken keskiössä on avara kahden tason kokonaisuus, jossa on olohuoneen, keittiön ja ruokailutilan muodostama oleskelualue. Kaunis Topi-keittiö palvelee arjessa hienosti toiminnallisuutensa sekä kaappi- ja laskutilan takia. Keittiö on remontoitu vuonna 2023 ja tällöin uusittiin myös kaikki kodinkoneet. Keittiön niemeke toimii hyvin työtasona sekä arkiruokailuun sopivana, mutta niemekkeen tilalle voi tarvittaessa laittaa myös ruokailuryhmän. Ylätason olohuone on tällä hetkellä yhtenäinen avara tila, mutta alkuperäisessä pohjapiirustuksessa tila on osoitettu mahdolliseksi jakaa makuuhuoneen ja olohuoneen kesken. Olohuoneesta on pääsy parvelle, joka toimii tällä hetkellä varastotilana, mutta olisi oivallinen myös lapsen leikeille. Parvelle valoa tuo kattoikkuna. Sisääntulokerroksessa on lisäksi yksi makuuhuone, erillinen wc sekä eteinen. Alakerrassa on takkahuone, joka toimii nykyisillä omistajilla makuuhuonekäytössä. Takkahuoneen yhteydessä on vuonna 2022 remontoitu kaunis kylpyhuone sekä sauna. Takkahuoneesta on käynti takapihalle. Tässä kodissa on mahdollisuuksia hyvin eri kokoisten perheiden tarpeisiin, koska makuuhuoneita saa tarpeen vaatiessa kolme. Asunto Oy Yhtiöntie 21 muodostuu kolmesta erillistalosta. Asumiskustannukset ovat hyvin maltilliset ja yhtiötä hoidetaan asukaslähtöisesti. Yhtiössä on poikkeava vastuunjako tarkoittaen, että jokainen vastaa omasta rakennuksestaan. Erillistalo C:n tehtyjä suurempia remontteja on mm. vuonna 2022 tehty kattoremontti, jossa uusittiin kattotiilet, kattoikkuna sekä vedenohjaus, vuonna 2022 tehty kylpyhuoneen remontti sekä vuonna 2023 tehty keittiöremontti. Erillistalo C:lla on aidattu ja suojaisa piha-alue, jossa on istutuksia, nurmialuetta sekä vuonna 2024 uusittu terassi. Huoneistolle kuuluu kaksi autopaikkaa. Sijainti Kauniaisissa on mitä parhain, koska Kauniaisten palvelut ovat lähellä. Kauniaisten kauppakeskukselle on matkaa noin 900m ja juna-asemalle noin 1,1km. Päiväkoteja ja kouluja löytyy useampia ja julkinen liikenne tavoittaa hyvin eri suuntiin kulkevia. Haluatko rauhallisen asuinympäristön, mutta läheltä palveluita? Tervetuloa tutustumaan. Olethan yhteydessä välittäjään ja sovitaan yksityisestä esittelystä. Myynti ja tiedustelut:Mari Rautio LKV, LVV, KiAT, Partner040-1202701mari@bo.fi Kiinnostaako tämä kohde?Ota meihin yhteyttä tai jätä viesti Mari Rautio kiinteistönvälittäjä LKV, LVV, KiAT, partner 040 120 2701 mari@bo.fi Tutustu välittäjään Varaa aika kalenteristani HuoneistoOsakkeet385-472HallintamuotoAsunto-osakeyhtiöHuoneluku2-3h+k+th+kph+s+wc+parvi+piha (yj. 3h+k+vh+wc)Kerros/Kerroksia1/3Asuinpinta-ala100,0 m2 (114,3 m2)Muut tilat14,3 m2Lisätietoja pinta-alastaHuoneistoon on tehty 13.2.2008 SFS 5139 standardin mukainen pinta-alamittaus, jonka mukaan huoneistoala on 100,39m2. Tämän lisäksi huoneistoalaan kuulumattomia pinta-aloja ovat (alle 2200mm korkea) sauna 2,81m2 sekä (alle 1600mm korkea) parvi 11,48m2. Yhtiöjärjestyksen mukaan pinta-ala on 66,5m2 ja huoneistoon kuuluu lisäksi takkahuone, sauna, pesuhuone, pukuhuone ja wc joiden yhteenlaskettu pinta-ala on 28m2. Tarkistusmitattu.NäkymätPuistomaiset vehreät näkymät pihalle ja kadulle. ParvekeSisäänvedettyParvekkeen ilmansuuntaLounasKeittiön kuvaus, lisätiedot ja varustusKaunis Topi-keittiö remontoitu 05/2023. Varustelu: jääkaappi/pakastin, induktioliesi integroidulla liesituulettimella, erillisuuni, mikro, astianpesukone, viinikaappi ja katossa oleva 3-haarainen spottivalaisin. Työtaso laminaatti. Kaapistojen välitila levytetty. Keittiössä aamiaistaso / arkiruokailuniemeke, jonka taso on massiivipuuta. Saarekkeen saa tarpeen mukaan irrotettua jos tilaan haluaa ruokapöydän. Lattia marmorilaatta. Seinät maalattu. Pesutilojen kuvaus, lisätiedot ja varustusKaunis kylpyhuone on remontoitu vuonna 12/2022. Varustelu: Sadesuihku, Hietakari -suihkuseinä liukuovella, seinä wc-istuin, allaslaatikosto, valopeili, käsisuihku, kaappi, lattialämmitys. Lattia ja seinät laatta. WC-tilojen kuvausWc-istuin, allaskaapisto, valopeili, kaapistoa, lattialämmitys, käsisuihku. Lattia ja seinät laatoitettu.Lukumäärä: 2Saunan kuvaus, lisätiedot ja varustusSähkökiuas, seinät paneloitu ja lattia laatta. Makuuhuoneen kuvaus, lisätiedot ja varustusMH (sisääntulokerros) lattia laatoitettu ja seinät maalattu sekä tapetoitu, kaapisto. Lukumäärä: 2Oleskelutilojen kuvaus, lisätiedot ja varustusLattia laminaatti ja seinät maalattu, liukuovikaapisto. Olohuoneen tila mahdollista jakaa väliseinällä ja näin tilaan saa myös makuuhuoneen. Olohuoneesta käynti parvelle, jota voi hyödyntää oman tarpeen mukaan säilytystilana tai lapselle piilopaikaksi. Muut tilatAlakerran takkahuone on tällä hetkellä nykyisillä asukkailla makuuhuonekäytössä. Seinät maalattu ja sängyn päätyseinä on koristetiiltä. Lattia marmorilaatta. Takka (ei varaava). Käynti takapihalle. Takkahuoneeseen tultaessa portaiden alapäässä on syvennys pesukoneelle sekä kuivausrummulle. Ilmalämpöpumppu. Eteinen: Seinät maalattu, lattia laatoitettu, lattialämmitys. Liukuovikaapisto. Muuta kauppaan kuuluvaaOlemassa olevat sälekaihtimet Kauppaan ei kuuluPesukone ja kuivausrumpuMuutostyöt huoneistossaAiemmat osakkaat (tieto saatu kuntotarkastusraporteista) : 2009 Keittiön remontti, takkahuoneen tiiliseinän asennus, ylä- ja alaparvekkeet sekä terassi kunnostettu 2010 Lämminvesivaraajan uusinta 2010 Talon ulkoseinien puuosien maalaus Nykyisen osakkaan teettämät remontit ja kunnostukset: 2012 Terassin ulko-oven uusinta 2013 Parvekkeen ulko-oven uusinta 2014 Yläkerran olohuoneen lattiapinnoite uusittu (laminaatti) ja rappuset sekä kaiteet. 2015 Ikkunoiden huolto / tiivistys 2019 Ulkoseinien puuosien maalaus 2020 ulkoportaiden laatoitus 2020 Sokkelien maalaus 2021 / 2022 Kattoremontti, jolloin myös kattoikkuna vaihdettiin. Räystäskourut ja syöksytorvet uusittiin. 12/2022 Kylpyhuoneremontti 05/2023 Keittiön remontti, jolloin uusittiin myös kaikki kodinkoneet 2023 Seinien maalausta sisätiloissa: keittiö ja tuloaula sekä lasitiiliseinän poisto. 2024 Ilmanvaihtokoneen moottorin vaihto ja ilmanvaihtokanavien nuohous. Vaihdettu tuloilmaventtiilit ja poistoilmaventtiilit. 11/2024 Ilmalämpöpumpun asennus 2024 Terassin uusiminen. KuntoHyväTakkaNuohottu keväällä 2024TakkatiedotTakka, muu Kiinteistö- ja yhtiötiedotYhtiön nimiAsunto Oy Yhtiöntie 21Tontin omistusOmaTontin koko3 004,00 m2Käyttöönottovuosi1988RakennusmateriaaliPuu, tiiliKattotyyppiHarja / pulpettiKateTiiliLämmitysjärjestelmäSähkö, ilmalämpöpumppuEnergiatodistusKylläLisätietoja energiatodistuksestaEnergiatodistuksen viimeinen voimassaolopäivä 9.4.2035EnergialuokkaE2018Tiedossa olevat tulevat korjaukset/remontitYhtiössä asunto-osakeyhtiölaista poikkeava kunnossapitovastuu. Yhtiöjärjestyksen 5§: Jokainen osakas vastaa kaikista hänen omistamansa asunnon mahdollisista rakennusvirheistä, huolloista, korjauskuluista, peruskorjauskuluista, ym huoneiston sisä- ja ulkopuolisista töistä ja niistä aiheutuvista kuluista siten, ettei asunto-osakeyhtiö vastaa näistä kuluista ja kustannuksista miltään osin eivätkä osakkeen omistajat voi vaatia toisiaan tai taloyhtiötä osallistumaan toisen asunnon korjaus- ym. kuluihin ja kustannuksiin. *1.1.2027 mennessä huoneistokohtaiset vesimittarit on vaihdettava etäluettaviksi. Tästä ei päätöstä milloin muutos tehdään. Autotallit2Sähköpistokepaikkoja1Pihapaikkoja4Lainat0,00 €IsännöitsijäYhtiössä ei ammatti-isännöintiä. Hallituksen jäsen Markku Huhta-Koivisto, Yhtiöntie 21 B, 02700 Kauniainen KiinteistönhoitoAsukkaat Muita tietojaPalvelutKauniaisten ostoskeskus noin 900m, jossa mm. S-Market, K-Supermarket, apteekki, Ihana kukkanen, Keittiö- ja lahjatavaraliike Pannacotta. Kesäisin tuoreet marjat ja perunat kauppakeskuksen sisääntulosta. KouluMäntymäen koulu kävellen noin 1,1km ja autolla 1,9km. Kasavuoren koulu 2,6km. Granhultsskolan 2,1km (ruotsinkielinen) Hagelstamin koulu noin 1,5km (ruotsinkielinen)PäiväkotiPäiväkoti Norlandia Graniitti noin 1,7km Sansinpellon päiväkoti noin 1,2km Pilke ICEC Kauniainen noin 2,7km Päiväkoti Pikku Akatemia noin 2,7kmLiikenneyhteydetKauniaisten juna-asemalle noin 1,2 km, josta Leppävaaraan noin 5 minuutin matka ja Helsinkiin noin 20 minuutin matka. Bussilla 549 metrolinjalle Tapiolan kauppakeskus Ainoaan noin 29min. Bussilla 533 Iso Omenaan noin 35min. Lisätietoa kaavoituksestaKauniaisten kaupunki vaihde 09 50561. Asemakaavamuutoksiin sekä kaupungin uudistumiseen voi tutustua lisää sivustolla: https://kartat.kauniainen.fi/IMS/ Josta löytyy lisätietoa mm. *https://www.kauniainen.fi/asuminen-ja-ymparisto/kaavoitus-ja-maankaytto/kaavoitus/kaavoitushankkeet/ak-221-kaupungintalon-alue/ *https://www.kauniainen.fi/asuminen-ja-ymparisto/kaavoitus-ja-maankaytto/kaavoitus/kaavoitushankkeet/ak-243-asemanseutu/ *https://www.kauniainen.fi/asuminen-ja-ymparisto/kaavoitus-ja-maankaytto/kaavoitus/hyvaksytyt-ja-voimaan-tulleet-kaavat/ak-206-gresantie-1-5-bensowin-alue/VapautuuSopimuksen mukaan / 2kk kaupoista AsumiskustannuksetHoitovastike189,75 €/kk (1,90 €/m2)Yhtiövastike yhteensä189,75 €Vesimaksun perusteOma mittariMuut maksut / lisätietoa maksuista*Vesivastike-ennakko sisältyy tällä hetkellä hoitovastikkeeseen. Yhtiökokouksessa 26.9.2025 tehdyn päätöksen mukaan vuoden 2026 alusta vesivastike-ennakko tulee olemaan 20 euroa / hlö/kk. Vesimaksujen tasaus suoritetaan kerran vuodessa todellisen kulutuksen mukaan. *Sähkö oman kulutuksen ja sopimuksen mukaisesti. Nykyisillä asukkailla (2hlöä) vuoden 2024 sähkönkulutus ollut 14994kWh. *Nykyisillä omistajilla vuoden 2024 sähkölasku ollut keskimäärin 224€/kk (sisältäen sähkö+siirto+vero). Huomaathan, että annettu tieto on suuntaa-antava. Omat käyttötottumukset ja sopimusehdot määrittelevät aina oman keskimääräisen kustannuksen. *Hoitovastike sisältää vesimaksuennakon, mutta vesilasku tasataan vuosittain todellisen kulutuksen mukaiseksi. *Kotivakuutus omien sopimusehtojen mukaisesti. *Hallituksella oikeus päättää ylimääräisten hoitovastikkeiden keräämisestä. *Taloyhtiön osakeluettelo on siirretty MML:n huoneistotietojärjestelmään ja omistusoikeus perustuu paperiseen osakekirjaan. Ostaja on tietoinen siitä, että hänen tulee hakea omistusoikeutensa rekisteröintiä huoneistotietojärjestelmään Maanmittauslaitokselta kahden kuukauden kuluessa kauppakirjan allekirjoituksesta. Samalla ostajan on toimitettava paperinen osakekirja Maanmittauslaitokselle mitätöitäväksi. Ostaja vastaa omistusoikeutensa rekisteröintikustannuksista sekä osakekirjan mitätöinnistä aiheutuvista mahdollisista kustannuksista. Lisäksi saattaa syntyä pankkien määräämiä kuluja. *Ostajan ja myyjän pankki veloittavat kaupanteosta oman hinnastonsa mukaisen kulun. *Osapuolet vastaavat sähköisen kaupan kustannuksista sovitun mukaisesti. *Ostaja maksaa varainsiirtoveron 1,5 % velattomasta kauppahinnasta kaupantekotilaisuudessa. HintaMyyntihinta498 000,00 € (4 980,00 €/m2)Velaton hinta498 000,00 € (4 980,00 €/m2) Sinua voisi kiinnostaa Asunnon hinta-arvio ja arviokäynti Asunnon hinta-arvio ja arviokäynti Mitä hinta-arvio maksaa tai miten arviokäyntiä varten kannattaa valmistautua? Katso vastauksemme usein kysyttyihin ky… Sneak Peek® Sneak Peek® Sneak Peek® -palvelumme on askeleen edellä! Löydä alueesi uusimmat ja upeimmat asunnot jo ennen kuin ne ilmestyvät as… Asuntovahti Asuntovahti Etsimässä uutta asuntoa? Aseta itsellesi Bo-asuntovahti. Saat tiedon heti, kun unelmiesi asunto tulee myyntiin. Bo Match Bo Match Kun asuntounelmat ja unelmien asunnot kohtaavat, syntyy Bo Match. Tutustu uudenlaiseen tapaan käydä asuntokauppaa.
Asunnon hinta-arvio ja arviokäynti Asunnon hinta-arvio ja arviokäynti Mitä hinta-arvio maksaa tai miten arviokäyntiä varten kannattaa valmistautua? Katso vastauksemme usein kysyttyihin ky…
Sneak Peek® Sneak Peek® Sneak Peek® -palvelumme on askeleen edellä! Löydä alueesi uusimmat ja upeimmat asunnot jo ennen kuin ne ilmestyvät as…
Asuntovahti Asuntovahti Etsimässä uutta asuntoa? Aseta itsellesi Bo-asuntovahti. Saat tiedon heti, kun unelmiesi asunto tulee myyntiin.
Bo Match Bo Match Kun asuntounelmat ja unelmien asunnot kohtaavat, syntyy Bo Match. Tutustu uudenlaiseen tapaan käydä asuntokauppaa.