Rapukuja 1

Humikkala, Masku | Omakotitalo | 5h+avok+khh+kph+s+vh+terassi+autokatos

  • 339 000 €

    Velaton hinta

  • 105,0 m2

    Asuinpinta-ala

  • 2024

    Rakennusvuosi

UUTTA VASTAAVA A-ENERGIALUOKAN KOTI VEHREÄSSÄ YMPÄRISTÖSSÄ

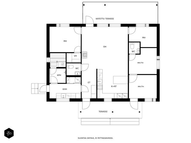
Maskun Humikkalassa sijaitseva moderni A-energialuokan omakotitalo, joka tarjoaa huolettoman ja viihtyisän asumisen vehreällä omalla tontilla. Tämä yhdessä tasossa oleva neljän makuuhuoneen koti on suunniteltu toimivaksi arjen keskukseksi – tilaa riittää koko perheelle, ja pohjaratkaisu mukautuu joustavasti erilaisiin elämäntilanteisiin.
Talon rakenteilla on Design-talotehtaan 10 vuoden takuu, mikä luo asumiseen lisäturvaa pitkälle tulevaisuuteen.

Sisustuksessa on panostettu ajattomuuteen ja laatuun: kestävät ja tyylikkäät laminaattilattiat (KL32) sekä harmoninen värimaailma luovat pohjan monenlaiseen sisustustyyliin.

Kodissa on myös erinomainen mahdollisuus erilliseen työ- tai yritystilaan, tai esimerkiksi vanhemman lapsen omaan rauhaan. Kahden huoneen yhteydessä oleva oma sisäänkäynti tuo yksityisyyttä ja monikäyttöisyyttä, näissä tiloissa on myös oma erillinen wc. Myyjä voi tarpeen vaatiessa muokata väliseiniä ja tehdä kulkuaukon ostajan toiveiden mukaisesti – ulkoseinät ovat kantavia rakenteita, mikä mahdollistaa sisätilojen joustavan muokkaamisen.

Energialuokkakin jo kertoo, että ylläpitokulut ovat erittäin maltilliset, tässä kodissa on vesikiertoinen lattialämmitys ja poistoilmalämpöpumppu. Varaava takka luo mukavaa lämpöä talvisin ja aurinkopaneelit tuottavat sähköä.

Etupihalla on autokatos sekä varastotila. Pihapiiri on viimeistelty ja hyvinhoidettu, talon molemmilta puolin löytyy iso terassi.

Tämä koti on täydellinen valinta erityisesti lapsiperheelle – sijainti on rauhallinen, mutta arjen palvelut ovat lähellä. Koulut ja kaupat sekä Rivieran hiekkarannat löytyvät lyhyen matkan päästä, ja nopea yhteys 8-tielle tekee työmatkoista sujuvia niin Turkuun kuin vaikkapa Raumallekin.

Myynti ja esittelyvaraukset:

Jenna Vuotinen LKV, kaupanvahvistaja
0407041146 / jenna@bo.fi

Kiinnostaako tämä kohde?

Ota meihin yhteyttä tai jätä viesti

HUONEISTO

Huoneluku
5h+avok+khh+kph+s+vh+terassi+autokatos
Kerros
1
Kerroksia
1
Asuinpinta-ala
105,0 m²
Muut tilat
0,0 m²
Lisätietoja pinta-alasta
Huoneistoala 105 m² ja kerrosala 120 m² rakennuspiirustuksissa, ei tarkistusmitattu.
Autokatos/varasto 11 m²
Keittiön kuvaus, lisätiedot ja varustus
Kaapistot, jääkaappi/pakastin, induktioliesi, astianpesukone, uuni, mikro, liesituuletin, tasot laminaattia, niemeke
Kylpyhuoneen varustus
Lattialämmitys, suihku
Kylpyhuoneen lattiamateriaali
Laatta
Kylpyhuoneen seinämateriaali
Kaakeli
WC-tilojen kuvaus
Lukumäärä: 2
Kodinhoitohuone
Varustus: pesukoneliitäntä, lattialämmitys
Sauna
Asunnossa on sauna
Makuuhuoneen kuvaus, lisätiedot ja varustus
Lattioilla laminaatti, seinät maalattuja
Oleskelutilojen kuvaus, lisätiedot ja varustus
Lattioilla laminaatti, seinät maalattuja
Muut säilytystilat
Vaatehuone, ulkovarasto
Muuta kauppaan kuuluvaa
Aurinkopaneelit 3,4 kWp, kaapistot, vesiletkukela, komposti
Kunto
Hyvä
Takka
Varaava takka
Takkatiedot
Takka
Kauppaan ei kuulu
Irtaimisto, pyykinpesukone

KIINTEISTÖ- JA YHTIÖTIEDOT

Asuinpinta-ala
105,0 m² (105,0 m²)
Kiinteistötunnus
481-405-7-47
Tyyppi
Tila
Tontin omistus
Oma
Tontin koko
1 343,00 m²
Tontin tyyppi
Tasamaatontti
Tontin kuvaus
Tie perille
Panttikirjat
400 000,00 €
Rakennusvuosi (aloitettu)
2023
Käyttöönottovuosi
2024
Rakennusmateriaali
Puu
Rakennusmateriaalin kuvaus
Design-talopaketti, 10v. rakennetakuu
Muut rakennukset
Autokatos, Varasto
Kattotyyppi
Harja
Kate
Pelti
Lämmön jakotapa
Vesikiertoinen lattialämmitys, uuni/takka
Lämmitysjärjestelmän kuvaus
Poistoilmalämpöpumppu
Ilmanvaihtojärjestelmä
Koneellinen tulo, koneellinen poisto, lämmön talteenotto
Energiatodistus
Kyllä
Energialuokka
A2018
Vesijohto
Kunnan
Viemäri
Kunnan

MUITA TIETOJA

Kaavoitus
Asemakaava
Vapautuu
1-2 kk tai sopimuksen mukaan

ASUMISKUSTANNUKSET

Muut maksut / lisätietoa maksuista
Vesi -ja jätevesi kulutuksen mukaan, laskennallinen kokonaissähkön kulutus noin 8 000 kWh (energiatodistus), kiinteistövero 468 e/v.2025, varainsiirtovero 3 %, kaupanvahvistajan kulu 138 euroa

HINTA

Myyntihinta
339 000,00 €
Velaton hinta
339 000,00 €
Rapukuja 1 - kuva 1 Rapukuja 1 - kuva 2 Rapukuja 1 - kuva 3 Rapukuja 1 - kuva 4 Rapukuja 1 - kuva 5 Rapukuja 1 - kuva 6 Rapukuja 1 - kuva 7 Rapukuja 1 - kuva 8 Rapukuja 1 - kuva 9 Rapukuja 1 - kuva 10 Rapukuja 1 - kuva 11 Rapukuja 1 - kuva 12 Rapukuja 1 - kuva 13 Rapukuja 1 - kuva 14 Rapukuja 1 - kuva 15 Rapukuja 1 - kuva 16 Rapukuja 1 - kuva 17 Rapukuja 1 - kuva 18 Rapukuja 1 - kuva 19 Rapukuja 1 - kuva 20 Rapukuja 1 - kuva 21 Rapukuja 1 - kuva 22 Rapukuja 1 - kuva 23 Rapukuja 1 - kuva 24 Rapukuja 1 - kuva 25 Rapukuja 1 - kuva 26 Rapukuja 1 - kuva 27 Rapukuja 1 - kuva 28 Rapukuja 1 - kuva 29 Rapukuja 1 - kuva 30 Rapukuja 1 - kuva 31 Rapukuja 1 - kuva 32 Rapukuja 1 - kuva 33 Rapukuja 1 - kuva 34 Rapukuja 1 - kuva 35 Rapukuja 1 - kuva 36 Rapukuja 1 - kuva 37 Rapukuja 1 - kuva 38 Rapukuja 1 - kuva 39 Rapukuja 1 - kuva 40 Rapukuja 1 - kuva 41 Rapukuja 1 - kuva 42